← Bradford Metropolitan District Council
26/00712/HOU
Bradford Metropolitan District Council
Status
Pending Consideration
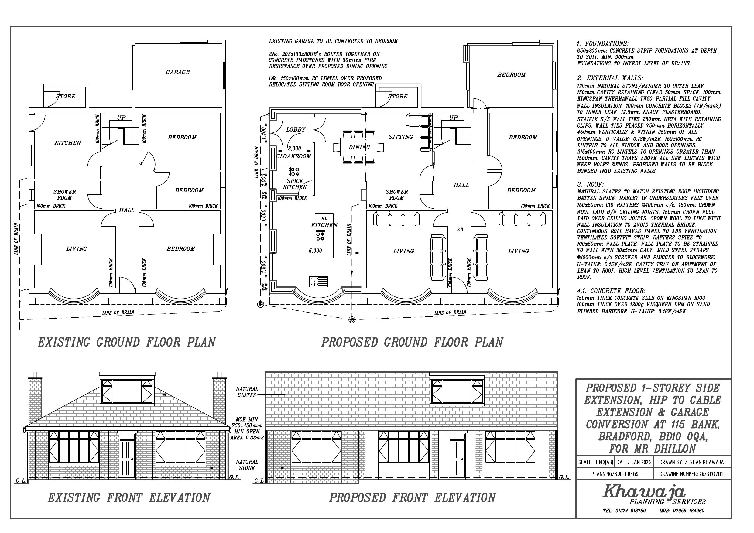
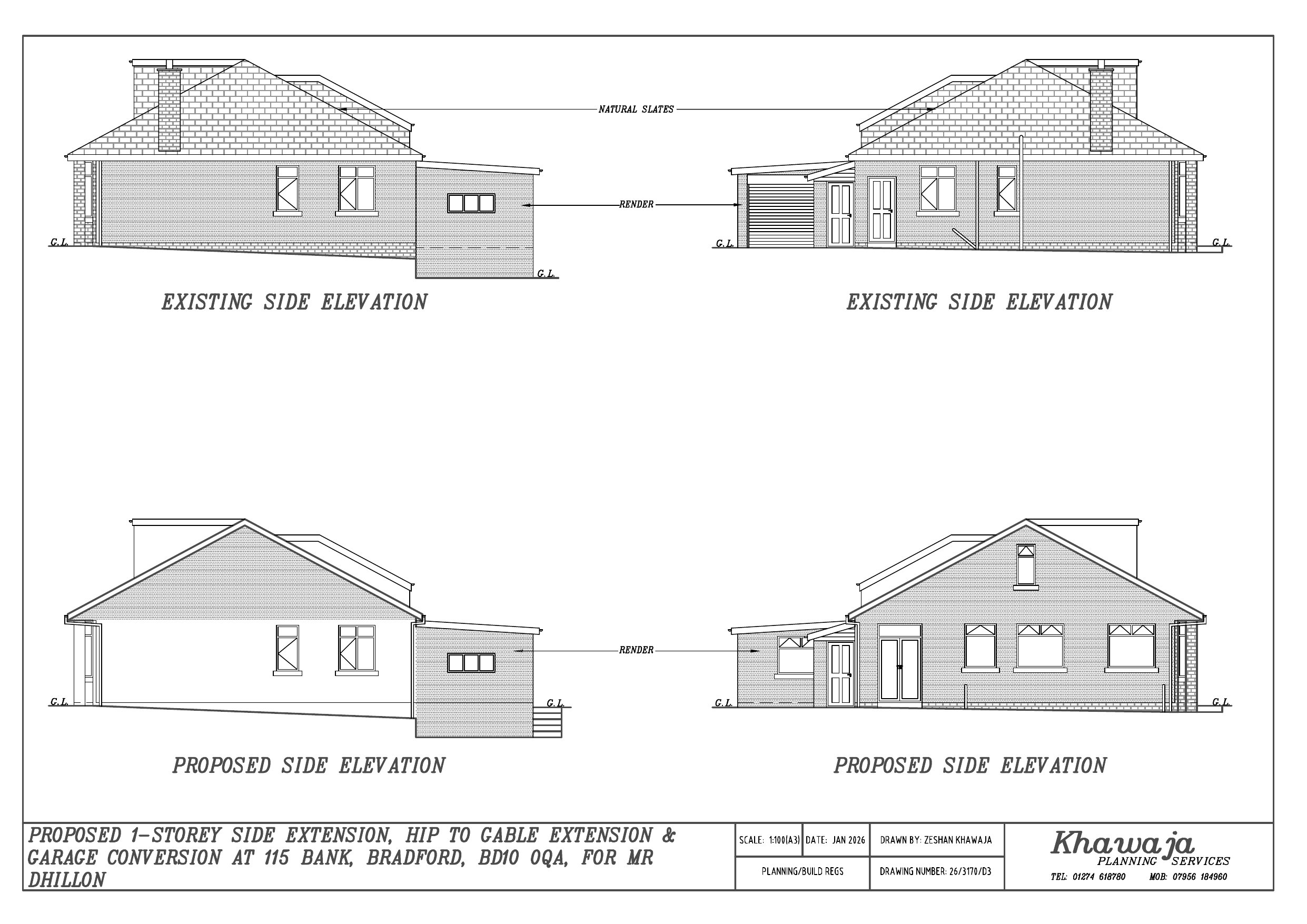
House extension
Received
Not recorded
New homes
0
Full proposal
Single storey side extension, hip to gable roof extension and conversion of existing garage to habitable living space
Documents
Have your say
Your comment matters. Councils must consider every representation that raises material planning considerations.