← Bradford Metropolitan District Council
26/00856/PNH
Bradford Metropolitan District Council
Status
Pending Consideration
House extension
Received
Not recorded
New homes
0
Full proposal
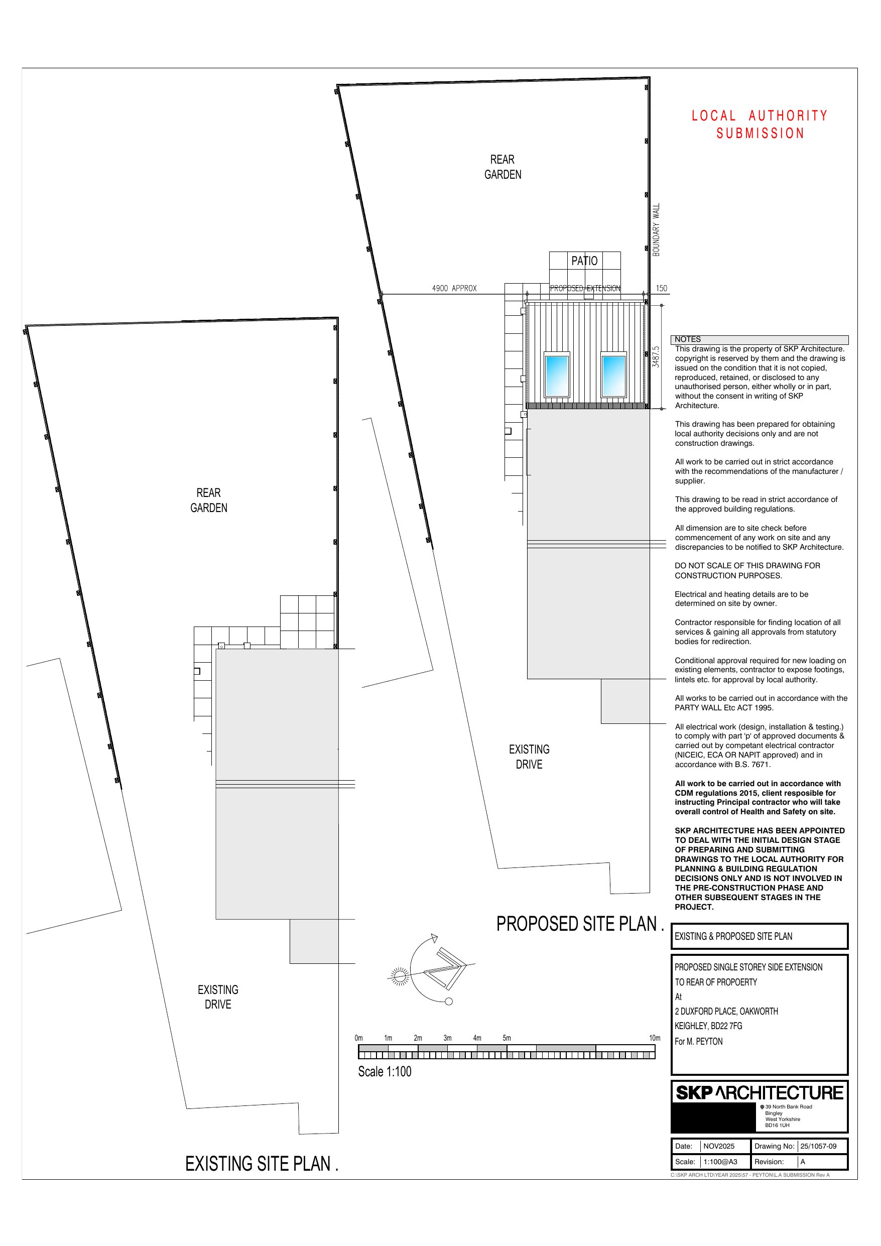
Construction of single storey rear extension of the following dimensions: Depth of proposed extension from rear wall of original dwellinghouse: 3.48m Maximum height of proposed extension: 3.45m Height to eaves of proposed extension: 2.5m
Documents
Have your say
Your comment matters. Councils must consider every representation that raises material planning considerations.