← Bradford Metropolitan District Council

Status

Pending Consideration House extension
Received
Not recorded
New homes
0

Full proposal

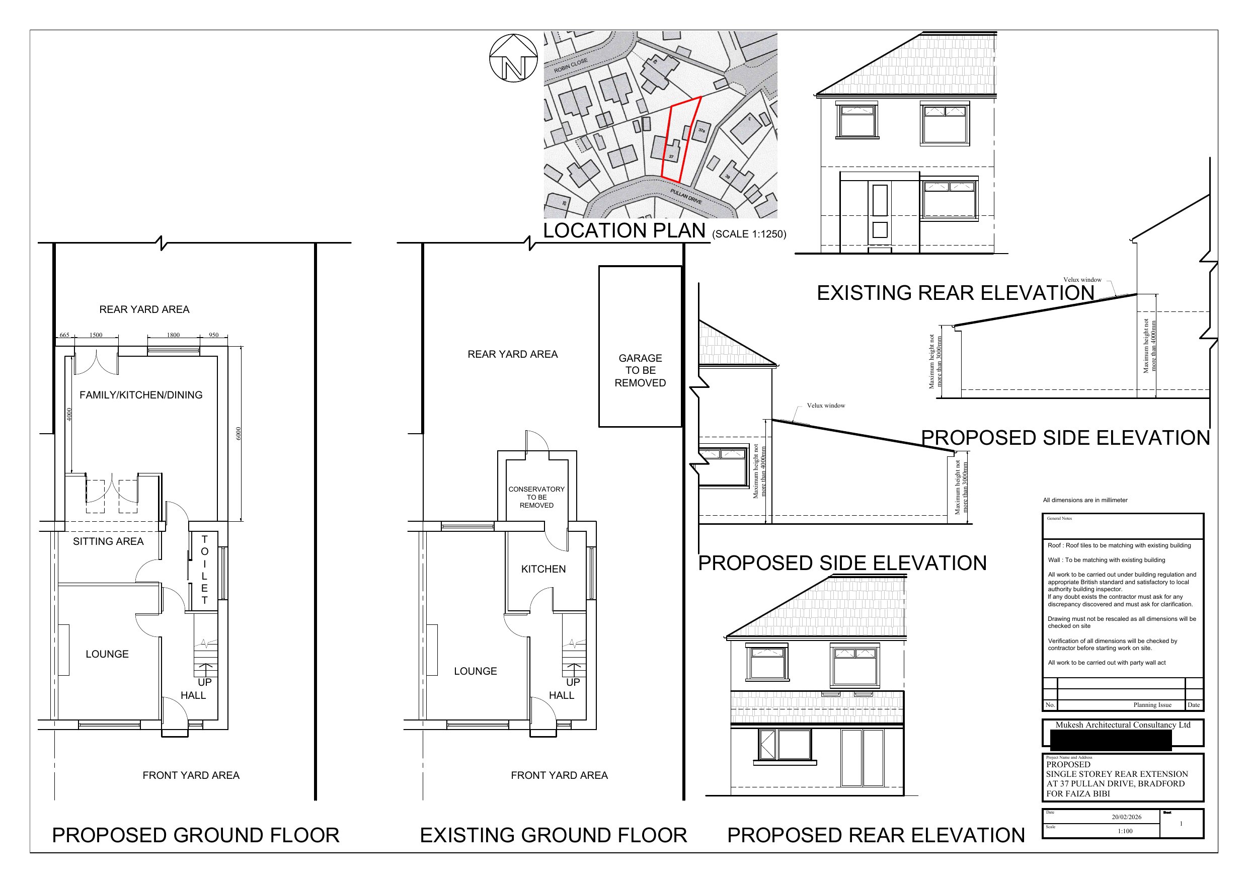
Construction of single storey rear extension of the following dimensions: Depth of proposed extension from rear wall of original dwelling house: 6.0m Maximum height of proposed extension: 3.575m Height to eaves of proposed extension: 2.50m

Documents

Application Form
Archived · Original link
Drawing
Archived · Original link
Prior Approval Acknowledgement
Archived · Original link

Have your say

Your comment matters. Councils must consider every representation that raises material planning considerations.

Write a comment