← Cumberland Council

Status

Pending Demolition
Received
Not recorded
New homes
0

Full proposal

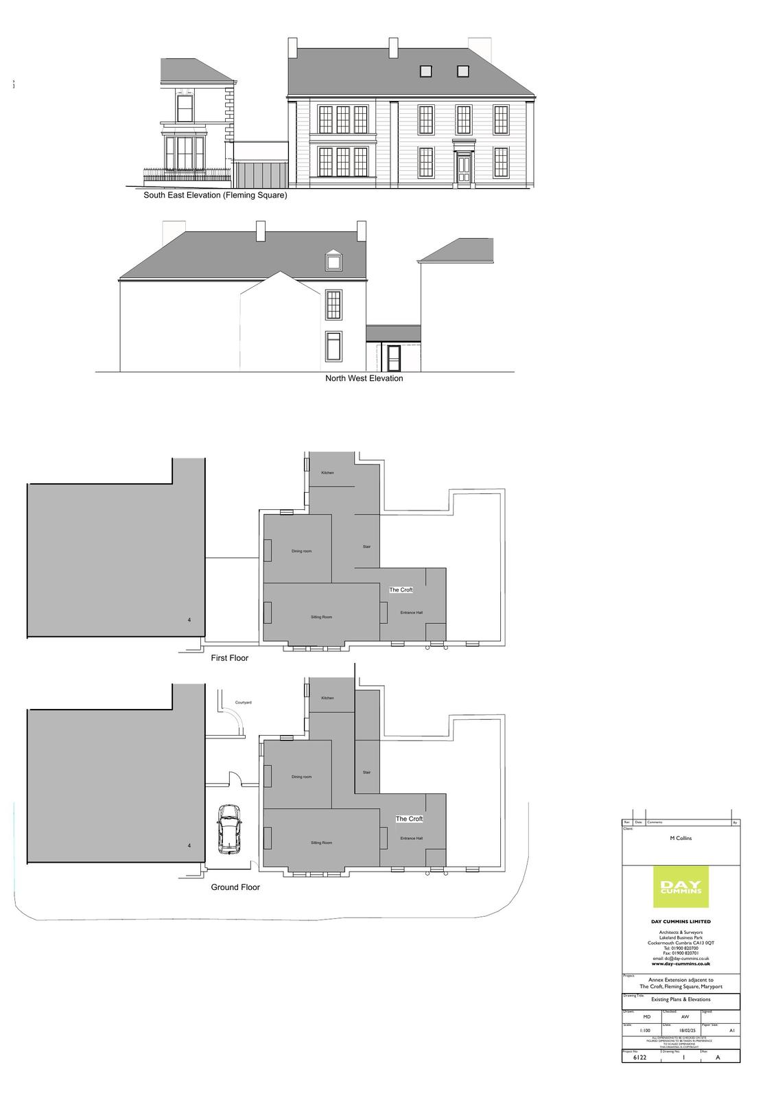
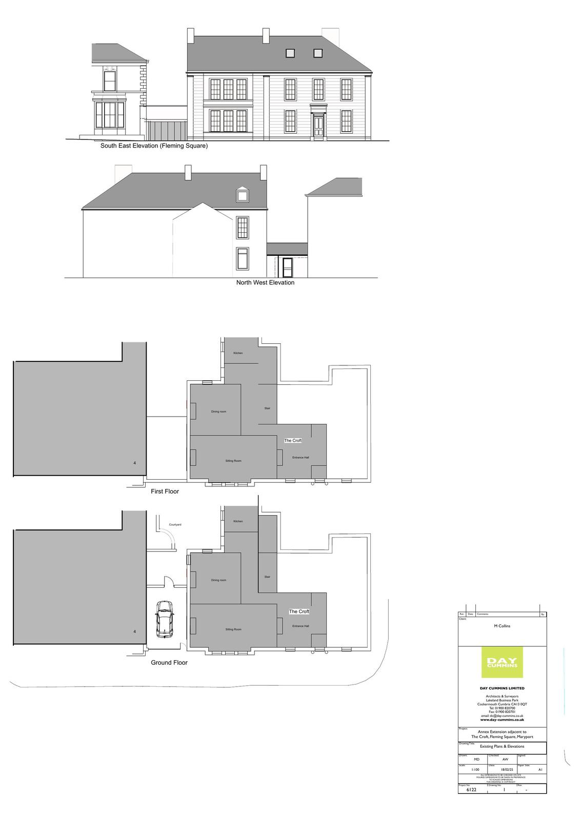
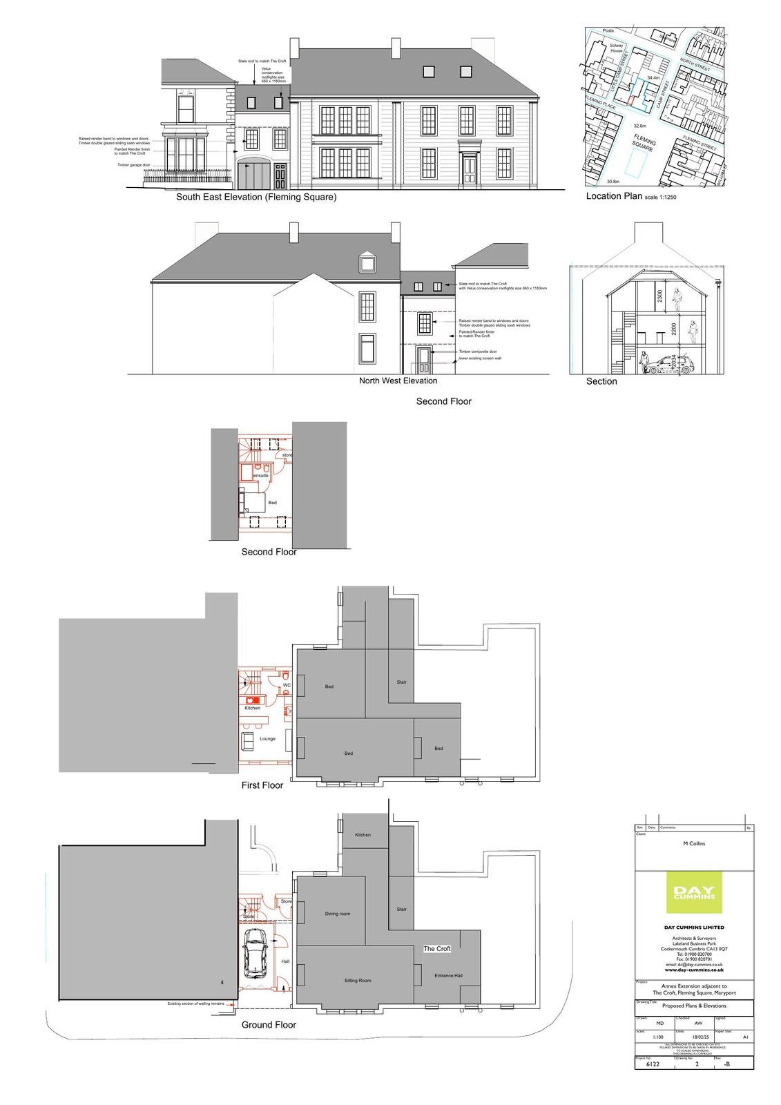
Reference FUL/2025/0070 Site address The Croft, Fleming Square, Maryport CA15 6HW Description Demolition of garage and construction of self contained annex Valid Date 29/4/2025 Status Under Consultation Decision

Documents

Uncategorised
Archived · Original link
Uncategorised
Archived · Original link
Uncategorised
Archived · Original link
Uncategorised
Archived · Original link
Uncategorised
Archived · Original link
Uncategorised
Archived · Original link
Uncategorised
Archived · Original link
Uncategorised
Archived · Original link
Uncategorised
Archived · Original link
Uncategorised
Archived · Original link

Have your say

Your comment matters. Councils must consider every representation that raises material planning considerations.

Write a comment