← All councils

Recent applications

The most recent records we hold for this council (up to 200).

Reference FUL/2026/0010 Site address 59, John Street, Workington, CA14 3BT Description Change of use from a single dwelling (C3) to a 7- per...

Type Change of use
Status Pending
Received 27 Jan 2026

Reference HOU/2026/0009 Site address 44 Woodside Park, Wigton CA7 9BZ Description Proposed single storey extension to rear of dwelling to cr...

Type House extension
Status Pending
Received 27 Jan 2026
Plan thumbnail

Reference HOU/2026/0006 Site address Paradise Bent, Eaglesfield, Cockermouth CA13 0SF Description Proposed extensions and alteration to dwel...

Type House extension
Status Pending
Received 21 Jan 2026
Plan thumbnail

Reference CLDP/2026/0001 Site address Fir Bank, Station Hill, Wigton CA7 9BW Description Proposed use as a residential children's care home ...

Type Change of use
Status Pending
Received 19 Jan 2026
Plan thumbnail

Reference REAR/2026/0001 Site address 27 Brackenlands, Wigton CA7 9JX Description Larger home extension for a proposed single storey craft r...

Type House extension
Status Pending
Received 16 Jan 2026
Plan thumbnail

Reference FUL/2025/0205 Site address 17 Black Bull Inn, Main Street, Cockermouth CA13 9LE Description Replacement flat roof to rear incorpor...

Type Commercial
Status Pending
Received 13 Jan 2026
Plan thumbnail

Reference LBC/2026/0006 Site address Fletcher House, South Street, Cockermouth, CA13 9QP Description Erection of retractable sun canopy Vali...

Type Listed building
Status Pending
Received 13 Jan 2026
Plan thumbnail

Reference OUT/2025/0013 Site address Land off Ellerbeck Brow, High Brigham, Brigham, CA13 0SZ Description Outline application for the erecti...

Type New housing
Status Pending
Received 05 Jan 2026
Plan thumbnail

Reference FUL/2026/0031 Site address Glen Cottage, Little Broughton, Cockermouth, CA13 0YA Description Erection of an agricultural workers d...

Type Agricultural
Status Pending
Received 29 days ago
Plan thumbnail

Reference HOU/2026/0031 Site address 2 Vicarage Lane, Cockermouth CA13 9DG Description Alterations and extension for front porch shower room...

Type House extension
Status Pending
Received Last month

Reference FUL/2026/0019 Site address Land adjoining 16 High Seaton, Seaton, Workington CA14 1PB Description Detached dwelling Valid Date 03/...

Type New housing
Status Pending
Received Last month
Plan thumbnail

Reference HOU/2026/0029 Site address Fellbeck House, Tweed Mill Lane, Cockermouth CA13 9DE Description Two storey side extension, rear and f...

Type House extension
Status Pending
Received Last month

Reference HOU/2026/0036 Site address Seaholme, Ryehills Road, Skinburness, Wigton CA7 4QT Description Proposed side extension to dwelling Va...

Type House extension
Status Pending
Received Date not available
Plan thumbnail

Reference FUL/2026/0023 Site address Low Aketon Farm, Wigton CA7 0BP Description Conversion of the attached barn to form an extension to the...

Type House extension
Status Pending
Received Date not available
Plan thumbnail

Reference OUT/2026/0002 Site address Land to the rear of Croft Barn, Blencogo, Wigton Description Outline application with access for a new ...

Type New housing
Status Pending
Received Date not available
Plan thumbnail

Reference HOU/2026/0015 Site address 8 Fletcher Street, Cockermouth CA13 0HA Description Demolition of existing two storey rear extension an...

Type House extension
Status Pending
Received Date not available
Plan thumbnail

Reference HOU/2026/0012 Site address 1 Highmoor, Wigton, CA7 9LQ Description Single storey extension to house an equal access bathroom and r...

Type House extension
Status Pending
Received Date not available
Plan thumbnail

Reference FUL/2026/0001 Site address Former Garth Infant School Site, Coronation Drive, Salterbeck, Workington, CA14 5LS Description Erectio...

Type New housing
Status Pending
Received Date not available
Plan thumbnail

Reference FUL/2026/0011 Site address Land South of Lowmoor Road, Wigton Description Residential development of 192 dwellings Valid Date 13/2...

Type New housing
Status Pending
Received Date not available
Plan thumbnail

Reference FUL/2026/0024 Site address Farfisa, Wiggonby, Wigton CA7 0JR Description Change of use of land from paddock to garden land and ext...

Type Change of use
Status Pending
Received Date not available
Plan thumbnail

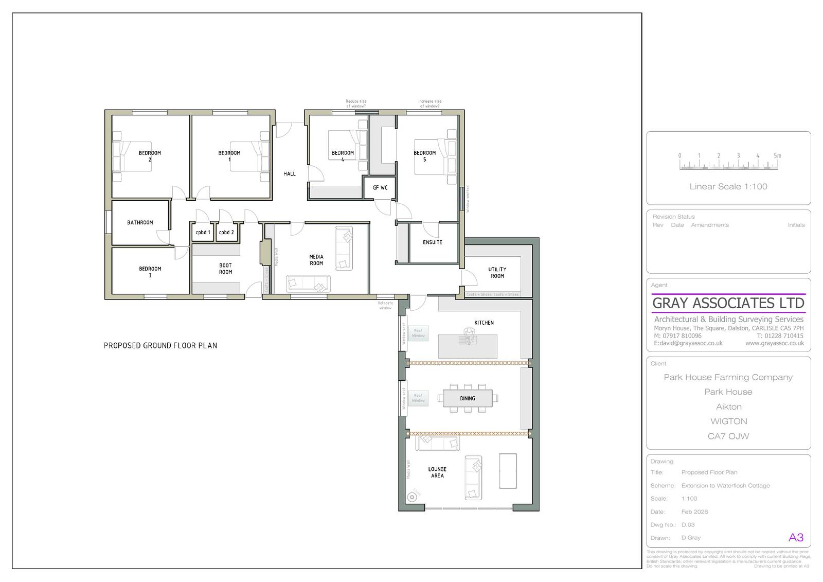
Reference HOU/2026/0022 Site address Water Flosh Bungalow, Aikton, CA7 0JL Description Demolition of attached shed and erection of single st...

Type House extension
Status Pending
Received Date not available
Plan thumbnail

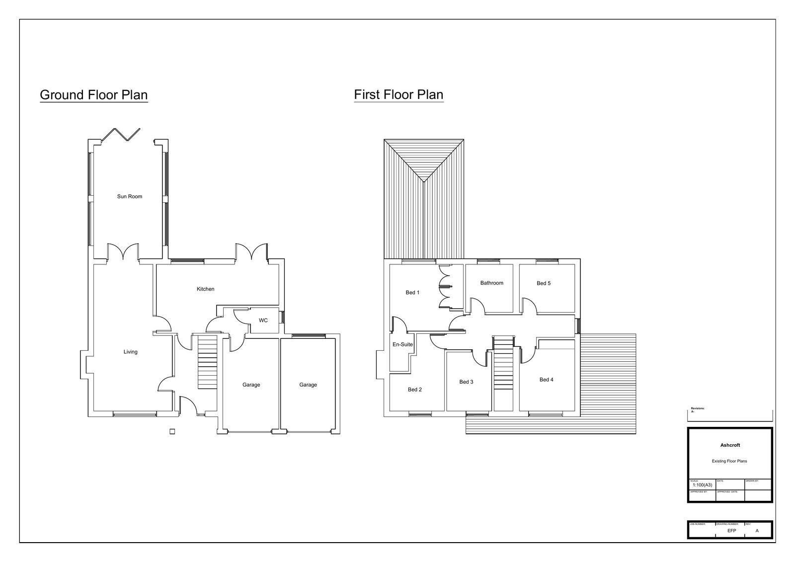
Reference HOU/2026/0024 Site address Ashcroft, Oulton, Wigton, CA7 0NN Description Double storey extension to the front and back of the hous...

Type House extension
Status Pending
Received Date not available

Reference FUL/2026/0026 Site address 33-35 Crown Street, Cockermouth CA13 0ER Description Subdivision of dwelling to form 2 independent dwel...

Type Change of use
Status Pending
Received Date not available
Plan thumbnail

Reference FUL/2025/0067 Site address Fishergill, Aikton CA7 0JP Description Construction of weanling calf housing barn Valid Date 17/4/2025 ...

Type Agricultural
Status Pending
Received Date not available
Plan thumbnail

Reference FUL/2025/0066 Site address How End Farm, How End, Thursby, CA5 6PX Description Construction of a Calf Housing Barn Valid Date 10/4...

Type Agricultural
Status Pending
Received Date not available
Plan thumbnail

Reference HOU/2025/0091 Site address Oulton Hall, Oulton, Wigton, CA7 0NG Description Demolition of existing two storey side extension and e...

Type House extension
Status Pending
Received Date not available
Plan thumbnail

Reference FUL/2025/0072 Site address Hazel Gill Farm, Welton, CA5 7HJ Description Demolition of existing barn and construction of new dwelli...

Type New housing
Status Pending
Received Date not available
Plan thumbnail

Reference OUT/2025/0001 Site address 2 Mitchell Avenue, Northside, Workington, CA14 1AU Description Outline planning application for 2 No. s...

Type New housing
Status Pending
Received Date not available
Plan thumbnail

Reference HOU/2025/0084 Site address 5 Cedar Lane, Cockermouth CA13 9HN Description Single storey side extension and internal alterations to...

Type House extension
Status Pending
Received Date not available
Plan thumbnail

Reference FUL/2025/0070 Site address The Croft, Fleming Square, Maryport CA15 6HW Description Demolition of garage and construction of self ...

Type Demolition
Status Pending
Received Date not available
Plan thumbnail

Reference FUL/2024/0236 Site address Former Skinburness Hotel, Skinburness Village, Skinburness, CA7 4QY Description 13 new residential dwel...

Type New housing
Status Pending
Received Date not available
Plan thumbnail

Reference FUL/2025/0074 Site address Friends Former Meeting House, Meeting House Lane, Broughton, CA13 0YQ Description Change of Use of form...

Type Change of use
Status Pending
Received Date not available
Plan thumbnail

Reference FUL/2025/0078 Site address Hill Top, Mealsgate, Wigton, CA7 1AH Description Change of use of existing agricultural shed to residen...

Type Change of use
Status Pending
Received Date not available
Plan thumbnail

Reference FUL/2025/0076 Site address 37 Brow Top, Workington, CA14 2DP Description Proposed change of use from former Place of Worship (F1 U...

Type Change of use
Status Pending
Received Date not available
Plan thumbnail

Reference HOU/2025/0010 Site address 22 Row Brow Park, Dearham, Maryport, CA15 7JU. Description Single storey extension to the rear of the h...

Type House extension
Status Pending
Received Date not available
Plan thumbnail

Reference HOU/2025/0008 Site address Thornfield House, Torpenhow, CA7 1JF Description Alteration and extension for rear sunroom and installa...

Type House extension
Status Pending
Received Date not available
Plan thumbnail

Reference HOU/2025/0011 Site address Limetree House, Dovenby, Cockermouth, CA13 0PN Description The erection of a tool shed to store tools a...

Type Other
Status Pending
Received Date not available
Plan thumbnail

Reference HOU/2025/0006 Site address 11 Crown Street, Cockermouth, CA13 0EH Description Demolition of existing prefab garages and constructi...

Type Demolition
Status Pending
Received Date not available
Plan thumbnail

Reference FUL/2025/0002 Site address Plot 2, The Went, Dearham Description Proposed new three bed dwelling Valid Date 07/1/2025 Status Deter...

Type New housing
Status Pending
Received Date not available

Reference FUL/2025/0183 Site address Land off New Bridge Road, Workington CA14 2FB Description 42 apartments for retirement living Valid Dat...

Type New housing
Status Pending
Received Date not available

Reference PIP/2025/0004 Site address Land South of Brackenfield, Old Brackenlands, Wigton, CA7 9LF Description Residential development of 5 ...

Type New housing
Status Pending
Received Date not available

Reference FUL/2025/0188 Site address Aspatria Creamery, Station Road, Aspatria CA7 2AR Description Demolition of existing building and const...

Type Industrial
Status Pending
Received Date not available

Reference FUL/2025/0190 Site address Springfield Cottage, Little Clifton, Workington, CA14 1YW Description Change of use of ancillary domest...

Type Change of use
Status Pending
Received Date not available

Reference FUL/2025/0189 Site address 4 Sibson Place, Harrington, Workington CA14 5QF Description Proposed change of use from public house in...

Type Change of use
Status Pending
Received Date not available

Reference FUL/2025/0177 Site address Land adjacent to Milestone House, Waverton, Wigton, CA7 0AE Description 3 New detached dwellings Valid ...

Type New housing
Status Pending
Received Date not available

Reference FUL/2025/0172 Site address Land at Kirkland Road, Wigton Description 33 new dwellings and associated infrastructure Valid Date 14/...

Type New housing
Status Pending
Received Date not available

Reference FUL/2025/0176 Site address Holme St Cuthberts Church Hall, Mawbray, Maryport, CA15 6QZ Description Change of use from disused Chur...

Type Change of use
Status Pending
Received Date not available

Reference OUT/2025/0012 Site address Land adjacent to Glen Craig, Broughton Moor Description Outline application with access for a new dwell...

Type New housing
Status Pending
Received Date not available

Reference HOU/2025/0176 Site address Brook Rigg, Stocks Hill, High Harrington, CA14 5PH Description Removal of single garage and flat roofed...

Type House extension
Status Pending
Received Date not available

Reference OUT/2025/0008 Site address Land North of Croft Cottage, Kirkbampton, Carlisle CA5 6JB Description Outline planning application for...

Type New housing
Status Pending
Received Date not available

Reference FUL/2025/0170 Site address Wilton Dene, 110 Skinburness Road, Silloth CA7 4QH Description Demolition of existing dormer bungalow a...

Type New housing
Status Pending
Received Date not available

Reference HOU/2025/0174 Site address Sunset View, Bowness on Solway, Wigton CA7 5BH Description Extensions and adaptations to existing dwell...

Type House extension
Status Pending
Received Date not available

Reference OUT/2025/0009 Site address Land adjoining 12 Greengate, Seaton, Workington CA14 1PH Description Outline application for a detached...

Type New housing
Status Pending
Received Date not available

Reference FUL/2025/0164 Site address Rubby Banks House, Rubby Banks Road, Cockermouth, CA13 0DT Description Proposed detached self build dwe...

Type New housing
Status Pending
Received Date not available

Reference FUL/2025/0166 Site address Town Head, Brocklebank CA7 8DH Description Erection of an agricultural worker's dwelling and associated...

Type Agricultural
Status Pending
Received Date not available

Reference HOU/2025/0169 Site address Dale Garth, Marron Lane, Bridgefoot, Workington, CA14 1YH Description Extension to side of bungalow Val...

Type House extension
Status Pending
Received Date not available

Reference HOU/2025/0167 Site address 48 Kelsick Park, Seaton, Workington, CA14 1PY Description Construction of single storey back extension ...

Type House extension
Status Pending
Received Date not available

Reference FUL/2025/0163 Site address Hames Hall Residential Home, Gote Road, Cockermouth CA13 0NN Description Remodeling of existing stepped...

Type Other
Status Pending
Received Date not available

Reference HOU/2025/0163 Site address Curlbeck House, Greysouthen, Cockermouth, CA13 0UW Description Alteration and extension to an existing ...

Type House extension
Status Pending
Received Date not available

Reference HOU/2025/0155 Site address 40 Oaktree Crescent, Cockermouth, CA13 9HP Description Proposed single storey extension to the rear of ...

Type House extension
Status Pending
Received Date not available

Reference HOU/2025/0157 Site address Port House, Port Carlisle CA7 5BU Description Installation of velux roof light to uppermost story of th...

Type House extension
Status Pending
Received Date not available

Reference HOU/2025/0156 Site address 15, Cross Grove, Wigton, CA7 9DQ Description Demolition of existing garage and erection of double store...

Type House extension
Status Pending
Received Date not available

Reference PIP/2025/0003 Site address Former Reservoir, Main Road, High Harrington, Workington CA14 4AH Description Residential development (...

Type New housing
Status Pending
Received Date not available

Reference FUL/2025/0152 Site address Beech Dene, Kelsick Village, Abbeytown, CA7 4TL Description Change of use of land from paddock to resid...

Type Change of use
Status Pending
Received Date not available

Reference OUT/2025/0007 Site address Wood Farm, Thursby, Carlisle CA5 6NR Description Outline application for erection of agricultural worke...

Type Agricultural
Status Pending
Received Date not available

Reference OUT/2025/0005 Site address Land to the North of Honister Drive, Workington, CA14 3XS Description Outline application for erection ...

Type New housing
Status Pending
Received Date not available

Reference FUL/2025/0142 Site address Land at Derwent Street, Cockermouth CA13 0EY Description Proposed development of 1 pair semi detached d...

Type New housing
Status Pending
Received Date not available

Reference OUT/2025/0006 Site address Blennerhasset to the A595 Near Low Woodnook, Aspatria, CA7 3RF Description Outline application with all...

Type New housing
Status Pending
Received Date not available

Reference HOU/2025/0149 Site address 67 Main Street, Great Broughton, Cockermouth, CA13 0YJ Description Attached carport and first floor fla...

Type House extension
Status Pending
Received Date not available

Reference FUL/2025/0141 Site address 32-36 Wilson Street, Workington, CA14 4AZ Description Conversion of ground floor of former public house...

Type Change of use
Status Pending
Received Date not available

Reference FUL/2025/0148 Site address Blencogo House, Blencogo, Wigton CA7 0BZ Description Erection of livestock building Valid Date 23/9/202...

Type Agricultural
Status Pending
Received Date not available

Reference FUL/2025/0149 Site address Greenbank Farm, Simonscales Lane, Cockermouth, CA13 9TG Description Change of Use for part agricultural...

Type Change of use
Status Pending
Received Date not available

Reference FUL/2025/0136 Site address High Cross Hill, Wigton, CA7 8NX Description Conversion of existing barn to two dwelling houses Valid D...

Type Change of use
Status Pending
Received Date not available

Reference FUL/2025/0145 Site address 295-297 Moss Bay Road, Workington, CA14 3TQ Description Proposed Change of Use from Domestic to Commerc...

Type Change of use
Status Pending
Received Date not available

Reference FUL/2025/0133 Site address Land adjacent The Old Mill Inn, Row Brow, Dearham, Maryport CA15 7JP Description Proposed new self buil...

Type New housing
Status Pending
Received Date not available

Reference OUT/2025/0002 Site address Kiln Green House, Aikton, Wigton,, CA7 0HY Description Outline application for dwelling Valid Date 15/9...

Type New housing
Status Pending
Received Date not available

Reference FUL/2025/0137 Site address Hayborough Farm, Dearham, Maryport, CA15 7RA Description Change of use of former stables to dwelling, i...

Type Change of use
Status Pending
Received Date not available

Reference FUL/2025/0134 Site address Outgang Barn, Outgang Road, Aspatria, Wigton CA7 3HW Description Conversion of former doctors surgery t...

Type Change of use
Status Pending
Received Date not available

Reference FUL/2025/0138 Site address Our Lady of Assumption, Wampool Street, Silloth, CA7 4BN Description Change of use from church to 3 dwe...

Type Change of use
Status Pending
Received Date not available

Reference OUT/2025/0004 Site address Rose Bank, Main Road, Great Clifton, Workington, CA14 1TR Description Outline permission with access, l...

Type New housing
Status Pending
Received Date not available

Reference HOU/2025/0128 Site address Mosside, Lime Road, Harrington, Workington, CA14 5QH Description Loft conversion, addition of dormers a...

Type House extension
Status Pending
Received Date not available

Reference HOU/2025/0144 Site address 10 Oakland Avenue, Maryport CA15 7BU Description Extension to dwelling Valid Date 01/9/2025 Status Dete...

Type House extension
Status Pending
Received Date not available

Reference FUL/2025/0052 Site address Langrigg Hall, Langrigg, Wigton, CA7 3LH Description Conversion of former Coach House to Agricultural W...

Type Agricultural
Status Pending
Received Date not available

Reference HOU/2025/0138 Site address 30, Croft Terrace, Aspatria, CA7 2AW Description First floor extension to rear of existing dwelling, al...

Type House extension
Status Pending
Received Date not available

Reference PIP/2025/0002 Site address Land adjacent to 10 Fernleigh Close, Tallentire, Cockermouth, CA13 0NS Description Planning in Principl...

Type New housing
Status Pending
Received Date not available

Reference FUL/2025/0086 Site address Orchard House, Newton Arlosh, Wigton, CA7 5ET Description Change of use from barn to domestic living ac...

Type Change of use
Status Pending
Received Date not available

Reference FUL/2025/0116 Site address Land adjacent to Bowness House Farm, Bowness-on-Solway, CA7 5AF Description Change of use of former mic...

Type Change of use
Status Pending
Received Date not available

Reference FUL/2025/0110 Site address Methodist Church, Seaton Road, Broughton Moor, CA15 8ST Description Conversion of former Church into 4 ...

Type Change of use
Status Pending
Received Date not available

Reference FUL/2024/0164 Site address Burnfoot Grange, Burnfoot, Wigton, CA7 9HL Description Change of use of store into a dwelling Valid Dat...

Type Change of use
Status Pending
Received Date not available

Reference FUL/2024/0249 Site address Old Dairy, Land Behind Former Social Club, West Street, Wigton, CA7 9NP Description Proposed conversion...

Type Change of use
Status Pending
Received Date not available

Reference FUL/2025/0114 Site address 24-26 Flat, Fisher Street, Workington, CA14 2EP Description Change of use and internal conversion of ex...

Type Change of use
Status Pending
Received Date not available

Reference FUL/2025/0109 Site address Land at Brough Hill House, Bolton Low Houses, CA7 8PF Description 5 new dwellings and associated infras...

Type New housing
Status Pending
Received Date not available

Reference FUL/2025/0083 Site address Barn Bank, Oughterside, Wigton, CA7 2PT Description Demolition of existing barn and rebuild on same foo...

Type New housing
Status Pending
Received Date not available

Reference FUL/2025/0099 Site address Good Companions Rest Home, Criffel Street, Silloth, CA7 4BT Description Demolition of rear wing and con...

Type House extension
Status Pending
Received Date not available

Reference HOU/2025/0112 Site address Lonsdale House, 72 Central Road, Dearham, Maryport CA15 7ER Description First floor extension and groun...

Type House extension
Status Pending
Received Date not available

Reference HOU/2025/0109 Site address Criffel View, 1 Watch HIll, Aspatria, Wigton CA7 3SB Description Replacement of existing single storey ...

Type House extension
Status Pending
Received Date not available

Reference FUL/2025/0091 Site address Bridge Hill House, Kirkbride, Wigton, CA7 5JB Description The conversion of the barn to dwelling Valid ...

Type Change of use
Status Pending
Received Date not available

Reference HOU/2025/0113 Site address Bank House, High Waverbridge, Wigton CA7 8PN Description Annex to Bank House to form gym and home offic...

Type House extension
Status Pending
Received Date not available

Reference FUL/2025/0073 Site address 30, Fisher Street, Workington, CA14 2ER Description Proposed change of use from retail to flat Valid Da...

Type Change of use
Status Pending
Received Date not available

Reference FUL/2025/0082 Site address The Forge, Abbeytown, Wigton, CA7 4SE Description Conversion of Joiners workshop into dwelling Valid Da...

Type Change of use
Status Pending
Received Date not available

Reference HOU/2025/0082 Site address 16, Cedar Crescent, Maryport, CA15 7DE Description Construction of New Side Extension to be used as a W...

Type House extension
Status Pending
Received Date not available

Reference HOU/2025/0061 Site address 17 Sunscales Avenue, Cockermouth, CA13 9DY Description Demolish flat roof garage to side and form 2 sto...

Type House extension
Status Pending
Received Date not available

Reference HOU/2025/0065 Site address 17 Fell View, Anthorn, Wigton, CA7 5AL Description Demolition of existing single storey side extension ...

Type House extension
Status Pending
Received Date not available

Reference FUL/2025/0054 Site address Intack, Wigton CA7 8LX Description Erection of agricultural workers dwelling and provision of package t...

Type Agricultural
Status Pending
Received Date not available

Reference HOU/2025/0050 Site address Rose Bank House, Crosby, Maryport, CA15 6RP Description Proposed side extension at first floor Valid Da...

Type House extension
Status Pending
Received Date not available

Reference HOU/2025/0073 Site address 76 Brigham Road, Cockermouth, CA13 0BS Description Erection of detached garage and home office Valid Da...

Type House extension
Status Pending
Received Date not available

Reference HOU/2025/0071 Site address 91 Brierydale, Salterbeck, Workington CA14 5LL Description Demolition of existing garage and erection o...

Type Demolition
Status Pending
Received Date not available

Reference HOU/2025/0070 Site address Hayrigg Farm, Pelutho, Silloth, Wigton, CA7 4LS Description Erection of two storey extension Valid Date...

Type House extension
Status Pending
Received Date not available

Reference HOU/2025/0068 Site address 24 Kiln Green Avenue, High Harrington, Workington, CA14 4LN Description Erection of single storey side ...

Type House extension
Status Pending
Received Date not available

Reference FUL/2025/0057 Site address Royal Victoria Hotel, John Street, Maryport, CA15 6JT Description Conversion of former Royal Victoria H...

Type Change of use
Status Pending
Received Date not available

Reference HOU/2025/0079 Site address 56 Elizabeth Street, Workington, CA14 4DD Description Erection of single storey rear extension and crea...

Type House extension
Status Pending
Received Date not available

Reference HOU/2025/0054 Site address Melbar House, Mawbray, Maryport, CA15 6QS Description Installation of dormer window to garage. Valid Da...

Type House extension
Status Pending
Received Date not available

Reference FUL/2024/0218 Site address Harbour Terrace, Town Quay, Workington, CA14 2HX Description Erection of 4 semi-detached houses. Valid ...

Type New housing
Status Pending
Received Date not available

Reference AGR/2025/0010 Site address Arkleby House, Arkleby CA7 2BP Description Construction of a portal framed building over the existing m...

Type Agricultural
Status Pending
Received Date not available

Reference HOU/2025/0056 Site address Fletcher House, South Street, Cockermouth CA13 9QP Description Erection of detached garage Valid Date 2...

Type Other
Status Pending
Received Date not available

Reference LBC/2025/0005 Site address Overgate, Mealsgate, Wigton, CA7 1LE Description Part Retrospective internal and external alterations t...

Type Listed building
Status Pending
Received Date not available

Reference HOU/2025/0032 Site address Overgate, Mealsgate, Wigton, CA7 1LE Description Part retrospective two storey extension, link extensio...

Type House extension
Status Pending
Received Date not available

Reference HOU/2025/0033 Site address Overgate, Mealsgate, Wigton, CA7 1LE Description Part Retrospective internal and external alterations t...

Type House extension
Status Pending
Received Date not available

Reference FUL/2025/0043 Site address North of East Farm, Southerfield, Abbeytown CA7 4TU Description Erection of multipurpose agricultural b...

Type Agricultural
Status Pending
Received Date not available

Reference FUL/2025/0006 Site address Sandy Lodge, Ryehills Road, Skinburness, Wigton, CA7 4QT Description Demolition of existing dwelling an...

Type New housing
Status Pending
Received Date not available

Reference HOU/2025/0037 Site address 16, Princess Avenue, Seaton, CA14 1DH Description Construction of new side extension to be used as a we...

Type House extension
Status Pending
Received Date not available

Reference FUL/2025/0035 Site address Holabie House, Broughton Cross, Cockermouth CA13 0TY Description Erection of self build dwelling (resub...

Type New housing
Status Pending
Received Date not available

Reference OUT/2024/0005 Site address Well Head Farm, Dean, Workington CA14 4TJ Description Outline consent for redevelopment of farm steadin...

Type New housing
Status Pending
Received Date not available

Reference FUL/2025/0023 Site address 21, Ellerbeck Lane, Workington, CA14 4HE Description Demolition of existing single storey 3 bedroom bun...

Type New housing
Status Pending
Received Date not available

Reference FUL/2025/0022 Site address Vacant Field, Adjacent to Lonning House, Threapland, Wigton, CA7 2HQ Description 3 bed-roomed bungalow ...

Type New housing
Status Pending
Received Date not available

Reference FUL/2025/0011 Site address Vacant Field, Adjacent to Lonning House, Threapland, Wigton, CA7 2HQ Description 4 Bed-roomed bungalow ...

Type New housing
Status Pending
Received Date not available

Reference HOU/2025/0016 Site address Barnyard Court. Main Street, Greysouthen, Cockermouth, CA13 0UL Description Lifting single storey rear ...

Type House extension
Status Pending
Received Date not available

Reference FUL/2024/0189 Site address Croftside, Mockerkin CA13 0ST Description Replacement of existing house with new dwelling on same footp...

Type Demolition
Status Pending
Received Date not available

Reference CLQ/2024/0002 Site address Barn at Underbrow Farm, Welton, Carlisle, CA5 7HW Description Prior notification for the conversion of ...

Type Change of use
Status Pending
Received Date not available

Reference HOU/2024/0142 Site address 15 Marsh drive, Workington, CA14 3FD Description Front porch extension and garage conversion Valid Date...

Type House extension
Status Pending
Received Date not available

Reference HOU/2024/0135 Site address Brandle How, Bridekirk CA13 0PE Description Replace flat garage roof with pitched roof, new porch to fr...

Type Other
Status Pending
Received Date not available

Reference FUL/2024/0175 Site address Holabie House, Broughton Cross, Cockermouth, CA13 0TY Description New self build dwelling Valid Date 05...

Type New housing
Status Pending
Received Date not available

Reference FUL/2024/0173 Site address Sycamore House, Kirkbride, Wigton, CA7 5JZ Description Change of Use of part existing commercial buildi...

Type Change of use
Status Pending
Received Date not available

Reference FUL/2024/0172 Site address Sycamore House, Kirkbride, Wigton, CA7 5JZ Description Erection of reception and store room (retrospect...

Type Commercial
Status Pending
Received Date not available

Reference FUL/2024/0171 Site address Sycamore House, Kirkbride, Wigton, CA7 5JZ Description Erection of Class B2 and Class E G (iii) as part...

Type Commercial
Status Pending
Received Date not available

Reference FUL/2024/0157 Site address Sycamore House, Kirkbride, Wigton, CA7 5JZ Description Erection of Class B2 and B8 Industrial building ...

Type Industrial
Status Pending
Received Date not available

Reference FUL/2024/0179 Site address 53, Syke Road, Wigton, CA7 9LT Description Demolition of existing bungalow and erection of replacement ...

Type Demolition
Status Pending
Received Date not available

Reference FUL/2024/0198 Site address Sun Inn, Central Road, Dearham, Maryport CA15 7HE Description Conversion of public house to single dwel...

Type Change of use
Status Pending
Received Date not available

Reference LBC/2024/0038 Site address 2, Bitterbeck Close, Cockermouth, CA13 9NN Description Installation of internal wall insulation to the ...

Type Other
Status Pending
Received Date not available

Reference FUL/2024/0185 Site address Land adjacent to Far View, Winscales, Workington, CA14 4UZ Description Erection of earth privacy bund o...

Type Other
Status Pending
Received Date not available

Reference REJ/2024/0003 Site address Workington Leisure Centre, Griffin Street, Workington CA14 2DX Description Prior notification for insta...

Type Renewable energy
Status Pending
Received Date not available

Reference FUL/2024/0182 Site address Royal Oak Inn, Curthwaite, Wigton, CA7 8BG Description Erection of entrance canopy and extensions to th...

Type Commercial
Status Pending
Received Date not available

Reference REAR/2024/0015 Site address 5 Meadow Close, Maryport CA15 7AS Description Prior notification application for a single storey rear ...

Type House extension
Status Pending
Received Date not available

Reference HOU/2024/0151 Site address Railway Cottage, Curthwaite, Wigton, CA7 8BQ Description Extension existing dwelling house Valid Date 2...

Type House extension
Status Pending
Received Date not available

Reference FUL/2024/0200 Site address Cowslow Cottage, Cowslow, Westward, Wigton CA7 8ND Description Change of use from agricultural land to ...

Type Change of use
Status Pending
Received Date not available

Reference HOU/2024/0166 Site address 27 Edinburgh Road, Maryport, CA15 8ER Description Proposed roof extension to provide rear dormer Valid ...

Type House extension
Status Pending
Received Date not available

Reference FUL/2024/0209 Site address Yew Tree House, Broughton Cross, Cockermouth CA13 0TY Description Alterations and extensions to first f...

Type House extension
Status Pending
Received Date not available

Reference FUL/2024/0192 Site address Land South of Low Road, Cockermouth Description Erection of 47 Residential dwellings Valid Date 15/10/2...

Type New housing
Status Pending
Received Date not available

Reference HOU/2024/0152 Site address Tamsin House, Blencogo CA7 0BZ Description First floor extension Valid Date 16/10/2024 Status Determine...

Type House extension
Status Pending
Received Date not available

Reference FUL/2024/0214 Site address Blencogo House, Blencogo, CA7 0BZ Description Proposed roof extension to existing cattle loose house. V...

Type Agricultural
Status Pending
Received Date not available

Reference FUL/2024/0231 Site address The New Bookshop, 42-44 Main Street, Cockermouth, CA13 9LQ Description Change of use of first and secon...

Type Change of use
Status Pending
Received Date not available

Reference OUT/2024/0002 Site address Land Located Between Allhallows Church and Leeside, Fletchertown, Wigton, CA7 1BS Description Outline p...

Type New housing
Status Pending
Received Date not available

Reference AGR/2024/0047 Site address Gamelsby Farm, Gamelsby, CA7 0NX Description Prior notification for a cattle housing shed with an outsi...

Type Agricultural
Status Pending
Received Date not available

Reference FUL/2024/0183 Site address Land Adjoining 14 Belle Isle Street, Workington, CA14 2XQ Description Demolition of existing workshop a...

Type Demolition
Status Pending
Received Date not available

Reference HOU/2024/0184 Site address 49 Broadacres, High Harrington, Workington, CA14 5RL Description Proposed rear single storey extension ...

Type House extension
Status Pending
Received Date not available

Reference FUL/2024/0238 Site address Waverbank Farm, Waverbank, CA7 8PN Description New Calf Housing Valid Date 04/12/2024 Status Determined...

Type Agricultural
Status Pending
Received Date not available

Reference FUL/2024/0233 Site address Gamelsby Farm, Gamelsby, Wigton CA7 0NX Description Cattle housing shed with outside slatted area with ...

Type Agricultural
Status Pending
Received Date not available

Reference HOU/2024/0178 Site address 278 Skinburness Road, Skinburness, Wigton CA7 4QU Description Single storey rear extensions and new por...

Type House extension
Status Pending
Received Date not available

Reference HOU/2024/0177 Site address 38 Highmoor Park, Wigton CA7 9NA Description Erection of a single story extension along the side of the...

Type House extension
Status Pending
Received Date not available

Reference HOU/2024/0188 Site address 26, Limetree Crescent, Cockermouth, CA13 9HW Description Proposed extensions and alterations to existin...

Type House extension
Status Pending
Received Date not available

Reference FUL/2024/0243 Site address Waverbank Farm, Waverton, Wigton, CA7 8PN Description New calf housing building Valid Date 16/12/2024 S...

Type Agricultural
Status Pending
Received Date not available

Reference FUL/2024/0244 Site address The Paper Shop, 57 Main Street, Cockermouth, CA13 9JS Description Change of use from flat to shop on th...

Type Change of use
Status Pending
Received Date not available