← Cumberland Council

Status

Pending Change of use
Received
Not recorded
New homes
0

Full proposal

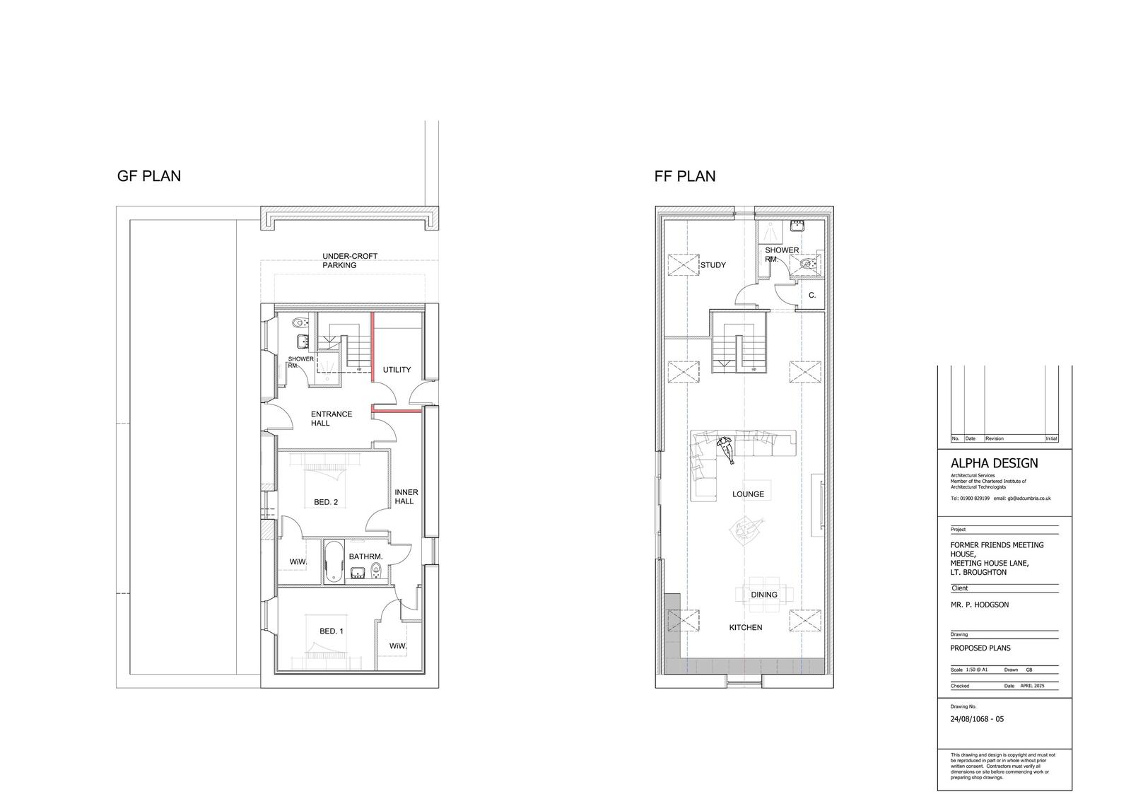
Reference FUL/2025/0074 Site address Friends Former Meeting House, Meeting House Lane, Broughton, CA13 0YQ Description Change of Use of former meeting house to dwelling Valid Date 27/5/2025 Status Under Consultation Decision

Documents

Uncategorised
Archived · Original link
Uncategorised
Archived · Original link
Uncategorised
Archived · Original link
Uncategorised
Archived · Original link
Uncategorised
Archived · Original link
Uncategorised
Archived · Original link
Uncategorised
Archived · Original link
Uncategorised
Archived · Original link
Uncategorised
Archived · Original link
Uncategorised
Archived · Original link
Uncategorised
Archived · Original link
Uncategorised
Archived · Original link
Uncategorised
Archived · Original link
Uncategorised
Archived · Original link

Have your say

Your comment matters. Councils must consider every representation that raises material planning considerations.

Write a comment