← Cumberland Council

Status

Pending House extension
Received
Not recorded
New homes
0

Full proposal

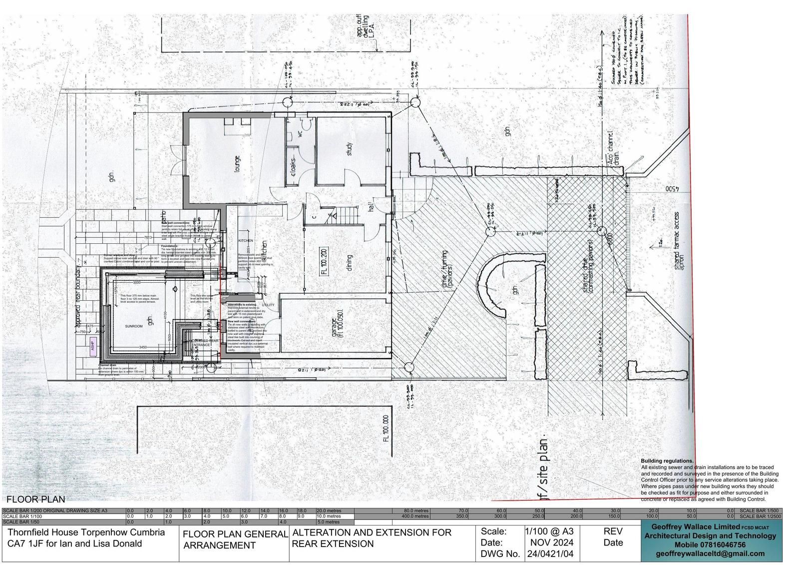
Reference HOU/2025/0008 Site address Thornfield House, Torpenhow, CA7 1JF Description Alteration and extension for rear sunroom and installation of air source heat pump to the rear Valid Date 16/1/2025 Status Determined Decision Granted with Conditions

Documents

Uncategorised
Archived · Original link
Uncategorised
Archived · Original link
Uncategorised
Archived · Original link
Uncategorised
Archived · Original link
Uncategorised
Archived · Original link
Uncategorised
Archived · Original link
Uncategorised
Archived · Original link
Uncategorised
Archived · Original link
Uncategorised
Archived · Original link

Have your say

Your comment matters. Councils must consider every representation that raises material planning considerations.

Write a comment