← Cumberland Council

Status

Pending House extension
Received
Not recorded
New homes
0

Full proposal

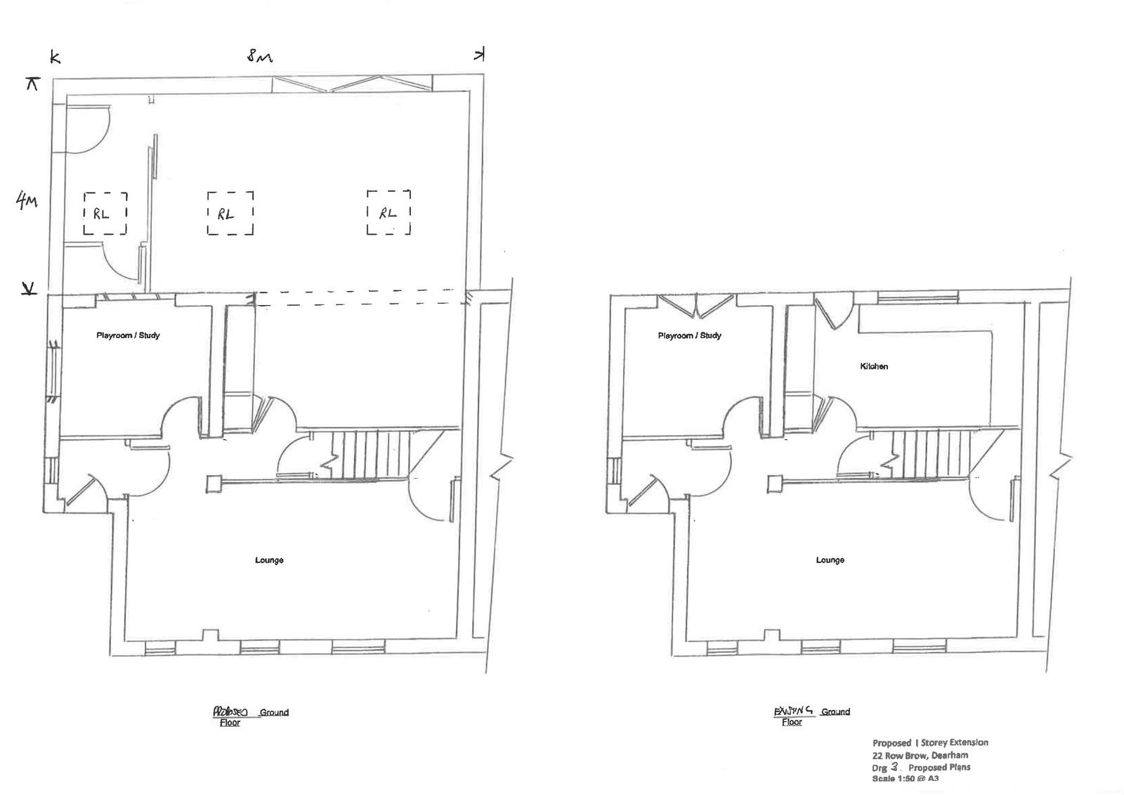
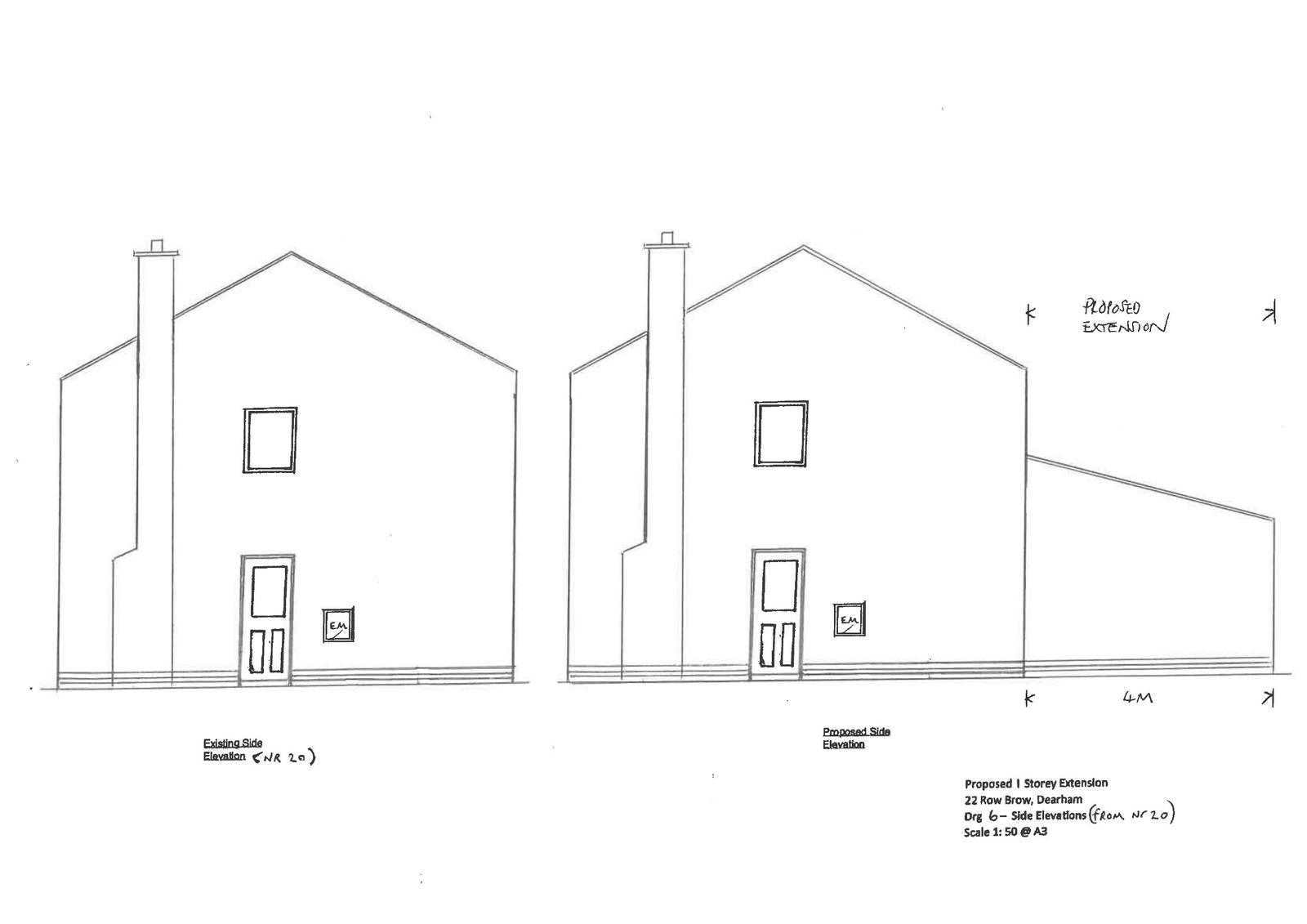
Reference HOU/2025/0010 Site address 22 Row Brow Park, Dearham, Maryport, CA15 7JU. Description Single storey extension to the rear of the house Valid Date 30/1/2025 Status Determined Decision Granted with Conditions

Documents

Uncategorised
Archived · Original link
Uncategorised
Archived · Original link
Uncategorised
Archived · Original link
Uncategorised
Archived · Original link
Uncategorised
Archived · Original link
Uncategorised
Archived · Original link
Uncategorised
Archived · Original link
Uncategorised
Archived · Original link
Uncategorised
Archived · Original link
Uncategorised
Archived · Original link

Have your say

Your comment matters. Councils must consider every representation that raises material planning considerations.

Write a comment