← Cumberland Council

Status

Pending House extension
Received
Not recorded
New homes
0

Full proposal

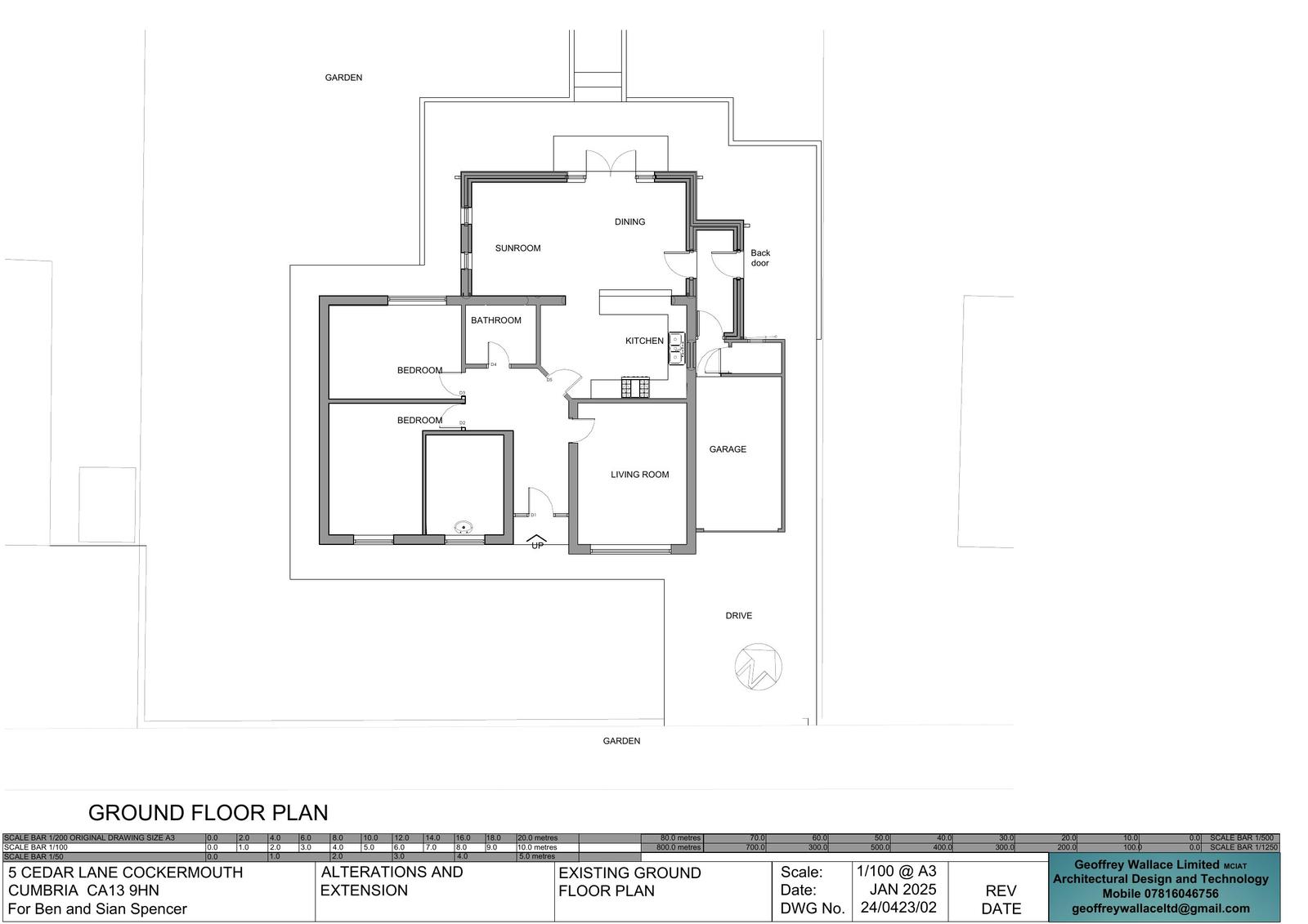
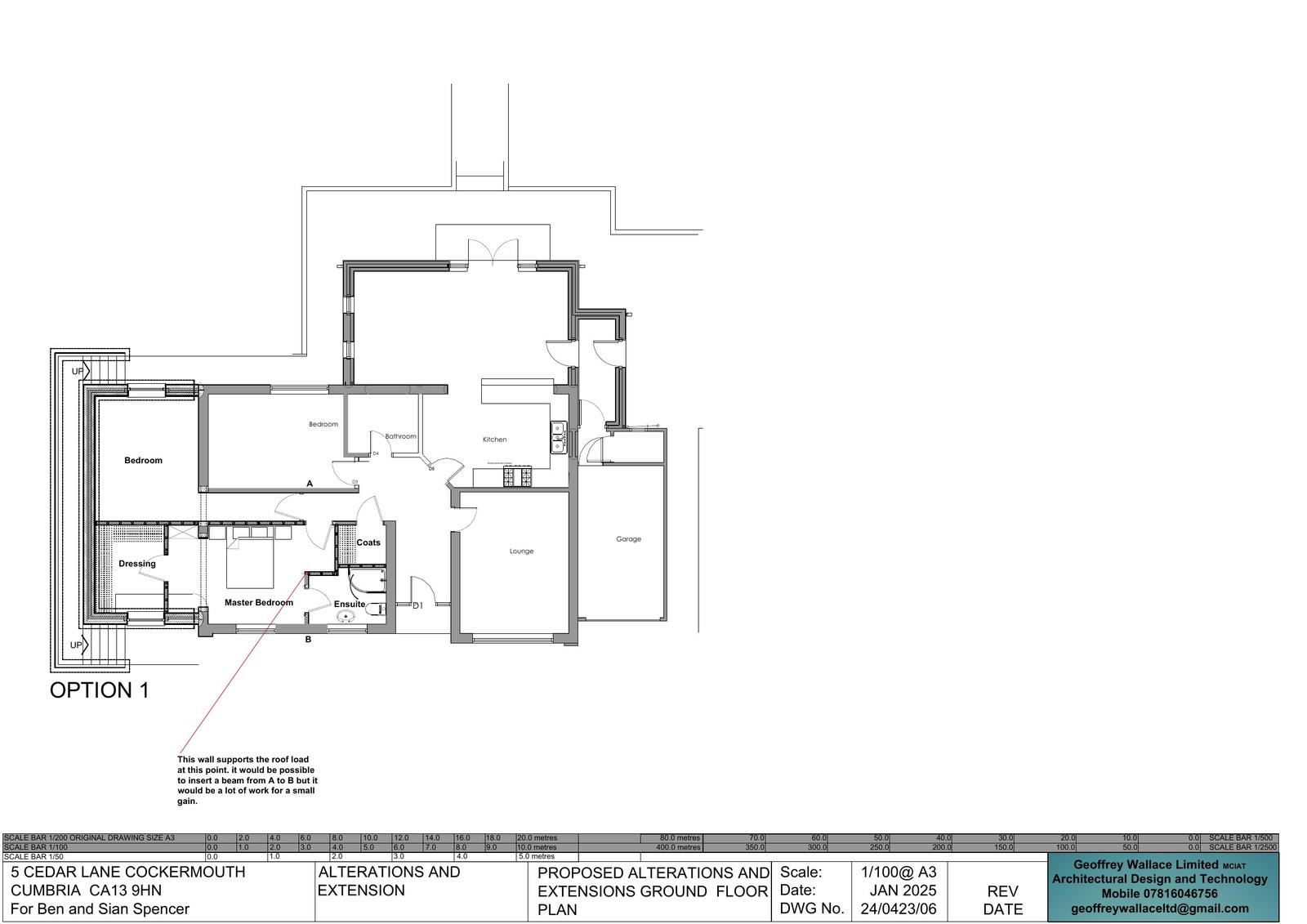
Reference HOU/2025/0084 Site address 5 Cedar Lane, Cockermouth CA13 9HN Description Single storey side extension and internal alterations to single storey bungalow Valid Date 02/5/2025 Status Determined Decision Granted with Conditions

Documents

Uncategorised
Archived · Original link
Uncategorised
Archived · Original link
Uncategorised
Archived · Original link
Uncategorised
Archived · Original link
Uncategorised
Archived · Original link
Uncategorised
Archived · Original link
Uncategorised
Archived · Original link
Uncategorised
Archived · Original link
Uncategorised
Archived · Original link
Uncategorised
Archived · Original link
Uncategorised
Archived · Original link
Uncategorised
Archived · Original link

Have your say

Your comment matters. Councils must consider every representation that raises material planning considerations.

Write a comment