← Cumberland Council

Status

Pending House extension
Received
Not recorded
New homes
0

Full proposal

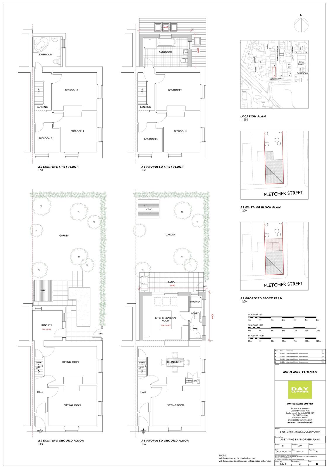
Reference HOU/2026/0015 Site address 8 Fletcher Street, Cockermouth CA13 0HA Description Demolition of existing two storey rear extension and construction of a replacement two storey rear extension to provide enlarged kitchen, bathroom and shower room Valid Date 10/2/2026 Status Under Consultation Decision

Documents

Uncategorised
Archived · Original link
Uncategorised
Archived · Original link
Uncategorised
Archived · Original link
Uncategorised
Archived · Original link
Uncategorised
Archived · Original link
Uncategorised
Archived · Original link

Have your say

Your comment matters. Councils must consider every representation that raises material planning considerations.

Write a comment