← Cumberland Council

Status

Pending House extension
Received
Not recorded
New homes
0

Full proposal

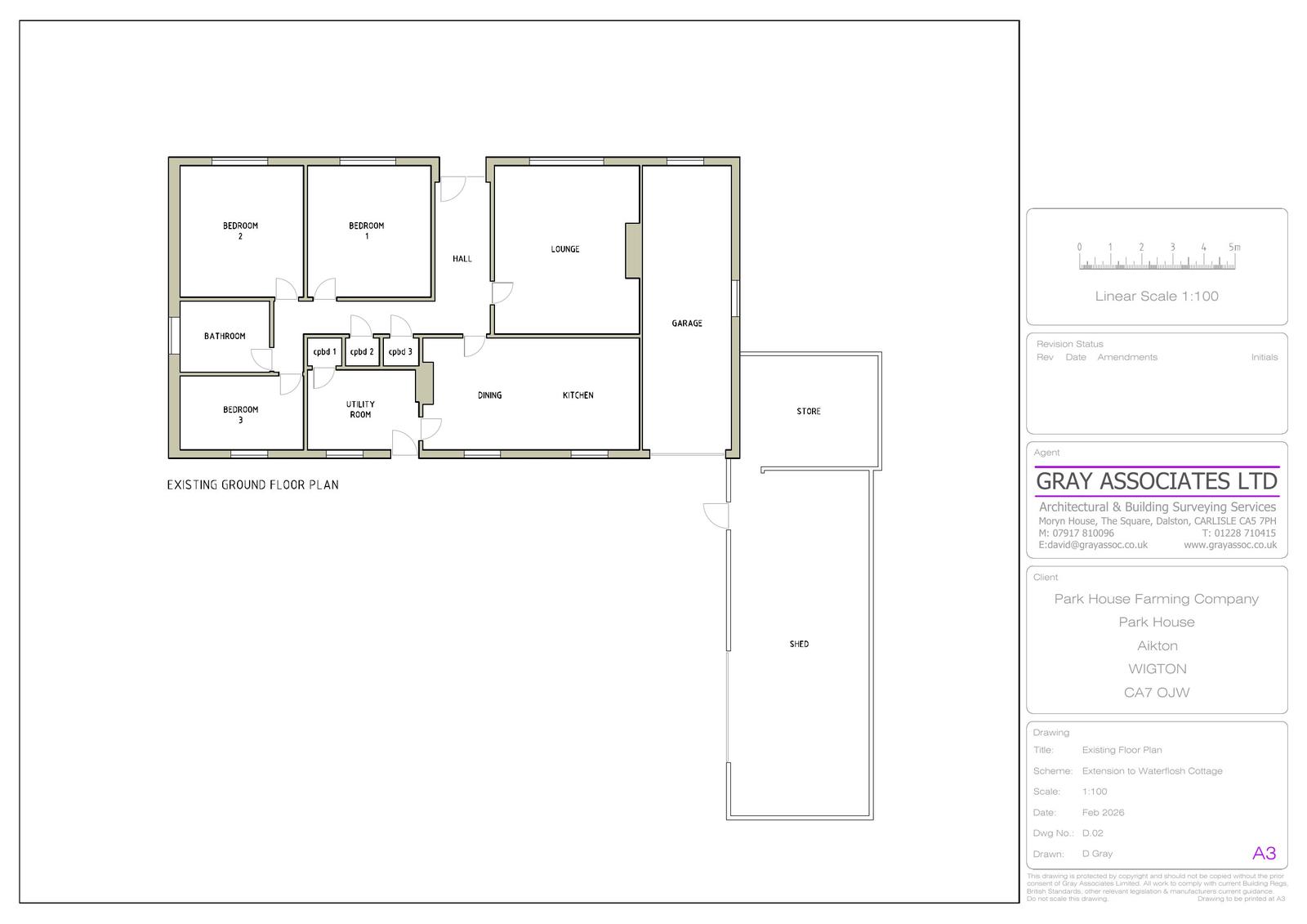
Reference HOU/2026/0022 Site address Water Flosh Bungalow, Aikton, CA7 0JL Description Demolition of attached shed and erection of single storey extension to existing bungalow Valid Date 16/2/2026 Status Under Consultation Decision

Documents

Uncategorised
Archived · Original link
Uncategorised
Archived · Original link
Uncategorised
Archived · Original link
Uncategorised
Archived · Original link
Uncategorised
Archived · Original link
Uncategorised
Archived · Original link

Have your say

Your comment matters. Councils must consider every representation that raises material planning considerations.

Write a comment