← Cumberland Council

Status

Pending House extension
Received
Not recorded
New homes
0

Full proposal

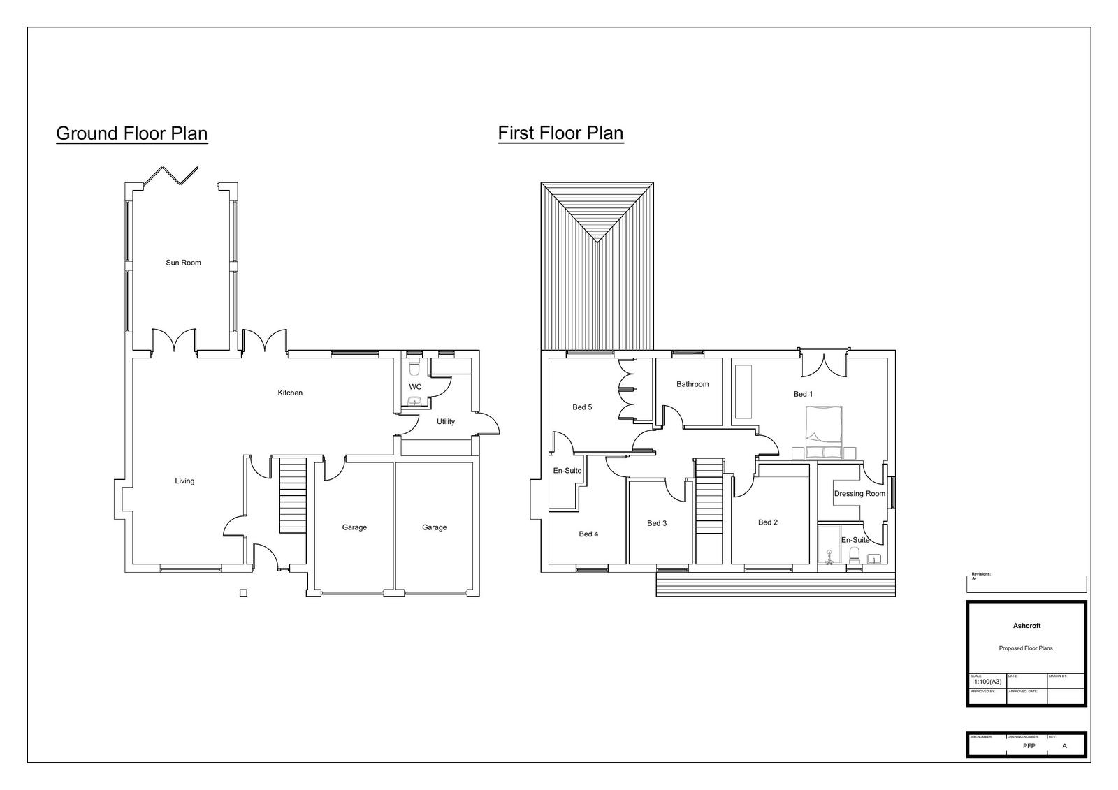
Reference HOU/2026/0024 Site address Ashcroft, Oulton, Wigton, CA7 0NN Description Double storey extension to the front and back of the house, above existing garage. Valid Date 17/2/2026 Status Under Consultation Decision

Documents

Uncategorised
Archived · Original link
Uncategorised
Archived · Original link
Uncategorised
Archived · Original link
Uncategorised
Archived · Original link
Uncategorised
Archived · Original link
Uncategorised
Archived · Original link
Uncategorised
Archived · Original link

Have your say

Your comment matters. Councils must consider every representation that raises material planning considerations.

Write a comment