← Dacorum Borough Council

Status

Awaiting final decision Change of use
Received
09 Aug 2024
New homes
0

Full proposal

Conversion and alteration of part of existing horticultural storage barn to create associated residential dwelling

Documents

Applicationformredacted
Application Form Redacted
Not yet archived · Original link
Block Plan of the Site
Block Plan of the Site
Not yet archived · Original link
Building assessment
Additional Information
Not yet archived · Original link
Existing and proposed
Roof Plan
Not yet archived · Original link
Existing Elevations
Existing Elevations
Not yet archived · Original link
Existing Floor Plans
Existing Floor Plans
Not yet archived · Original link
Site and Block Plans
Archived · Original link
Location plan
Amended Plans and Drawings
Not yet archived · Original link
Location plan
Superseded Plans and Drawings
Not yet archived · Original link
Noise Impact Assessment
Noise Impact Assessment
Not yet archived · Original link
Planning statement
Planning Statement
Not yet archived · Original link
Preliminary risk assessment
Additional Information
Not yet archived · Original link
Proposed Elevations
Proposed Elevations
Not yet archived · Original link
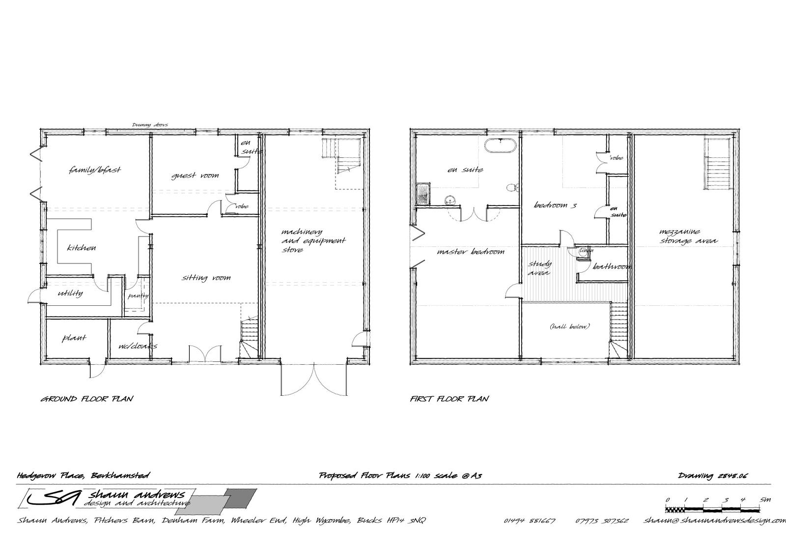
Proposed Floor Plans
Archived · Original link

Have your say

Your comment matters. Councils must consider every representation that raises material planning considerations.

Write a comment