← All councils

Recent applications

The most recent records we hold for this council (up to 200).

Change of use of first and second floor offices to create four one-bedroom flats.

Type Change of use
Status Awaiting final decision
Received 01 Apr 2025
Plan thumbnail

Conversion of existing building from Class E to Class C3. Partial demolition of rear single storey extension. Internal reconfigurations.

Type Change of use
Status Awaiting final decision
Received 22 Jan 2026
Plan thumbnail

Conversion of existing building from Class E to Class C3. Partial demolition of rear single storey extension. Internal reconfigurations.

Type Listed building
Status Awaiting final decision
Received 22 Jan 2026
Plan thumbnail

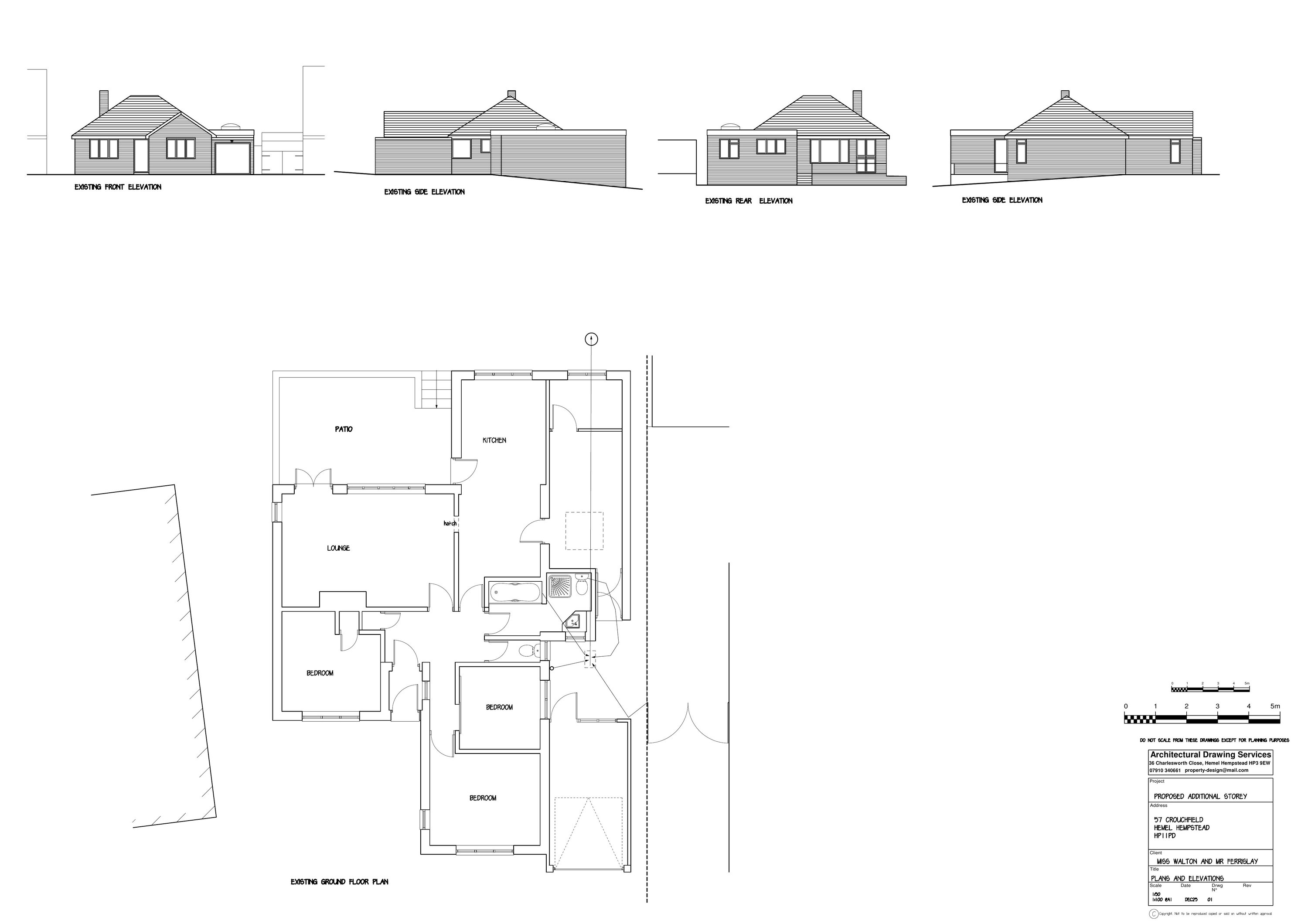
Demolition of detached garage. Construction of front,side and rear extensions. Roof raised to create extra rooms.

Type House extension
Status With planning case officer
Received 28 Jan 2026
Plan thumbnail

Demolition of garage and new side extension, new first floor with raised roof over new porch with altered window opening

Type House extension
Status With planning case officer
Received 28 Jan 2026
Plan thumbnail

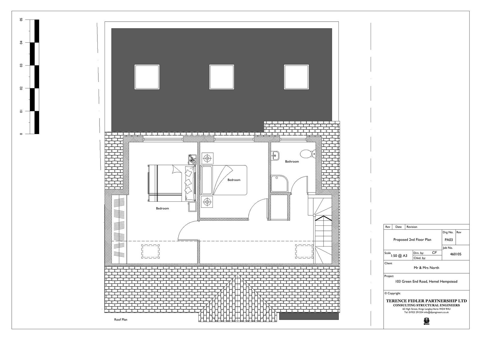
Upward extension to create a 3 storey dwelling

Type House extension
Status With planning case officer
Received 28 Jan 2026
Plan thumbnail

Single storey rear and side extensions. Rear Terrace. Rear dormer. Rooflights to front elevation.

Type House extension
Status With planning case officer
Received 27 Jan 2026
Plan thumbnail

Construction of 3 rear dormer windows in the rear elevation of the property in order to accommodate an additional bedroom, ensuite and stair...

Type House extension
Status With planning case officer
Received 26 Jan 2026
Plan thumbnail

Ground floor rear infill extension, 1st floor front and rear extensions with raising of the ridge to the main roof.

Type House extension
Status With planning case officer
Received 26 Jan 2026
Plan thumbnail

Change of use from Offices (Use Class E) to Residential (Use Class C3), to provide 16 self-contained apartments at first, second and third f...

Type Change of use
Status Awaiting final decision
Received 21 Jan 2026
Plan thumbnail

Demolition of existing garage. Construction of new garage with first floor extension above. Single-storey ground floor extension to rear ele...

Type House extension
Status With planning case officer
Received 08 Jan 2026
Plan thumbnail

Demolition of existing commercial/storage buildings and redevelopment with 9 dwellings and associated access (Outline).

Type New housing
Status With planning case officer
Received 02 Dec 2025
Plan thumbnail

Loft Conversion with roof altered from hipped roof to gable end with new dormer and rooflights.

Type House extension
Status Awaiting final decision
Received Last month
Plan thumbnail

Conversion of loft to create a bedroom and a shower room, including two new dormers and a conservation rooflight and internal alterations to...

Type House extension
Status With planning case officer
Received Last month
Plan thumbnail

Two storey side extension with ground floor annexe for assisted living.

Type House extension
Status With planning case officer
Received Last month
Plan thumbnail

Demolition of rear single storey extension. New single storey rear extension and part 1st Floor extension.

Type House extension
Status With planning case officer
Received Last month
Plan thumbnail

Demolition of rear outriggers.New single storey ground floor extension and new roof to part garage.

Type House extension
Status With planning case officer
Received Last month
Plan thumbnail

Demolition of existing garage and construction of new double garage and first floor roof extension with front and rear dormers. Roof modific...

Type House extension
Status With planning case officer
Received Last month
Plan thumbnail

Two storey side and rear extension, single storey front and rear extensions

Type House extension
Status With planning case officer
Received Last month
Plan thumbnail

Loft conversion rear facing dormer roof, two front facing velux roof light, two side facing velux roof lights and one rear facing roof light

Type House extension
Status With planning case officer
Received Last month
Plan thumbnail

Demolition of two existing side extensions. Two Storey side Extension to the East, Two storey side extension to the West, single storey gara...

Type House extension
Status With planning case officer
Received Last month
Plan thumbnail

Single storey rear extension and conversion of rear garage to habitable room

Type House extension
Status With planning case officer
Received Last month
Plan thumbnail

Demolition of the Existing Car Repair Workshop and Construction of a Retail Unit, Parking and Associated Works.

Type Commercial
Status With planning case officer
Received Last month
Plan thumbnail

Construction of two single-storey rear extensions at ground floor level to increase retail floor area

Type Commercial
Status With planning case officer
Received Last month
Plan thumbnail

Removal of existing small single storey rear extension. Construction of single storey rear extension and side extensions.

Type House extension
Status With planning case officer
Received Last month
Plan thumbnail

Loft conversion to create second floor accommodation with a small rear dormer and rooflights to the front and rear. Existing garage converte...

Type House extension
Status With planning case officer
Received Last month
Plan thumbnail

Internal and external alterations to a Grade II listed dwelling, limited to the existing mid-20th-century kitchen extension.

Type Listed building
Status With planning case officer
Received Last month
Plan thumbnail

The construction of a single storey contemporary garden building to be used as a home office.

Type House extension
Status With planning case officer
Received Last month
Plan thumbnail

Single storey garage conversion with side extension, reposition of front entrance door, alterations to windows and doors positions and new t...

Type House extension
Status With planning case officer
Received Last month
Plan thumbnail

First floor side extension. Single storey rear extension. Garage conversion.

Type House extension
Status With planning case officer
Received Last month
Plan thumbnail

Subdivision of existing dwelling to form a separate 1 bedroom house. Rear extension and dropped kerb

Type New housing
Status With planning case officer
Received Last month
Plan thumbnail

Full planning application for the demolition of existing buildings and structures and construction of 6 dwellinghouses with associated acces...

Type New housing
Status With planning case officer
Received Last month
Plan thumbnail

Change of use of the ground floor of The Chapel from Class E (commercial gym) to Class C3 (dwellinghouse), resulting in a single dwelling oc...

Type Change of use
Status With planning case officer
Received Last month
Plan thumbnail

Installation of solar panels system on the roof of the Annex to Pipers Cottage. Housing a storage battery and electric car charger in an ext...

Type Renewable energy
Status With planning case officer
Received Last month
Plan thumbnail

Addition of porch and insertion of 2 doorways. Conversion of dwelling to up to 2 dwellings and an up to 8-bed HMO.

Type Change of use
Status With planning case officer
Received Last month
Plan thumbnail

Demolition of studio and replacement with single-storey private dwelling.

Type New housing
Status Awaiting final decision
Received 23 Apr 2025
Plan thumbnail

Front porch, two storey side extensions and single storey rear extension with landscaping adjustments

Type House extension
Status With planning case officer
Received Last month
Plan thumbnail

Alterations to an existing annexe storage building to form a residential annexe ancillary to the existing dwelling house

Type House extension
Status With planning case officer
Received Last month
Plan thumbnail

Conversion of roof space into habitable room with new rear flat roof dormer.

Type House extension
Status With planning case officer
Received Last month
Plan thumbnail

Rear dormer extension to existing dwellinghouse and associated internal works. Three roof lights.

Type House extension
Status With planning case officer
Received Last month
Plan thumbnail

New single storey self build dwelling house.

Type New housing
Status With planning case officer
Received Last month
Plan thumbnail

Alterations and extensions to dwelling house

Type House extension
Status With planning case officer
Received Last month
Plan thumbnail

Retention of existing public house and construction of one three-bedroom dwelling (Use Class C3) on land to the side of the existing public ...

Type New housing
Status With planning case officer
Received Last month

Demolition of existing dwelling, construction of replacement dwelling (Self build).

Type Demolition
Status With planning case officer
Received 04 Feb 2026
Plan thumbnail

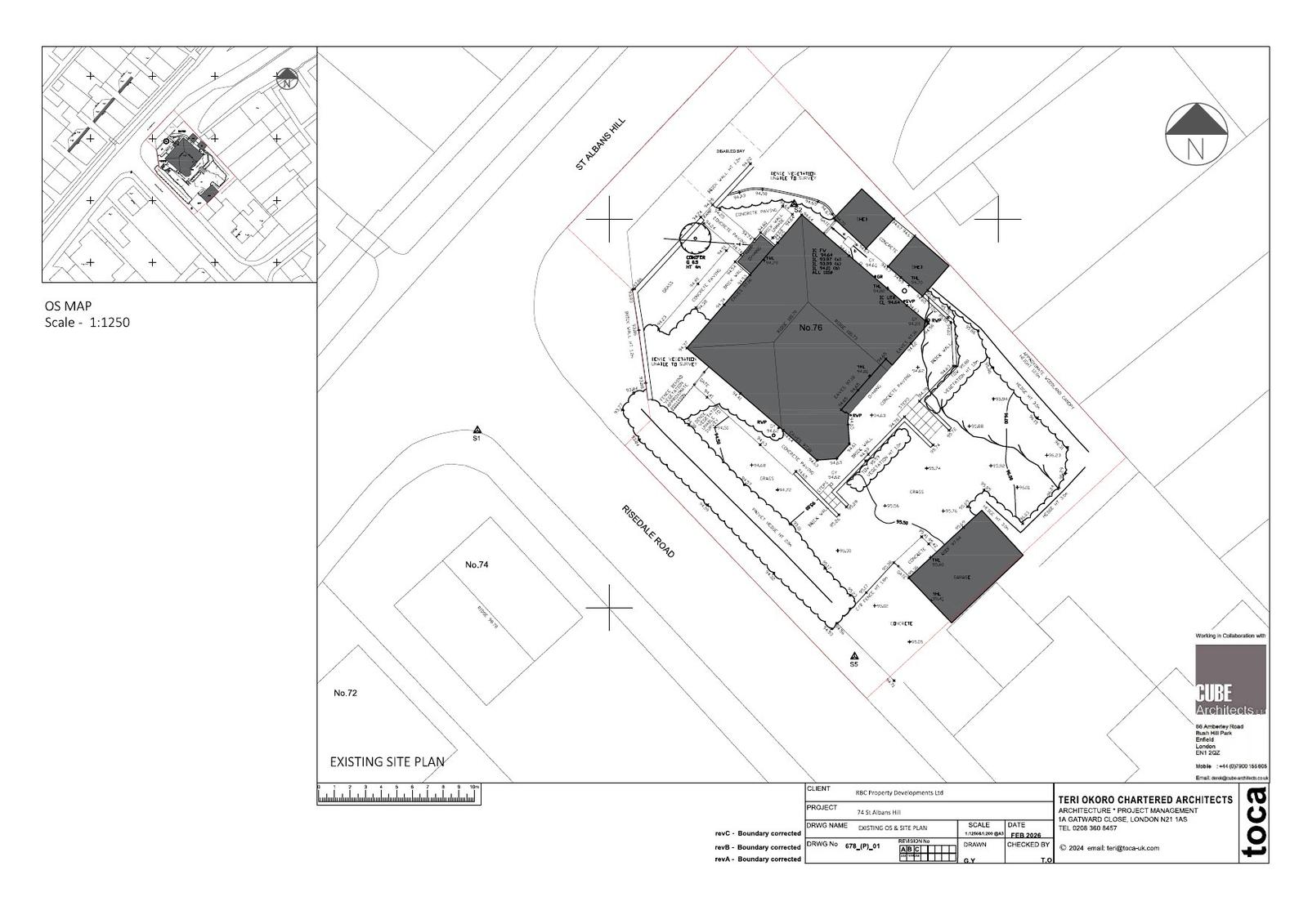
Conversion of the detached garage to habitable accommodation and the construction of a glazed link extension connecting it to the main dwell...

Type House extension
Status Awaiting final decision
Received 02 Feb 2026
Plan thumbnail

Demolition of bungalow and construction of five dwellings.

Type New housing
Status Awaiting final decision
Received 05 Mar 2025
Plan thumbnail

Use of C3 (a) dwelling house as C2 children's home for up to 3 children aged between 11 and 16 with two staff members on shift 24 hours a da...

Type Change of use
Status Awaiting final decision
Received 23 Jan 2026

Construction of new 2 bedroom dwelling attached to existing flats 24/24a. Single storey rear extension and alterations to windows at no.24

Type New housing
Status Awaiting final decision
Received 16 Jan 2026

Conversion of 4 offices into 1 X 3 bedroom flat.

Type Change of use
Status With planning case officer
Received 17 Dec 2025
Plan thumbnail

Demolition and redevelopment to provide 130 residential units and a community hub with landscaping and parking.

Type New housing
Status Awaiting final decision
Received 28 Nov 2025
Plan thumbnail

Construction of one dwelling and associated works.

Type New housing
Status Awaiting final decision
Received 10 Nov 2025

Construction of four dwellings following the demolition of the existing nursery buildings.

Type New housing
Status Awaiting final decision
Received 07 Nov 2025
Plan thumbnail

Demolition of existing storage buildings and redevelopment with a self-build dwelling and ancillary garage store/workshop

Type New housing
Status Awaiting final decision
Received 05 Nov 2025
Plan thumbnail

Proposed extensions and alterations including change of use of No.58 High Street to dwellinghouse.

Type Change of use
Status Awaiting final decision
Received 22 Oct 2025
Plan thumbnail

Proposed self-build dwelling and associated parking and landscaping, and alterations to the existing dwelling

Type New housing
Status Awaiting final decision
Received 21 Oct 2025

Change from a single dwelling house (Class C3) to a single 6 person HMO (Class C4)

Type Change of use
Status With planning case officer
Received 17 Oct 2025

Convert ground floor and basement to 2x two‑bed flats, 1x one‑bed flat and safety deposit business.

Type Change of use
Status With planning case officer
Received 07 Oct 2025

New 2 bed dwellinghouse, with 1 parking space and a dropped kerb

Type New housing
Status Awaiting final decision
Received 29 Jul 2025
Plan thumbnail

Construction of a self build dwelling

Type New housing
Status Awaiting final decision
Received 08 Sep 2025

Change of use of equestrian building to 3 bedroom dwelling and removal of associated equestrian storage.

Type Change of use
Status With planning case officer
Received 22 Sep 2025

Demolition of existing agricultural buildings. Construction of 2, four bedroom detached dwellings with garaging, landscaping and new access.

Type New housing
Status With planning case officer
Received 22 Sep 2025

Demolition of existing garage and viewing deck. Construction of a 1- bedroom dwelling (self build)

Type New housing
Status Awaiting final decision
Received 19 Sep 2025
Plan thumbnail

Construction of four two‑bedroom dwellings with associated parking and amenity space.

Type New housing
Status Awaiting final decision
Received 31 Jul 2025
Plan thumbnail

Material change of use to a residential caravan site, for occupation by Gypsies/Travellers, comprising the siting of 2 static caravans and a...

Type Change of use
Status With planning case officer
Received 27 Dec 2024
Plan thumbnail

Conversion and alteration of part of existing horticultural storage barn to create associated residential dwelling

Type Change of use
Status Awaiting final decision
Received 09 Aug 2024

Change of use of land to provide the standing for three residential static caravans and up to two touring caravans on an existing hardstandi...

Type Change of use
Status Awaiting final decision
Received 29 Jul 2025
Plan thumbnail

Two three-bedroom dwellings to rear of High Street with parking and landscaping.

Type New housing
Status Awaiting final decision
Received 11 Jul 2025
Plan thumbnail

New detached guest block. Internal alterations to Harcourt Wing Annex. Demolition of Paddock House, leisure building, and external stairs. N...

Type Commercial
Status Awaiting final decision
Received 07 Jul 2025

Removal of section of fence and kerb, and addition of section of hardstanding and gate to facilitate the change of use of the existing drive...

Type Change of use
Status Awaiting final decision
Received 27 Jun 2025

Siting of two static caravans, storage of two touring caravans, and access works.

Type Change of use
Status Awaiting final decision
Received 14 Jul 2025

Part two-storey/part first-floor extension and conversion into two three-bedroom dwellings.

Type New housing
Status Awaiting final decision
Received 14 Jul 2025
Plan thumbnail

Construction of six custom-build dwellings.

Type New housing
Status Awaiting final decision
Received 26 Jun 2025
Plan thumbnail

Five new houses with parking, access, and bike storage.

Type New housing
Status Awaiting final decision
Received 03 Jun 2025

Proposed change of use from offices(use class E) to residential dwelling(use class C3).

Type Change of use
Status With planning case officer
Received 01 Apr 2025

Change of use from offices to residential.

Type Change of use
Status With planning case officer
Received 01 Apr 2025

Demolition of commercial units and construction of three new terrace houses plus extension to existing property.

Type New housing
Status With planning case officer
Received 17 Apr 2025
Plan thumbnail

Construction of two self-build two-bedroom dwellings.

Type New housing
Status Awaiting final decision
Received 17 Apr 2025

Develop 90 age-restricted dwellings and a 75-bed care home on site.

Type New housing
Status Unknown
Received 10 Apr 2025
Plan thumbnail

Retrospective conversion of former farm buildings into residential dwellings with alterations.

Type Listed building
Status Awaiting final decision
Received 07 Apr 2025
Plan thumbnail

Construction of two detached dwellings with access, parking, gardens and orchard.

Type New housing
Status Awaiting final decision
Received 13 Feb 2025

Hotel guest accommodation block, leisure/events building, demolitions, parking alterations, landscaping and EV charging installation.

Type Commercial
Status Unknown
Received 04 Apr 2025

Conversion of garage block to create a one bedroom residential unit.

Type Change of use
Status Awaiting final decision
Received 31 Mar 2025
Plan thumbnail

Construction of two detached houses with associated access, parking and landscaping.

Type New housing
Status Awaiting final decision
Received 27 Mar 2025
Plan thumbnail

Redevelopment to provide ground-floor commercial uses and new residential dwellings on upper floors.

Type Other
Status Awaiting final decision
Received 18 Mar 2025
Plan thumbnail

Demolition and redevelopment for B8 storage/distribution with ancillary offices, parking, servicing and landscaping.

Type Industrial
Status Awaiting final decision
Received 10 Mar 2025

Two-storey two-bedroom dwelling with parking and landscaping.

Type New housing
Status Awaiting final decision
Received 25 Feb 2025
Plan thumbnail

Construction of two detached residential dwellings.

Type New housing
Status Awaiting final decision
Received 24 Feb 2025
Plan thumbnail

Retention: ground floor as one self-contained flat and upper floors as a C4 HMO.

Type Change of use
Status Awaiting final decision
Received 11 Feb 2025

Demolition and construction of up to 150 homes, plus education facility, community building and open space.

Type New housing
Status With planning case officer
Received 22 Jan 2025
Plan thumbnail

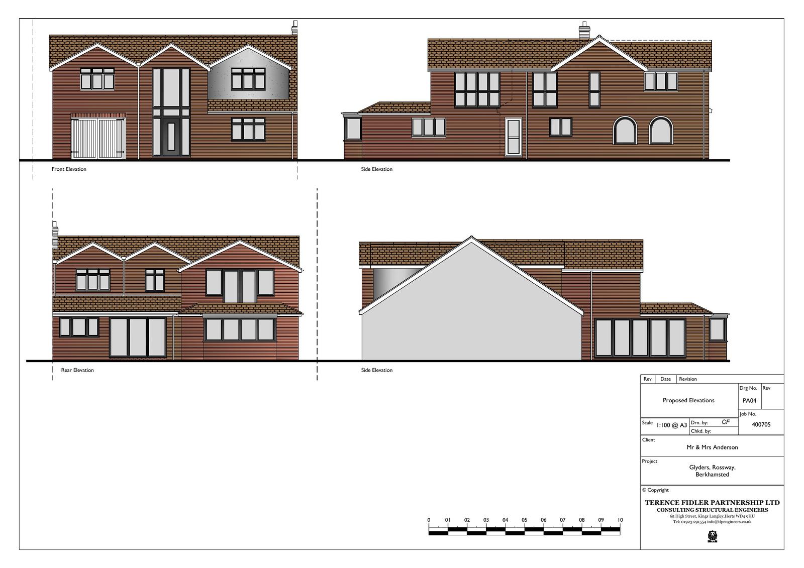
Proposed single storey front bay extension, 2 storey side extension and part single storey/part 2 storey rear extension to semi-detached cha...

Type House extension
Status With planning case officer
Received Last month

Change of use of existing agricultural stable block into residential dwelling

Type Change of use
Status Awaiting final decision
Received 03 Sep 2024

Increase in ridge height, insertion of dormer window, alteration to openings, new landscaping and change of use to a Class C3 dwelling.

Type House extension
Status Awaiting final decision
Received 02 Dec 2024

Change of use from C3 to C2 to allow for residential social care for up to 3 adults.

Type Change of use
Status Awaiting final decision
Received 23 Dec 2024
Plan thumbnail

Outline planning application for development (including demolition of existing structures) and erection of a residential led, mixed use deve...

Type New housing
Status Awaiting final decision
Received 17 Dec 2024
Plan thumbnail

Construction of dwelling house

Type New housing
Status With planning case officer
Received Last month
Plan thumbnail

Proposed side and rear extensions together with other alterations to existing dwelling

Type House extension
Status With planning case officer
Received Last month
Plan thumbnail

Internal and external alterations to a Grade II listed dwelling, limited to the existing mid-20th-century kitchen extension.

Type Listed building
Status With planning case officer
Received Last month
Plan thumbnail

Conversion of the existing building to provide 2 no. self-contained residential units (Class C3)

Type Change of use
Status With planning case officer
Received 30 Sep 2025
Plan thumbnail

Conversion of the existing building to provide 2 no. self-contained residential units (Class C3)

Type Listed building
Status With planning case officer
Received 30 Sep 2025
Plan thumbnail

Conversion of single dwelling into two including loft conversion and landscaping alterations.

Type Change of use
Status With planning case officer
Received 23 Oct 2025
Plan thumbnail

Conversion of the Listed Building, The Swan from commercial to residential use, as 3x 2 bed units and the development of 2x 2 bed properties...

Type Listed building
Status With planning case officer
Received 11 Nov 2025
Plan thumbnail

Conversion of the Listed Building, The Swan from commercial to residential use, as 3x 2 bed units and the development of 2x 2 bed properties...

Type Listed building
Status With planning case officer
Received 11 Nov 2025
Plan thumbnail

Retention of replacement window with french doors, installation of decking and fencing to facilitate the change of use of the land for resid...

Type Change of use
Status With planning case officer
Received 18 Nov 2025

Garage conversion to annexe ancillary to main dwelling.

Type Change of use
Status Awaiting final decision
Received 06 Nov 2025
Plan thumbnail

Site clearance works and construction of a data centre building (Class B8) with plant at roof level with an emergency generator (1no.) and a...

Type Industrial
Status With planning case officer
Received 09 Feb 2026
Plan thumbnail

Internal and external alterations to facilitate the conversion of the ground floor and basement levels to form 2no. two-bedroom flats and 1n...

Type Change of use
Status With planning case officer
Received 05 Feb 2026
Plan thumbnail

Internal and external alterations to facilitate the conversion of the ground floor and basement levels to form 2no. two-bedroom flats and 1n...

Type Listed building
Status With planning case officer
Received 05 Feb 2026

Creation of 3x Studio apartments alterations to the front elevation takeaway frontage, to a facade in-keeping with Residential use. New wind...

Type Change of use
Status With planning case officer
Received 24 Dec 2025
Plan thumbnail

Conversion of the detached garage to habitable accommodation and the construction of a glazed link extension connecting it to the main dwell...

Type Listed building
Status With planning case officer
Received 02 Feb 2026
Plan thumbnail

Demolish two barns; construct new self-build dwelling with store and garage.

Type New housing
Status Awaiting final decision
Received 11 Feb 2025
Plan thumbnail

Demolish buildings and construct a detached dwelling with garage, parking and landscaping.

Type New housing
Status Awaiting final decision
Received 14 Apr 2025
Plan thumbnail

Rear/side extensions, loft conversion and convert two houses into seven self-contained flats.

Type Change of use
Status With planning case officer
Received 23 Apr 2025
Plan thumbnail

Part conversion of barn to create one single-family dwelling with associated works.

Type Change of use
Status Awaiting final decision
Received 08 May 2025
Plan thumbnail

Demolish buildings and redevelop site for ten residential dwellings with access and landscaping.

Type New housing
Status With planning case officer
Received 29 Apr 2025
Plan thumbnail

Demolition and construction of a single-family dwelling.

Type New housing
Status With planning case officer
Received 16 May 2025

Demolition of commercial units and construction of three terraced houses and extension works.

Type Listed building
Status With planning case officer
Received 15 May 2025
Plan thumbnail

Redevelopment to provide four 2-bed and three 1-bed flats with parking and landscaping.

Type New housing
Status With planning case officer
Received 01 Jul 2025
Plan thumbnail

Hybrid development up to 1,400 dwellings with local centre, schools, sports/community hub and SANG.

Type New housing
Status With planning case officer
Received 29 Jul 2025
Plan thumbnail

Material change of use of land to use as residential Gypsy/Traveller caravan site, including the stationing of 4 static caravans, the laying...

Type Change of use
Status With planning case officer
Received 15 Jul 2025
Plan thumbnail

New detached guest block. Internal alterations to Harcourt Wing Annex. Demolition of Paddock House, leisure building, and external stairs. N...

Type Listed building
Status With planning case officer
Received 07 Jul 2025
Plan thumbnail

Conversion of loft space above garage and conversion of central attic space of main house, insertion of 4No. conservation roof lights and on...

Type House extension
Status With planning case officer
Received 14 Aug 2025
Plan thumbnail

Change of use from one dwellinghouse (C3) to one small residential care home (C2).

Type Change of use
Status With planning case officer
Received 22 Aug 2025
Plan thumbnail

Change of use from one dwellinghouse (C3) to one small residential care home (C2).

Type Change of use
Status With planning case officer
Received 22 Aug 2025

Change of use from C3 (dwelling house) to C2 (small care home) for no more than 3 children aged between 6 and 18 years with support from no ...

Type Change of use
Status Awaiting final decision
Received 22 Aug 2025
Plan thumbnail

New detached 2-bed dwelling, with enclosed rear garden and off-street parking. Installation of vehicle crossovers (self-build)

Type New housing
Status With planning case officer
Received 26 Aug 2025
Plan thumbnail

Construction of dwelling (self build) on site of existing manege

Type New housing
Status With planning case officer
Received 09 Sep 2025
Plan thumbnail

Outline application for up to 80 dwellings with access, open space and drainage.

Type New housing
Status With planning case officer
Received 20 Jun 2025
Plan thumbnail

Conversion of farm buildings into two residential dwellings (9 and 10 The Barns).

Type Change of use
Status With planning case officer
Received 29 Sep 2025
Plan thumbnail

Convert existing 3-bed house into two flats (one 2-bed and one 3-bed).

Type Change of use
Status With planning case officer
Received 30 Oct 2025
Plan thumbnail

Demolish existing buildings and erect 12 flats with ground-floor commercial spaces and landscaping.

Type New housing
Status With planning case officer
Received 27 Oct 2025
Plan thumbnail

Alterations and refurbishments to dwelling house

Type Other
Status Awaiting final decision
Received 02 Oct 2025

Convert ground floor and basement to 2x two‑bed flats, 1x one‑bed flat and safety deposit business.

Type Listed building
Status With planning case officer
Received 07 Oct 2025
Plan thumbnail

Outline planning application for a two-storey detached dwelling

Type New housing
Status With planning case officer
Received 07 Nov 2025
Plan thumbnail

Convert detached residential annex (Pool House) into a separate C3 dwelling.

Type Change of use
Status With planning case officer
Received 17 Nov 2025
Plan thumbnail

Demolish offices, build industrial facility.

Type Commercial
Status With planning case officer
Received 12 Nov 2025
Plan thumbnail

Outline urban extension including new neighbourhoods, employment zone, education, country park and mixed‑use local centre.

Type New housing
Status With planning case officer
Received 27 Nov 2025
Plan thumbnail

Convert single three-storey dwelling into two one-bedroom self-contained residential units.

Type Change of use
Status With planning case officer
Received 11 Nov 2025
Plan thumbnail

Full Planning Application for residential development (Use Class C3) and associated community infrastructure/buildings, green infrastructure...

Type New housing
Status With planning case officer
Received 12 Dec 2025
Plan thumbnail

Demolish existing stables. Construction of two bedroom dwelling with associated landscaping and parking

Type New housing
Status With planning case officer
Received 10 Dec 2025
Plan thumbnail

Construction of three dwellings with access, parking and landscaping.

Type New housing
Status With planning case officer
Received 10 Dec 2025
Plan thumbnail

Construction of 2 bedroom detached dwelling with associated landscaping and access, following demolition of the stables

Type New housing
Status With planning case officer
Received 05 Dec 2025
Plan thumbnail

Outline application (all matters reserved) for up to three self/custom-built dwellings.

Type New housing
Status With planning case officer
Received 21 Nov 2025
Plan thumbnail

Erection of two new residential dwellings with associated works.

Type New housing
Status Awaiting final decision
Received 06 May 2025

Front porch and side extension to house secure storage

Type House extension
Status With planning case officer
Received 24 Dec 2025
Plan thumbnail

Conversion and minor extensions to existing stable to create annexe dwelling and merging of existing annexe back into principal house.

Type Change of use
Status With planning case officer
Received 23 Dec 2025
Plan thumbnail

Hybrid Planning Application for a Residential development comprising Outline Planning Application for up to 145 dwellings (Use Class C3) inc...

Type New housing
Status With planning case officer
Received 29 Dec 2025
Plan thumbnail

Conversion of Agricultural barns to 2x residential dwellings.

Type Change of use
Status With planning case officer
Received 13 Jan 2026
Plan thumbnail

Change of use from equestrian to residential; demolition of existing stables, removal of manege and construction of 1no. dwelling house with...

Type Change of use
Status With planning case officer
Received 07 Jan 2026
Plan thumbnail

Construction of up to five self or custom-build dwellings.

Type New housing
Status With planning case officer
Received 31 Dec 2025

Conversion of existing garage to habitable use, construction of extension to front of garage/side of main house, roof alterations. Extending...

Type House extension
Status With planning case officer
Received 04 Dec 2025
Plan thumbnail

Construction of up to 200 dwellings with new access, open space, biodiversity enhancements and infrastructure.

Type New housing
Status With planning case officer
Received 18 Dec 2025
Plan thumbnail

Refurbishment of barn as ancillary residential accommodation with new mezzanine and internal glazed screen.

Type Listed building
Status With planning case officer
Received 17 Dec 2025
Plan thumbnail

Refurbishment of barn as ancillary residential accommodation with new mezzanine and internal glazed screen.

Type Change of use
Status With planning case officer
Received 17 Dec 2025

Construction of a new detached 3 bed self build dwelling.

Type New housing
Status With planning case officer
Received 10 Dec 2025

Construction of additional floor over existing house

Type House extension
Status Awaiting final decision
Received 26 Aug 2025

Construction of a detached habitable ancillary annexe within the curtilage of the main house.

Type House extension
Status With planning case officer
Received 29 Sep 2025
Plan thumbnail

Change of use from commercial to two residential flats with fenestration and façade works.

Type Change of use
Status Granted
Received 28 Jan 2025
Plan thumbnail

Construct two four-bedroom dwellings with associated amenity space and parking.

Type New housing
Status Granted
Received 07 Aug 2025
Plan thumbnail

Redevelop garden to provide one residential dwelling with landscaping, parking and refuse/cycle storage.

Type New housing
Status Granted
Received 05 Aug 2025
Plan thumbnail

Construction of a detached residential annexe.

Type Other
Status Granted
Received 01 Aug 2025
Plan thumbnail

Change of use from dwelling (C3) to C2 residential care home for up to two children (ages 8–17).

Type Change of use
Status Granted
Received 22 Aug 2025
Plan thumbnail

Outline application for the erection of two dwellings.

Type New housing
Status Decided
Received 02 Sep 2025
Plan thumbnail

Conversion of agricultural buildings to three dwellings (two 2-bed and one 1-bed).

Type Change of use
Status Granted
Received 23 Jun 2025
Plan thumbnail

Porch addition and subdivision of existing dwelling to create three dwellings.

Type New housing
Status Decided
Received 22 Aug 2025
Plan thumbnail

Up to 9 residential dwellings within 540 sq m Class 3 floorspace.

Type New housing
Status Decided
Received 11 Mar 2025

Conversion of office building to two residential flats.

Type Change of use
Status Granted
Received 11 Mar 2025
Plan thumbnail

Redevelopment to provide 485 homes in 11 buildings with parking, landscaping, SUDS and access improvements.

Type New housing
Status Granted
Received 05 Mar 2025
Plan thumbnail

Convert a dwelling into six one-bedroom flats with two-storey side extension and parking.

Type Change of use
Status Decided
Received 04 Mar 2025

Change of use from office to one residential unit under Class MA.

Type Change of use
Status Granted
Received 14 Mar 2025
Plan thumbnail

Placement of a mobile home within the residential curtilage.

Type Other
Status Granted
Received 07 Apr 2025

Conversion of agricultural buildings into nine residential dwellings.

Type Change of use
Status Decided
Received 16 Apr 2025
Plan thumbnail

Construction of five flats with undercroft parking.

Type New housing
Status Decided
Received 08 Jan 2025
Plan thumbnail

Construction of two new dwellings with amenity space and parking.

Type New housing
Status Decided
Received 13 May 2025

Conversion/creation of three studio apartments with elevation and internal alterations.

Type Change of use
Status Decided
Received 12 May 2025

Conversion of existing pool house into residential annex.

Type Change of use
Status Granted
Received 02 May 2025