← Dacorum Borough Council

Status

With planning case officer Listed building
Received
11 Nov 2025
New homes
5

Full proposal

Conversion of the Listed Building, The Swan from commercial to residential use, as 3x 2 bed units and the development of 2x 2 bed properties on adjoining land, including car parking and landscaping.

Documents

Application form redacted
Application Form Redacted
Not yet archived · Original link
Arboricultural impact assessment report
Arboriculturial Study
Not yet archived · Original link
Baseline habitat map
Baseline onsite habitat map/plan (Pre-development)
Not yet archived · Original link
Biodiversity gain plan v3
Biodiversity gain plan
Not yet archived · Original link
Biodiversity metric v3
Biodiversity metric calculation tool
Not yet archived · Original link
Bng metric pdf
Biodiversity metric calculation tool
Not yet archived · Original link
Condition assessment sheets
Biodiversity Survey & Report
Not yet archived · Original link
Cover letter
Additional Information
Not yet archived · Original link
Design and access statement
Design & Access Statement
Not yet archived · Original link
Existing and proposed north east elevations - the swan
Elevation Plans
Not yet archived · Original link
Existing and proposed north west elevations - the swan
Elevation Plans
Not yet archived · Original link
Existing and proposed south east elevations - the swan
Elevation Plans
Not yet archived · Original link
Existing and proposed south west elevations - the swan
Elevation Plans
Not yet archived · Original link
Existing basement and ground floor plans
Existing Floor Plans
Not yet archived · Original link
Existing first floor and roof plan
Existing Floor Plans
Not yet archived · Original link
Site & Other Plans
Archived · Original link
Existing street scene elevations
Street Scene
Not yet archived · Original link
Heritage statement
Heritage Statement
Not yet archived · Original link
Planning statement
Planning Statement
Not yet archived · Original link
Post development habitat map v3
Onsite habitat map/plan (Post-development)
Not yet archived · Original link
Preliminary ecological appraisal 2025
Ecological Survey
Not yet archived · Original link
Proposed boundary treatments
Additional Plans
Not yet archived · Original link
Proposed elevations - coach house
Proposed Elevations
Not yet archived · Original link
Proposed elevations - the barn
Proposed Elevations
Not yet archived · Original link
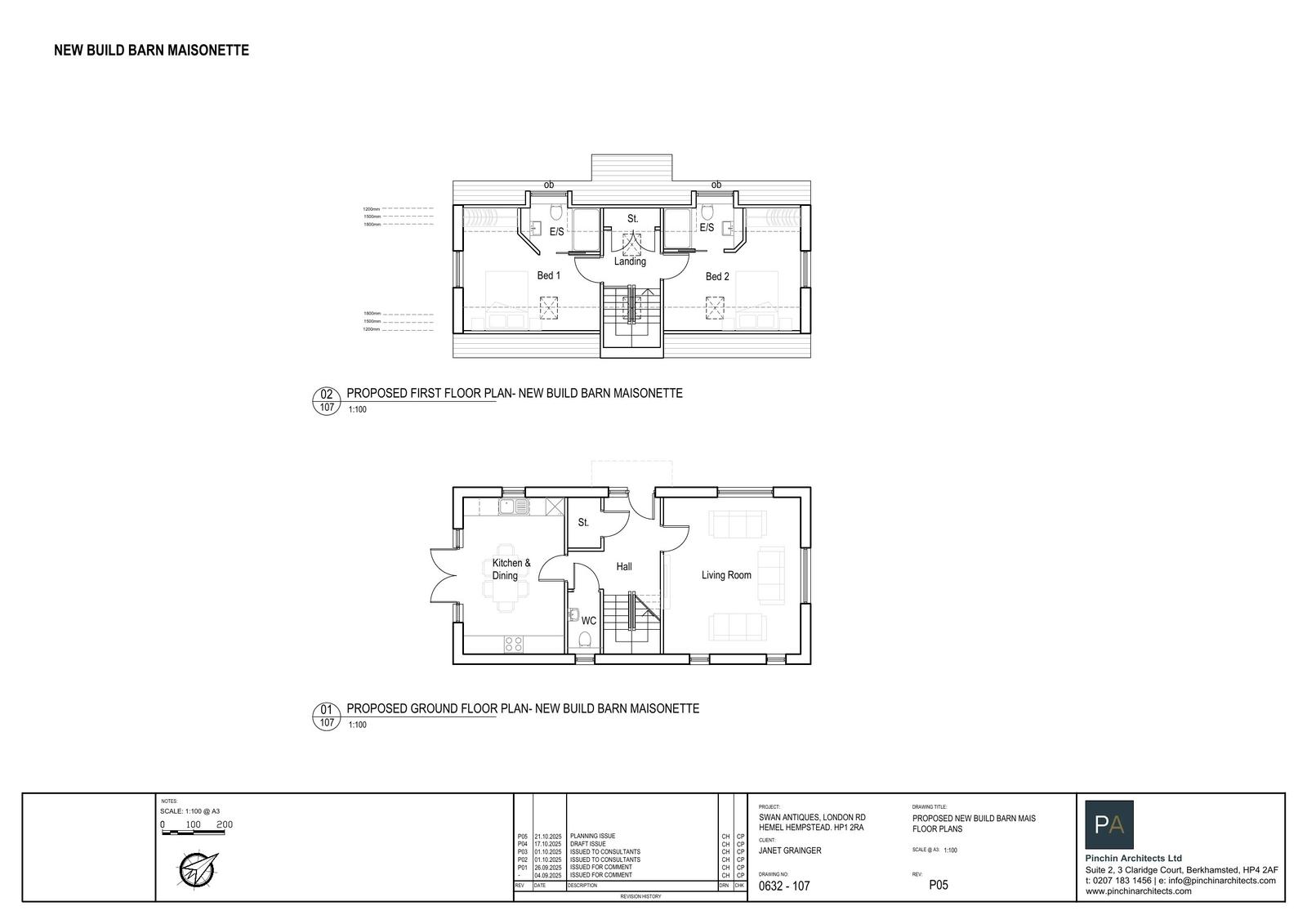
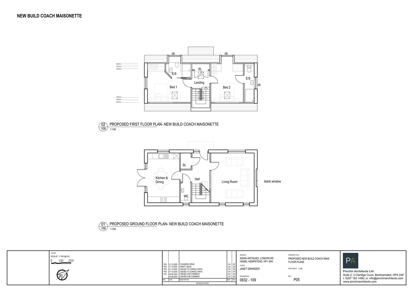
Proposed first floor and roof plan - the swan
Proposed Floor Plans
Not yet archived · Original link
Proposed Floor Plans
Archived · Original link
Proposed Floor Plans
Archived · Original link
Proposed ground floor plan - the swan
Proposed Floor Plan
Not yet archived · Original link
Proposed landscape plan
Landscaping Plan
Not yet archived · Original link
Site & Other Plans
Archived · Original link
Proposed street scene
Street Scene
Not yet archived · Original link
Site Location Plan
Archived · Original link
Transport statement
Transport Assessment/Statement
Not yet archived · Original link

Have your say

Your comment matters. Councils must consider every representation that raises material planning considerations.

Write a comment