← Dacorum Borough Council

Status

Awaiting final decision New housing
Received
23 Apr 2025
New homes
1

Summary

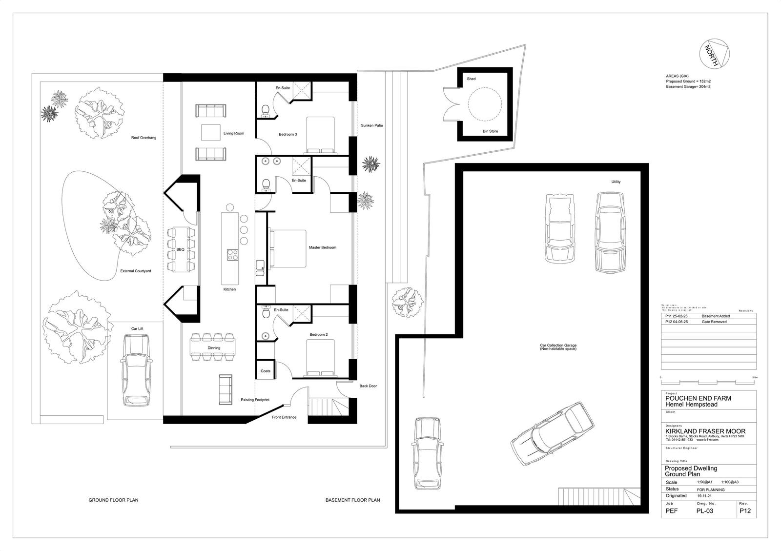
Demolition of studio and replacement with single-storey private dwelling.

Full proposal

Proposed demolition of existing studio building to be replaced with a single story private dwelling.

Documents

Application Form Redacted
Archived · Original link
Amended Plans and Drawings
Archived · Original link
Proposed Elevations
Archived · Original link
Proposed Elevations
Archived · Original link
Amended Plans and Drawings
Archived · Original link
Site Location Plan
Archived · Original link

Have your say

Your comment matters. Councils must consider every representation that raises material planning considerations.

Write a comment