← Dacorum Borough Council

Status

With planning case officer House extension
Received
08 Jan 2026
New homes
0

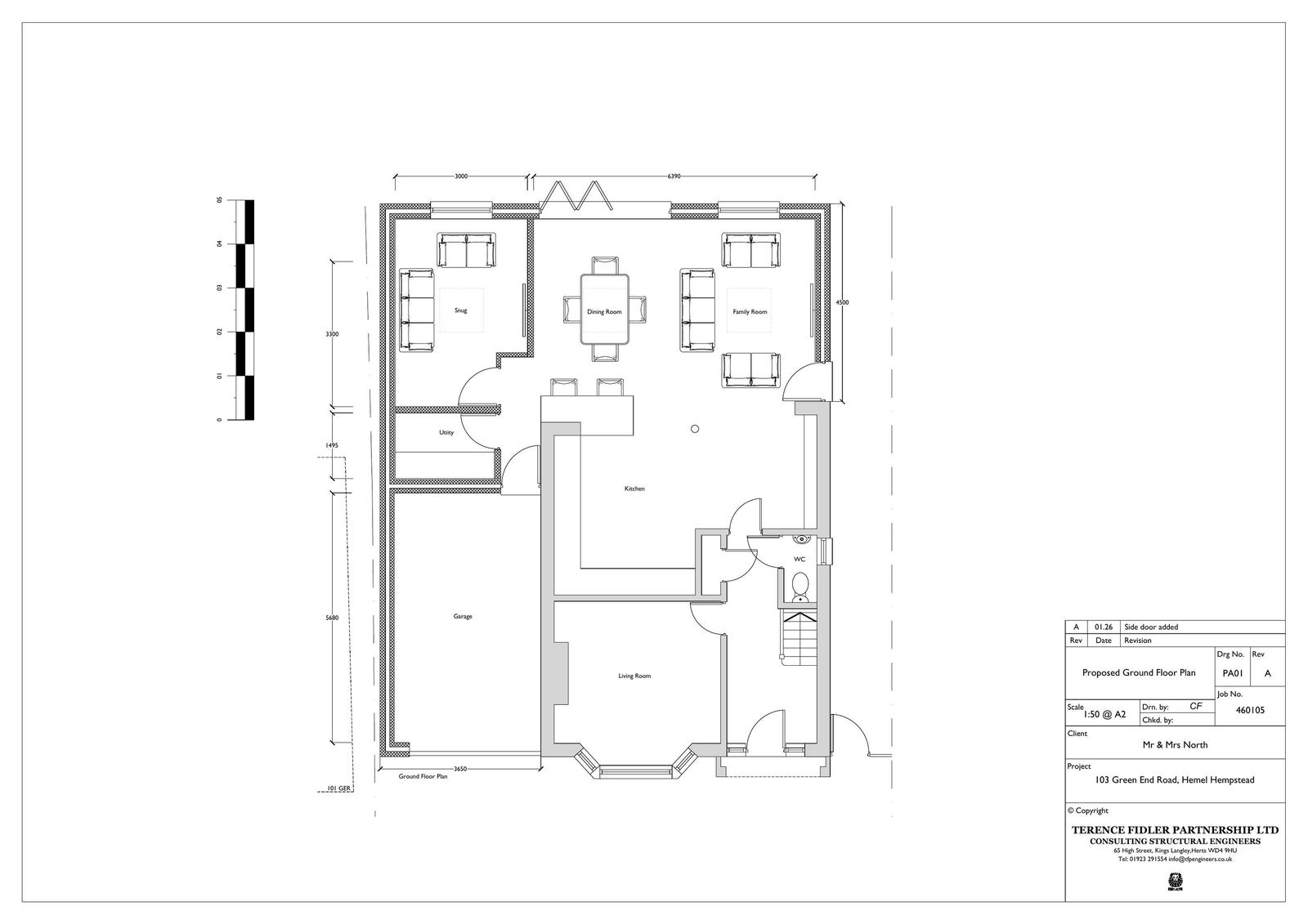
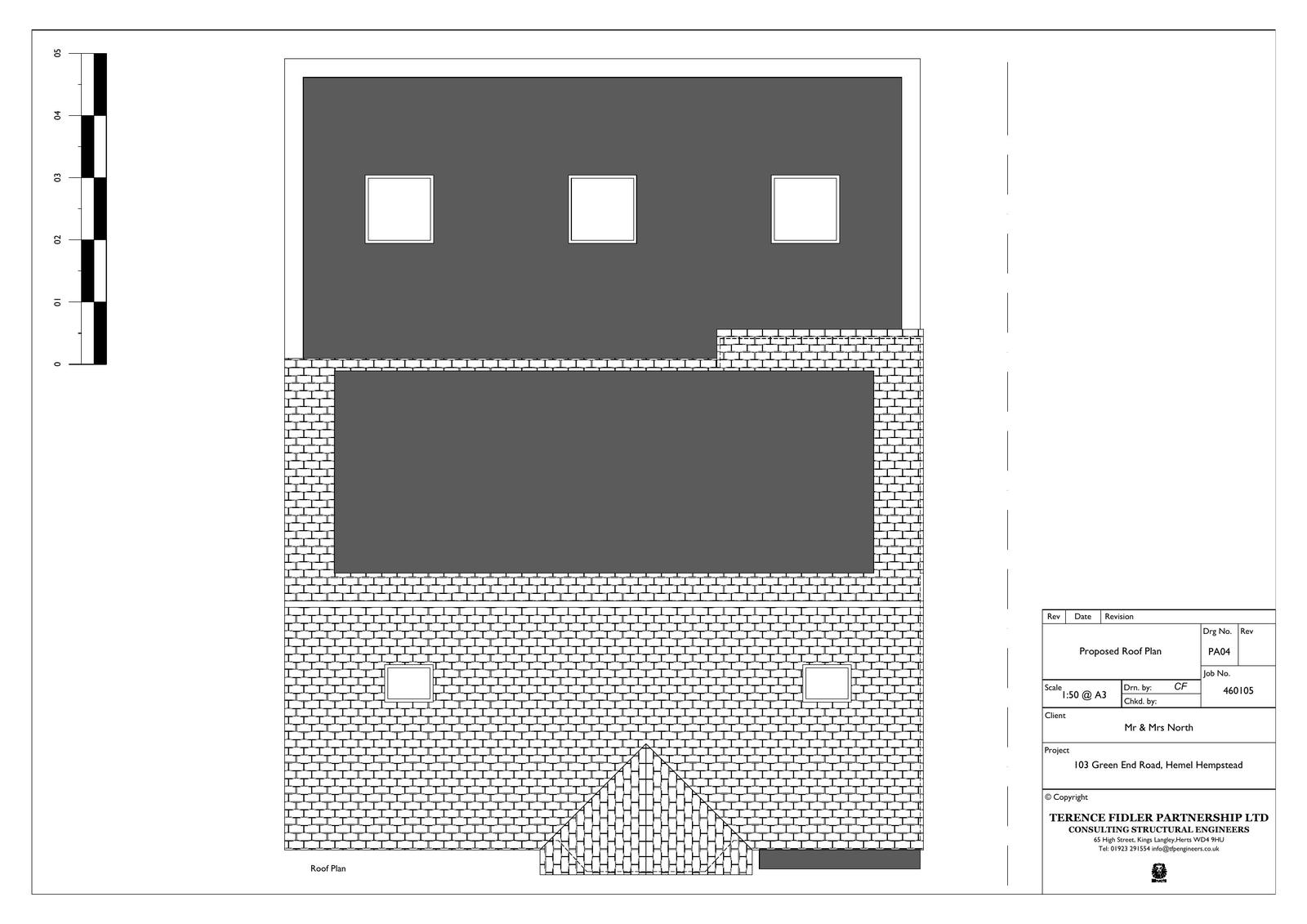
Full proposal

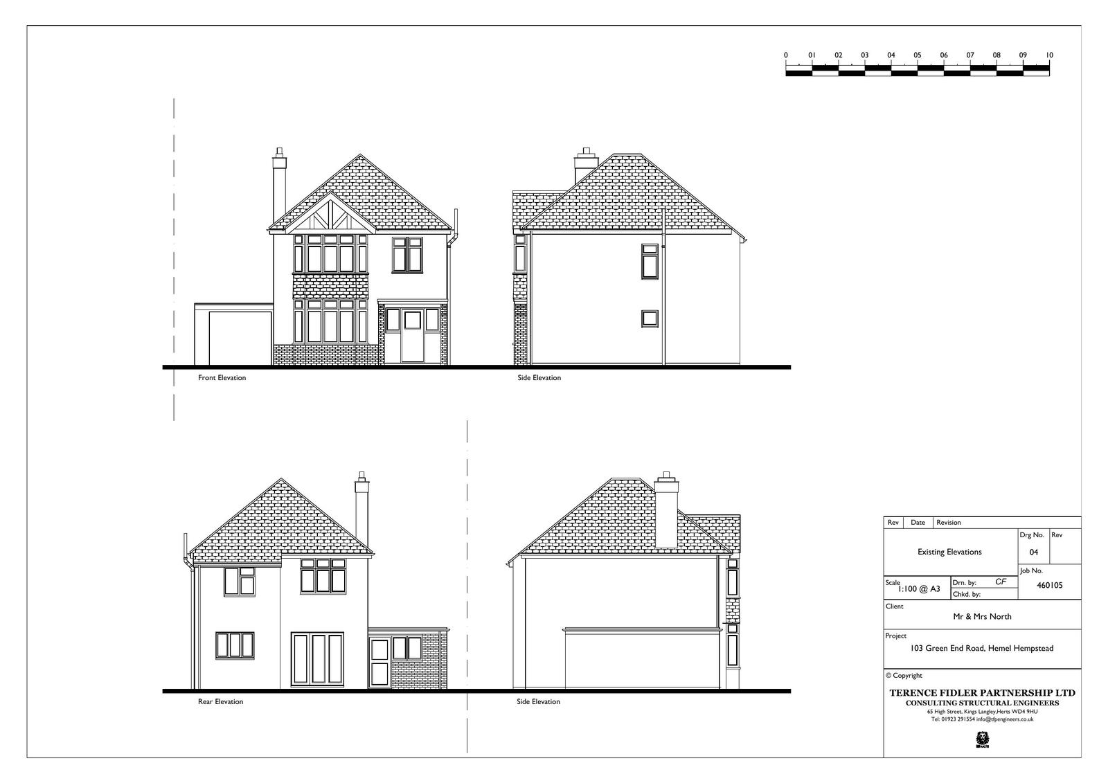
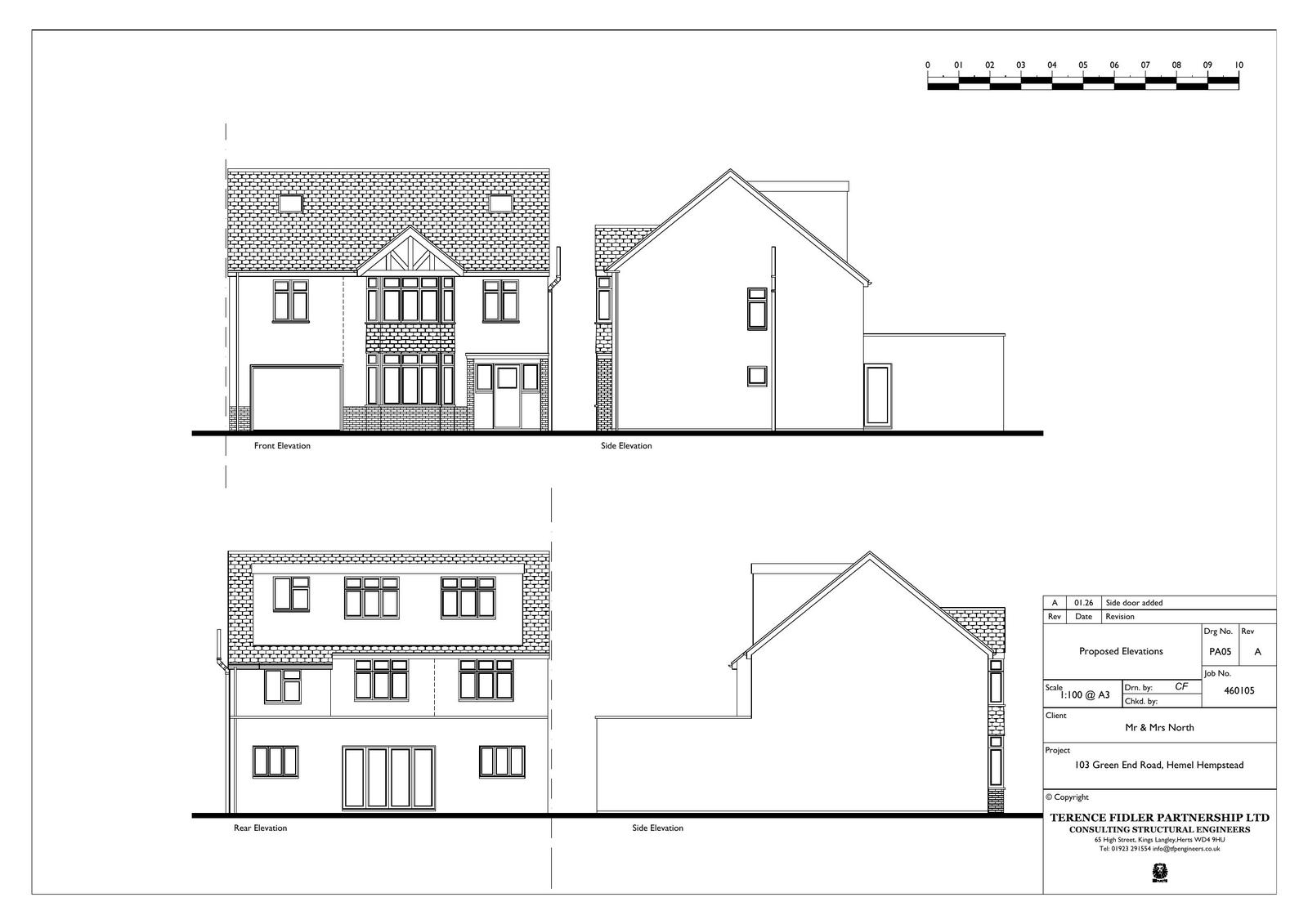
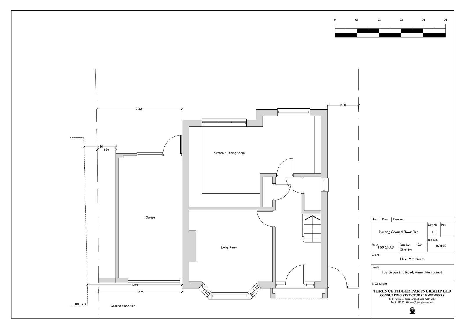
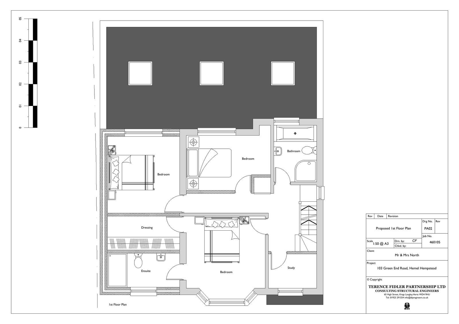
Demolition of existing garage. Construction of new garage with first floor extension above. Single-storey ground floor extension to rear elevation to form a wrap-around extension. New roof construction to be altered to Gable ends. Second floor loft conversion with dormer to rear elevation and skylights to the front elevation. External wall insulation to North side of the property

Documents

Proposed Floor Plan
Archived · Original link
Proposed Floor Plans
Archived · Original link
Proposed Elevations
Archived · Original link
Block Plan of the Site
Archived · Original link
Roof Plan
Archived · Original link
Existing Elevations
Archived · Original link
Ff
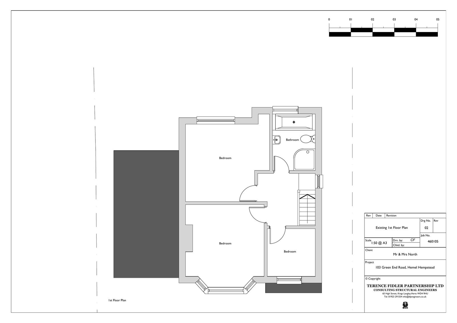
Existing Floor Plans
Archived · Original link
Ff
Proposed Floor Plan
Archived · Original link
Gf
Existing Floor Plans
Archived · Original link
Location Plan
Archived · Original link
Roof Plan
Archived · Original link

Have your say

Your comment matters. Councils must consider every representation that raises material planning considerations.

Write a comment