← Dacorum Borough Council

Status

With planning case officer House extension
Received
28 Jan 2026
New homes
0

Full proposal

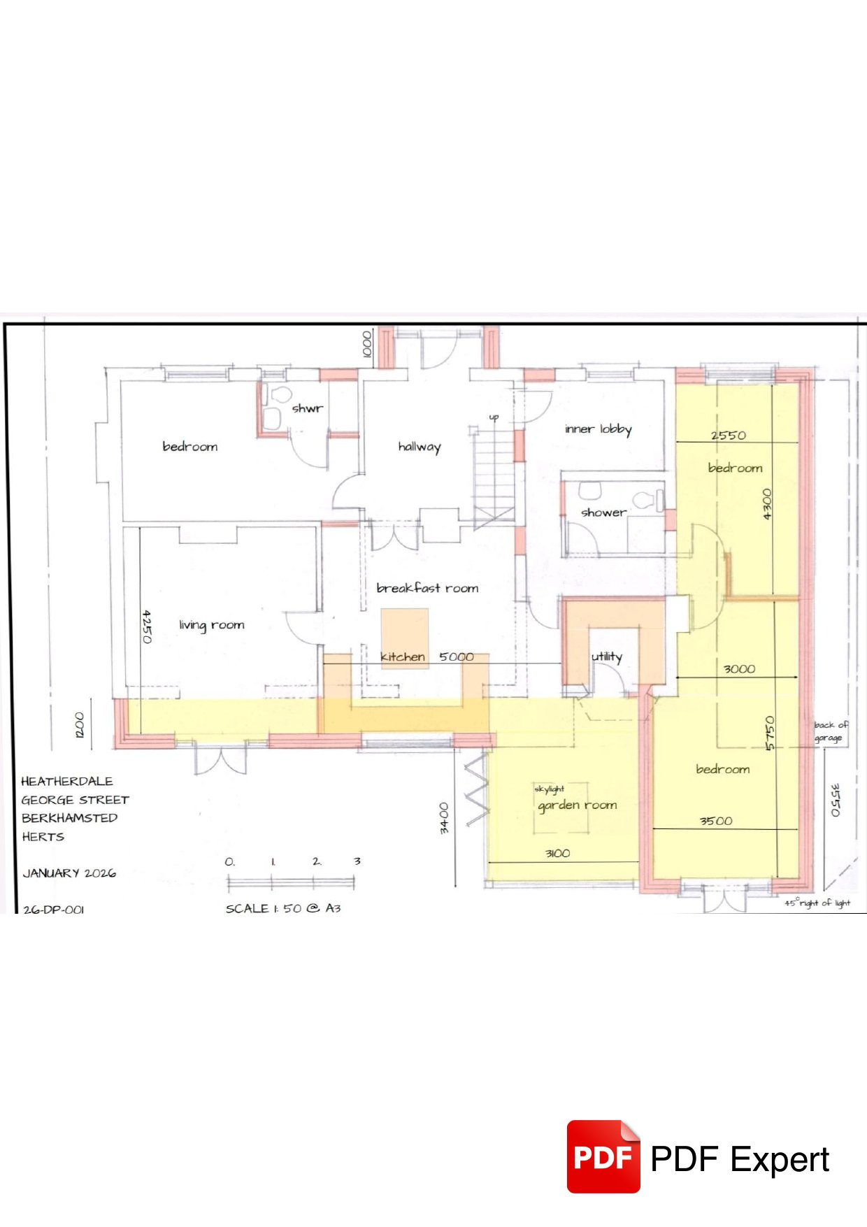
Demolition of detached garage. Construction of front,side and rear extensions. Roof raised to create extra rooms.

Documents

Existing Elevations
Archived · Original link
Proposed Elevation
Archived · Original link
Location Plan
Archived · Original link
Proposed First-Floor Plan
Archived · Original link
Proposed Floor Plan
Archived · Original link

Have your say

Your comment matters. Councils must consider every representation that raises material planning considerations.

Write a comment