← Dacorum Borough Council

Status

With planning case officer House extension
Received
28 Jan 2026
New homes
0

Full proposal

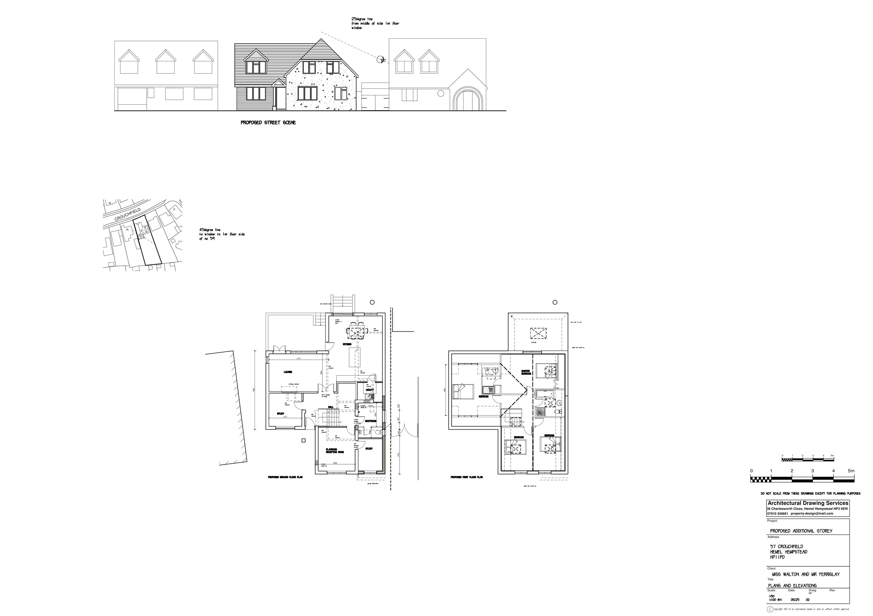
Demolition of garage and new side extension, new first floor with raised roof over new porch with altered window opening

Documents

Existing Plan
Archived · Original link
Location Plan
Archived · Original link
Proposed Plan
Archived · Original link
Street Scene
Archived · Original link

Have your say

Your comment matters. Councils must consider every representation that raises material planning considerations.

Write a comment