← Dacorum Borough Council

Status

With planning case officer House extension
Received
Last month
New homes
0

Full proposal

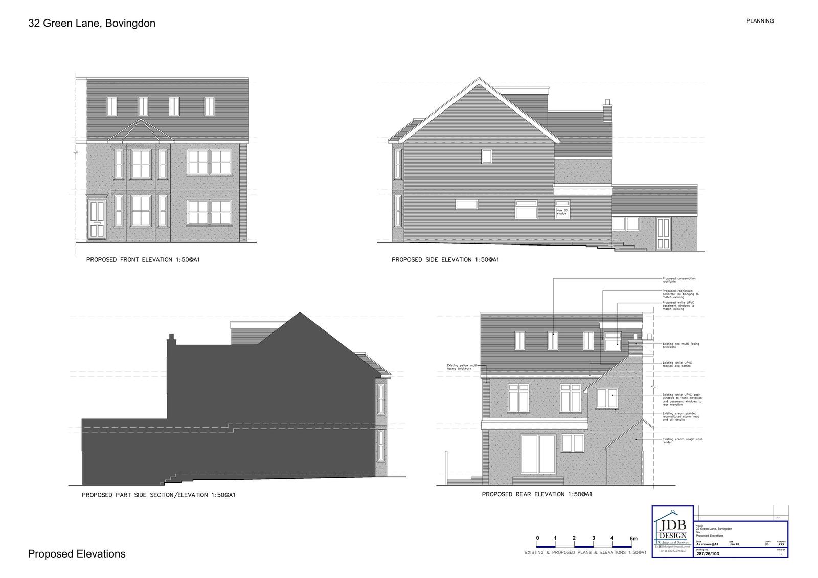
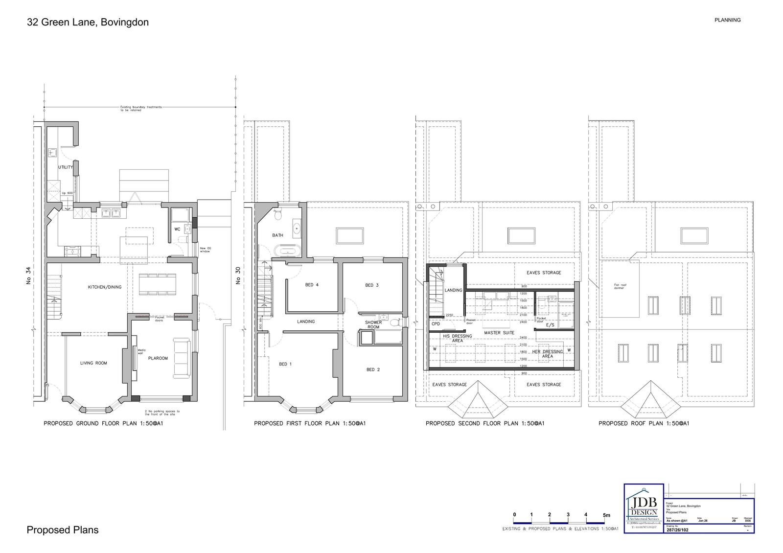
Loft conversion to create second floor accommodation with a small rear dormer and rooflights to the front and rear. Existing garage converted to habitable space with a new front window.

Documents

Application Form Redacted
Archived · Original link
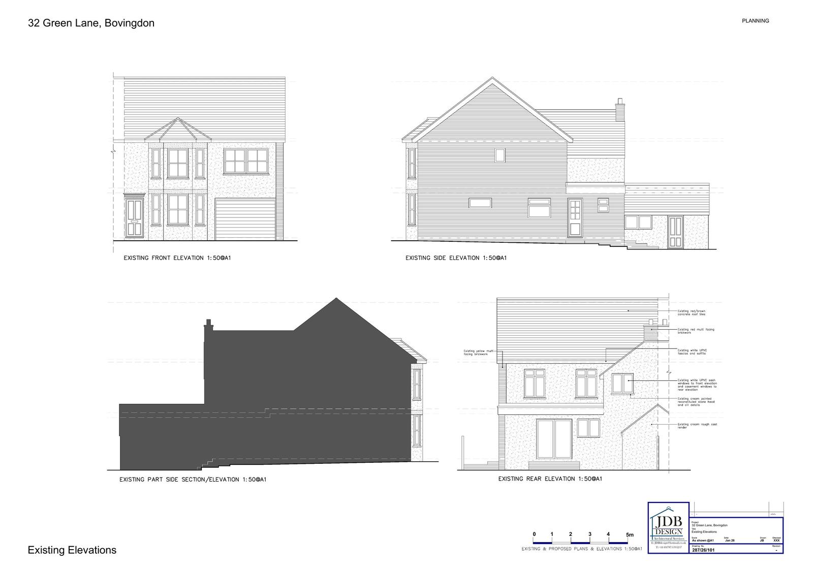
Existing Elevations
Archived · Original link
Proposed Elevations
Archived · Original link
Proposed Floor Plans
Archived · Original link

Have your say

Your comment matters. Councils must consider every representation that raises material planning considerations.

Write a comment