← Dacorum Borough Council

Status

With planning case officer House extension
Received
Last month
New homes
0

Full proposal

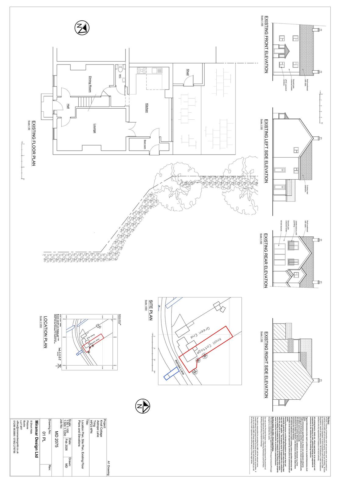
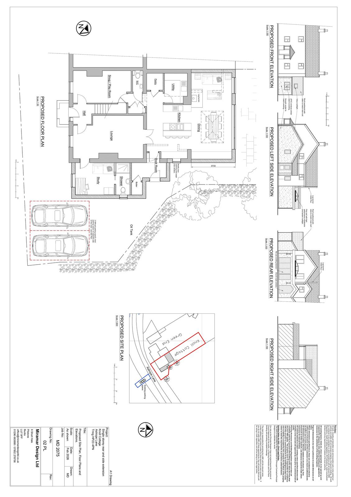
Removal of existing small single storey rear extension. Construction of single storey rear extension and side extensions.

Documents

Application Form Redacted
Archived · Original link
Photos Online
Archived · Original link

Have your say

Your comment matters. Councils must consider every representation that raises material planning considerations.

Write a comment