← Dacorum Borough Council

Status

With planning case officer Commercial
Received
Last month
New homes
0

Full proposal

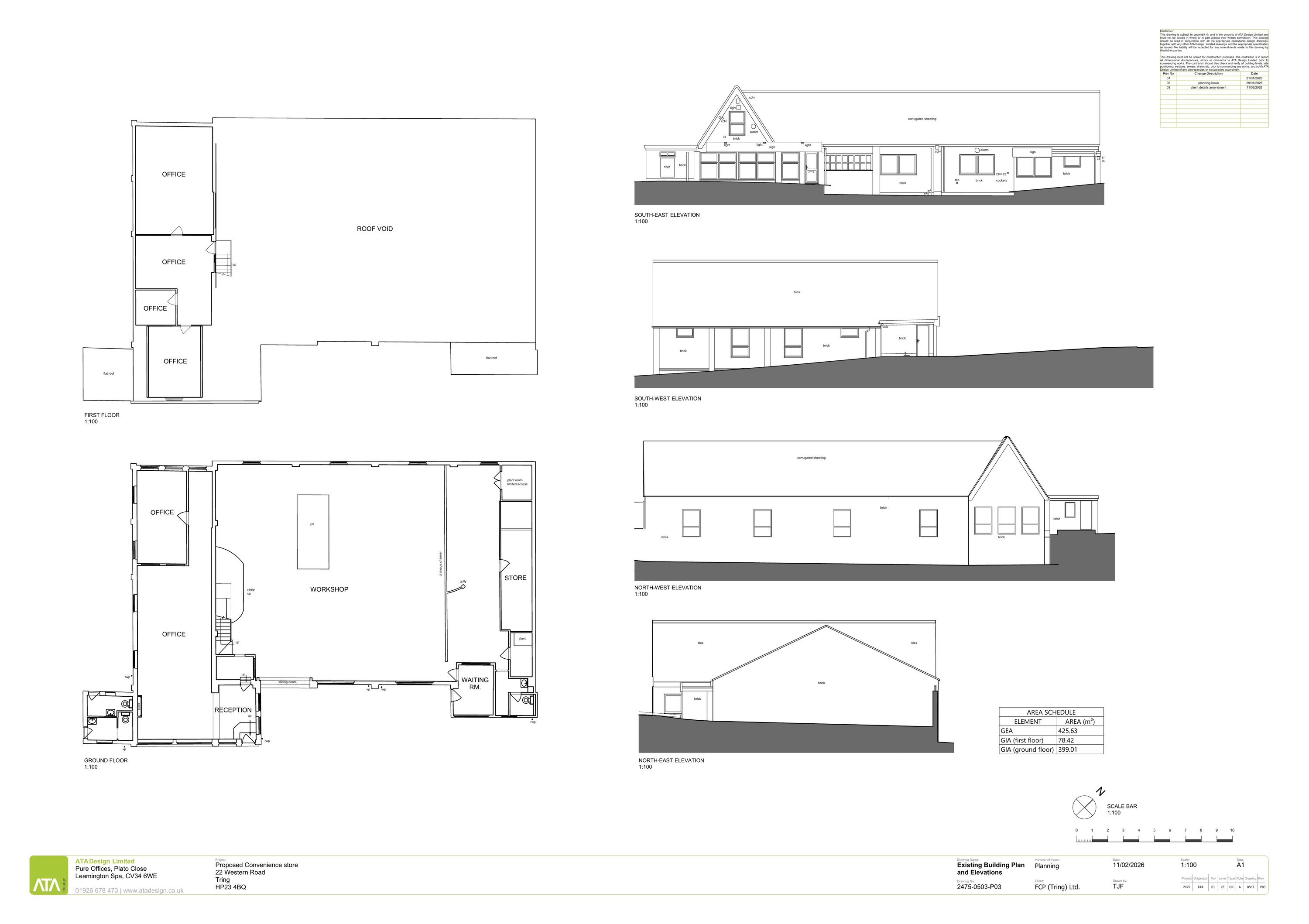
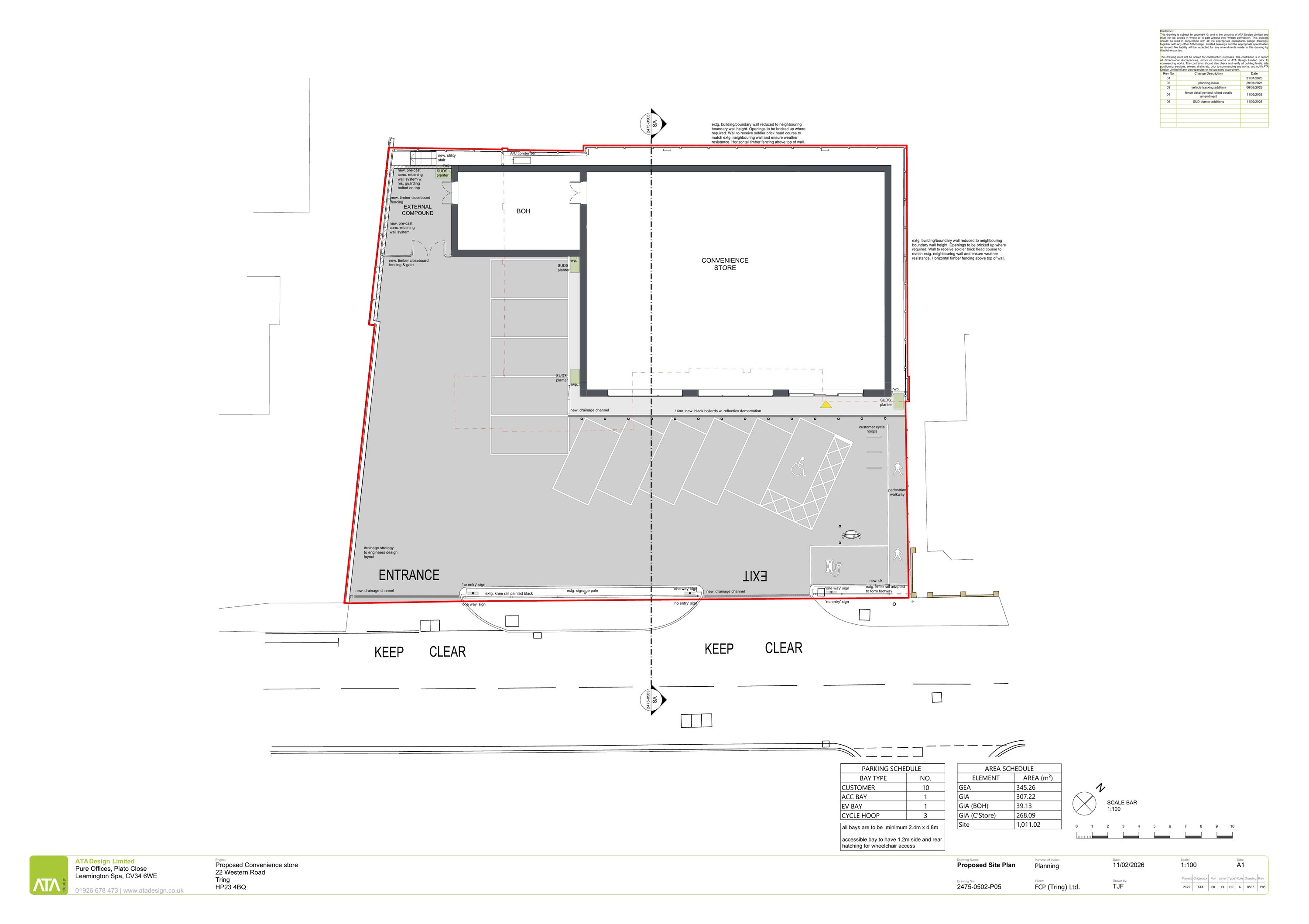
Demolition of the Existing Car Repair Workshop and Construction of a Retail Unit, Parking and Associated Works.

Documents

Application Form
Archived · Original link
Additional Information
Archived · Original link
Drainage Strategy
Archived · Original link
Ecological Survey
Archived · Original link
Block Plan of the Site
Archived · Original link
Existing Elevations
Archived · Original link
Site Location Plan
Archived · Original link
Noise Impact Assessment
Archived · Original link
Additional Information
Archived · Original link
Land Contamination Assessment
Archived · Original link
Land Contamination Assessment
Archived · Original link
Planning Statement
Archived · Original link
Proposed Elevations
Archived · Original link
Site & Other Plans
Archived · Original link
Additional Plans
Archived · Original link

Have your say

Your comment matters. Councils must consider every representation that raises material planning considerations.

Write a comment