← Dacorum Borough Council

Status

With planning case officer House extension
Received
Last month
New homes
0

Full proposal

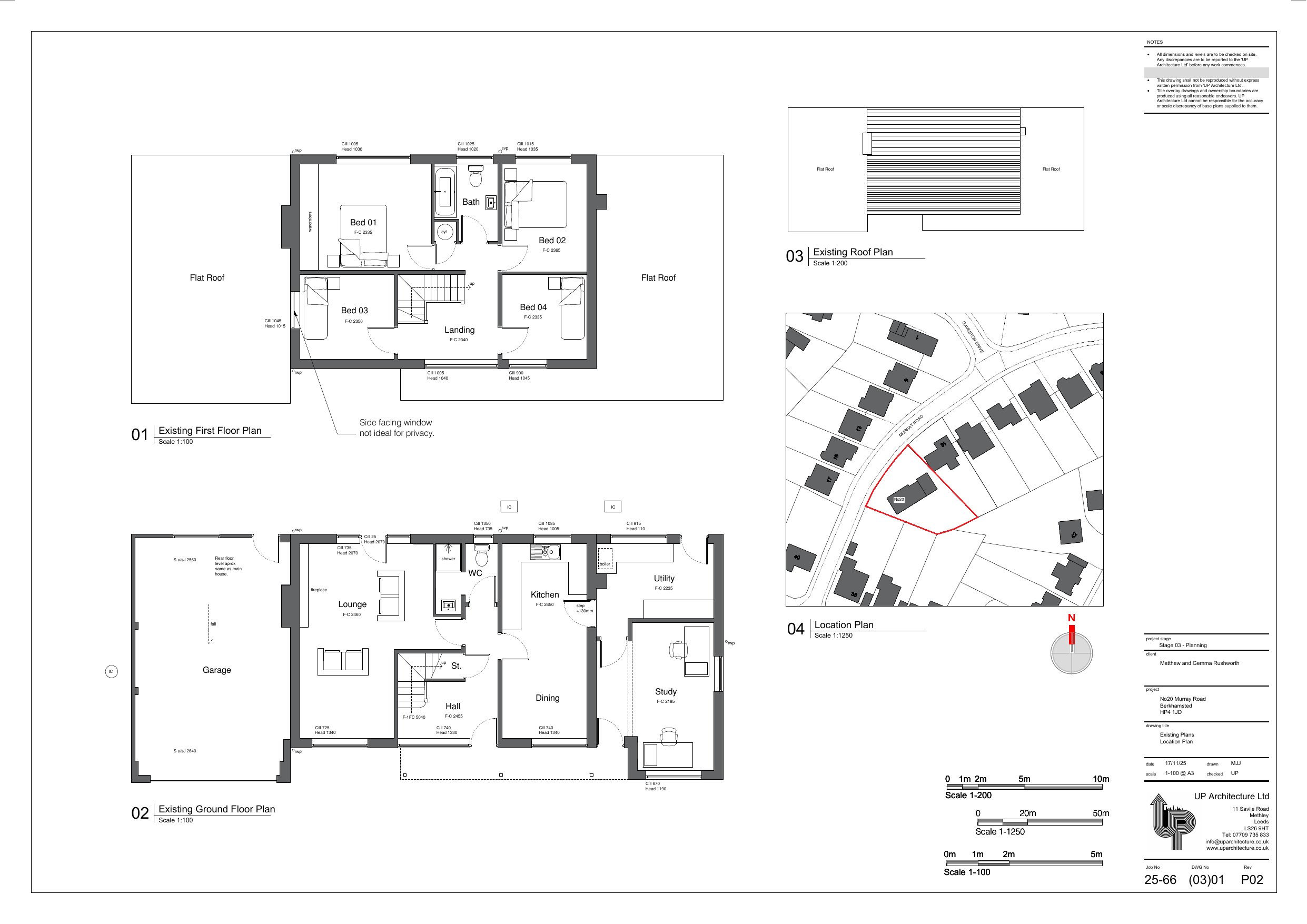
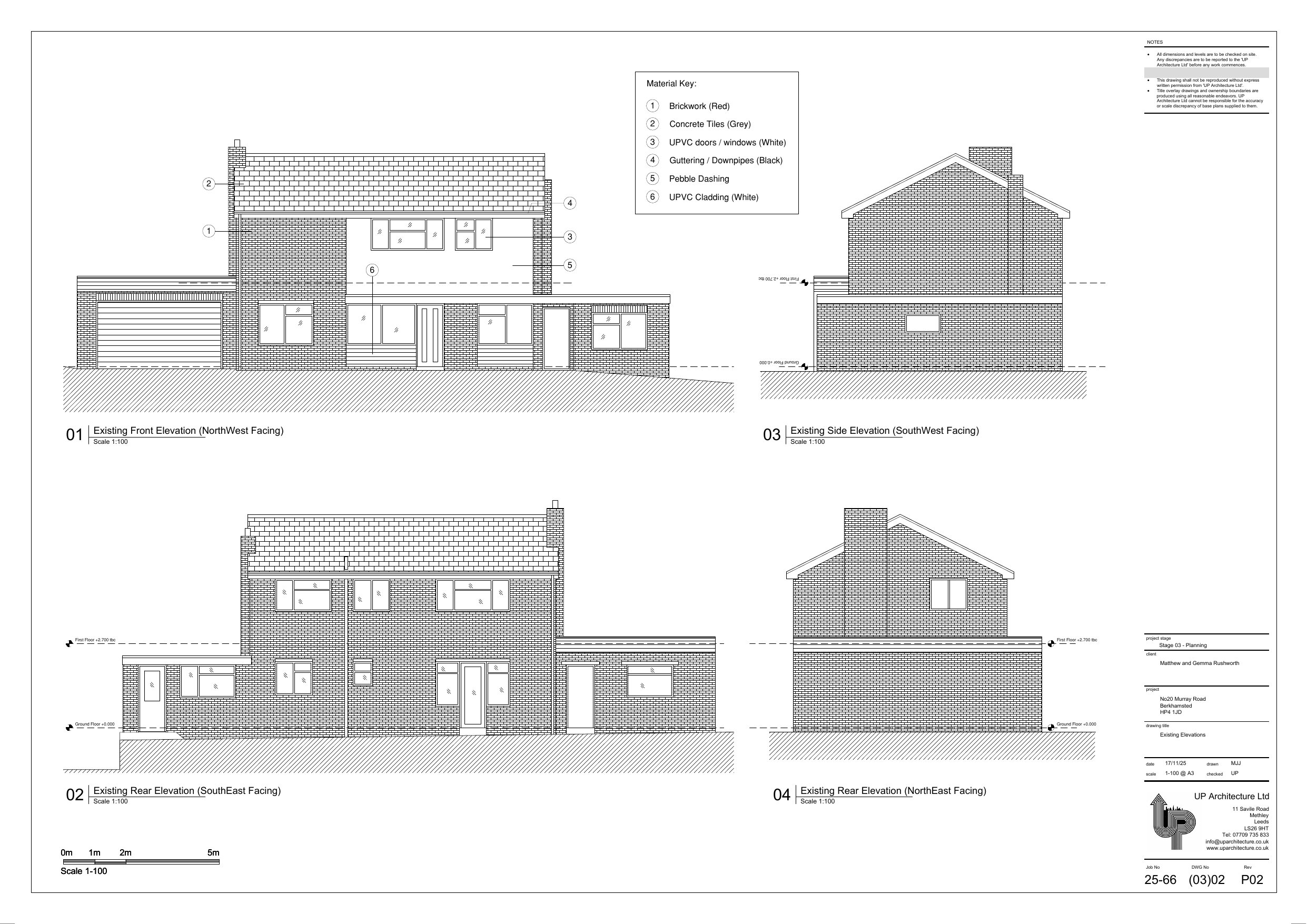
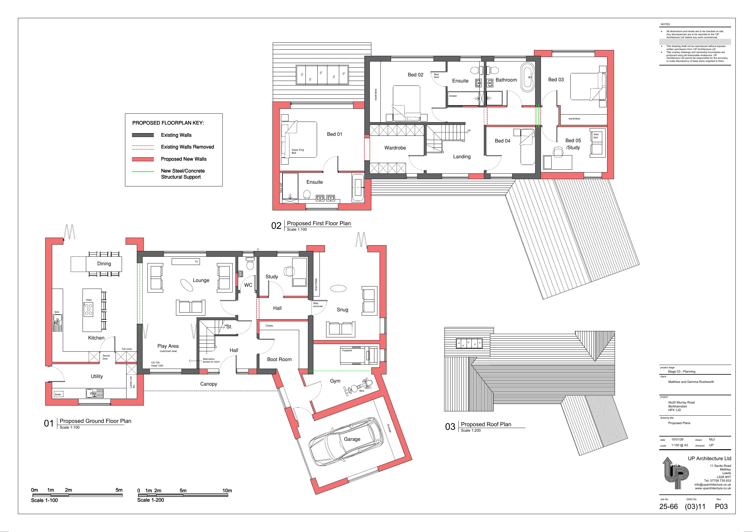
Demolition of two existing side extensions. Two Storey side Extension to the East, Two storey side extension to the West, single storey garage extension to the front. Refurbishment of remaining existing dwelling, including new cladding, windows and doors.

Documents

Application Form Redacted
Archived · Original link
Block Plan of the Site
Archived · Original link
Existing Elevations
Archived · Original link
Existing Plan
Archived · Original link
Proposed Elevation
Archived · Original link
Proposed Elevation
Archived · Original link
Proposed Plan
Archived · Original link

Have your say

Your comment matters. Councils must consider every representation that raises material planning considerations.

Write a comment