← Dacorum Borough Council

Status

With planning case officer House extension
Received
Last month
New homes
0

Full proposal

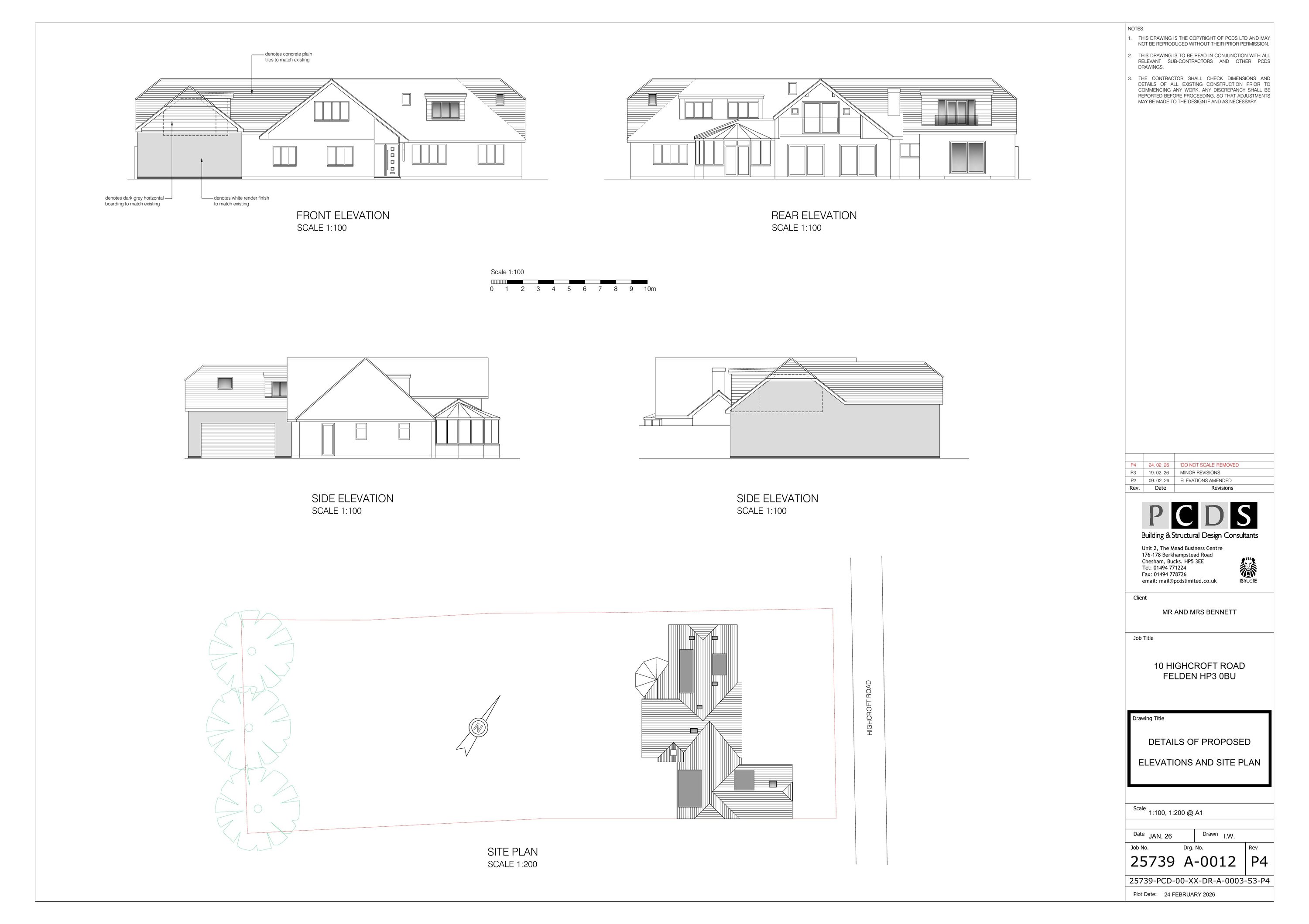
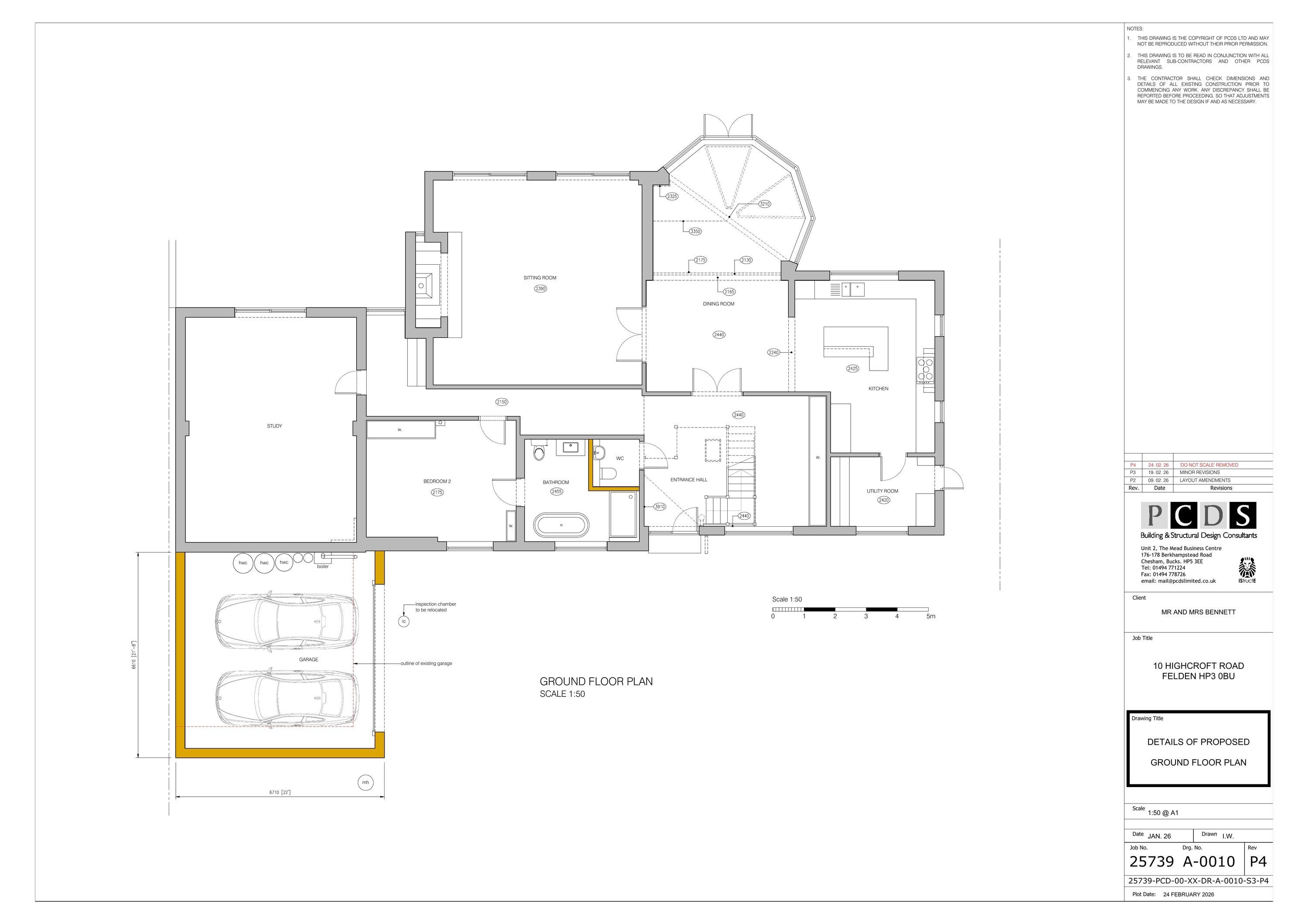
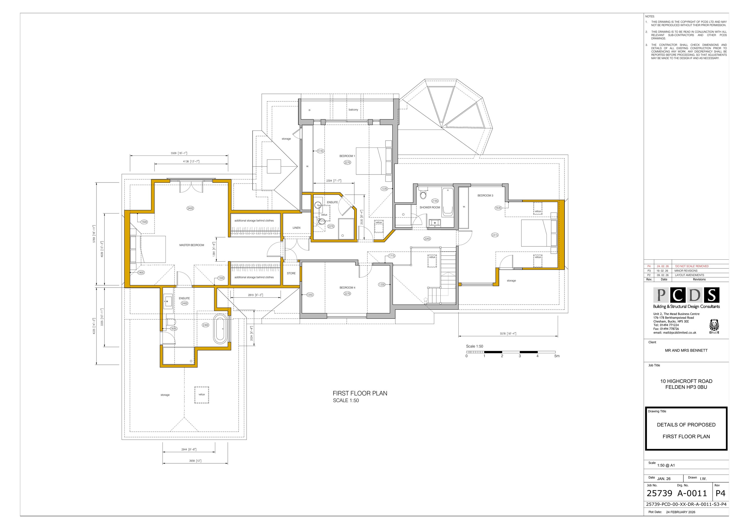
Demolition of existing garage and construction of new double garage and first floor roof extension with front and rear dormers. Roof modification from hipped roof to jerkinhead roof design with additional dormer and velux's to front and rear elevations.

Documents

Application Form Redacted
Archived · Original link
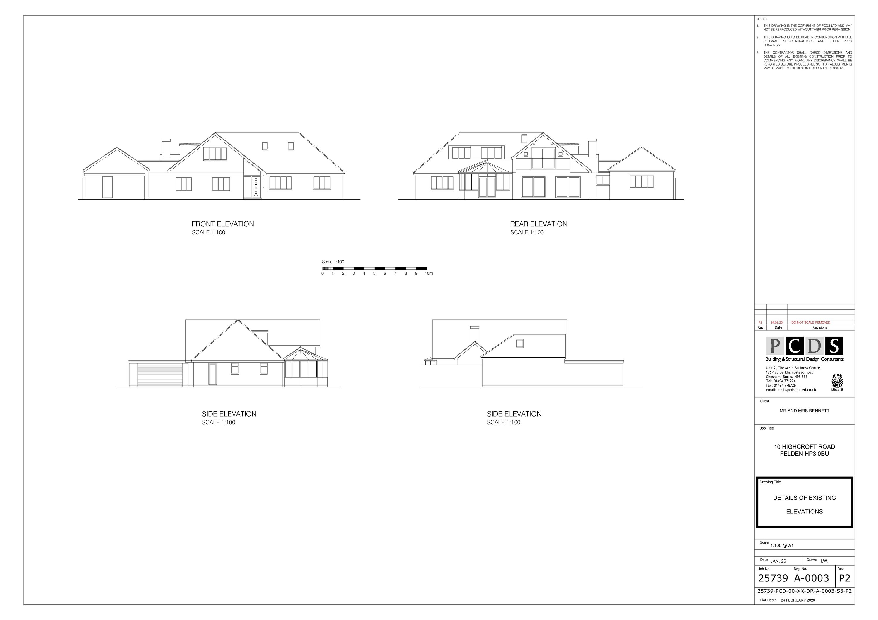
Existing Elevations
Archived · Original link
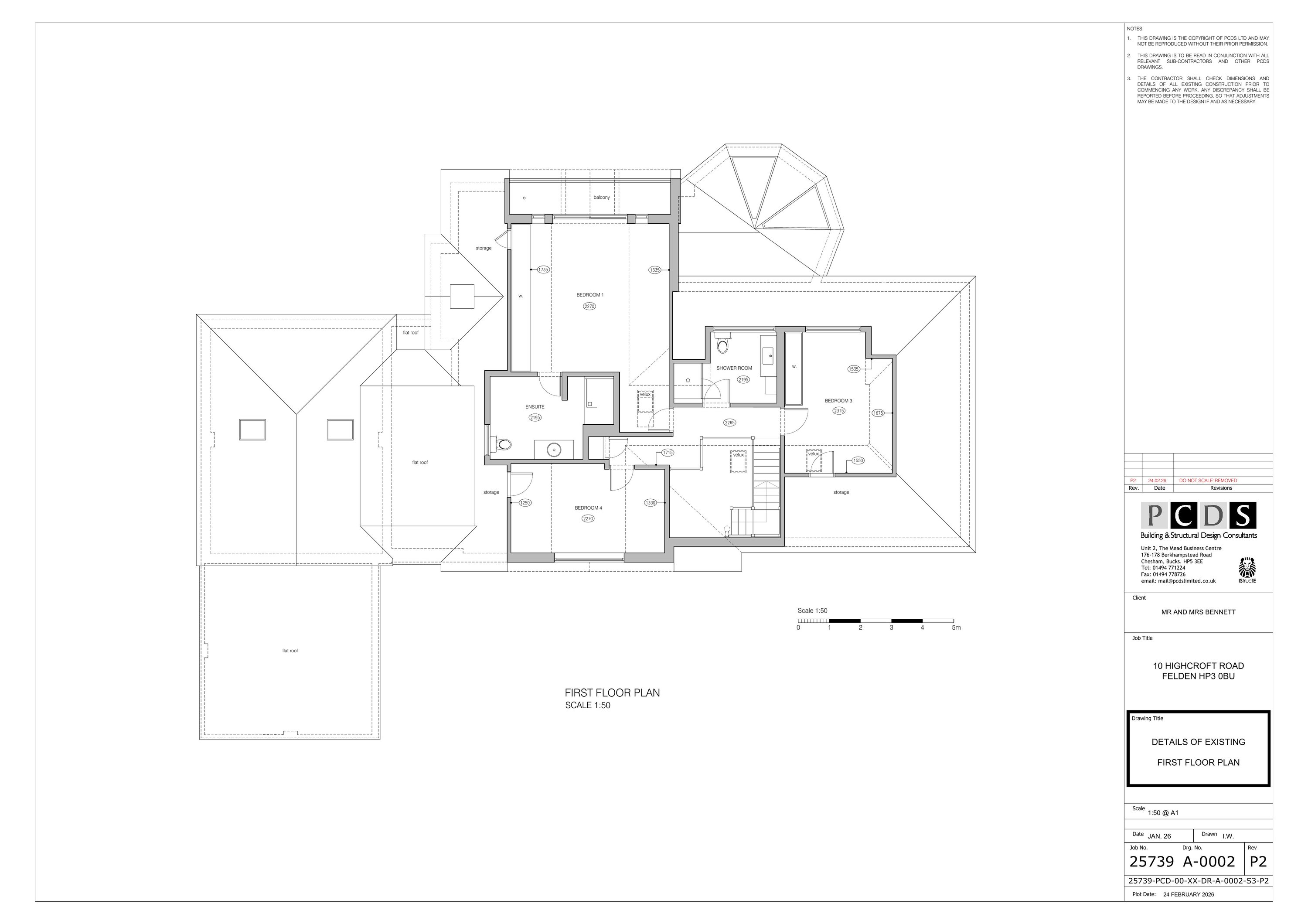
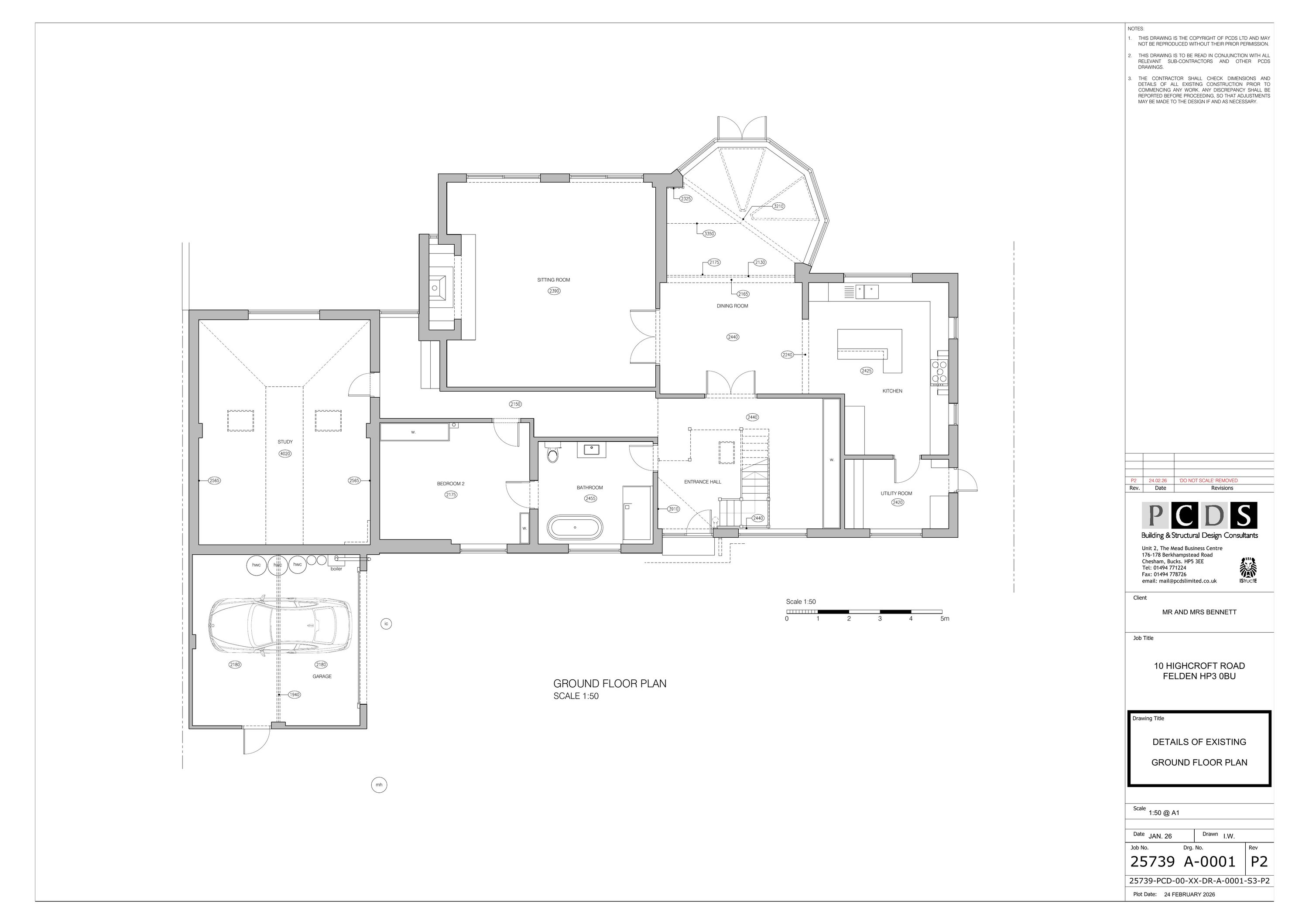
Existing Floor Plan
Archived · Original link
Existing Floor Plans
Archived · Original link
Site Location Plan
Archived · Original link
Proposed Elevations
Archived · Original link
Proposed First-Floor Plan
Archived · Original link
Proposed Floor Plan
Archived · Original link

Have your say

Your comment matters. Councils must consider every representation that raises material planning considerations.

Write a comment