← Dacorum Borough Council

Status

With planning case officer House extension
Received
Last month
New homes
0

Full proposal

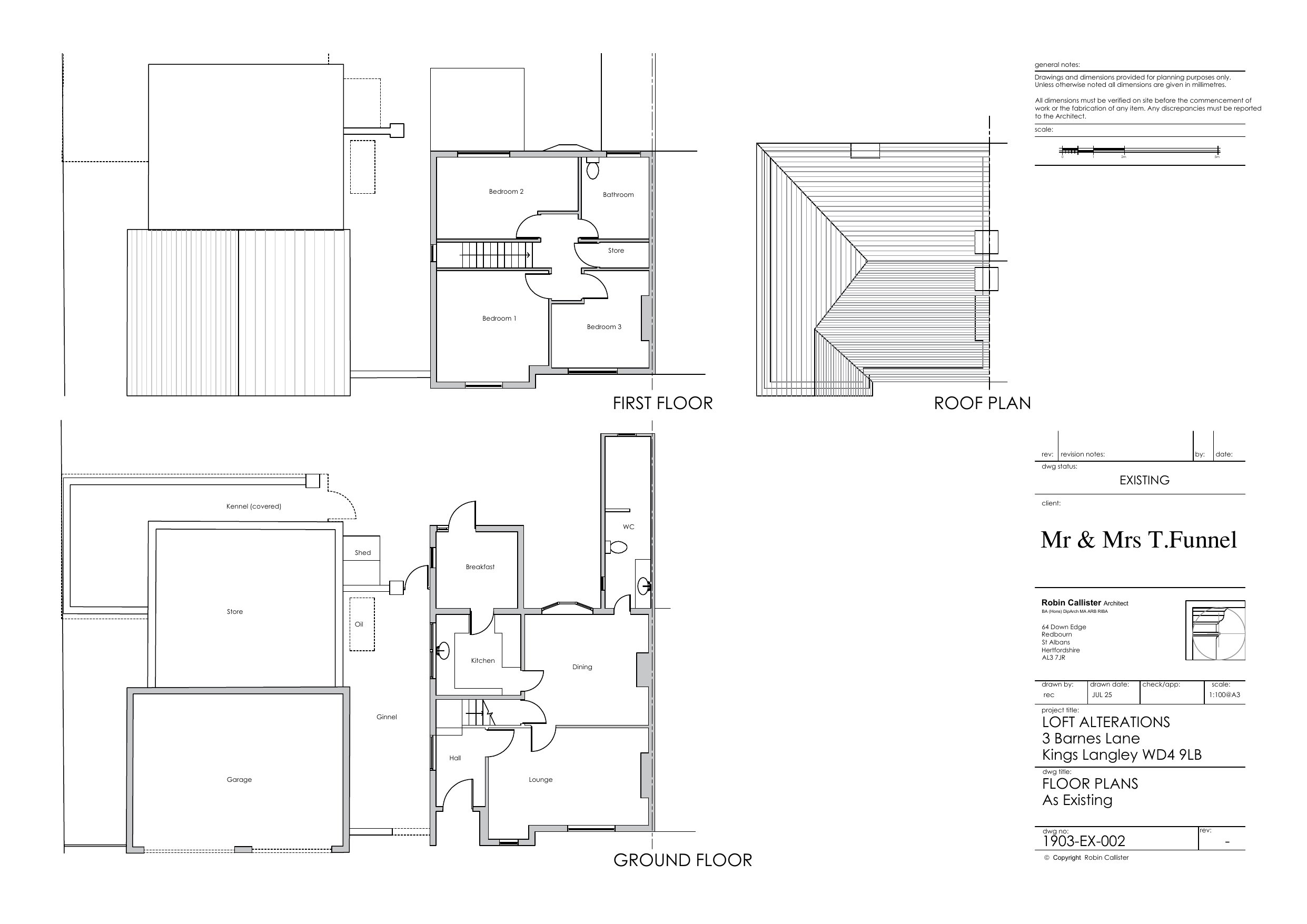
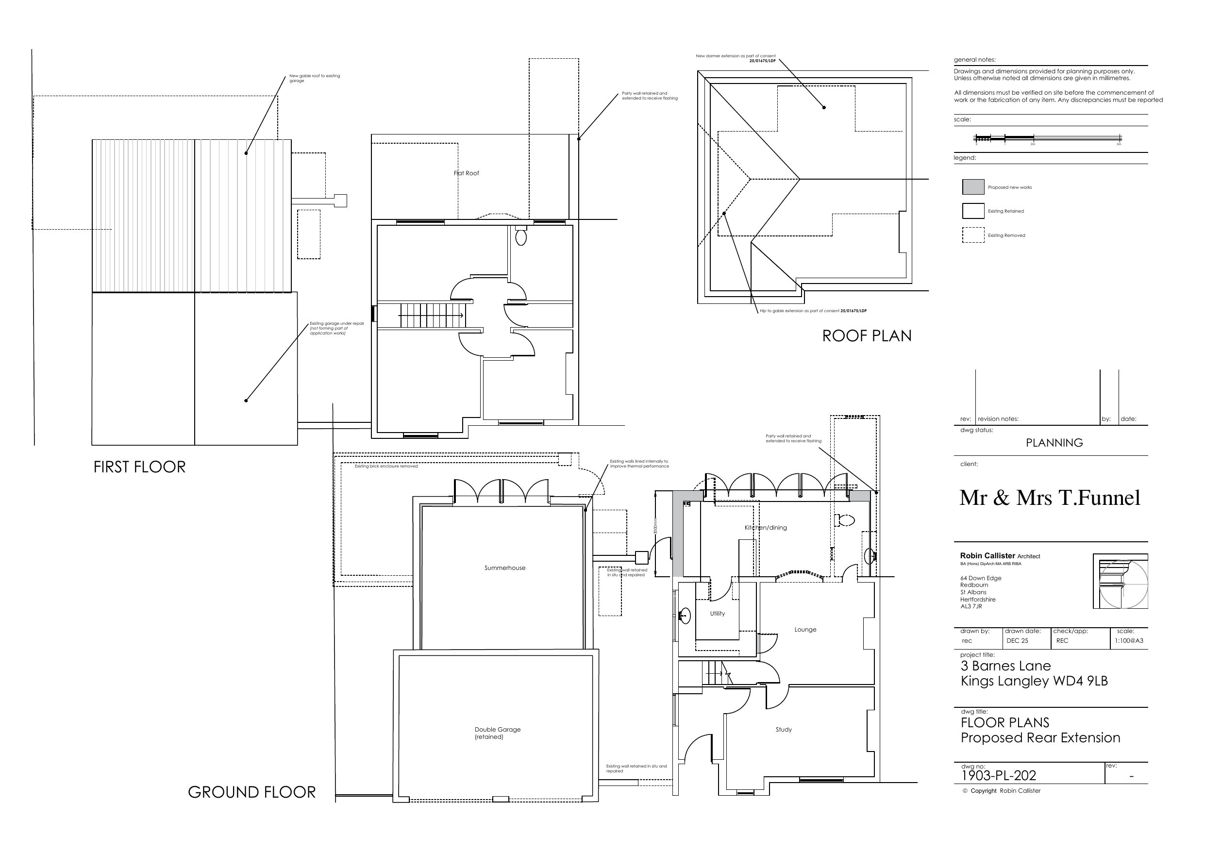
Demolition of rear outriggers.New single storey ground floor extension and new roof to part garage.

Documents

Proposed Floor Plans
Archived · Original link
Application Form Redacted
Archived · Original link
Existing Elevations
Archived · Original link
Existing Floor Plans
Archived · Original link
Location Plan
Archived · Original link
Proposed Elevation
Archived · Original link
Site & Other Plans
Archived · Original link
Site & Other Plans
Archived · Original link
Additional Plans
Archived · Original link

Have your say

Your comment matters. Councils must consider every representation that raises material planning considerations.

Write a comment