← Dacorum Borough Council

Status

With planning case officer House extension
Received
Last month
New homes
0

Full proposal

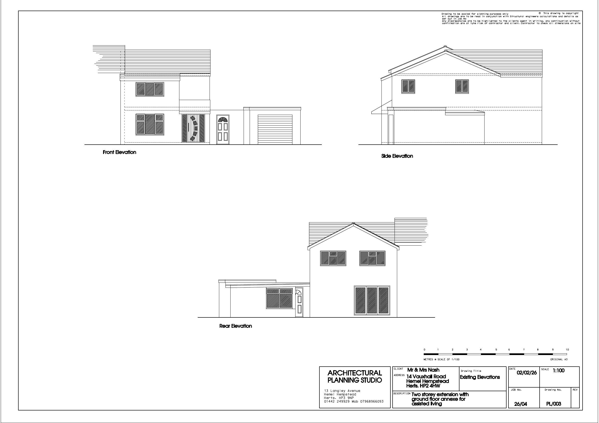
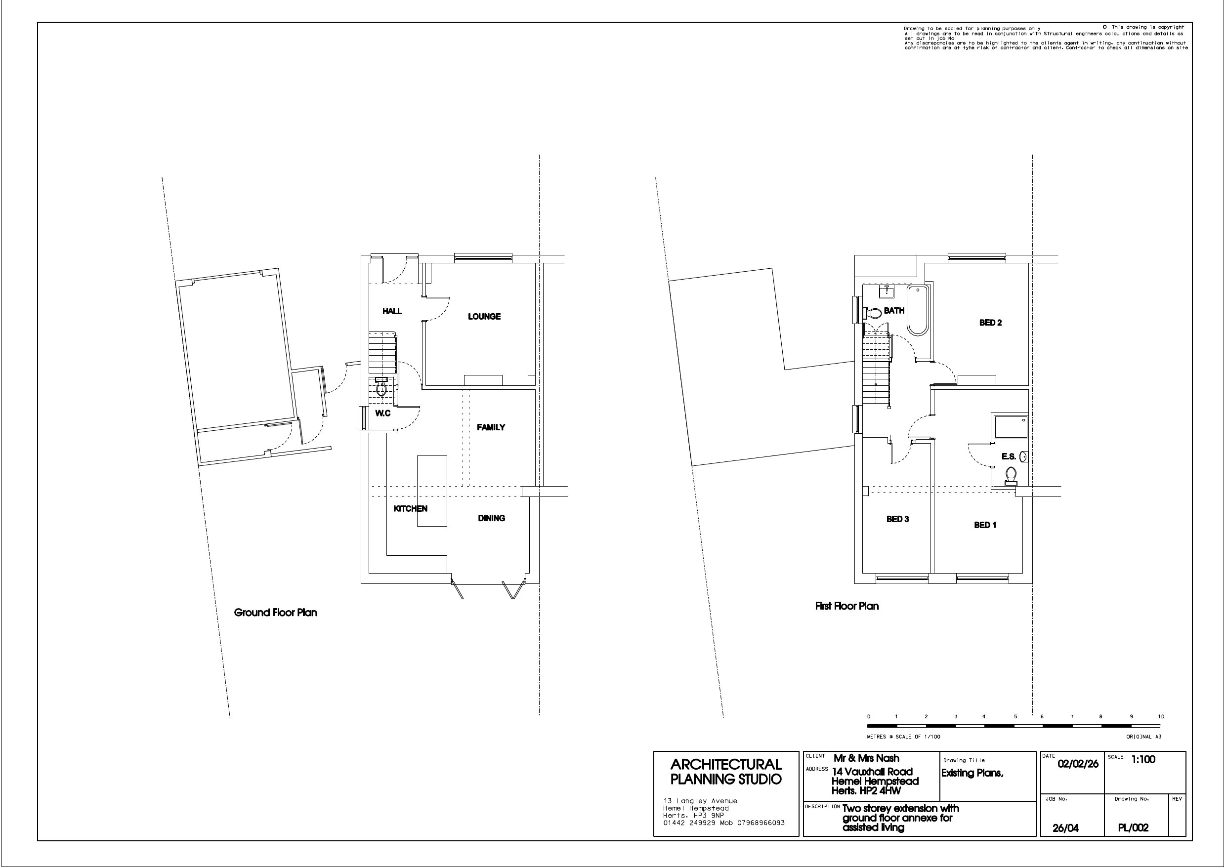
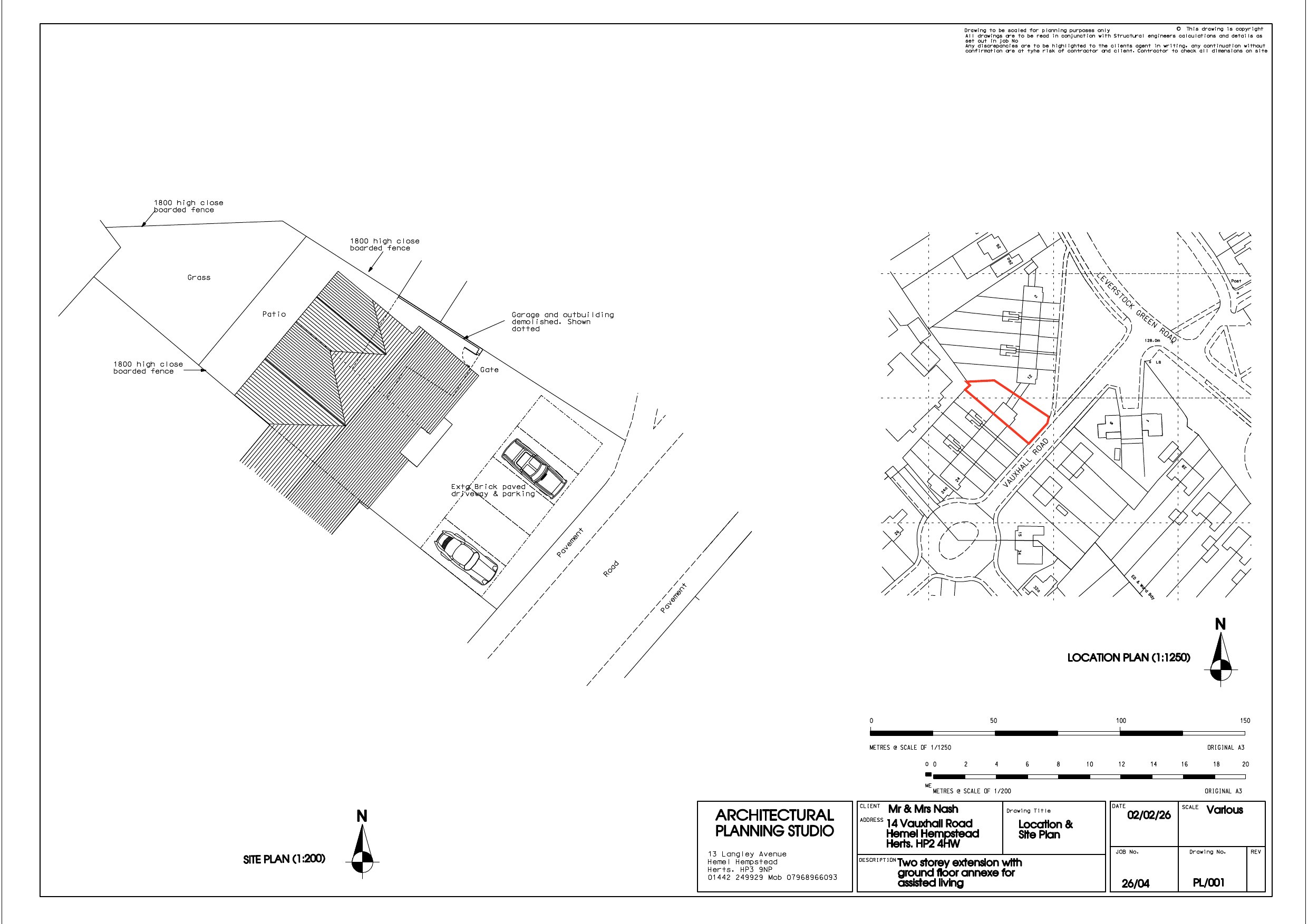
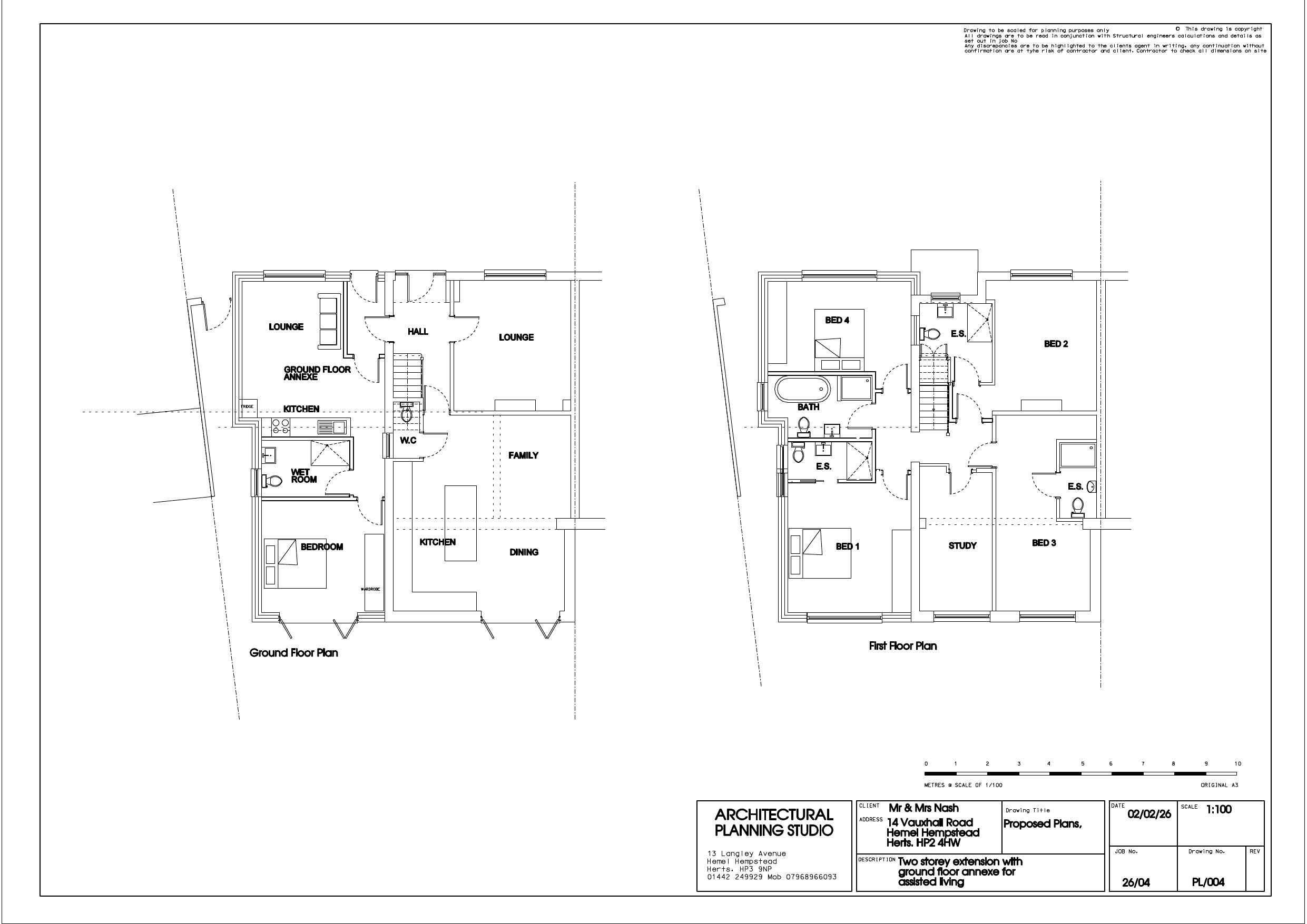
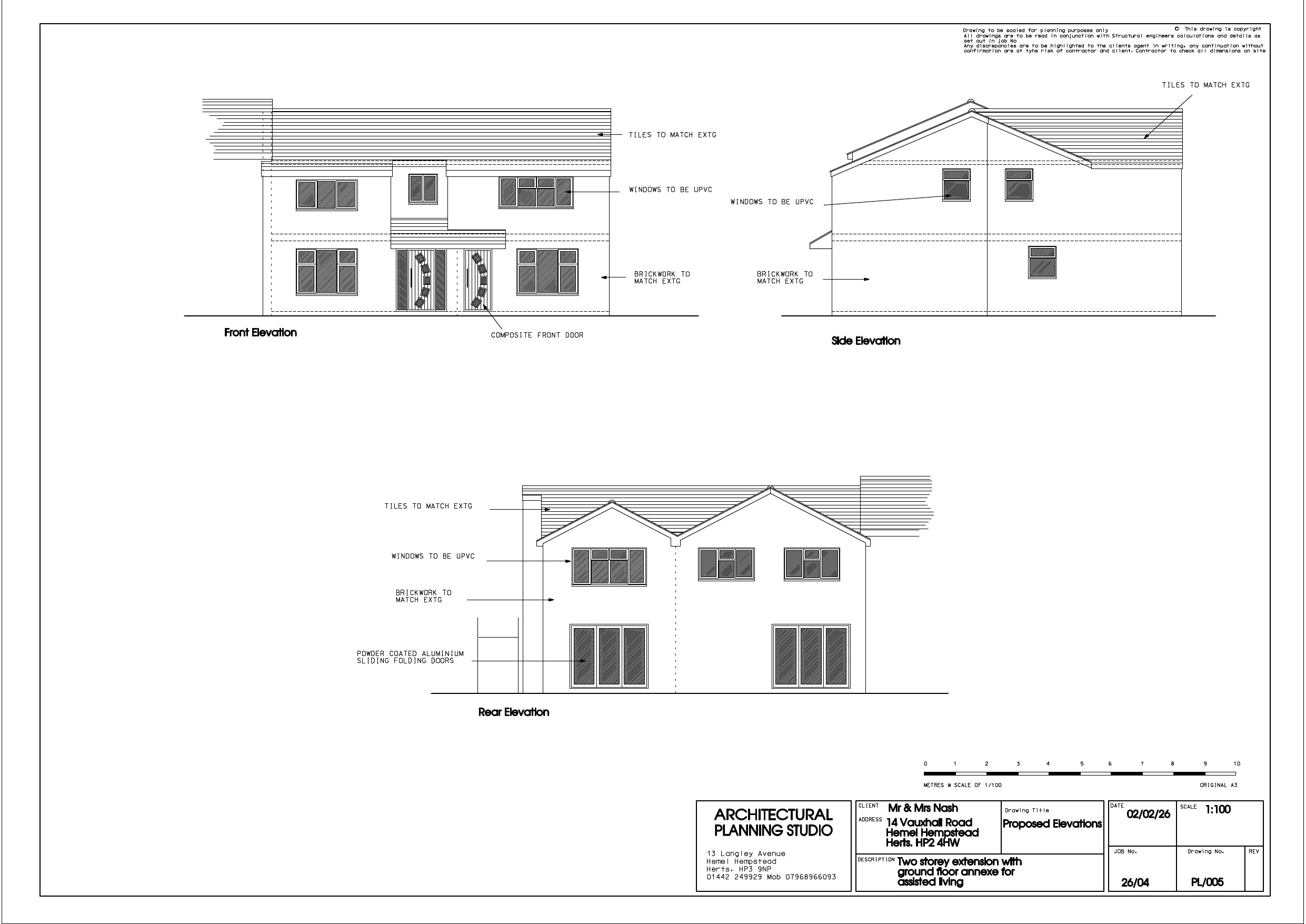
Two storey side extension with ground floor annexe for assisted living.

Documents

Application Form Redacted
Archived · Original link
Existing Elevations
Archived · Original link
Existing Floor Plans
Archived · Original link
Site Location Plan
Archived · Original link
Proposed Elevations
Archived · Original link
Proposed Floor Plans
Archived · Original link

Have your say

Your comment matters. Councils must consider every representation that raises material planning considerations.

Write a comment