← Dacorum Borough Council

Status

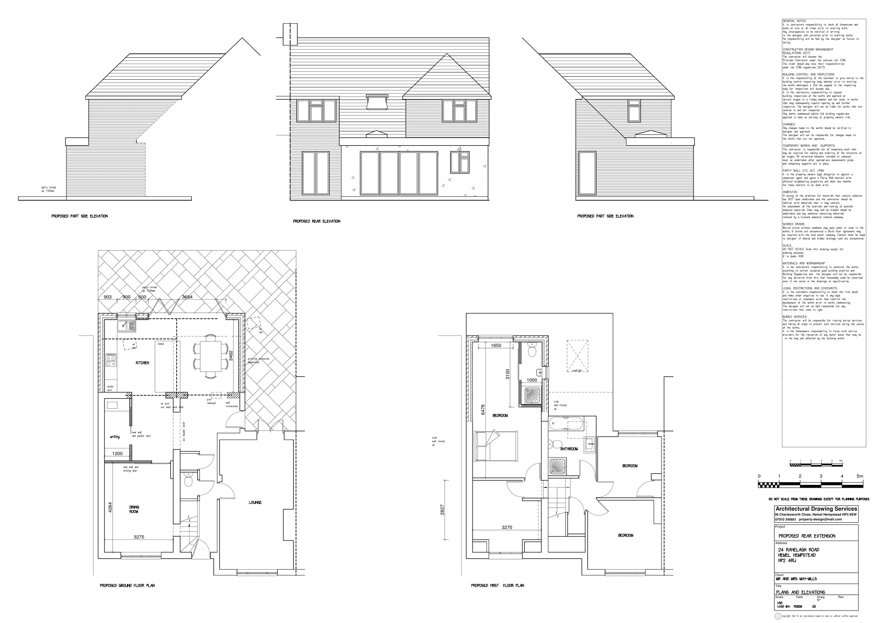
With planning case officer House extension
Received
Last month
New homes
0

Full proposal

Demolition of rear single storey extension. New single storey rear extension and part 1st Floor extension.

Documents

Existing Plan
Archived · Original link
Site Location Plan
Archived · Original link
Proposed Plan
Archived · Original link

Have your say

Your comment matters. Councils must consider every representation that raises material planning considerations.

Write a comment