← Dacorum Borough Council

Status

With planning case officer House extension
Received
Last month
New homes
0

Full proposal

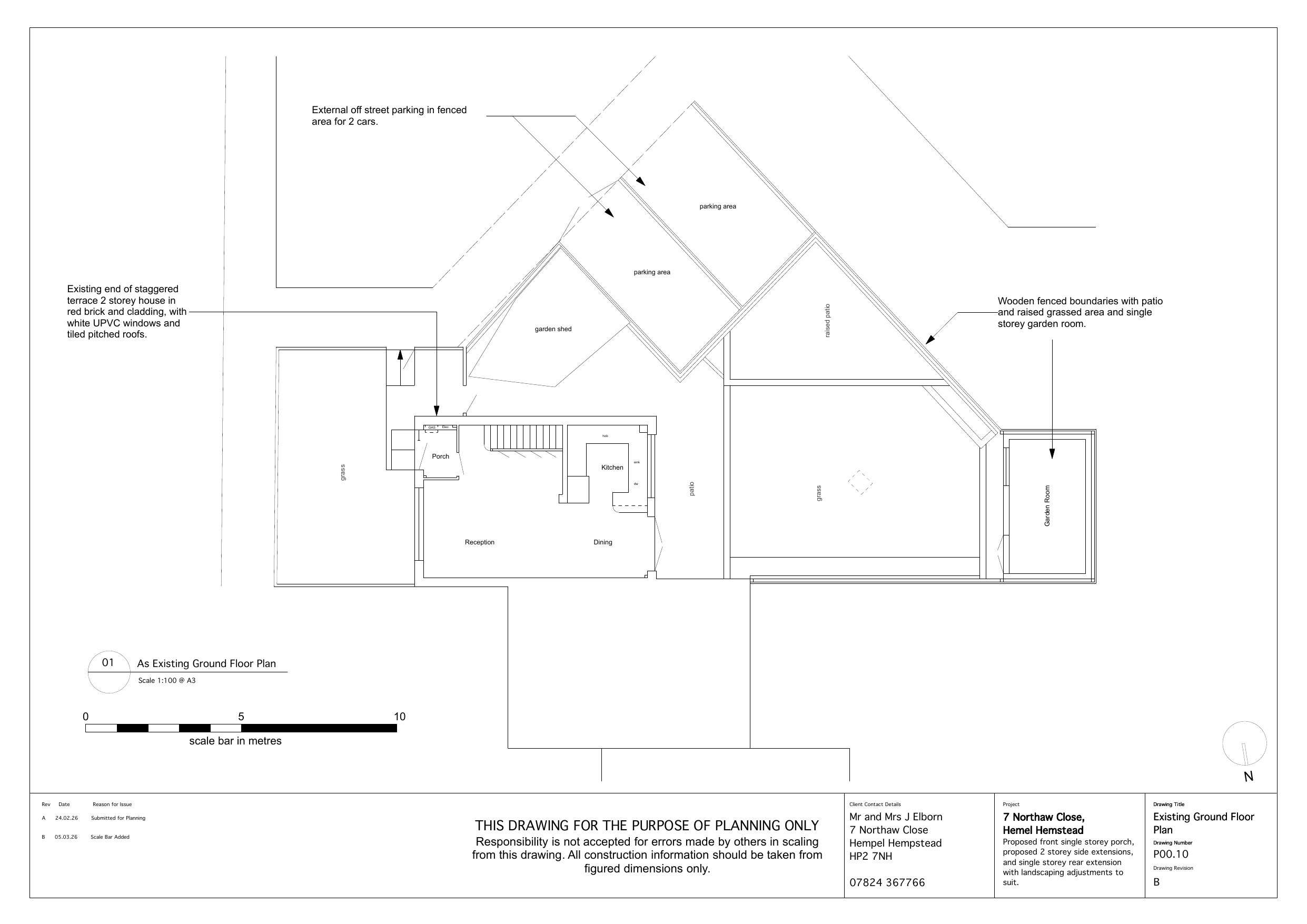
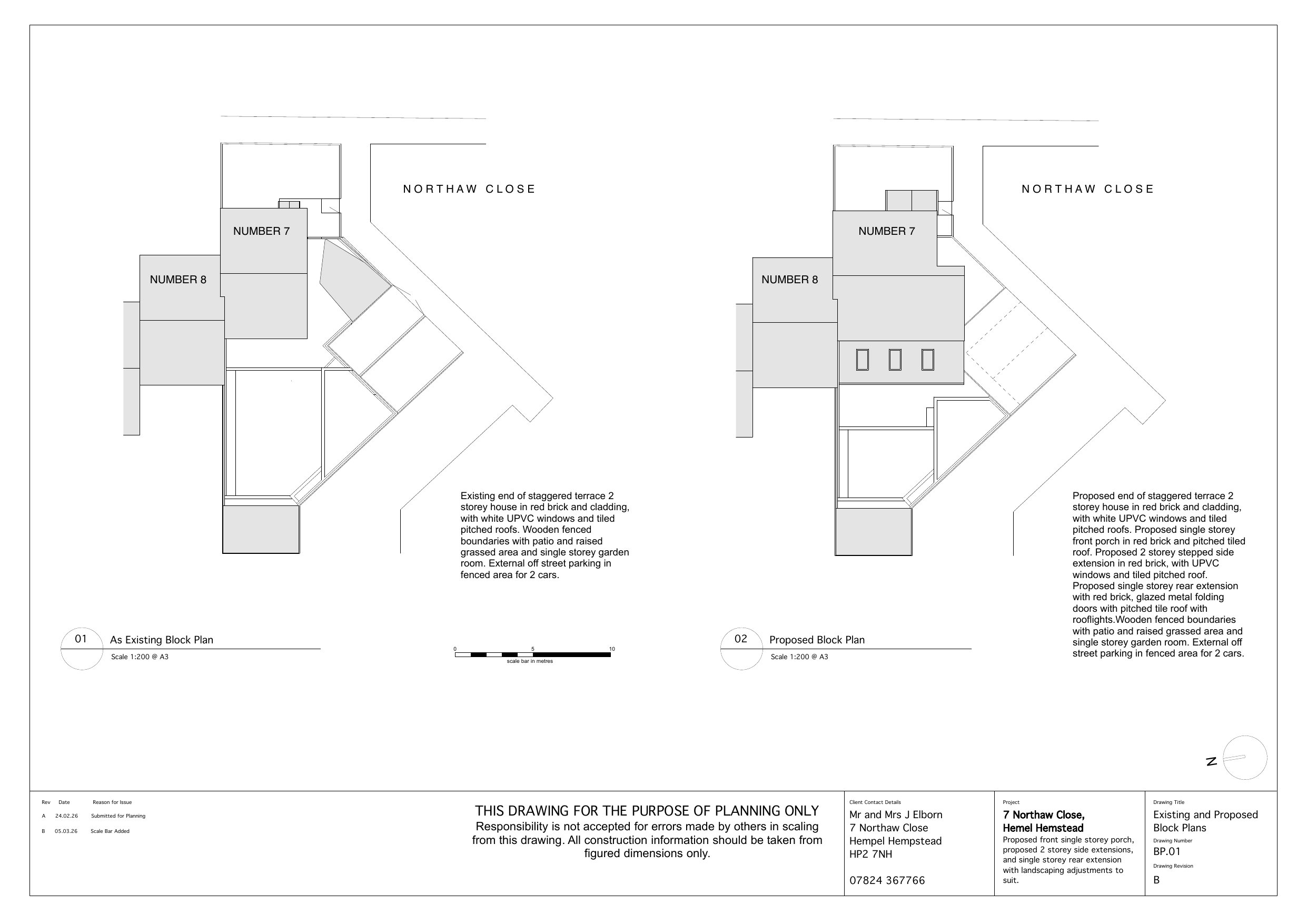
Front porch, two storey side extensions and single storey rear extension with landscaping adjustments

Documents

Application Form Redacted
Archived · Original link
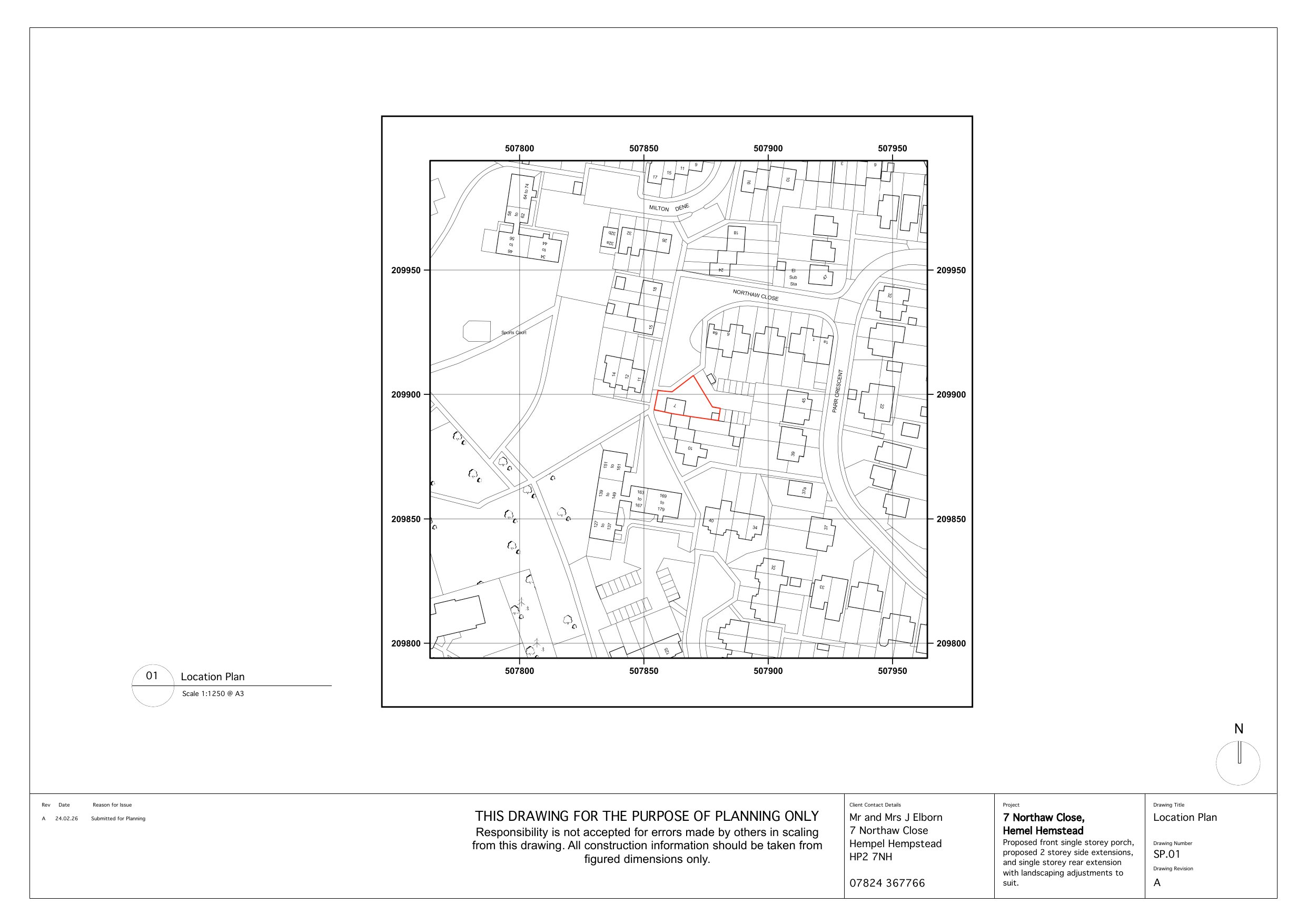
Block Plan of the Site
Archived · Original link
Additional Plans
Archived · Original link
Location Plan
Archived · Original link
Plans/Drawings
Archived · Original link
Photos Online
Archived · Original link

Have your say

Your comment matters. Councils must consider every representation that raises material planning considerations.

Write a comment