← Dacorum Borough Council

Status

With planning case officer Change of use
Received
Last month
New homes
1

Full proposal

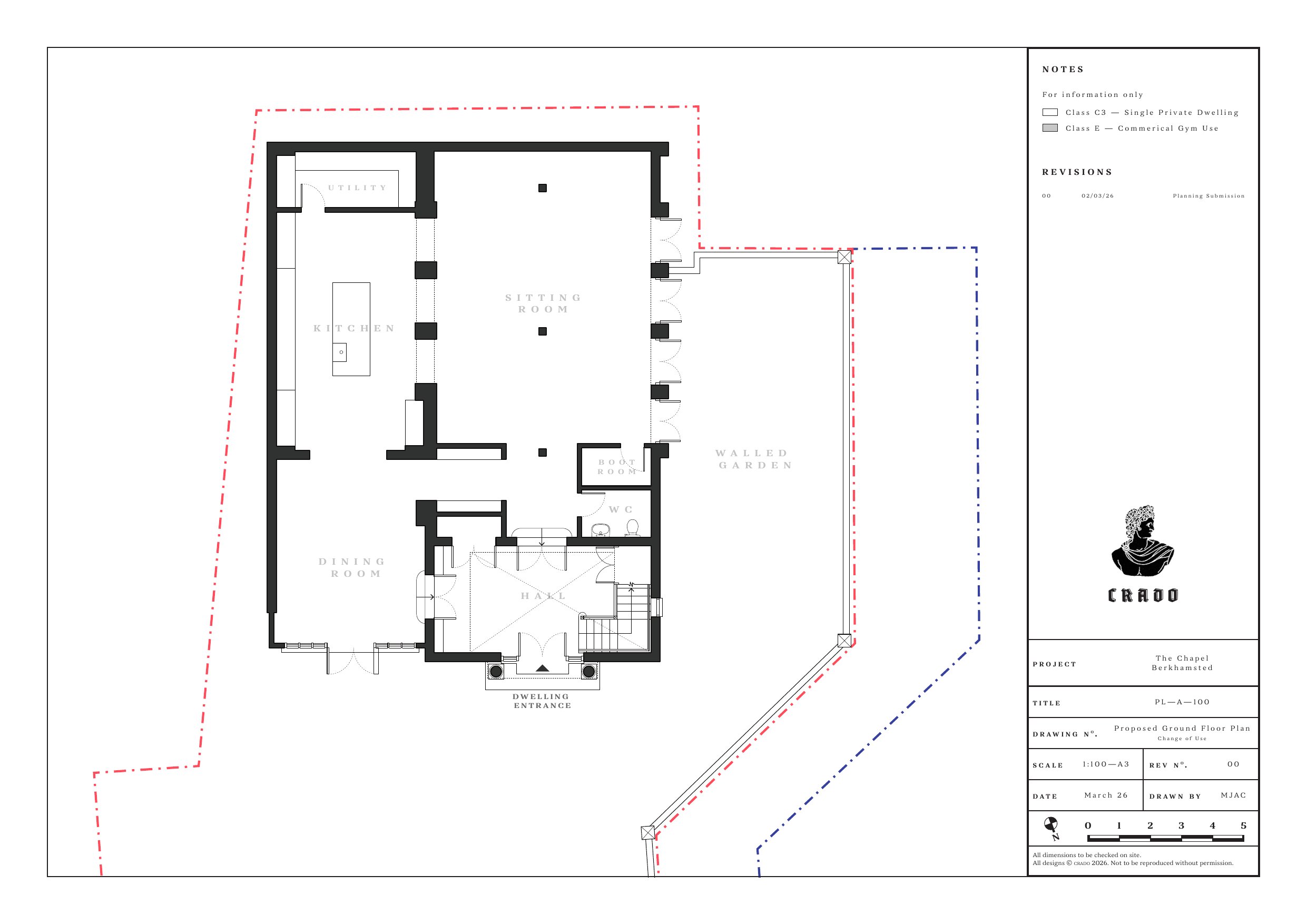
Change of use of the ground floor of The Chapel from Class E (commercial gym) to Class C3 (dwellinghouse), resulting in a single dwelling occupying the building in its entirety. New vehicular access from Chapel Street, including a dropped kerb.

Documents

Application Form Redacted
Archived · Original link
Application Form
Archived · Original link
Design & Access Statement
Archived · Original link
Site Location Plan
Archived · Original link
Site & Other Plans
Archived · Original link
Proposed Elevations
Archived · Original link
Proposed Floor Plan
Archived · Original link
Proposed Floor Plan
Archived · Original link
Proposed Floor Plan
Archived · Original link
Site & Other Plans
Archived · Original link

Have your say

Your comment matters. Councils must consider every representation that raises material planning considerations.

Write a comment