← Dacorum Borough Council

Status

With planning case officer House extension
Received
Last month
New homes
0

Full proposal

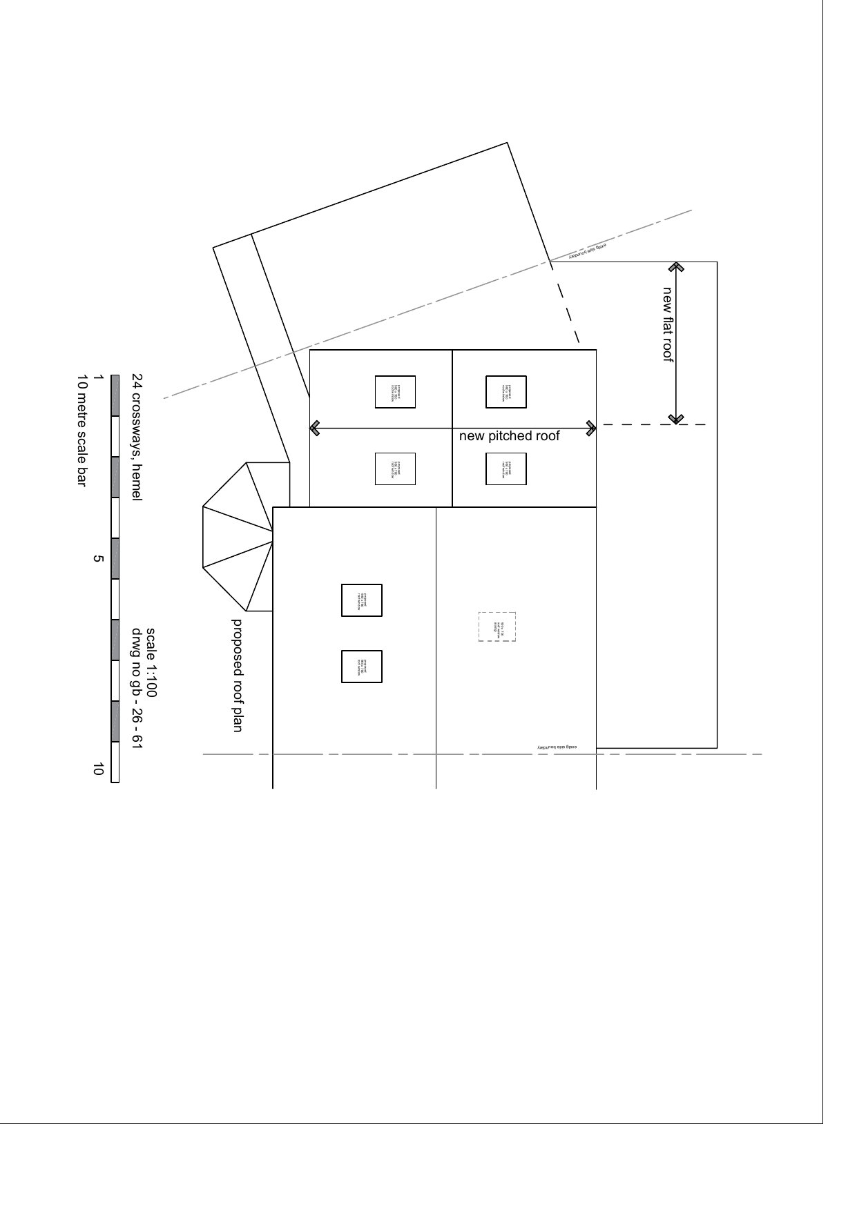
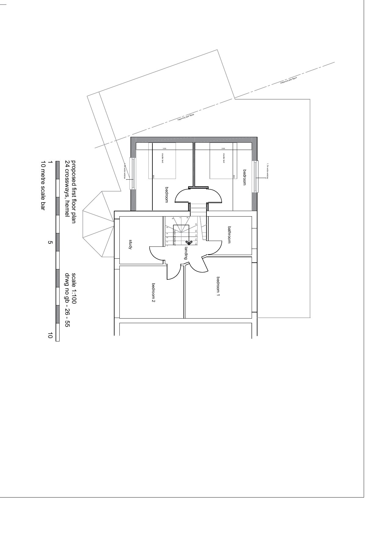
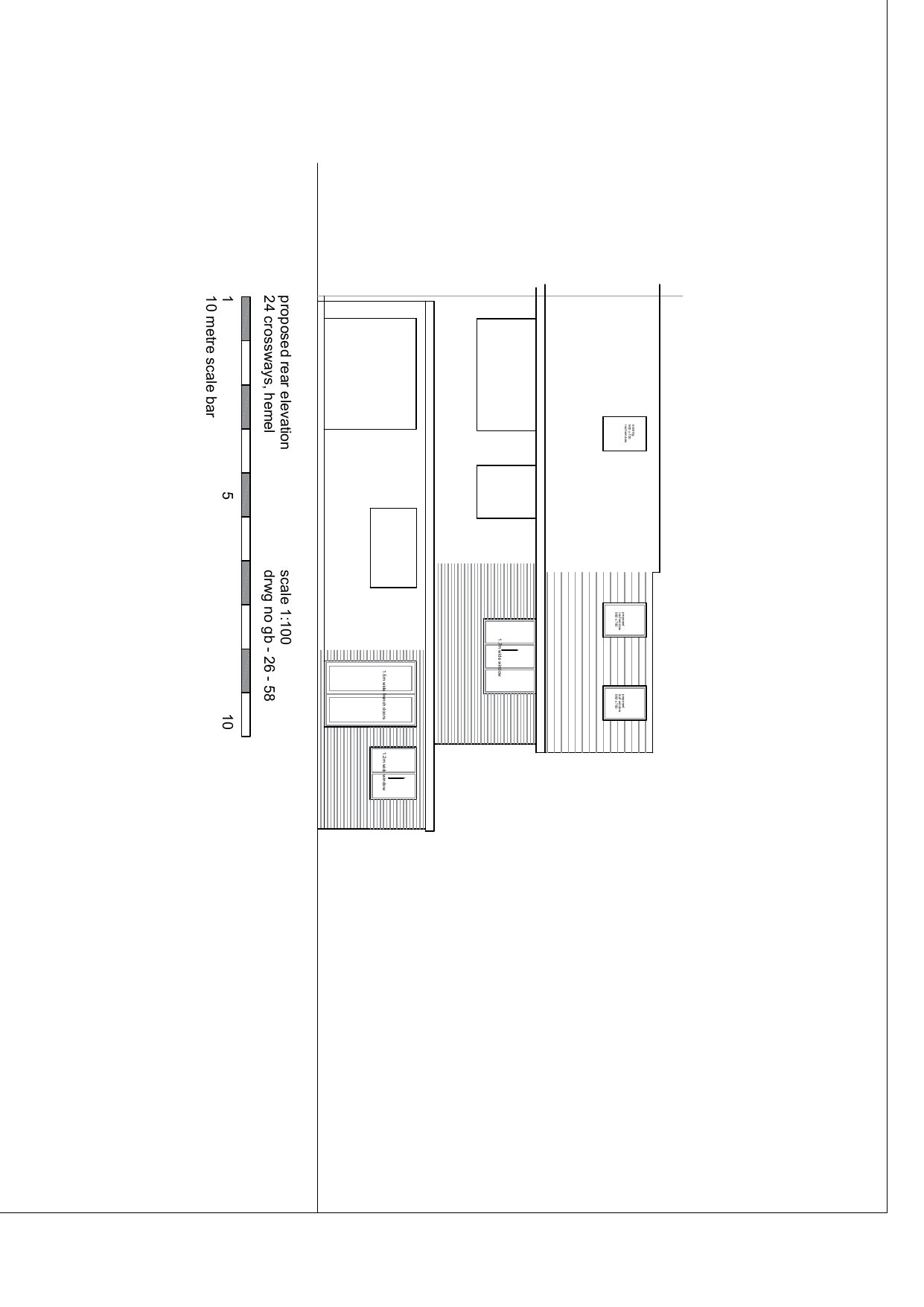
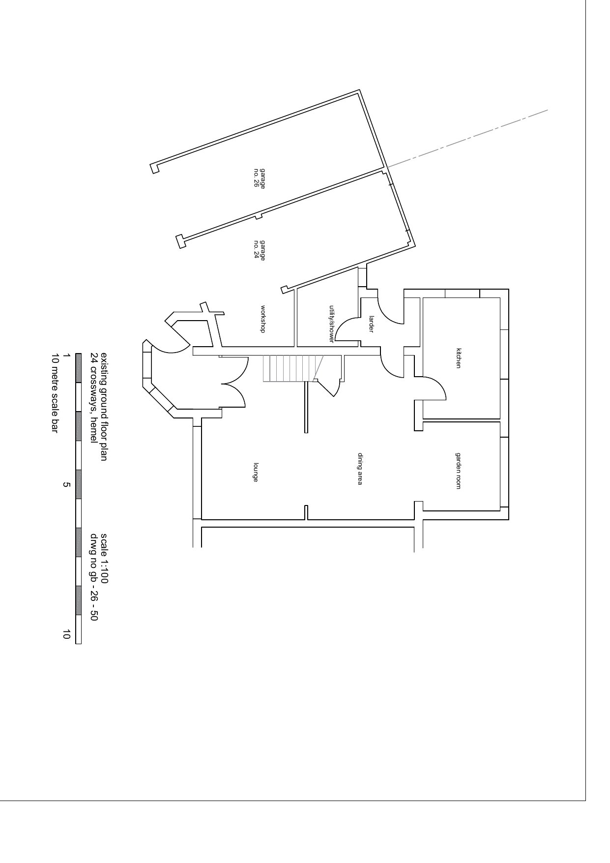
First floor side extension. Single storey rear extension. Garage conversion.

Documents

Application Form Redacted
Archived · Original link
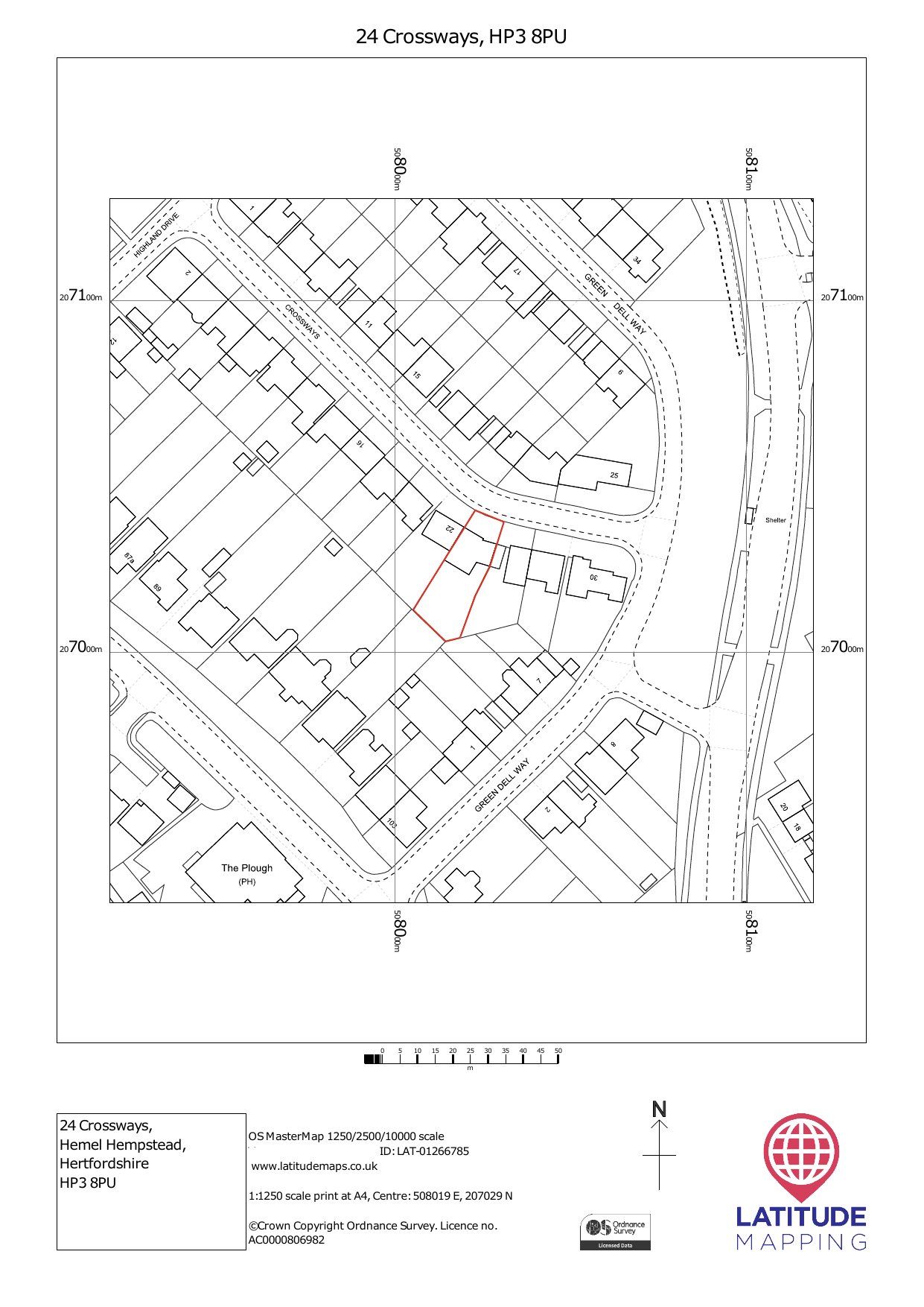
Block Plan of the Site
Archived · Original link
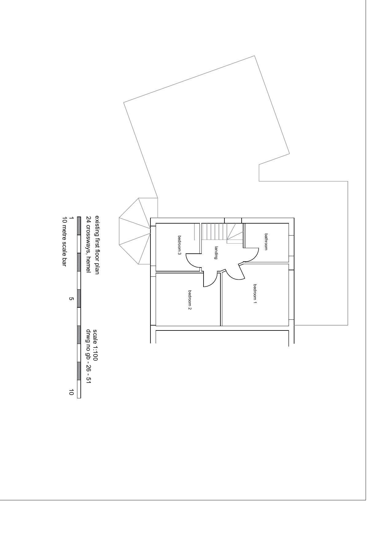
Existing Floor Plans
Archived · Original link
Existing Floor Plans
Archived · Original link
Existing Elevations
Archived · Original link
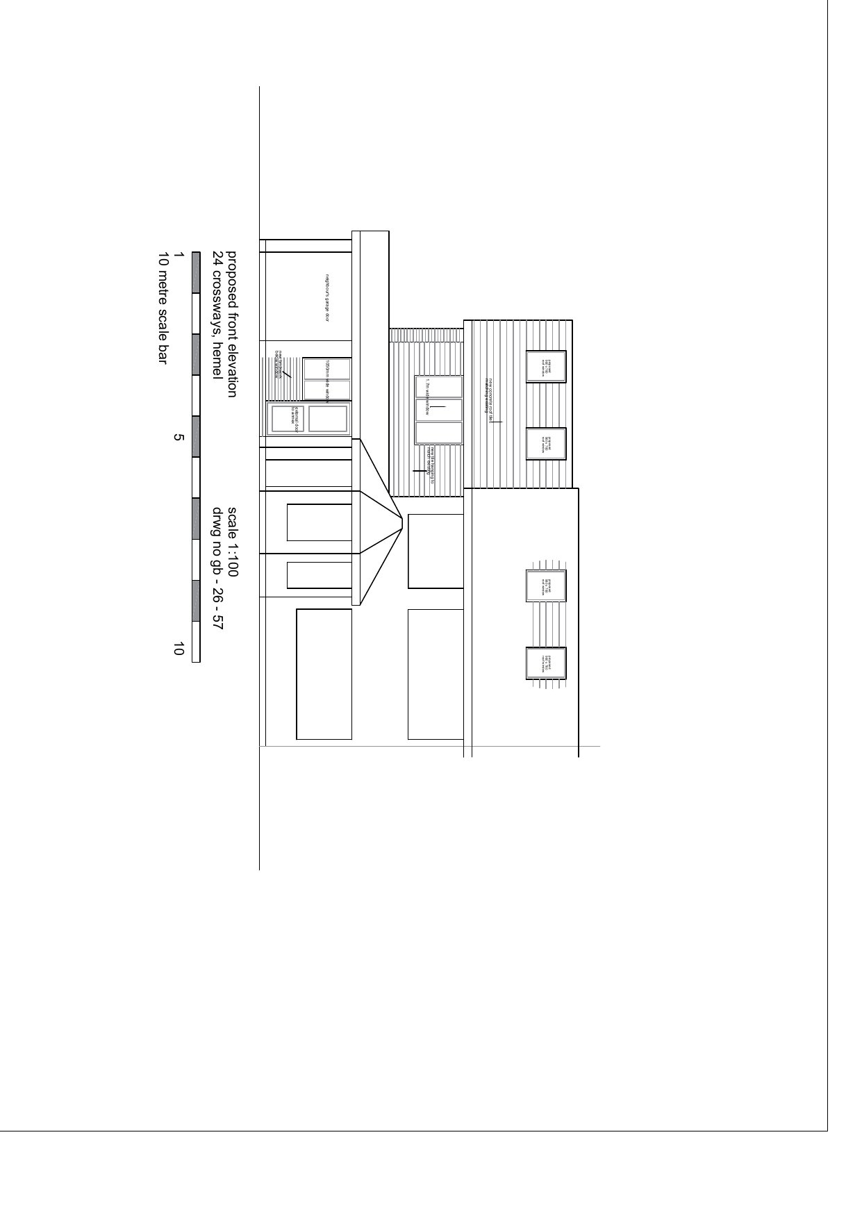
Proposed Elevations
Archived · Original link
Proposed First-Floor Plan
Archived · Original link
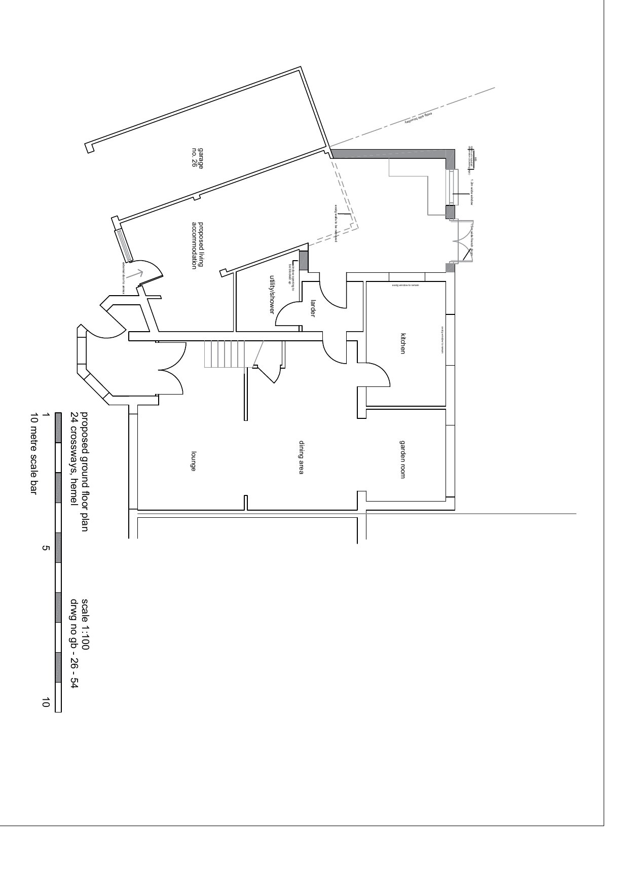
Proposed Floor Plan
Archived · Original link
Proposed Elevations
Archived · Original link
Proposed Elevations
Archived · Original link

Have your say

Your comment matters. Councils must consider every representation that raises material planning considerations.

Write a comment