← Dacorum Borough Council

Status

With planning case officer New housing
Received
Last month
New homes
1

Full proposal

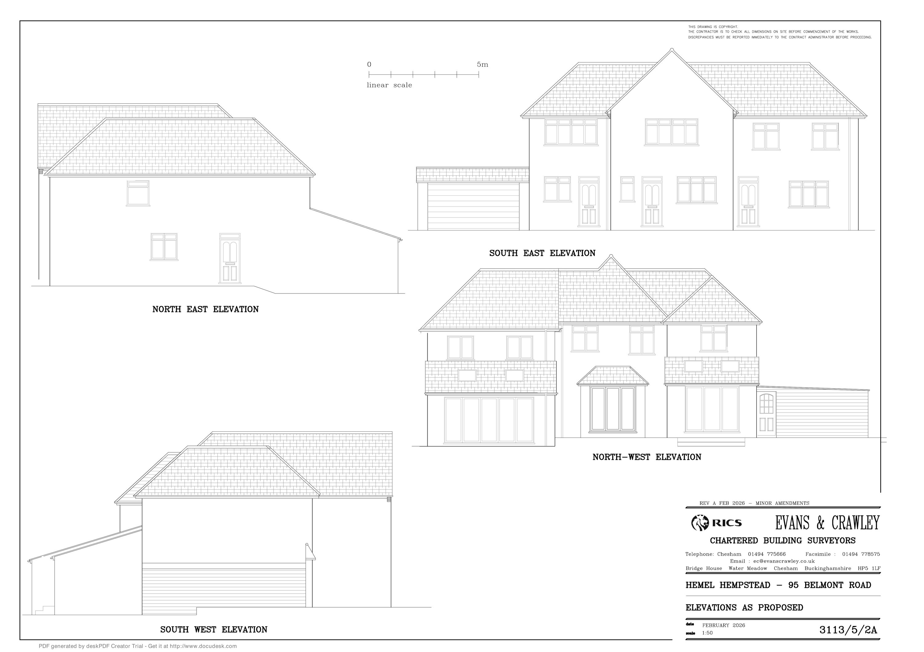
Subdivision of existing dwelling to form a separate 1 bedroom house. Rear extension and dropped kerb

Documents

Sustainability Appraisal
Archived · Original link
Application Form Redacted
Archived · Original link
Design & Access Statement
Archived · Original link
Drawing register for 1 new dwelling
Additional Information
Not yet archived · Original link
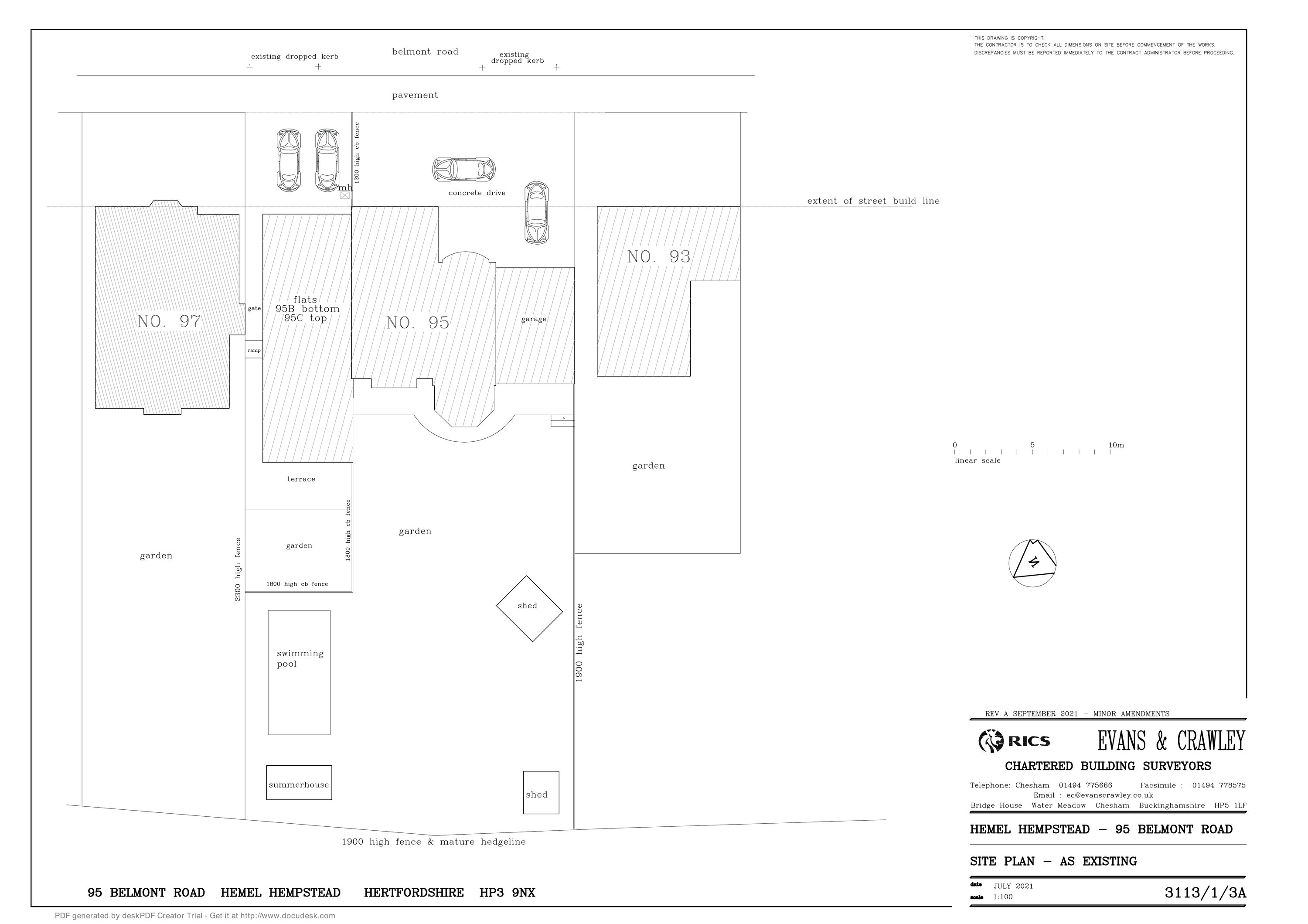
Site & Other Plans
Archived · Original link
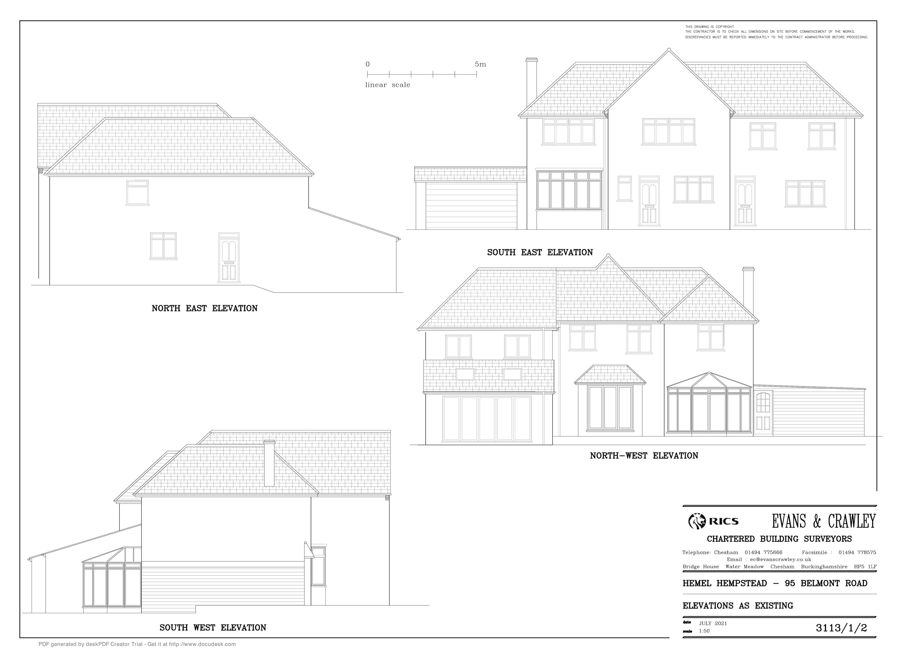
Existing Elevations
Archived · Original link
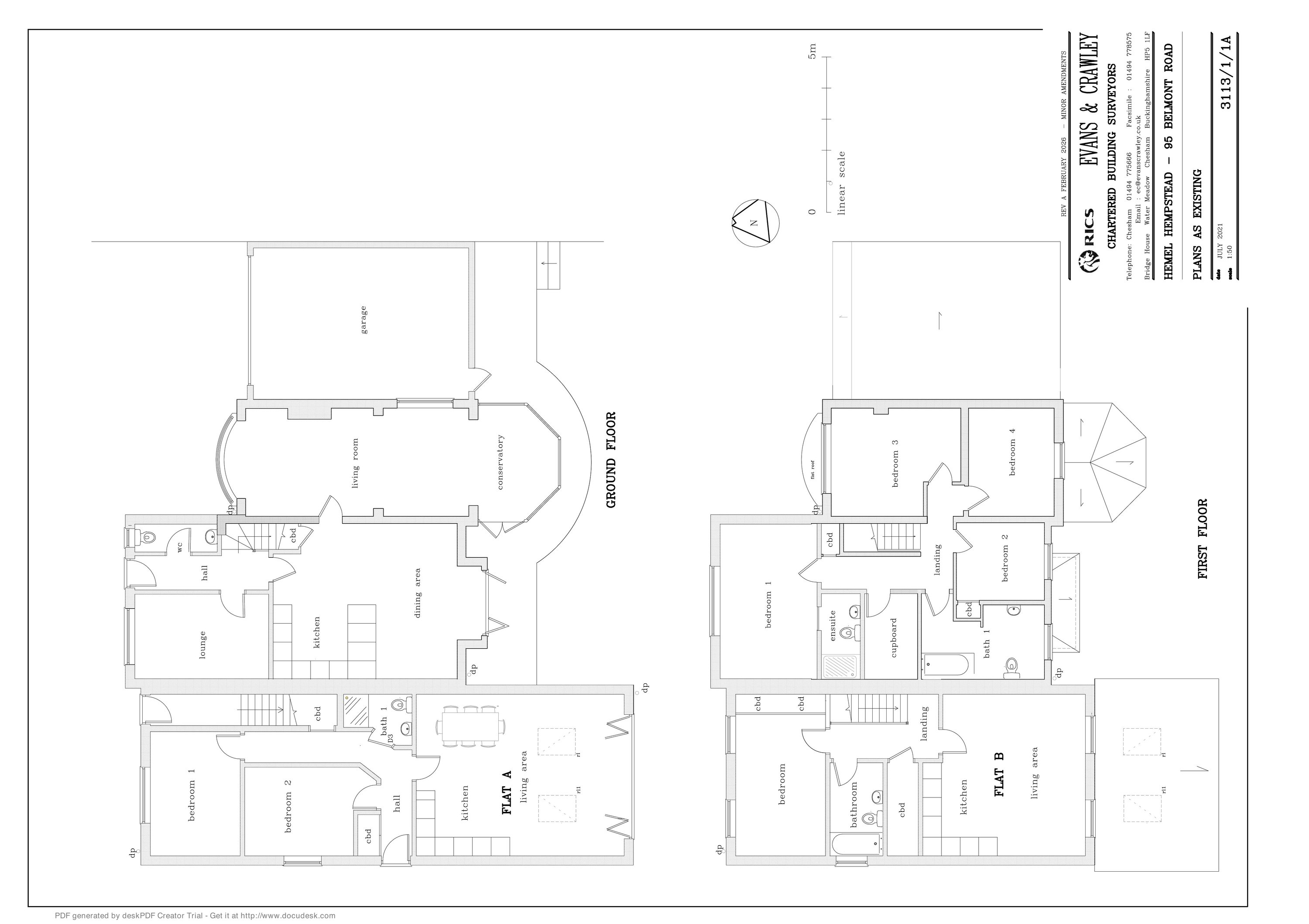
Existing Floor Plans
Archived · Original link
Location Plan
Archived · Original link
Site & Other Plans
Archived · Original link
Proposed Elevation
Archived · Original link
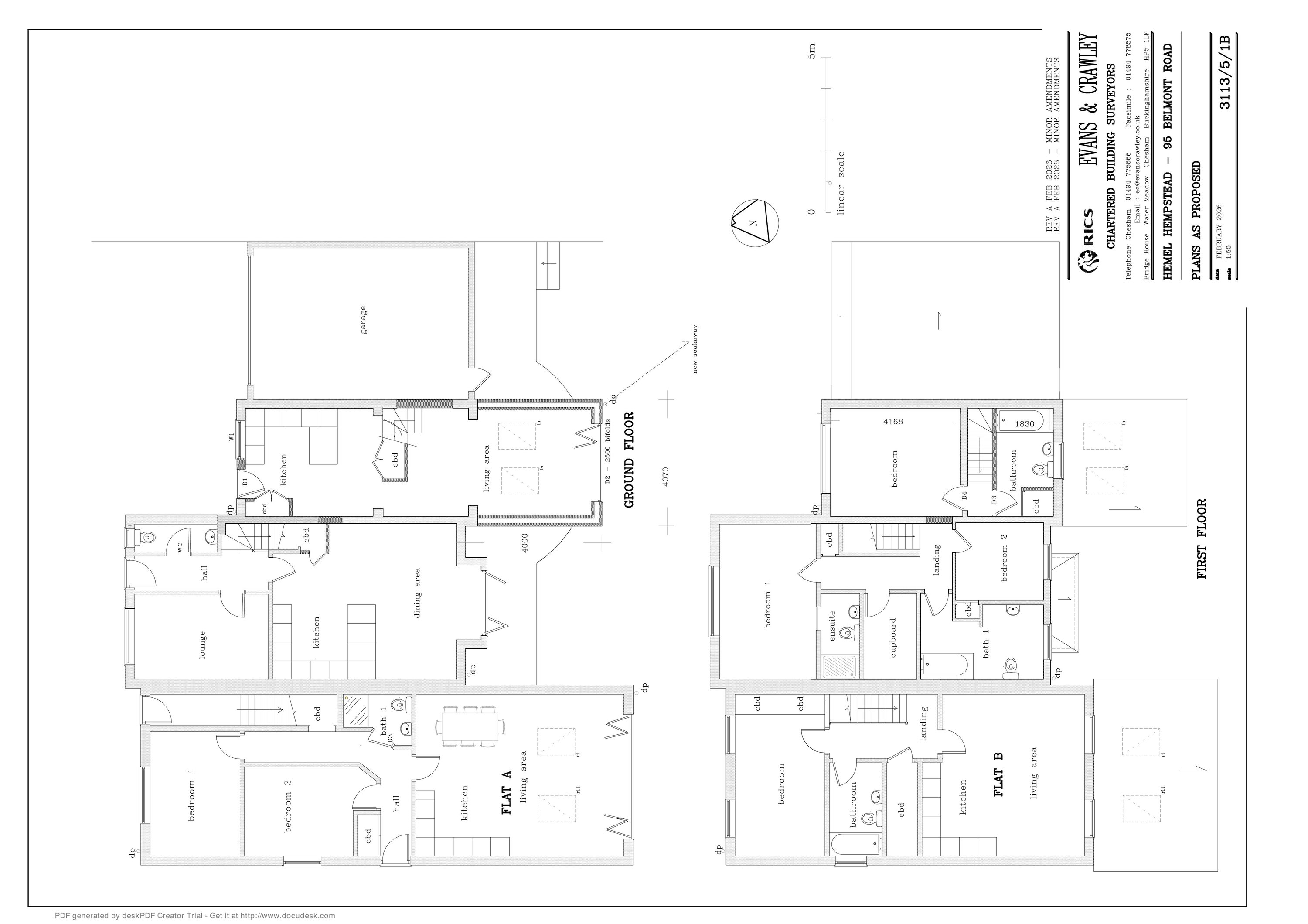
Proposed Floor Plans
Archived · Original link

Have your say

Your comment matters. Councils must consider every representation that raises material planning considerations.

Write a comment