← Dacorum Borough Council

Status

Awaiting final decision House extension
Received
Last month
New homes
0

Full proposal

Loft Conversion with roof altered from hipped roof to gable end with new dormer and rooflights.

Documents

Location Plan
Archived · Original link
Block Plan of the Site
Archived · Original link
Existing Elevations
Archived · Original link
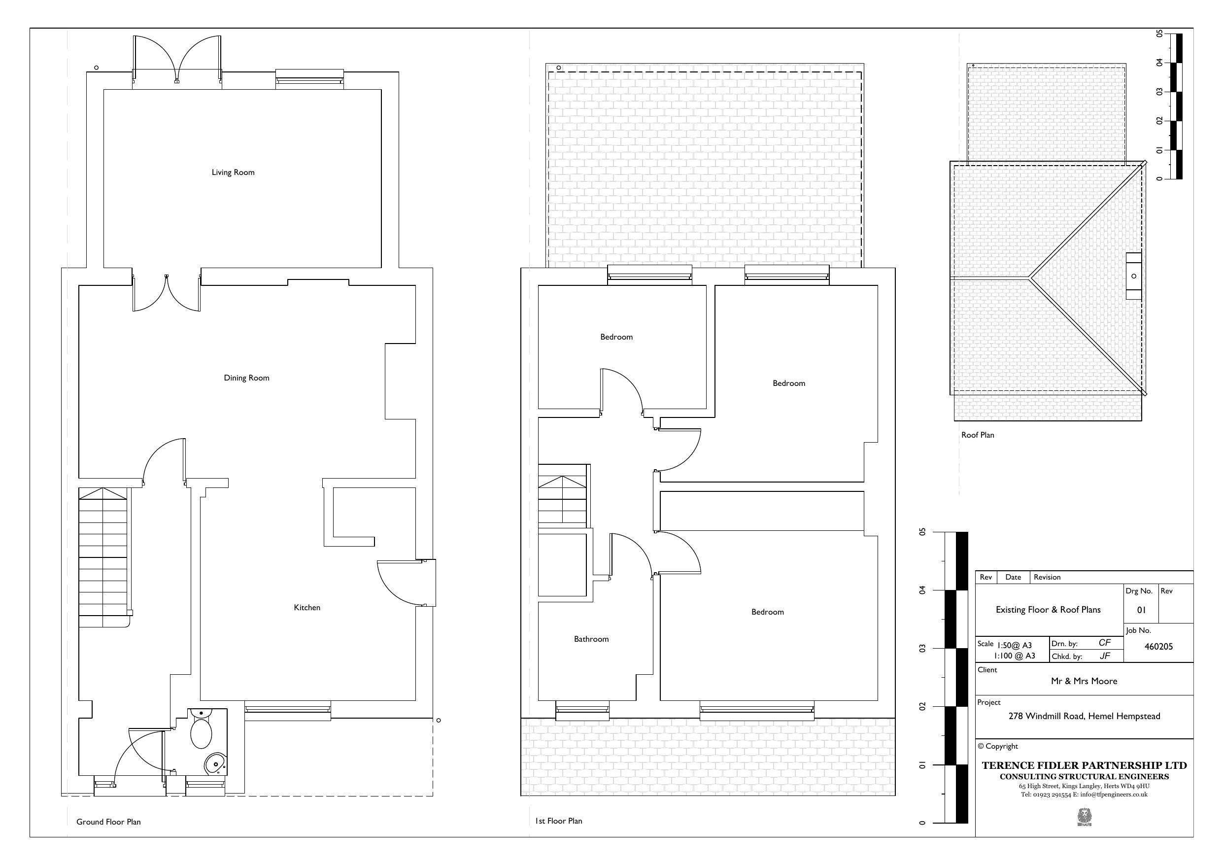
Existing Floor Plans
Archived · Original link
Proposed Elevation
Archived · Original link
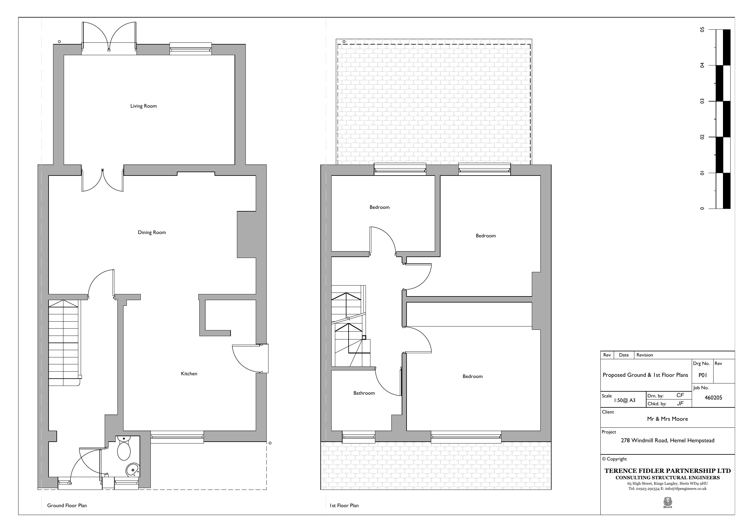
Proposed Floor Plan
Archived · Original link
Proposed Floor Plans
Archived · Original link

Have your say

Your comment matters. Councils must consider every representation that raises material planning considerations.

Write a comment