← Gosport Borough Council

Status

Grant Permission House extension
Received
20 Nov 2024
New homes
0

Full proposal

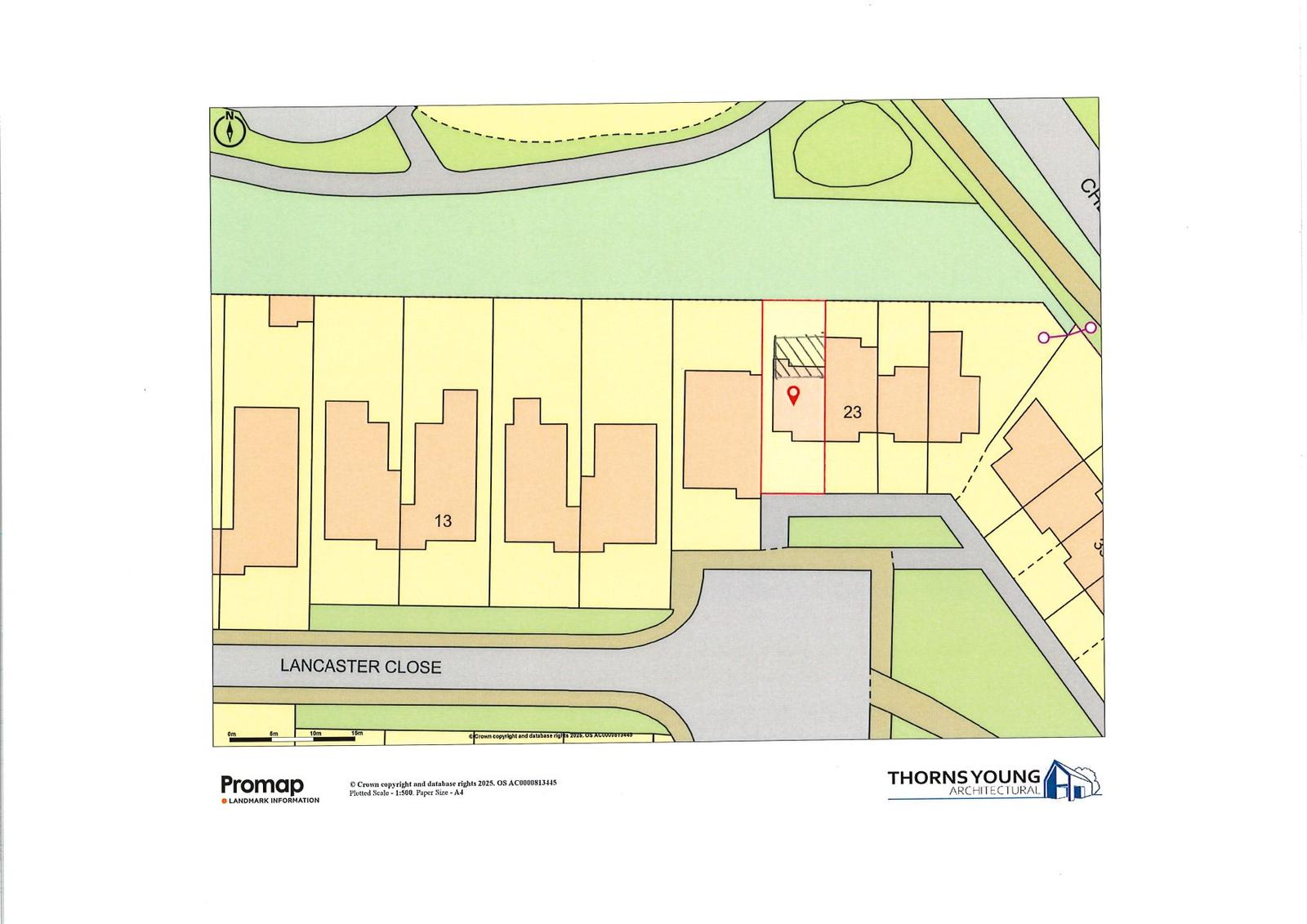
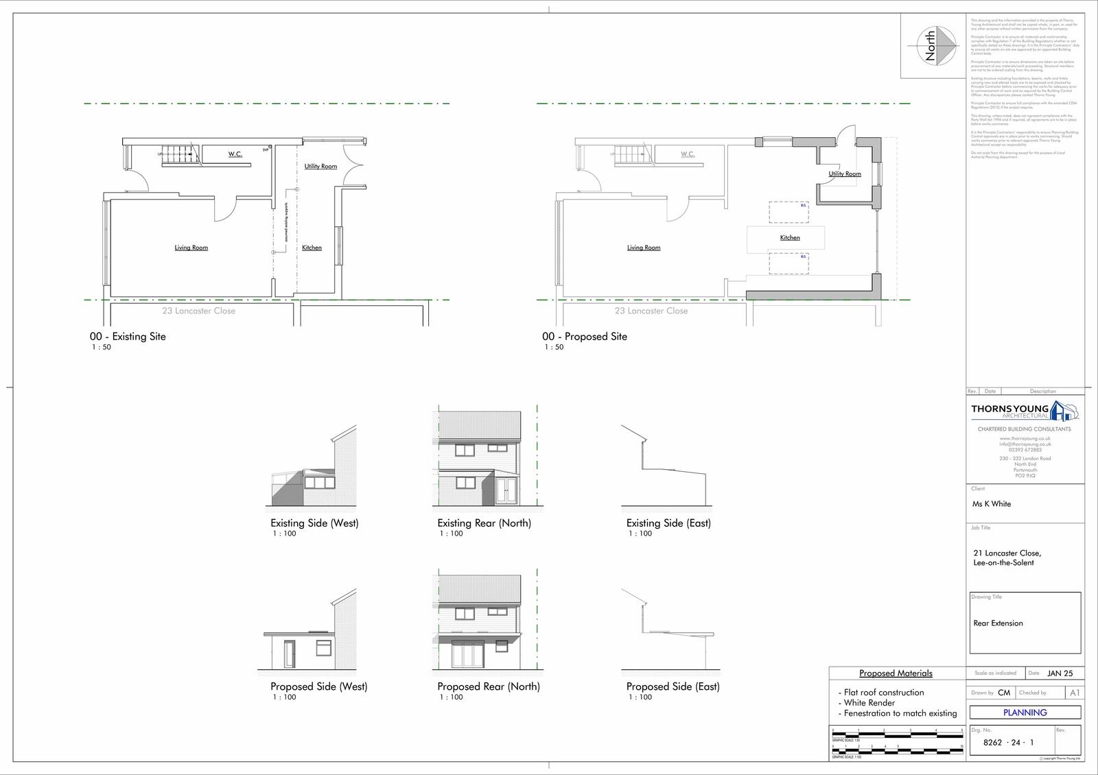
ERECTION OF SINGLE STOREY REAR EXTENSION

Documents

Application Form
Archived · Original link
Supporting Document
Archived · Original link
Decision Notice
Archived · Original link
Officer Report
Archived · Original link
Approved Plans
Archived · Original link
Site Location Plan
Archived · Original link

Have your say

Your comment matters. Councils must consider every representation that raises material planning considerations.

Write a comment