← All councils

Recent applications

The most recent records we hold for this council (up to 200).

Plan thumbnail

GPDO PART 1 NOTIFICATION - ERECTION OF SINGLE STOREY REAR EXTENSION DEPTH OF 4 METRES MAXIMUM HEIGHT OF 3.1 METRES HEIGHT OF EAVES 3 METRES

Type House extension
Status Prior Approval Not Required
Received 09 Jan 2026
Plan thumbnail

ERECTION OF SIDE DORMER AND SINGLE STOREY REAR EXTENSION

Type House extension
Status Grant Permission
Received 05 Jan 2026
Plan thumbnail

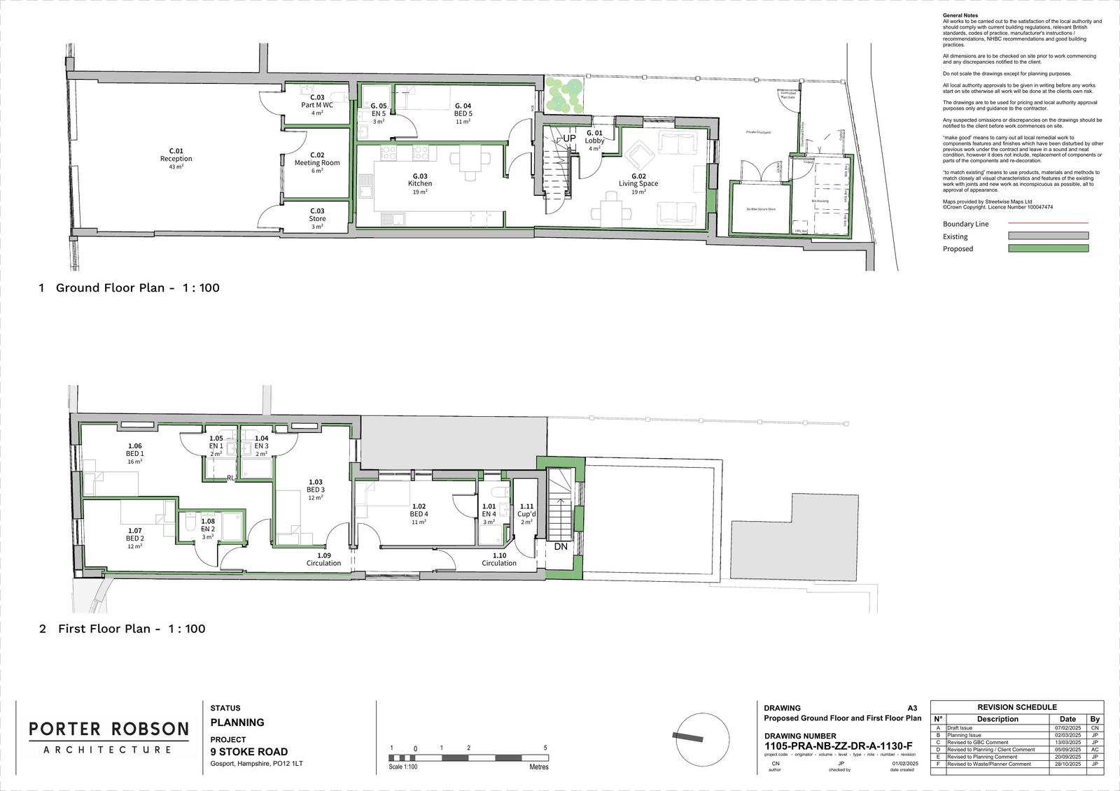
CONVERSION OF TWO BEDROOM HOUSE INTO 2NO ONE BEDROOM FLATS, WITH ASSOCIATED PARKING (as amended by plans received 09.02.26 and 17.02.26)

Type Change of use
Status Grant Permission
Received 05 Jan 2026
Plan thumbnail

ERECTION OF FRONT AND REAR DORMER WINDOWS AND SINGLE STOREY REAR EXTENSION (as amended by plans received 02.02.26 and 04.02.26)

Type House extension
Status Grant Permission
Received 17 Nov 2025
Plan thumbnail

ERECTION OF SINGLE STOREY REAR EXTENSION

Type House extension
Status Registered
Received 13 Jan 2026
Plan thumbnail

ERECTION OF SINGLE STOREY FRONT EXTENSION

Type House extension
Status Grant Permission
Received 06 Jan 2026
Plan thumbnail

CHANGE OF USE FROM CARE HOME (CLASS C2) TO A SIX BEDROOM (6 PERSON) SUPPORTED LIVING UNIT, WITH STAFF FACILITIES

Type Change of use
Status Grant Permission
Received 27 Nov 2025
Plan thumbnail

ERECTION OF SINGLE STOREY REAR EXTENSION, FIRST FLOOR EXTENSION AND GARAGE (CONSERVATION AREA)

Type House extension
Status Registered
Received Last month
Plan thumbnail

ERECTION OF SINGLE STOREY FRONT / SIDE EXTENSION AND ALTERATIONS TO EXISTING GARAGE

Type House extension
Status Registered
Received Last month
Plan thumbnail

GPDO PART 1 NOTIFICATION - ERECTION OF SINGLE STOREY REAR EXTENSION DEPTH OF 4.5 METRES MAXIMUM HEIGHT OF 3.5 METRES HEIGHT OF EAVES 2.6 MET...

Type House extension
Status Registered
Received Last month
Plan thumbnail

REDEVELOPMENT TO INCLUDE CONSTRUCTION OF A C.3166 SQ.M. OFFICE BUILDING (USE CLASS E(G)(I)) AND C.7537 SQ.M. EMPLOYMENT BUILDINGS AND SERVIC...

Type Commercial
Status Registered
Received Last month
Plan thumbnail

ERECTION OF SINGLE STOREY REAR EXTENSION AND REPLACEMENT EXTERNAL STAIRCASE (CONSERVATION AREA)

Type House extension
Status Registered
Received Last month
Plan thumbnail

CONVERSION OF GARAGE TO FORM RESIDENTIAL ANNEXE (RETROSPECTIVE)

Type Change of use
Status Registered
Received Last month
Plan thumbnail

ERECTION OF SINGLE STOREY SIDE EXTENSION, ERECTION OF SHED AND CONVERSION OF DETACHED GARAGE INTO HOME GYM

Type House extension
Status Registered
Received 25 Nov 2025
Plan thumbnail

ERECTION OF TWO-STOREY SIDE EXTENSION AND SINGLE STOREY FRONT AND REAR EXTENSIONS

Type House extension
Status Registered
Received 27 days ago
Plan thumbnail

GPDO PART 1 NOTIFICATION - ERECTION OF SINGLE STOREY REAR EXTENSION DEPTH OF 3.5 METRES MAXIMUM HEIGHT OF 3.0 METRES HEIGHT OF EAVES 2.9 MET...

Type House extension
Status Registered
Received 27 days ago
Plan thumbnail

ERECTION OF SINGLE STOREY SIDE EXTENSION

Type House extension
Status Registered
Received 28 days ago
Plan thumbnail

DEMOLITION OF EXISTING BUILDING AND ERECTION OF BUILDING FOR USE BY FOOD BANK CHARITY

Type Demolition
Status Grant Permission
Received 28 Jan 2025
Plan thumbnail

ERECTION OF TWO STOREY SIDE EXTENSION

Type House extension
Status Grant Permission
Received 27 Jan 2025
Plan thumbnail

CONSTRUCTION OF PART SINGLE PART-TWO STOREY FRONT AND SIDE EXTENSION, INSTALLATION OF EXTERNAL INSULATION, INSTALLATION OF ROOFLIGHTS

Type House extension
Status Grant Permission
Received 06 Jan 2025
Plan thumbnail

GPDO PART 1 NOTIFICATION - ERECTION OF SINGLE STOREY REAR EXTENSION DEPTH OF 4 METRES MAXIMUM HEIGHT OF 3.7 METRES HEIGHT OF EAVES 2.7 METRE...

Type House extension
Status Prior Approval Not Required
Received 02 Jan 2025
Plan thumbnail

ERECTION OF REAR DORMER TO GARAGE EXTENSION (as amended by plans received 27.03.25)

Type House extension
Status Grant Permission
Received 09 Dec 2024
Plan thumbnail

CONSTRUCTION OF SINGLE-STOREY SIDE EXTENSION

Type House extension
Status Grant Permission
Received 27 Jan 2025
Plan thumbnail

INSTALLATION OF FIRST FLOOR WINDOW TO WEST ELEVATION OF ORIGINAL DWELLING

Type House extension
Status Grant Permission
Received 23 Jan 2025
Plan thumbnail

ERECTION OF SINGLE STOREY REAR EXTENSION WITH ACCOMMODATION IN THE ROOF AND ERECTION OF FRONT DORMER WINDOWS (as amended by plans received 1...

Type House extension
Status Grant Permission
Received 02 Jan 2025
Plan thumbnail

ERECTION OF SINGLE STOREY REAR EXTENSION

Type House extension
Status Grant Permission
Received 20 Nov 2024
Plan thumbnail

ERECTION OF SINGLE STOREY REAR EXTENSION

Type House extension
Status Registered
Received Last month
Plan thumbnail

ERECTION OF SINGLE STOREY FRONT EXTENSION

Type House extension
Status Registered
Received Last month
Plan thumbnail

ERECTION OF DETACHED DWELLING (CONSERVATION AREA)

Type New housing
Status Registered
Received Last month

SECTION 192 APPLICATION - CHANGE OF USE OF DWELLINGHOUSE (CLASS C3) TO SIX PERSON HOUSE IN MULTIPLE OCCUPATION (CLASS C4), ERECTION OF SOLAR...

Type Change of use
Status Registered
Received 04 Feb 2026
Plan thumbnail

AMALGAMATION OF THREE FLATS TO CREATE A SINGLE DWELLING WITH CHANGES TO FENESTRATION TO REAR ELEVATION (LISTED BUILDING IN A CONSERVATION AR...

Type Listed building
Status Grant Permission
Received 15 Aug 2025
Plan thumbnail

CHANGE OF USE OF FIRST FLOOR AND PART OF GROUND FLOOR FROM COMMERCIAL (CLASS E) TO A 9 BEDROOM HOUSE IN MULTIPLE OCCUPATION (HMO) (SUI-GENER...

Type Change of use
Status Grant Permission
Received 09 Jul 2025
Plan thumbnail

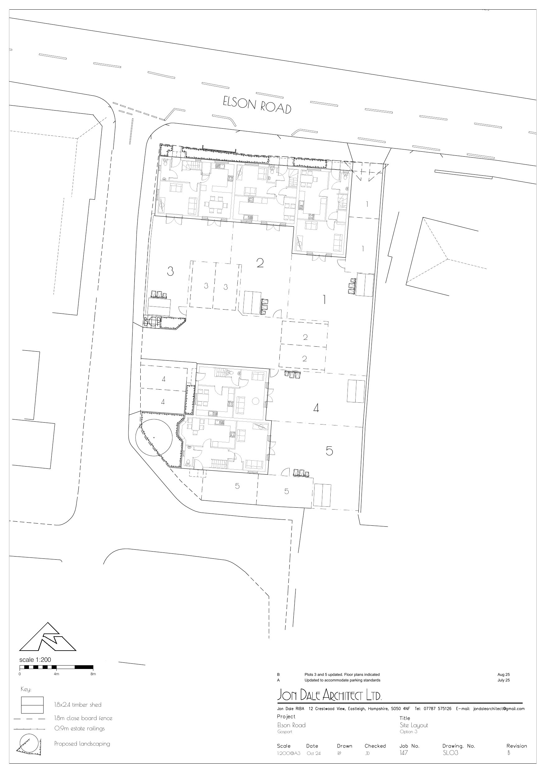
ERECTION OF 5NO. DWELLINGS WITH ASSOCIATED ACCESS, PARKING AND LANDSCAPING (as amended by plans received 26.08.25)

Type New housing
Status Registered
Received 16 Jun 2025
Plan thumbnail

LISTED BUILDING APPLICATION - ALTERATIONS AND REPAIRS TO FACILITATE CONVERSION TO SIX DWELLINGS TO INCLUDE CHANGES TO FENESTRATION, REPLACEM...

Type Listed building
Status Registered
Received 29 May 2025
Plan thumbnail

CONVERSION OF OFFICES TO 2NO. FLATS AND ERECTION OF FIRST AND SECOND FLOOR REAR EXTENSION (CONSERVATION AREA) (ALTERNATIVE SCHEME TO 22/0031...

Type Change of use
Status Grant Permission
Received 27 May 2025
Plan thumbnail

ERECTION OF TWO-STOREY EXTENSION TO FORM 5NO. FLATS WITH ASSOCIATED PARKING, CYCLES AND REFUSE STORAGE, FOLLOWING DEMOLITION OF EXISTING GAR...

Type New housing
Status Registered
Received 20 May 2025
Plan thumbnail

CONSTRUCTION OF TWO-STOREY BUILDING TO PROVIDE TWO DWELLINGS (CLASS C3) FOLLOWING DEMOLITION OF EXISTING WORKSHOP/STORE

Type New housing
Status Refuse
Received 08 May 2025
Plan thumbnail

LISTED BUILDING APPLICATION - ALTERATIONS AND REPAIRS TO FACILITATE CONVERSION TO SINGLE DWELLINGHOUSE TO INCLUDE CHANGES TO FENESTRATION, M...

Type Listed building
Status Registered
Received 29 May 2025
Plan thumbnail

LISTED BUILDING APPLICATION - ALTERATIONS, ADDITIONS AND REPAIRS TO FACILITATE CONVERSION TO 38 NO. DWELLINGS & COMMUNITY HALL TO INCLUDE CH...

Type Listed building
Status Registered
Received 29 May 2025

CHANGE OF USE TO GARDEN LAND ASSOCIATED WITH EXISTING DWELLING AND INSTALLATION OF NEW BOUNDARY WALL (RETROSPECTIVE) (CONSERVATION AREA)

Type Change of use
Status Grant Permission
Received 19 May 2025
Plan thumbnail

PROPOSED MIXED-USE PHASED REDEVELOPMENT FOLLOWING THE DEMOLITION AND CLEARANCE OF THE SITE, FOR A CARE HOME (USE CLASS C2), 57 NO. DWELLINGS...

Type New housing
Status Registered
Received 26 Mar 2025

ERECTION OF PART SINGLE AND PART TWO STOREY FRONT/SIDE EXTENSION, SINGLE STOREY SIDE EXTENSION TO FORM STORE, AND ALTERATIONS TO POOL HOUSE ...

Type House extension
Status Grant Permission
Received 10 Mar 2025
Plan thumbnail

CONSTRUCTION OF FIRST FLOOR REAR EXTENSION ABOVE EXISTING REAR PROJECTION, ALTERATIONS TO FRONT ELEVATION TO INCLUDE NEW SHOPFRONT, CHANGES ...

Type Change of use
Status Grant Permission
Received 05 Mar 2025
Plan thumbnail

CHANGE OF USE FROM DWELLINGHOUSE (CLASS C3) TO A NINE-BEDROOM NINE-PERSON HOUSE IN MULTIPLE OCCUPATION WITH ASSOCIATED CAR PARKING (SUI GENE...

Type Change of use
Status Refuse
Received 04 Mar 2025

CONVERSION OF DETACHED GARAGE TO 1NO. BEDROOM SELF CONTAINED DWELLING

Type Change of use
Status Refuse
Received 19 Feb 2025
Plan thumbnail

CONSTRUCTION OF NINE DWELLINGHOUSES (CLASS C3) WITH ASSOCIATED PARKING, LANDSCAPING AND ALTERED ACCESS FROM CLAYHALL ROAD FOLLOWING DEMOLITI...

Type New housing
Status Grant Permission
Received 12 Feb 2025

CHANGE OF USE OF LAND TO GARDEN LAND ASSOCIATED WITH EXISTING DWELLING AND INSTALLATION OF NEW BOUNDARY (RETROSPECTIVE) (CONSERVATION AREA)

Type Change of use
Status Grant Permission
Received 26 Sep 2024
Plan thumbnail

ERECTION OF DETACHED 3 BEDROOM DWELLING (REVISED APPLICATION TO 21/00066/FULL) (as amended by plans received 13.11.24)

Type New housing
Status Grant Permission
Received 26 Sep 2024
Plan thumbnail

CHANGE OF USE OF PART OF GROUND FLOOR AND UPPER FLOORS, INCLUDING LOFT CONVERSION, FROM COMMERCIAL (CLASS E) TO 12 ROOM HOUSE IN MULTIPLE OC...

Type Change of use
Status Grant Permission
Received 25 Sep 2024
Plan thumbnail

CHANGE OF USE OF HOT FOOD TAKEAWAY WITH ANCILLARY LIVING ACCOMMODATION (SUI GENERIS) TO DWELLINGHOUSE (CLASS C3) INCLUDING ALTERATIONS TO FR...

Type Change of use
Status Grant Permission
Received 10 Sep 2024
Plan thumbnail

PROPOSED CHANGE OF USE FROM A SOCIAL CLUB TO A PUBLIC HOUSE (SUI GENERIS) (CONSERVATION AREA)

Type Change of use
Status Grant Permission
Received 01 Nov 2024

CONSTRUCTION OF SECOND FLOOR EXTENSION, INTERNAL AND EXTERNAL ALTERATIONS TO INCLUDE CHANGES TO NORTHERN ELEVATION, FENESTRATION AND CREATIO...

Type New housing
Status Grant Permission
Received 27 Sep 2024
Plan thumbnail

ERECTION OF SINGLE STOREY REAR EXTENSION AND SUMMER HOUSE (RETROSPECTIVE)

Type House extension
Status Grant Permission
Received 27 Aug 2024
Plan thumbnail

DEMOLITION OF STRUCTURE (FORMER GUARDHOUSE) ADJOINING REAR OF MAINTAINANCE SHEDS AND ERECTION OF TIMBER ENCLOSURE TO HOUSE RELOCATION SUBSTA...

Type Demolition
Status Grant Permission
Received 10 Dec 2024
Plan thumbnail

CHANGE OF USE SHOP TO DWELLING

Type Change of use
Status Registered
Received 20 Nov 2024
Plan thumbnail

CONSTRUCTION OF DETACHED DWELLINGHOUSE INCLUDING ACCOMMODATION AT ROOF LEVEL WITH ASSOCIATED LANDSCAPING AND PARKING (CONSERVATION AREA) (RE...

Type New housing
Status Refuse
Received 12 Dec 2025

GPDO PART 3 NOTIFICATION - CONVERSION OF PART GROUND FLOOR COMMERCIAL UNIT (CLASS E) TO FORM 1NO. ONE BEDROOMED FLAT (CLASS C3)

Type Change of use
Status Registered
Received 11 Dec 2025
Plan thumbnail

SUBDIVISION OF DWELLING TO FORM 3 FLATS (1 NO. 2 BED AND 2 NO. 1 BED), INCORPORATING THE ERECTION OF A SINGLE STOREY REAR EXTENSION

Type Change of use
Status Registered
Received 17 Dec 2025
Plan thumbnail

FIRST AND SECOND FLOOR EXTENSION TO NORTHERN PART OF THE SITE TO FORM 7 IN NO 1 BED FLATS

Type New housing
Status Registered
Received 15 Dec 2025
Plan thumbnail

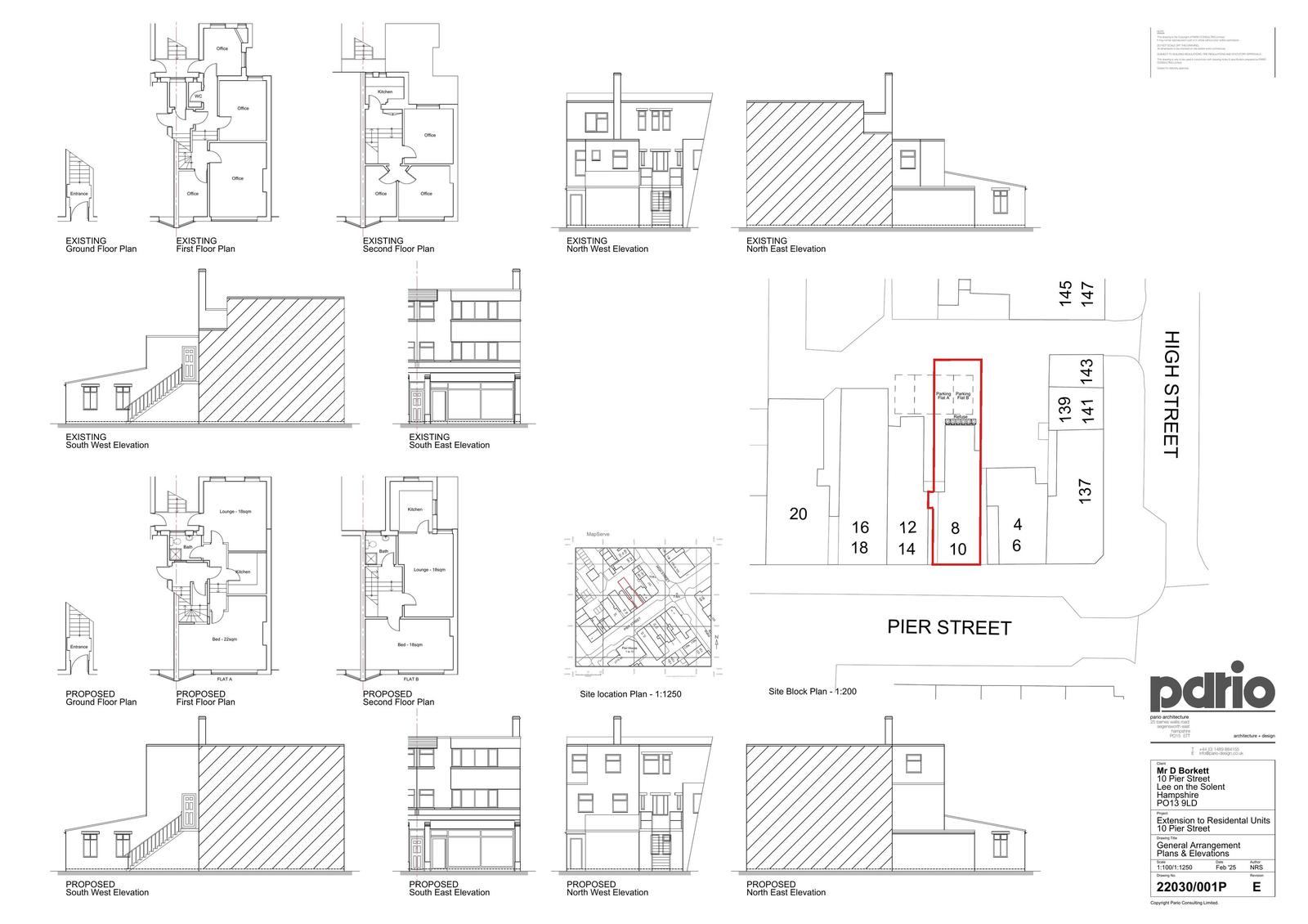
CONVERSION OF OFFICE TO 2NO. ONE BEDROOM FLATS AND ALTERATIONS TO FRONT ELEVATION

Type Change of use
Status Registered
Received 16 Jan 2026
Plan thumbnail

ERECTION OF SINGLE STOREY, TWO STOREY EXTENSIONS AND FRONT AND REAR DORMERS TO FACILITATE CONVERSION OF DWELLINGHOUSE TO 2NO. TWO BEDROOM FL...

Type Change of use
Status Registered
Received 13 Nov 2024