← Gosport Borough Council

Status

Grant Permission House extension
Received
09 Dec 2024
New homes
0

Full proposal

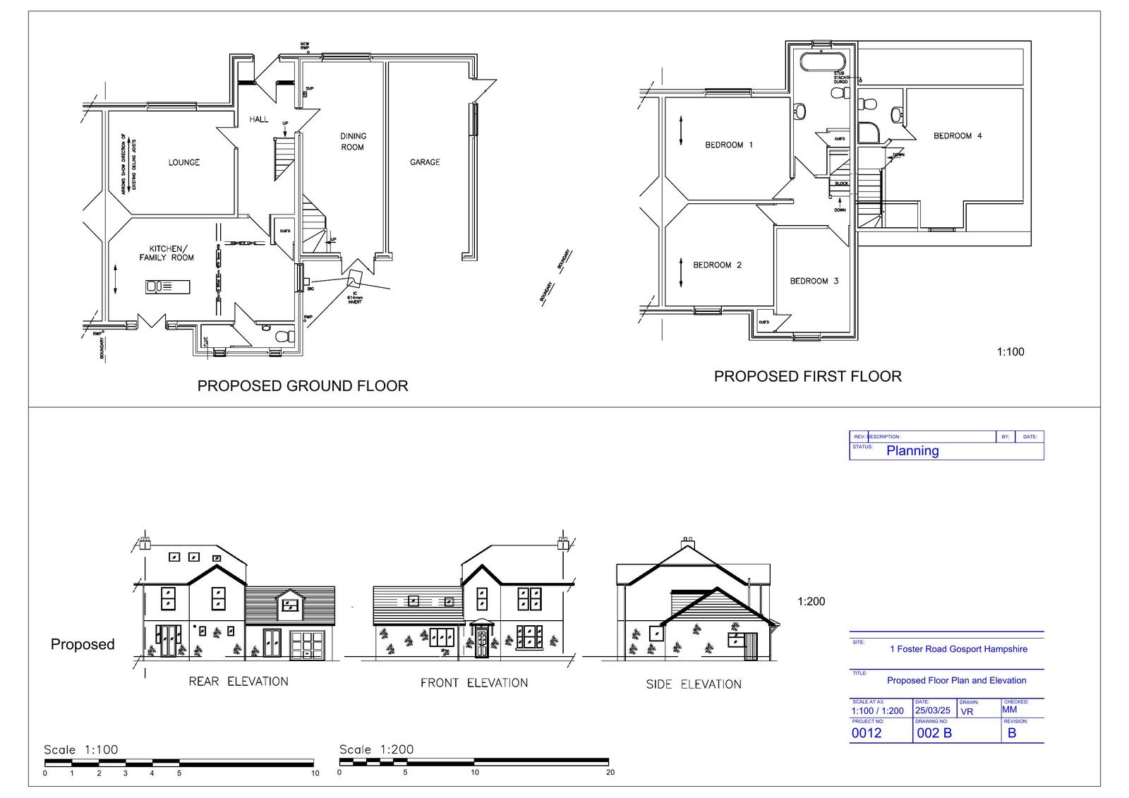
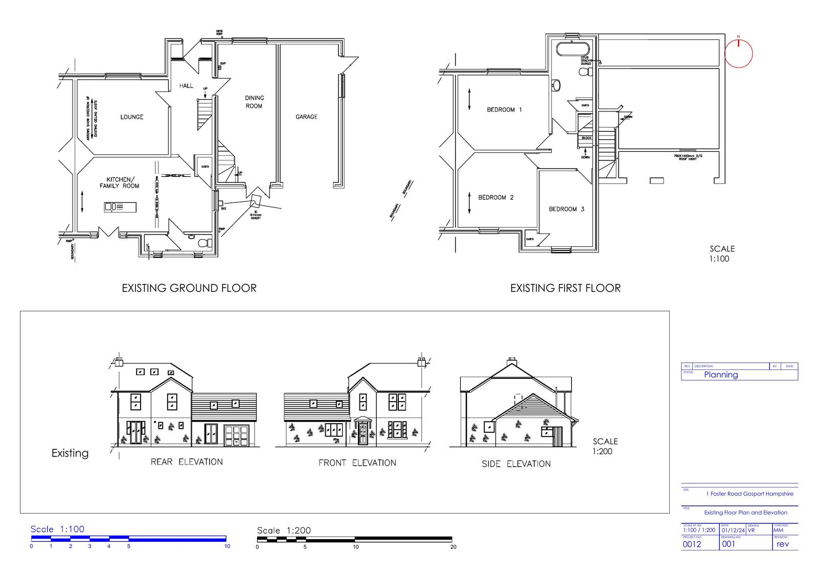
ERECTION OF REAR DORMER TO GARAGE EXTENSION (as amended by plans received 27.03.25)

Documents

Supporting Document
Archived · Original link
Plans
Archived · Original link
Decision Notice
Archived · Original link
Officer Report
Archived · Original link
Superseded Plans
Archived · Original link
Site Location Plan
Archived · Original link

Have your say

Your comment matters. Councils must consider every representation that raises material planning considerations.

Write a comment