← Gosport Borough Council

Status

Grant Permission House extension
Received
06 Jan 2025
New homes
0

Full proposal

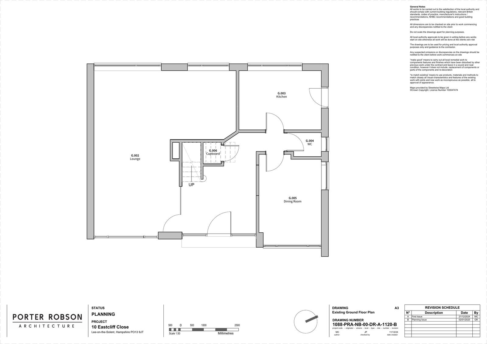
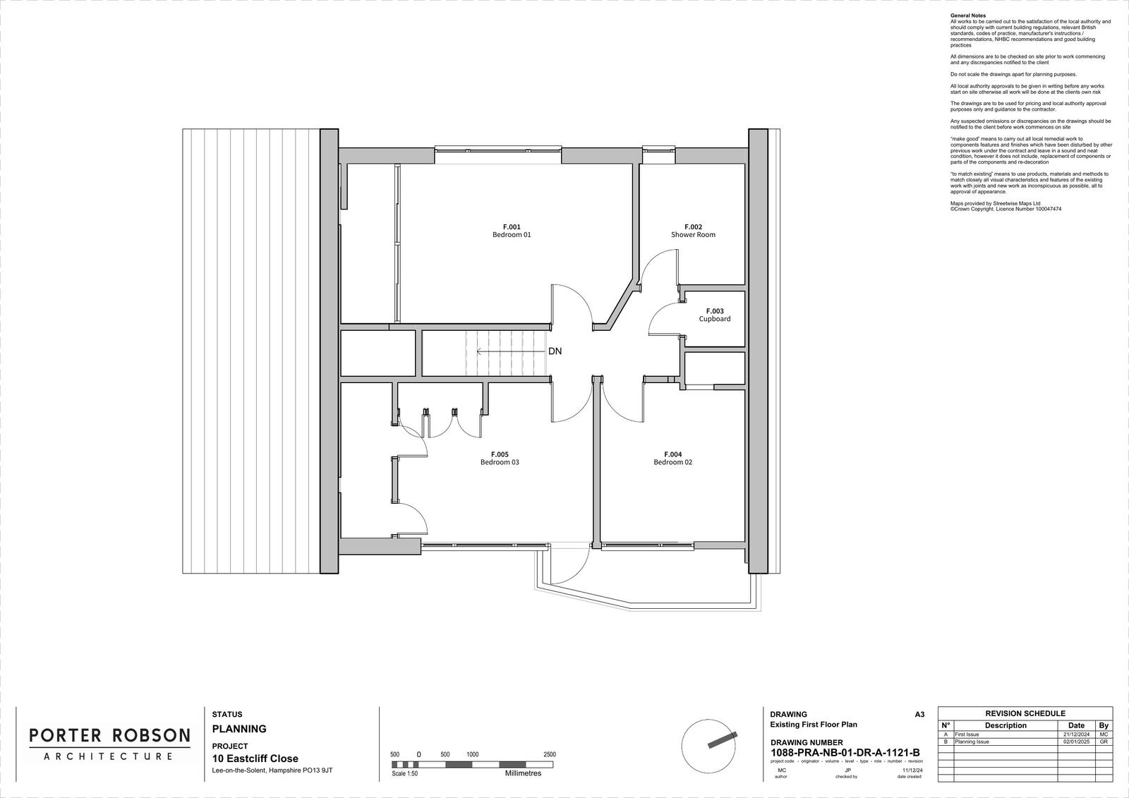
CONSTRUCTION OF PART SINGLE PART-TWO STOREY FRONT AND SIDE EXTENSION, INSTALLATION OF EXTERNAL INSULATION, INSTALLATION OF ROOFLIGHTS

Documents

Supporting Document
Archived · Original link
Supporting Document
Archived · Original link
Decision Notice
Archived · Original link
Plans
Archived · Original link
Plans
Archived · Original link
Approved Plans
Archived · Original link
Supporting Document
Archived · Original link
MOD
Consultee Comment
Archived · Original link
Officer Report
Archived · Original link
Approved Plans
Archived · Original link
Approved Plans
Archived · Original link
Approved Plans
Archived · Original link
Approved Plans
Archived · Original link
Approved Plans
Archived · Original link
Supporting Document
Archived · Original link

Have your say

Your comment matters. Councils must consider every representation that raises material planning considerations.

Write a comment