← Gosport Borough Council

Status

Grant Permission House extension
Received
27 Jan 2025
New homes
0

Full proposal

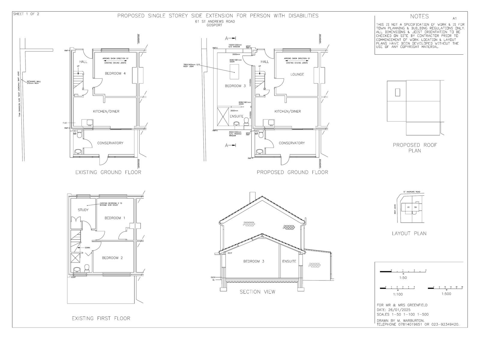
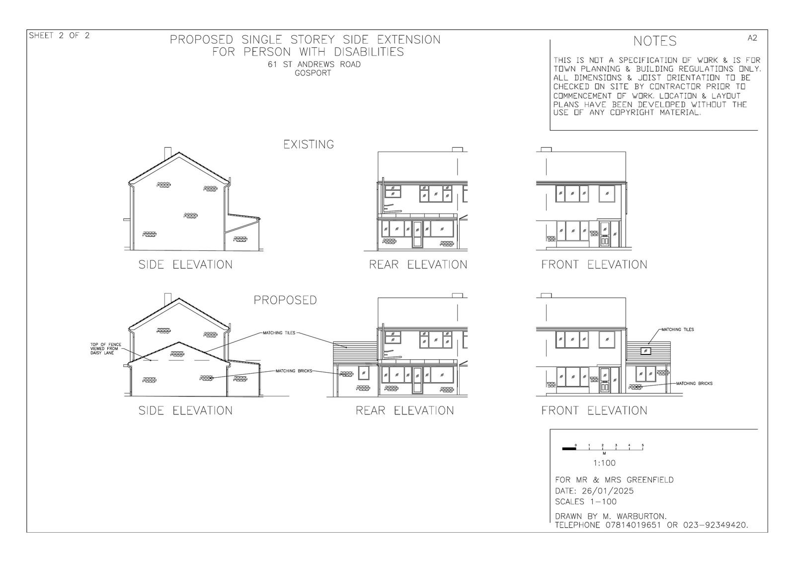
CONSTRUCTION OF SINGLE-STOREY SIDE EXTENSION

Documents

Supporting Document
Archived · Original link
Decision Notice
Archived · Original link
Approved Plans
Archived · Original link
Approved Plans
Archived · Original link
Consultee Comment
Archived · Original link
Officer Report
Archived · Original link

Have your say

Your comment matters. Councils must consider every representation that raises material planning considerations.

Write a comment