← Gosport Borough Council

Status

Registered New housing
Received
26 Mar 2025
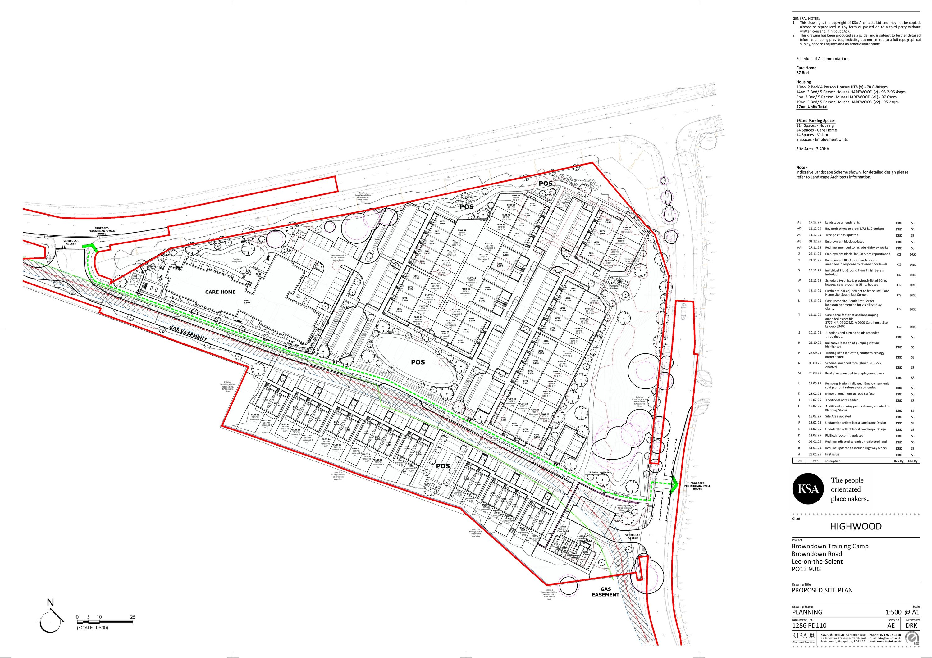
New homes
57

Full proposal

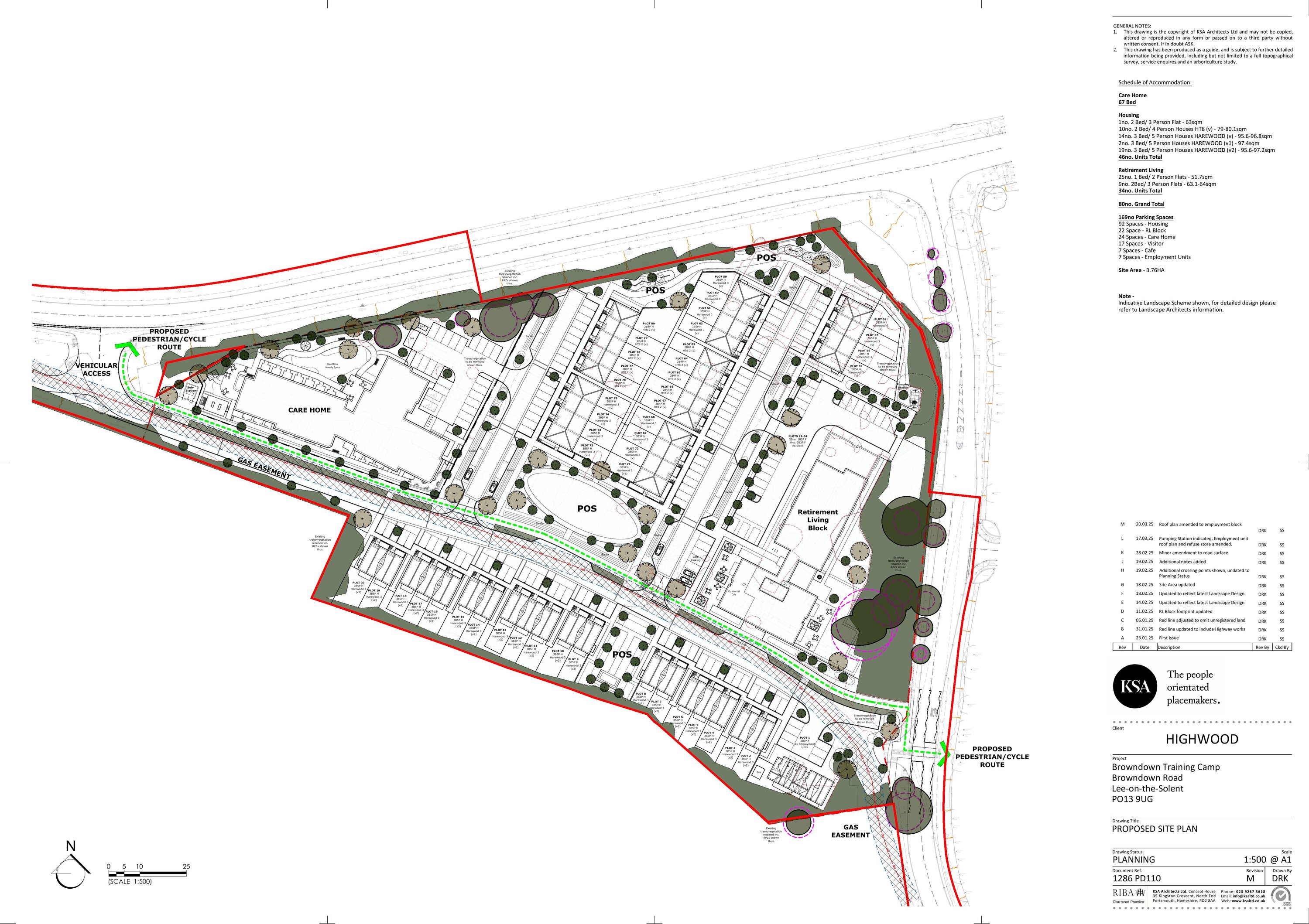
PROPOSED MIXED-USE PHASED REDEVELOPMENT FOLLOWING THE DEMOLITION AND CLEARANCE OF THE SITE, FOR A CARE HOME (USE CLASS C2), 57 NO. DWELLINGS (USE CLASS C3), 3 NO. COMMERCIAL UNITS ACCESSED FROM BROWNDOWN ROAD (CLASS E), PUBLIC OPEN SPACE, SUBSTATION, VEHICULAR ACCESS TO PRIVETT ROAD, PEDESTRIAN/CYCLE ACCESS TO BROWNDOWN ROAD WITH TOUCAN CROSSING, INCLUDING ASSOCIATED LAND RAISING, HIGHWAY, PARKING, LANDSCAPING, DRAINAGE, AND OTHER ANCILLARY WORKS (Amended description of development, Amended Plans and as amplified 12.01.2026)

Documents

AIR QUALITY ASSESSMENT
Supporting Document
Not yet archived · Original link
APPLICATION FORM - WITHOUT PERSONAL DATA
Application Form
Not yet archived · Original link
ARBORICULTURAL METHOD STATEMENT
Supporting Document
Not yet archived · Original link
ARCHAEOLOGY AND HERITAGE ASSESSMENT - APPENDIX MAPS
Supporting Document
Not yet archived · Original link
ARCHAEOLOGY AND HERITAGE ASSESSMENT - MAIN DOCUMENT
Supporting Document
Not yet archived · Original link
ARTIFICAL LIGHTING IMPACT ASSESSMENT
Supporting Document
Not yet archived · Original link
BOUNDARY TREATMENT PLAN
Amended Plans
Not yet archived · Original link
BUILDING CONTROL
Consultee Comment
Not yet archived · Original link
BUILDING CONTROL
Consultee Comment
Not yet archived · Original link
CARE HOME - PROPOSED ELEVATIONS - SHEET 1
Amended Plans
Not yet archived · Original link
CARE HOME - PROPOSED ELEVATIONS - SHEET 2
Amended Plans
Not yet archived · Original link
CARE HOME - PROPOSED ELEVATIONS - SHEET 3
Amended Plans
Not yet archived · Original link
CARE HOME - PROPOSED FIRST FLOOR PLAN
Amended Plans
Not yet archived · Original link
CARE HOME - PROPOSED GROUND FLOOR PLAN
Amended Plans
Not yet archived · Original link
CARE HOME - PROPOSED SECOND FLOOR PLAN
Amended Plans
Not yet archived · Original link
CGI CARE HOME HIA - PRIVETT ROAD
Amended Plans
Not yet archived · Original link
CGI CARE HOME HIA - PUBLIC OPEN SPACE
Amended Plans
Not yet archived · Original link
CGI IMAGE PACK
Amended Plans
Not yet archived · Original link
COASTAL PARTNERS
Consultee Comment
Not yet archived · Original link
COASTAL PARTNERS
Consultee Comment
Not yet archived · Original link
Amended Plans
Archived · Original link
CONSTRUCTION ENVIRONMENT MANAGEMENT PLAN
Supporting Document
Not yet archived · Original link
CONSULTATION RESPONSES SCHEDULE
Supporting Document
Not yet archived · Original link
COVERING LETTER
Supporting Document
Not yet archived · Original link
DEMOLITION PLAN
Amended Plans
Not yet archived · Original link
DESIGN AND ACCESS STATEMENT
Design and Access Statement
Not yet archived · Original link
DESIGN AND ACCESS STATEMENT
Design and Access Statement
Not yet archived · Original link
DESIGN AND ACCESS STATEMENT
Design and Access Statement
Not yet archived · Original link
DESIGN AND ACCESS STATEMENT
Design and Access Statement
Not yet archived · Original link
DESIGN AND ACCESS STATEMENT
Design and Access Statement
Not yet archived · Original link
DIO - MOD (NEIGHBOUR)
Consultee Comment
Not yet archived · Original link
DIO - SAFEGUARDING
Consultee Comment
Not yet archived · Original link
DRAWING REGISTER
Plans
Not yet archived · Original link
ECOLOGICAL IMPACT ASSESSMENT
Supporting Document
Not yet archived · Original link
ECOLOGY
Consultee Comment
Not yet archived · Original link
EMERGENCY PLANNING
Consultee Comment
Not yet archived · Original link
EMERGENCY PLANNING
Consultee Comment
Not yet archived · Original link
EMPLOYMENT SPACE - FLOOR PLANS AND ELEVATIONS
Amended Plans
Not yet archived · Original link
Amended Plans
Archived · Original link
ENVIORNMENTAL AGENCY
Consultee Comment
Not yet archived · Original link
ENVIRONMENT AGENCY
Consultee Comment
Not yet archived · Original link
ENVIRONMENTAL HEALTH
Consultee Comment
Not yet archived · Original link
FLOOD RISK AND DRAINAGE ASSESSMENT
Supporting Document
Not yet archived · Original link
FLOOD RISK ASSESSMENT
Supporting Document
Not yet archived · Original link
FLOOD RISK ASSESSMENT
Supporting Document
Not yet archived · Original link
FLOOD RISK ASSESSMENT
Supporting Document
Not yet archived · Original link
FLOOD RISK ASSESSMENT
Supporting Document
Not yet archived · Original link
FLOOD RISK ASSESSMENT
Supporting Document
Not yet archived · Original link
FLOOD RISK ASSESSMENT - MAINTENANCE
Supporting Document
Not yet archived · Original link
FLOOD RISK ASSESSMENT AND DRAINAGE STRATEGY
Supporting Document
Not yet archived · Original link
FLOOD RISK ASSESSMENT AND DRAINAGE STRATEGY
Supporting Document
Not yet archived · Original link
FLOOD RISK ASSESSMENT AND DRAINAGE STRATEGY
Supporting Document
Not yet archived · Original link
FLOOD RISK ASSESSMENT AND DRAINAGE STRATEGY
Supporting Document
Not yet archived · Original link
GOSPORT SOCIETY
Consultee Comment
Not yet archived · Original link
GOSPORT SOCIETY
Consultee Comment
Not yet archived · Original link
HABITAT MANAGEMENT AND MONITORING PLAN
Supporting Document
Not yet archived · Original link
HAMPSHIRE CONSTABULARY
Consultee Comment
Not yet archived · Original link
HAMPSHIRE FIRE AND RESCUE SERVICE
Consultee Comment
Not yet archived · Original link
HAMPSHIRE HIGHWAYS
Consultee Comment
Not yet archived · Original link
HAMPSHIRE HIGHWAYS
Consultee Comment
Not yet archived · Original link
HAMPSHIRE SWIFTS
Consultee Comment
Not yet archived · Original link
HCC - PLANNING POLICY
Consultee Comment
Not yet archived · Original link
HCC - STRATEGIC PLANNING UNIT
Consultee Comment
Not yet archived · Original link
HCC - WASTE AND ENVIRONMENTAL SERVICES
Consultee Comment
Not yet archived · Original link
HCC - WASTE AND ENVIRONMENTAL SERVICES
Consultee Comment
Not yet archived · Original link
HCC COUNTRYSIDE SERVICES
Consultee Comment
Not yet archived · Original link
HCC ECOLOGY
Consultee Comment
Not yet archived · Original link
HCC PLANNING POLICY
Consultee Comment
Not yet archived · Original link
HERITAGE STATEMENT
Supporting Document
Not yet archived · Original link
HIWFRS
Consultee Comment
Not yet archived · Original link
HIWFRS - ADVICE DOCUMENT
Consultee Comment
Not yet archived · Original link
HOUSE TYPE - 2 BED / 4 PERSON
Amended Plans
Not yet archived · Original link
HOUSE TYPE - 3 BED / 5 PERSON
Amended Plans
Not yet archived · Original link
HOUSE TYPE - 3 BED / 5 PERSON
Amended Plans
Not yet archived · Original link
HOUSE TYPE - 3 BED / 5 PERSON (BOOKEND)
Amended Plans
Not yet archived · Original link
INDICATIVE PLANTING LIST AND PLANTING MATRIX
Amended Plans
Not yet archived · Original link
L1 - 50 CAMBRIDGE ROAD
Public Comment
Not yet archived · Original link
L10 - FIONA BACON
Public Comment
Not yet archived · Original link
L11 - 15 YEOVILTON HOUSE, 75 BLANCHARD AVENUE
Public Comment
Not yet archived · Original link
L12 - 24 BLACKTHORN DRIVE
Public Comment
Not yet archived · Original link
L13 - 60 GORRAN AVENUE
Public Comment
Not yet archived · Original link
L14 - BEATTY DRIVE
Public Comment
Not yet archived · Original link
L15 - 22 SEYMOUR ROAD
Public Comment
Not yet archived · Original link
L15A - 22 SEYMOUR ROAD
Public Comment
Not yet archived · Original link
L2 - FLAT 1 IRWIN HEIGHTS, 119 ELSON ROAD
Public Comment
Not yet archived · Original link
L2A - FLAT 1, IRWIN HEIGHTS, 119 ELSON ROAD
Public Comment
Not yet archived · Original link
L3 - S PULLIN
Public Comment
Not yet archived · Original link
L3A - S PULLIN
Public Comment
Not yet archived · Original link
L4 - 7 WESTERN WAY
Public Comment
Not yet archived · Original link
L4A - 7 WESTERN WAY
Public Comment
Not yet archived · Original link
L5 - LEE-ON-THE-SOLENT RESIDENTS ASSOCIATION
Public Comment
Not yet archived · Original link
L5A LEE RESIDENTS ASSOCIATION
Public Comment
Not yet archived · Original link
L6 - 73 ELMORE ROAD, LOTS
Public Comment
Not yet archived · Original link
L7 - STEVE THOMPSON
Public Comment
Not yet archived · Original link
L8 - GEORGE MILLENER
Public Comment
Not yet archived · Original link
L8A - 91 ST MICHAEL'S GROVE, FAREHAM
Public Comment
Not yet archived · Original link
L9 - RICHARD & SUE COOK
Public Comment
Not yet archived · Original link
L9A - RICHARD & SUE COOK
Public Comment
Not yet archived · Original link
LAND CONTAMINATION ASSESSMENT - PART 1
Supporting Document
Not yet archived · Original link
LAND CONTAMINATION ASSESSMENT - PART 2
Supporting Document
Not yet archived · Original link
LANDSCAPE & VISUAL DESIGN STATEMENT - REVISION D
Supporting Document
Not yet archived · Original link
LANDSCAPE & VISUAL DESIGN STATEMENT - REVISION D
Supporting Document
Not yet archived · Original link
LANDSCAPE & VISUAL DESIGN STATEMENT - REVISION D
Supporting Document
Not yet archived · Original link
LANDSCAPE & VISUAL DESIGN STATEMENT - REVISION D
Supporting Document
Not yet archived · Original link
LANDSCAPE & VISUAL DESIGN STATEMENT - REVISION D
Supporting Document
Not yet archived · Original link
LANDSCAPE & VISUAL DESIGN STATEMENT - REVISION D
Supporting Document
Not yet archived · Original link
LANDSCAPE & VISUAL DESIGN STATEMENT - REVISION D
Supporting Document
Not yet archived · Original link
LANDSCAPE MANAGEMENT PLAN
Supporting Document
Not yet archived · Original link
LANDSCAPE MANAGEMENT PLAN
Supporting Document
Not yet archived · Original link
LANDSCAPE MANAGEMENT PLAN
Supporting Document
Not yet archived · Original link
LANDSCAPE STRATEGY PLAN
Amended Plans
Not yet archived · Original link
LEAD LOCAL FLOOD AUTHORITY (LLFA)
Consultee Comment
Not yet archived · Original link
MATERIAL SCHEDULE
Supporting Document
Not yet archived · Original link
MINERAL RESOURCE ASSESSMENT
Supporting Document
Not yet archived · Original link
MOD - DIO
Consultee Comment
Not yet archived · Original link
NATURAL ENGLAND
Consultee Comment
Not yet archived · Original link
NATURAL ENGLAND
Consultee Comment
Not yet archived · Original link
NHS - LPAET
Consultee Comment
Not yet archived · Original link
NHS HAMPSHIRE ICB
Consultee Comment
Not yet archived · Original link
NOISE IMPACT ASSESSMENT
Supporting Document
Not yet archived · Original link
NUTRIENT CALCULATIONS
Supporting Document
Not yet archived · Original link
NUTRIENT CALCULATIONS
Supporting Document
Not yet archived · Original link
ODOUR ASSESSMENT
Supporting Document
Not yet archived · Original link
PLANNING APPLICATION SUBMISSION REGISTER
Supporting Document
Not yet archived · Original link
PLANNING POLICY
Consultee Comment
Not yet archived · Original link
PLANTING TYPOLOGY STRATEGY PLAN
Amended Plans
Not yet archived · Original link
PRELIMINARY DRAINAGE STRATGEY
Amended Plans
Not yet archived · Original link
PRELIMINARY EARTHWORKS STRATEGY
Plans
Not yet archived · Original link
PRELIMINARY LEVELS STRATEGY
Amended Plans
Not yet archived · Original link
PROPOSED ACCESS AND MOVEMENT PLAN
Amended Plans
Not yet archived · Original link
PROPOSED FIRE STRATEGY
Amended Plans
Not yet archived · Original link
PROPOSED MATERIALS PLAN
Amended Plans
Not yet archived · Original link
PROPOSED OPEN SPACE PLAN
Amended Plans
Not yet archived · Original link
PROPOSED PARKING STRATGEY
Amended Plans
Not yet archived · Original link
PROPOSED PHASING PLAN
Amended Plans
Not yet archived · Original link
PROPOSED REFUSE AND CYCLING STRATEGY
Amended Plans
Not yet archived · Original link
PROPOSED SITE ACCESS
Amended Plans
Not yet archived · Original link
Amended Plans
Archived · Original link
PROPOSED STOREY HEIGHT PLAN
Amended Plans
Not yet archived · Original link
PROPOSED TENURE PLAN
Amended Plans
Not yet archived · Original link
PUBLIC HEALTH HAMPSHIRE
Consultee Comment
Not yet archived · Original link
SCHEDULE OF ACCOMMODATION
Supporting Document
Not yet archived · Original link
SCHEDULE OF ACCOMMODATION
Supporting Document
Not yet archived · Original link
Amended Plans
Archived · Original link
SITE SECTIONS SHEET 1
Amended Plans
Not yet archived · Original link
SITE SECTIONS SHEET 2
Amended Plans
Not yet archived · Original link
SOLENT AIRPORT
Consultee Comment
Not yet archived · Original link
SOUTHER WATER - GIS MAP
Consultee Comment
Not yet archived · Original link
SOUTHERN WATER
Consultee Comment
Not yet archived · Original link
SOUTHERN WATER
Consultee Comment
Not yet archived · Original link
SOUTHERN WATER - ACKNOWLEDGEMENT LETTER
Consultee Comment
Not yet archived · Original link
SOUTHERN WATER - ACKNOWLEDGEMENT LETTER
Consultee Comment
Not yet archived · Original link
SOUTHERN WATER - GIS
Consultee Comment
Not yet archived · Original link
SOUTHERN WATER - PLAN
Consultee Comment
Not yet archived · Original link
SOUTHERN WATER - PLAN
Consultee Comment
Not yet archived · Original link
STATUTORY BNG METRIC - 18.12.2025 ISSUE
Supporting Document
Not yet archived · Original link
STREET SCENES - SHEET 1
Amended Plans
Not yet archived · Original link
STREET SCENES - SHEET 2
Amended Plans
Not yet archived · Original link
STREETSCENE - WASTE
Consultee Comment
Not yet archived · Original link
SUMMARY OF CHANGES DOCUMENT
Supporting Document
Not yet archived · Original link
SUPERSEDED AIR QUALITY ASSESSMENT
Supporting Document
Not yet archived · Original link
SUPERSEDED ARBORICULTURAL METHOD STATEMENT
Supporting Document
Not yet archived · Original link
SUPERSEDED ARTIFICAL LIGHTING IMPACT ASSESSMENT
Supporting Document
Not yet archived · Original link
SUPERSEDED BIODIVERSITY METRIC CALCULATION TOOL
Supporting Document
Not yet archived · Original link
SUPERSEDED BOUNDARY TREATMENT PLAN
Superseded Plans
Not yet archived · Original link
SUPERSEDED CARE HOME - FIRST FLOOR PLAN - PROPOSED
Superseded Plans
Not yet archived · Original link
SUPERSEDED CARE HOME - GROUND FLOOR PLAN - PROPOSED
Superseded Plans
Not yet archived · Original link
SUPERSEDED CARE HOME - SECOND FLOOR PLAN - PROPOSED
Superseded Plans
Not yet archived · Original link
SUPERSEDED CH - BIN STORE DRAWING
Superseded Plans
Not yet archived · Original link
SUPERSEDED CH - PROPOSED ELEVATIONS -SHEET 1
Superseded Plans
Not yet archived · Original link
SUPERSEDED CH - PROPOSED ELEVATIONS -SHEET 2
Superseded Plans
Not yet archived · Original link
SUPERSEDED CH - PROPOSED ELEVATIONS -SHEET 3
Superseded Plans
Not yet archived · Original link
Superseded Plans
Archived · Original link
Superseded Plans
Archived · Original link
SUPERSEDED CONSTRUCTION ENVIRONMENTAL MANAGEMENT PLAN
Supporting Document
Not yet archived · Original link
SUPERSEDED DEMOLITION PLAN
Plans
Not yet archived · Original link
SUPERSEDED ECOLOGICAL IMPACT ASSESSMENT
Supporting Document
Not yet archived · Original link
SUPERSEDED EMPLOYMENT SPACE - FLOOR PLANS AND ELEVATIONS
Plans
Not yet archived · Original link
SUPERSEDED HOUSE TYPE - 2 BED / 4 PERSON
Plans
Not yet archived · Original link
SUPERSEDED HOUSE TYPE - 3 BED / 5 PERSON
Plans
Not yet archived · Original link
SUPERSEDED HOUSE TYPE - 3 BED / 5 PERSON
Plans
Not yet archived · Original link
SUPERSEDED HOUSE TYPE - 3 BED / 5 PERSON
Plans
Not yet archived · Original link
SUPERSEDED INDICATIVE PLANTING LIST AND PLANTING MATRIX
Plans
Not yet archived · Original link
SUPERSEDED LANDSCAPE & VISUAL DESIGN STATEMENT
Supporting Document
Not yet archived · Original link
SUPERSEDED LANDSCAPE MANAGEMENT PLAN
Supporting Document
Not yet archived · Original link
SUPERSEDED LANDSCAPE MANAGEMENT PLAN - APPENDIX 9.3 - 9.4
Supporting Document
Not yet archived · Original link
SUPERSEDED LANDSCAPE PROPOSAL
Supporting Document
Not yet archived · Original link
SUPERSEDED LANDSCAPE STRATEGY PLAN
Plans
Not yet archived · Original link
SUPERSEDED MATERIAL SCHEDULE
Supporting Document
Not yet archived · Original link
SUPERSEDED NOISE IMPACT ASSESSMENT
Supporting Document
Not yet archived · Original link
SUPERSEDED NUTRIENT STATEMENT
Supporting Document
Not yet archived · Original link
SUPERSEDED NUTRIENT STATEMENT
Supporting Document
Not yet archived · Original link
SUPERSEDED PLANTING TYPOLOGY STRATEGY PLAN
Plans
Not yet archived · Original link
SUPERSEDED PRELIMINARY DRAINAGE STRATGEY
Supporting Document
Not yet archived · Original link
SUPERSEDED PRELIMINARY DRAINAGE STRATGEY
Supporting Document
Not yet archived · Original link
SUPERSEDED PRELIMINARY LEVELS STRATEGY
Plans
Not yet archived · Original link
SUPERSEDED PROPOSED ACCESS AND MOVEMENT PLAN
Plans
Not yet archived · Original link
SUPERSEDED PROPOSED FIRE STRATEGY
Plans
Not yet archived · Original link
SUPERSEDED PROPOSED MATERIAL PLAN
Plans
Not yet archived · Original link
SUPERSEDED PROPOSED OPEN SPACE PLAN
Plans
Not yet archived · Original link
SUPERSEDED PROPOSED PARKING STRATGEY
Plans
Not yet archived · Original link
SUPERSEDED PROPOSED PHASING PLAN
Plans
Not yet archived · Original link
SUPERSEDED PROPOSED REFUSE AND CYCLING STRATEGY
Plans
Not yet archived · Original link
SUPERSEDED PROPOSED STOREY HEIGHT PLAN
Plans
Not yet archived · Original link
SUPERSEDED RL BLOCK - 1 BED APARTMENT (TYPE A) FLOOR PLAN
Plans
Not yet archived · Original link
SUPERSEDED RL BLOCK - 2 BED APARTMENT (TYPE B) FLOOR PLAN
Plans
Not yet archived · Original link
SUPERSEDED RL BLOCK - 2 BED APARTMENT (TYPE BV1) FLOOR PLAN
Plans
Not yet archived · Original link
SUPERSEDED RL BLOCK - 2 BED APARTMENT (TYPE BV2) FLOOR PLAN
Plans
Not yet archived · Original link
SUPERSEDED RL BLOCK - ELEVATIONS - SHEET 1
Plans
Not yet archived · Original link
SUPERSEDED RL BLOCK - ELEVATIONS - SHEET 3
Plans
Not yet archived · Original link
SUPERSEDED RL BLOCK - ROOF PLAN
Plans
Not yet archived · Original link
SUPERSEDED RL BLOCK FIRST FLOOR FIRE STRATEGY PLAN
Plans
Not yet archived · Original link
SUPERSEDED RL BLOCK FIRST FLOOR PLAN
Plans
Not yet archived · Original link
SUPERSEDED RL BLOCK GROUND FLOOR FIRE STRATEGY PLAN
Plans
Not yet archived · Original link
SUPERSEDED RL BLOCK GROUND FLOOR PLAN
Plans
Not yet archived · Original link
SUPERSEDED RL BLOCK SECOND FLOOR FIRE STRATEGY PLAN
Plans
Not yet archived · Original link
SUPERSEDED RL ELEVATIONS SHEET 2 OF 3
Plans
Not yet archived · Original link
SUPERSEDED RL SECOND FLOOR PLAN
Plans
Not yet archived · Original link
SUPERSEDED SCHEDULE OF ACCOMMODATION
Supporting Document
Not yet archived · Original link
SUPERSEDED SCHEDULE OF ACCOMMODATION
Supporting Document
Not yet archived · Original link
SUPERSEDED STREET SCENE - PROPOSED - SHEET 1
Plans
Not yet archived · Original link
SUPERSEDED STREET SCENE - PROPOSED - SHEET 2
Plans
Not yet archived · Original link
SUPERSEDED STREETSCENE SUGGESTION
Plans
Not yet archived · Original link
SUPERSEDED STREETSCENE SUGGESTION
Plans
Not yet archived · Original link
SUPERSEDED SUB STATION - PROPOSED
Plans
Not yet archived · Original link
SUPERSEDED SUGGESTED PHOTOMONTAGES
Plans
Not yet archived · Original link
SUPERSEDED SUGGESTED PHOTOMONTAGES
Plans
Not yet archived · Original link
SUPERSEDED TREE PLANTING STRATEGY PLAN
Plans
Not yet archived · Original link
SUPERSEDED TYPICAL BOUNDARY TREATMENTS
Plans
Not yet archived · Original link
SUPERSEDED WORKPLACE TRAVEL PLAN
Supporting Document
Not yet archived · Original link
SUPERSEDED WORKPLACE TRAVEL PLAN - APPENDIX
Supporting Document
Not yet archived · Original link
SUSTAINABILITY STATEMENT
Supporting Document
Not yet archived · Original link
SUSTAINABILITY STATEMENT
Supporting Document
Not yet archived · Original link
SWEPT PATH ANALYSIS - 16.5M ARTICULATED VEHICLE
Amended Plans
Not yet archived · Original link
SWEPT PATH ANALYSIS - 7.5T BOX VAN
Amended Plans
Not yet archived · Original link
SWEPT PATH ANALYSIS - FIRE APPLIANCE
Amended Plans
Not yet archived · Original link
SWEPT PATH ANALYSIS - FIRE APPLIANCE
Amended Plans
Not yet archived · Original link
SWEPT PATH ANALYSIS - FIRE, SMALL REFUSE, RETAINED SITE ACCESS
Amended Plans
Not yet archived · Original link
SWEPT PATH ANALYSIS - REFUSE COLLECTION
Amended Plans
Not yet archived · Original link
SWEPT PATH ANALYSIS - REFUSE COLLECTION
Amended Plans
Not yet archived · Original link
TOPOGRAPHIC SURVEY OF SITE
Plans
Not yet archived · Original link
TOPOGRAPHIC SURVEY OF SITE
Plans
Not yet archived · Original link
TOPOGRAPHIC SURVEY OF SITE
Plans
Not yet archived · Original link
TOPOGRAPHIC SURVEY OF SITE
Plans
Not yet archived · Original link
TOPOGRAPHIC SURVEY OF SITE
Plans
Not yet archived · Original link
TOPOGRAPHICAL MAPS
Supporting Document
Not yet archived · Original link
TRANSPORT ASSESSMENT
Supporting Document
Not yet archived · Original link
TRANSPORT ASSESSMENT - ADDENDUM
Supporting Document
Not yet archived · Original link
TRANSPORT ASSESSMENT - APPENDIX A - E
Supporting Document
Not yet archived · Original link
TRANSPORT ASSESSMENT - APPENDIX F - K
Supporting Document
Not yet archived · Original link
TRANSPORT ASSESSMENT - DRAWINGS 1
Supporting Document
Not yet archived · Original link
TRANSPORT ASSESSMENT - DRAWINGS 2
Supporting Document
Not yet archived · Original link
TRANSPORT ASSESSMENT - DRAWINGS 3
Supporting Document
Not yet archived · Original link
TREE PLANTING STRATEGY PLAN
Amended Plans
Not yet archived · Original link
TYPICAL BOUNDARY TREATMENTS
Amended Plans
Not yet archived · Original link
UPDATED ECOLOGY
Consultee Comment
Not yet archived · Original link
VENTILATION AND EXTRACTION NOISE IMPACT ASSESSMENT
Supporting Document
Not yet archived · Original link
WORKPLACE TRAVEL PLAN
Supporting Document
Not yet archived · Original link

Have your say

Your comment matters. Councils must consider every representation that raises material planning considerations.

Write a comment