← Gosport Borough Council

Status

Grant Permission Change of use
Received
27 May 2025
New homes
2

Full proposal

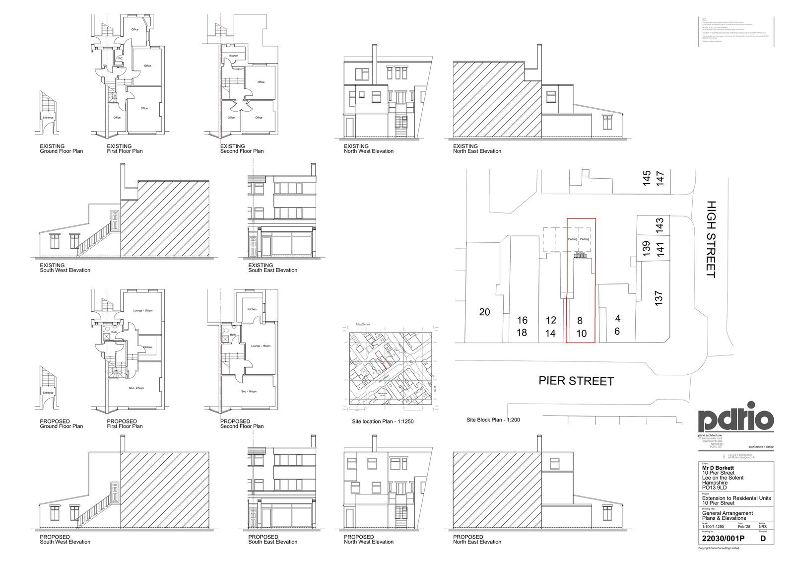
CONVERSION OF OFFICES TO 2NO. FLATS AND ERECTION OF FIRST AND SECOND FLOOR REAR EXTENSION (CONSERVATION AREA) (ALTERNATIVE SCHEME TO 22/00317/MAGDO) (as amended by plans received 03.07.25)

Documents

AMENDMENT : APPLICATION FORM - WITHOUT PERSONAL DATA
Application Form
Not yet archived · Original link
BIODIVERSITY SURVEY AND REPORT
Supporting Document
Not yet archived · Original link
BUILDING CONTROL
Consultee Comment
Not yet archived · Original link
CONSERVATION AND DESIGN
Consultee Comment
Not yet archived · Original link
Decision Notice
Decision Notice
Not yet archived · Original link
Superseded Plans
Archived · Original link
Approved Plans
Archived · Original link
FOR CIRCULATION AS PROPOSED TO BE DELEGATED
Officer Report
Not yet archived · Original link
GOSPORT SOCIETY
Consultee Comment
Not yet archived · Original link
HERITAGE STATEMENT
Supporting Document
Not yet archived · Original link
HIWFRS - ADVICE DOCUMENT
Consultee Comment
Not yet archived · Original link
HIWFRS - EMAIL CONTAINING ADVICE DOCUMENT
Consultee Comment
Not yet archived · Original link
L1 - LEE RESIDENTS ASSOCIATION
Public Comment
Not yet archived · Original link
NITRATES CALCULATION
Supporting Document
Not yet archived · Original link
STREETSCENCE
Consultee Comment
Not yet archived · Original link

Have your say

Your comment matters. Councils must consider every representation that raises material planning considerations.

Write a comment