← Gosport Borough Council

Status

Registered House extension
Received
25 Nov 2025
New homes
0

Full proposal

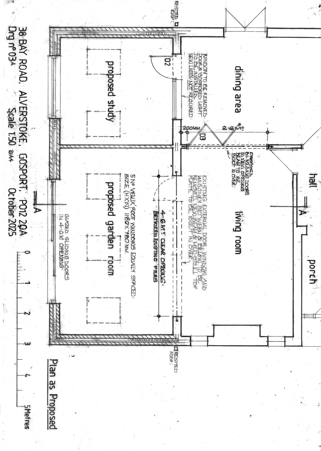
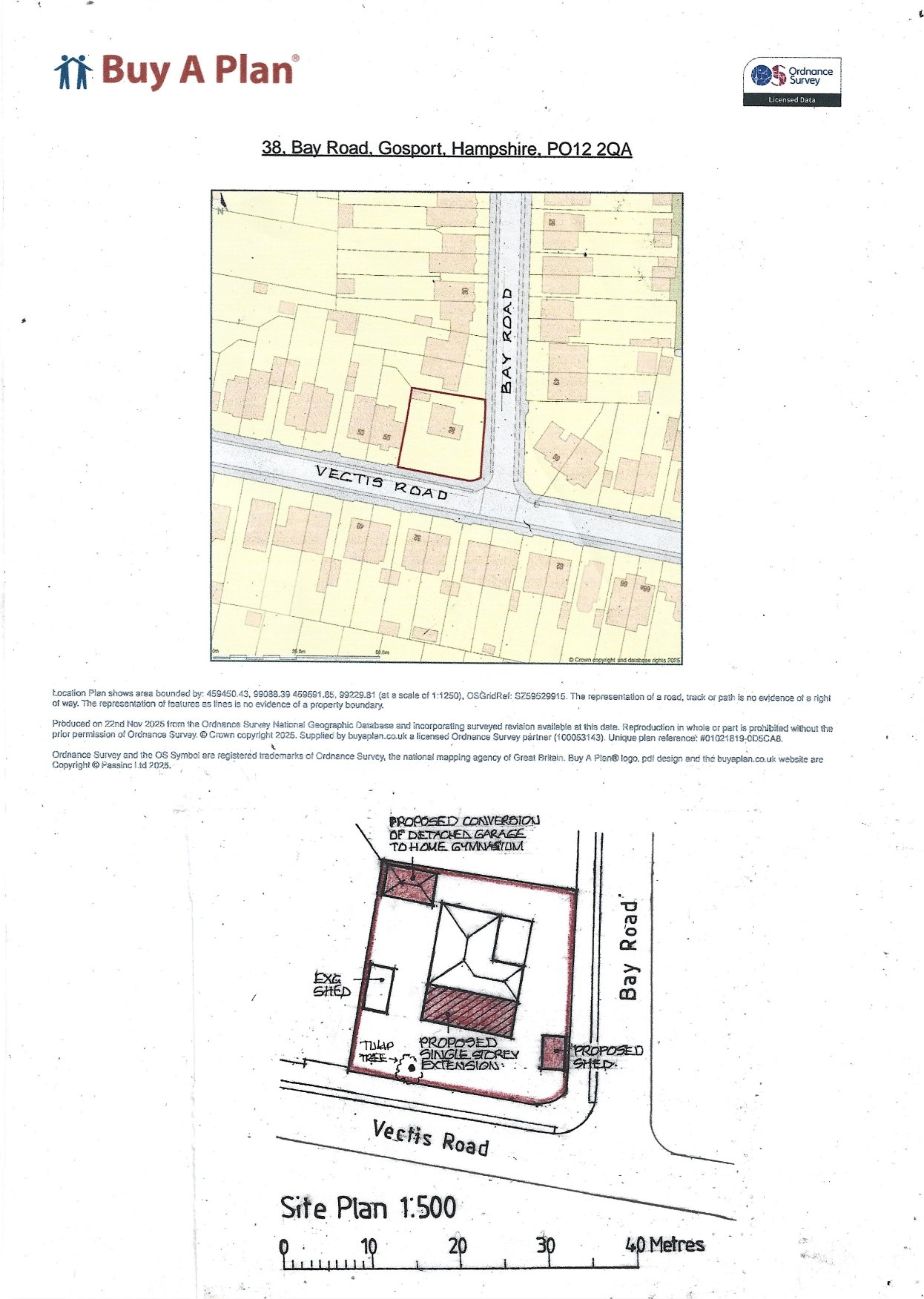
ERECTION OF SINGLE STOREY SIDE EXTENSION, ERECTION OF SHED AND CONVERSION OF DETACHED GARAGE INTO HOME GYM

Have your say

Your comment matters. Councils must consider every representation that raises material planning considerations.

Write a comment