← Gosport Borough Council

Status

Registered House extension
Received
Last month
New homes
0

Full proposal

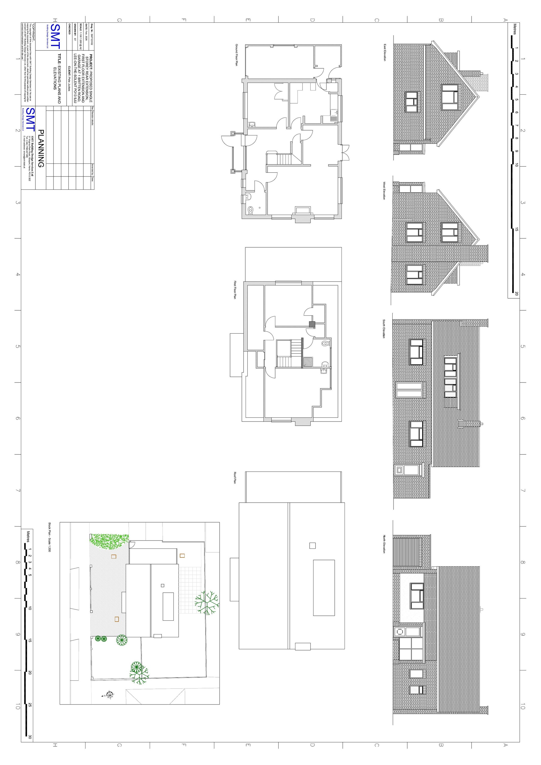
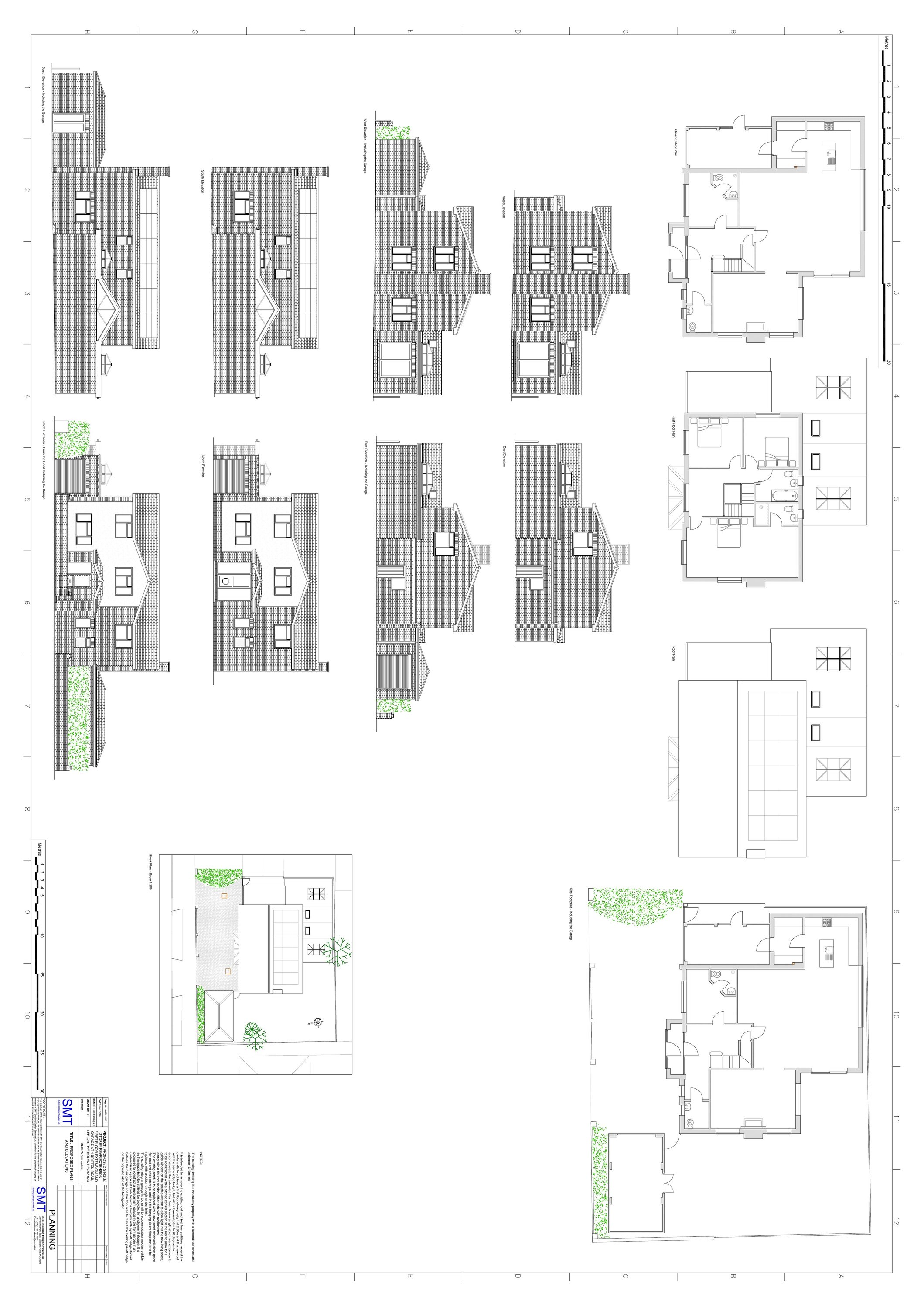
ERECTION OF SINGLE STOREY REAR EXTENSION, FIRST FLOOR EXTENSION AND GARAGE (CONSERVATION AREA)

Documents

Supporting Document
Archived · Original link
Consultee Comment
Archived · Original link
Supporting Document
Archived · Original link
Public Comment
Archived · Original link
Site Location Plan
Archived · Original link

Have your say

Your comment matters. Councils must consider every representation that raises material planning considerations.

Write a comment