← Gosport Borough Council

Status

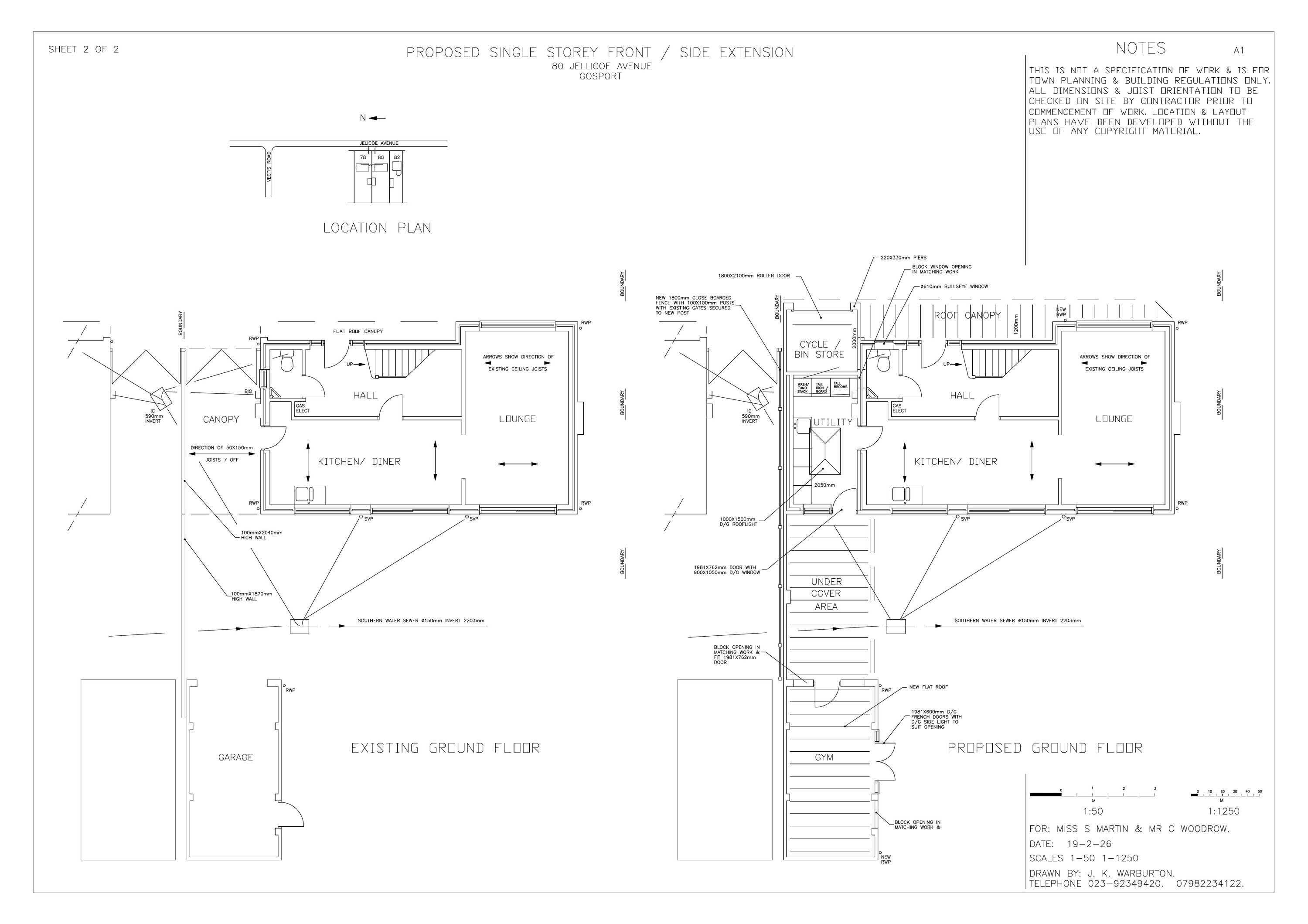
Registered House extension
Received
Last month
New homes
0

Full proposal

ERECTION OF SINGLE STOREY FRONT / SIDE EXTENSION AND ALTERATIONS TO EXISTING GARAGE

Have your say

Your comment matters. Councils must consider every representation that raises material planning considerations.

Write a comment