← Gosport Borough Council

Status

Registered House extension
Received
27 days ago
New homes
0

Full proposal

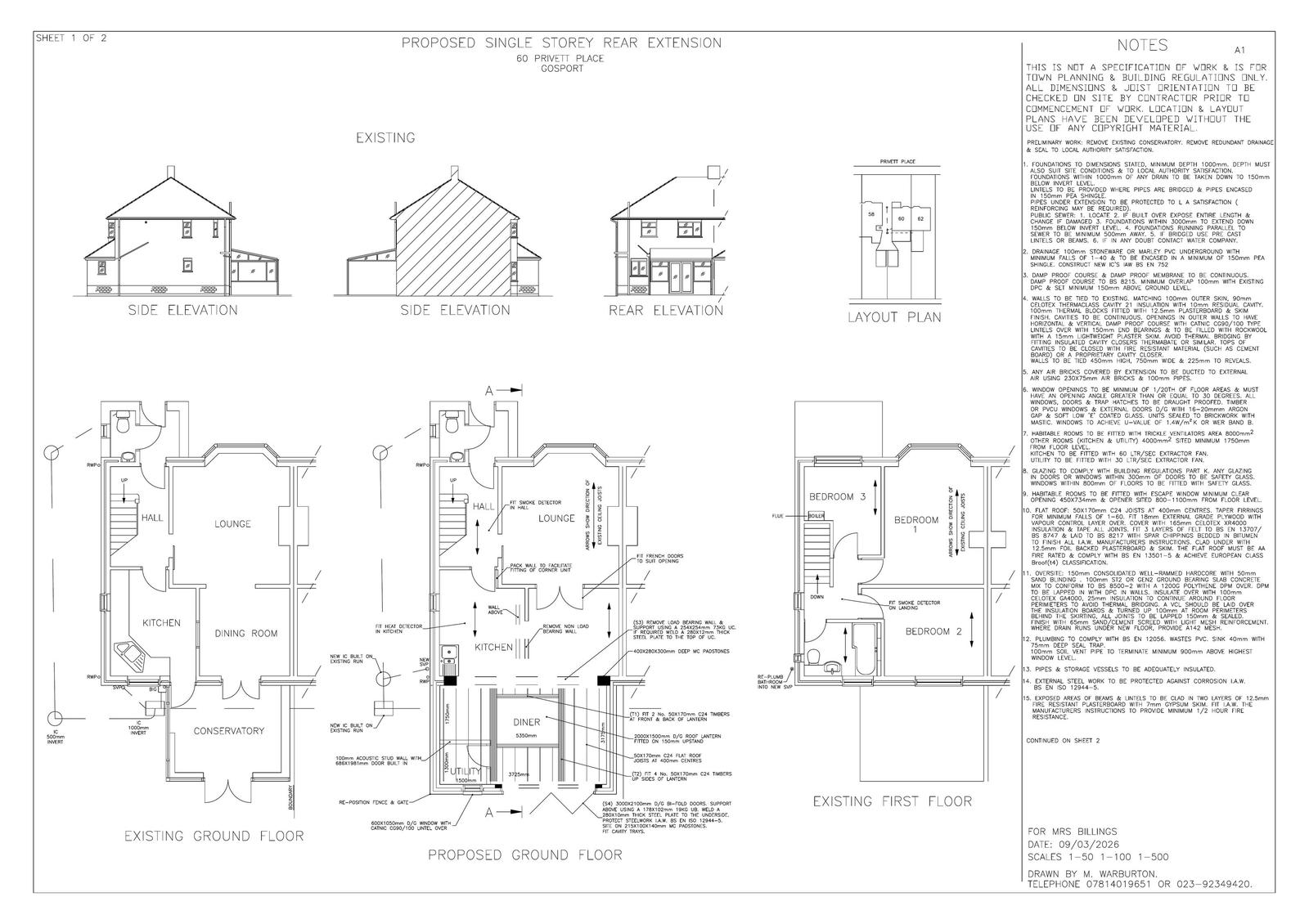
GPDO PART 1 NOTIFICATION - ERECTION OF SINGLE STOREY REAR EXTENSION DEPTH OF 3.5 METRES MAXIMUM HEIGHT OF 3.0 METRES HEIGHT OF EAVES 2.9 METRES

Documents

Application Form
Archived · Original link
Plans
Archived · Original link
Plans
Archived · Original link

Have your say

Your comment matters. Councils must consider every representation that raises material planning considerations.

Write a comment