← Gosport Borough Council

Status

Registered House extension
Received
27 days ago
New homes
0

Full proposal

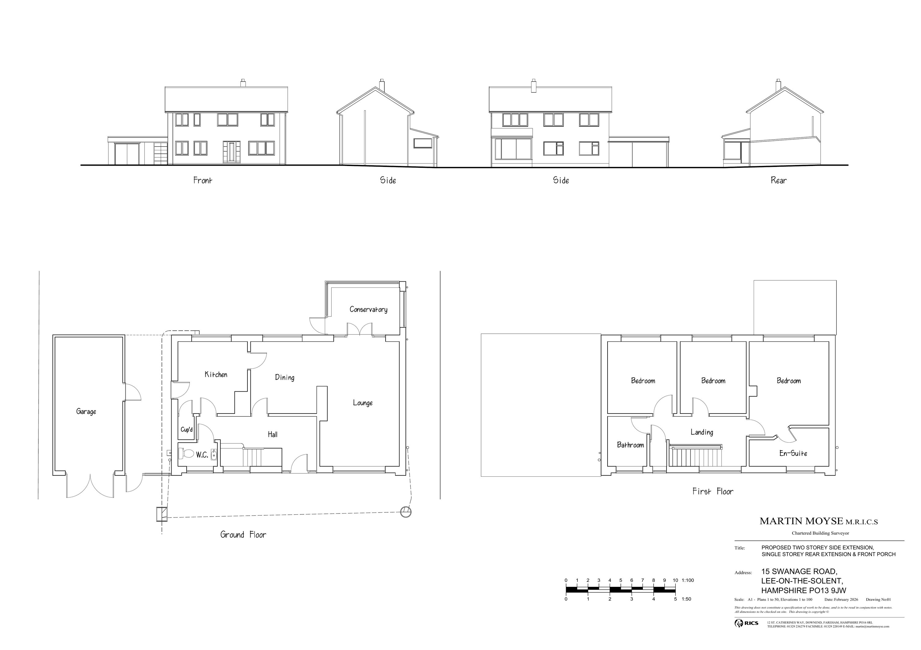
ERECTION OF TWO-STOREY SIDE EXTENSION AND SINGLE STOREY FRONT AND REAR EXTENSIONS

Documents

Supporting Document
Archived · Original link
Plans
Archived · Original link
Supporting Document
Archived · Original link
Plans
Archived · Original link

Have your say

Your comment matters. Councils must consider every representation that raises material planning considerations.

Write a comment