← All councils

Recent applications

The most recent records we hold for this council (up to 200).

Proposed alterations extension and change of use of from industrial/office to class E (Revised description) (Additional plans, window detail...

Type Change of use
Status Awaiting decision
Received 06 Nov 2025

Proposed alterations and change of use of former hotel to form six flats

Type Change of use
Status Awaiting decision
Received 22 Dec 2025

Proposed change of use from office to a single dwellinghouse with alterations including replacement of sky lounge; alterations to fenestrati...

Type Change of use
Status Awaiting decision
Received 01 Oct 2025
Plan thumbnail

Demolition of existing buildings; Outline for one pair semi-detached dwellings and a terrace of six dwellings, new access to Portland Street...

Type New housing
Status Awaiting decision
Received 07 Jan 2026
Plan thumbnail

Demolition of porches and rear extension; proposed single storey rear extension with balcony over; replacement porch: alteration from painte...

Type House extension
Status Awaiting decision
Received 12 Jan 2026
Plan thumbnail

Proposed alterations and conversion of building from Hotel (Class C1) to 13 dwellings (Class C3) with associated car parking, refuse storage...

Type Change of use
Status Registered
Received 05 Jan 2026
Plan thumbnail

Proposed alterations and conversion of industrial building to form 7 self contained residential units; proposed terrace of 3 residential dwe...

Type New housing
Status Registered
Received 30 Sep 2025
Plan thumbnail

Demolition of No.67a; Proposed extensions to No.67 to include balconies on west elevation, with new parking and amenity space; new access an...

Type Demolition
Status Registered
Received Last month
Plan thumbnail

Prior approval for change of use from Use Class E to 1 residential flat (Use Class C3)

Type Change of use
Status Unknown
Received 29 Apr 2025
Plan thumbnail

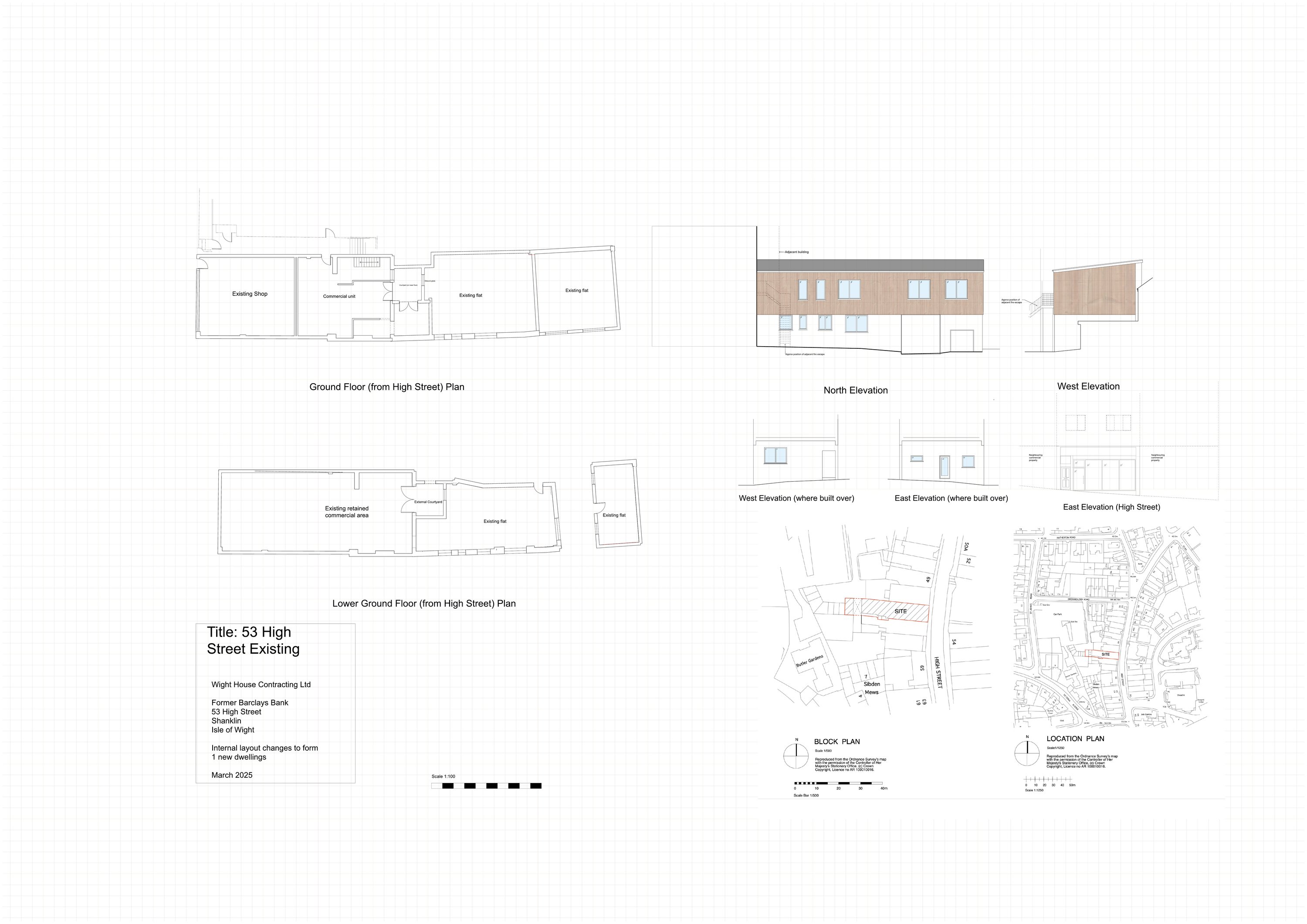
Retention of the ground floor commercial unit, with renovations and a new timber shopfront façade; Proposed conversion and change of use to ...

Type Change of use
Status Registered
Received Last month

Prior approval for alterations and change of use from restaurant to create 1 residential flat

Type Change of use
Status Registered
Received 04 Feb 2026

Proposed alterations to include balustrading and change of use of ground floor into an apartment; demolition of rear lean-to and first floor...

Type Change of use
Status Registered
Received 27 Jan 2026

Replacement dwelling with detached garage and carport (additional information received) (readvertised application)

Type New housing
Status Awaiting decision
Received 17 Dec 2025

Proposed alterations including new front boundary wall with railings and alterations to fenestration including new front door in connection ...

Type Change of use
Status Registered
Received 02 Dec 2025

Proposed conversion of flat roof on front elevation to form roof terrace at first floor level to include balustrade; alterations to fenestra...

Type House extension
Status Registered
Received 04 Feb 2026

Proposed conversion of barn into residential dwelling

Type Change of use
Status Registered
Received 30 Jan 2026

Proposed pair of semi-detached dwellings

Type New housing
Status Registered
Received 15 Jan 2026
Plan thumbnail

Proposed replacement and alterations to roof; combination of four dormers to form one dormer; replacement windows and doors; cladding to all...

Type House extension
Status Awaiting decision
Received 24 Nov 2025

Prior approval for change of use from chip shop to a single dwelling

Type Change of use
Status Unknown
Received 12 Dec 2025

Proposed alterations and change of use and conversion of shop to residential unit

Type Change of use
Status Registered
Received 31 Jul 2025
Plan thumbnail

Proposed change of use from Use Class E to form a single residential dwelling (Use Class C3)(revised plans and supporting information)(re-ad...

Type Change of use
Status Awaiting decision
Received 26 Aug 2025

Prior approval for change of use from takeaway to residential accommodation in association with existing dwelling

Type Change of use
Status Unknown
Received 17 Sep 2025

Change restaurant floors to three one-bedroom residential flats; replace extraction system.

Type Change of use
Status Registered
Received 21 Aug 2025

Retention of mobile home for residential use and continued land use for horse grazing alongside agriculture.

Type Change of use
Status Awaiting decision
Received 01 Aug 2025

Construction of four dwellings, access and parking; landscaping, community open space and biodiversity enhancements

Type New housing
Status Registered
Received 16 Jun 2025
Plan thumbnail

Prior approval for conversion of agricultural barn to one dwelling with associated works.

Type Change of use
Status Unknown
Received 19 May 2025
Plan thumbnail

Alterations and change of use of granary barn to form office; alterations, extension and change of use of garage to form toilets; alteration...

Type Change of use
Status Awaiting decision
Received 03 Mar 2025
Plan thumbnail

Demolition of orangery; single-storey side and rear extensions, veranda, external alterations and poolhouse solar panels.

Type House extension
Status Unknown
Received 14 Feb 2025

Prior approval to change first and second floor offices into two one-bedroom flats.

Type Change of use
Status Unknown
Received 12 Feb 2025
Plan thumbnail

Proposed alterations and conversion from dwelling house (C3) to a mixed use of C3/E to include a commercial unit at ground floor level; new ...

Type Change of use
Status Registered
Received 04 Feb 2026

Prior approval for change of use of first and second floors from storage to create two flats

Type Change of use
Status Unknown
Received 20 Sep 2024

Change of use of two approved holiday units to permanent residential dwellings and conversion of one barn to a permanent residential dwellin...

Type Change of use
Status Unknown
Received 02 Sep 2024

Prior approval for conversion of barn into one residential dwellinghouse (amended site address)

Type Change of use
Status Unknown
Received 22 Oct 2024

Prior approval for change of use from funeral directors (Class E) to a dwelling

Type Change of use
Status Unknown
Received 04 Sep 2024
Plan thumbnail

Prior approval for proposed change of use and alteration of Ground and Lower Ground Floors from an existing Chip Shop and storage area to a ...

Type Change of use
Status Unknown
Received 21 Nov 2024

Prior approval for alterations and conversion of agricultural barn to form one residential dwelling

Type Change of use
Status Unknown
Received 15 Nov 2024

Demolition of single storey rear extension; Proposed alterations and conversion of dwelling into two flats including two storey rear extensi...

Type Change of use
Status Registered
Received 01 Dec 2025

Proposed alterations and change of use of guest house with owners accommodation to guest house and 2 self-contained holiday units with owner...

Type Change of use
Status Awaiting decision
Received 22 Dec 2025
Plan thumbnail

Demolition of existing dwelling; proposed replacement dwelling

Type Demolition
Status Awaiting decision
Received 24 Nov 2025
Plan thumbnail

Proposed dwelling; landscaping and formation of shared access/driveway and parking

Type New housing
Status Registered
Received 05 Feb 2026
Plan thumbnail

Construction of nine dwellings with vehicular access and landscaping.

Type New housing
Status Registered
Received 19 Feb 2025
Plan thumbnail

Outline for 38 dwellings; to include access roads and parking with associated landscaping, biodiversity enhancements and a SUDS pond with ac...

Type New housing
Status Registered
Received 12 Sep 2025
Plan thumbnail

Proposed residential development of five dwellings with access, garages, parking and landscaping.

Type New housing
Status Registered
Received 28 May 2025

Alterations and conversion of self contained annexe and workshop (known as Brixton Barn), to form one single residential unit to include par...

Type Change of use
Status Awaiting decision
Received 15 Oct 2025
Plan thumbnail

Outline for residential development of 127 dwellings with access, landscaping and Biodiversity Net Gain provision.

Type New housing
Status Registered
Received 13 Oct 2025
Plan thumbnail

Construction of a dwelling with link-attached garage

Type New housing
Status Registered
Received 17 Dec 2025
Plan thumbnail

Hybrid Application; Full planning permission for partial demolition of existing school buildings; proposed 4 affordable dwellings; alteratio...

Type New housing
Status Registered
Received 23 Dec 2025
Plan thumbnail

Prior approval for change of use from commercial (Use Class E) of first floor to form 2 flats (Use Class C3)

Type Change of use
Status Unknown
Received 21 Nov 2025
Plan thumbnail

Demolition of two barns; Proposed dwelling with link extension to existing cottage to be retained for use as ancillary accommodation only

Type New housing
Status Registered
Received Last month
Plan thumbnail

Change of use from hotel to single residential dwelling incorporating ground floor ancillary accommodation

Type Change of use
Status Registered
Received 27 Jan 2026
Plan thumbnail

Demolition of dwelling; Proposed replacement dwelling

Type Demolition
Status Registered
Received 16 Jan 2026
Plan thumbnail

Demolition of two dwellings; proposed replacement dwelling with associated landscaping

Type Demolition
Status Registered
Received 02 Feb 2026
Plan thumbnail

Proposed alterations, to include single storey extension, and change of use of former doctors surgery to form 3 self-contained flats and 8 b...

Type Change of use
Status Registered
Received 28 Jan 2026
Plan thumbnail

Outline for a detached dwelling and garage

Type New housing
Status Registered
Received 08 Jan 2026
Plan thumbnail

Prior approval for conversion of barn into two residential dwellinghouses

Type Change of use
Status Unknown
Received 16 Sep 2024

Prior approval for demolition of pole barns, steel framed barn and rear extension; Prior approval for alterations, conversion and extension ...

Type Demolition
Status Unknown
Received 17 Jul 2025

Proposed 32 dwellings; means of access; landscaping and ancillary infrastructure (additional information)(readvertised application)

Type New housing
Status Registered
Received 21 Oct 2025

Proposed change of use from C3 (dwellinghouse) to C2 (children's home)

Type Change of use
Status Registered
Received 01 Dec 2025

Alterations and change of use of first floor and second floor rooms as bed and breakfast accommodation for use in association with existing ...

Type Change of use
Status Registered
Received 07 Oct 2025

Change of use from guest house (C1) to one residential dwelling (C3).

Type Change of use
Status Decided
Received 12 Sep 2025

Convert former surgery into four flats and a nine-room HMO, with new external fire escape and fenestration changes.

Type Change of use
Status Withdrawn
Received 03 Jun 2025

First-floor alterations and extension to form two flats, with new external staircase.

Type Change of use
Status Withdrawn
Received 03 Jun 2025

Convert vacant block to five one-bedroom apartments above ground-floor retail, including rear second-floor extension and fenestration change...

Type Change of use
Status Decided
Received 24 Jun 2025

Partial conversion of first and second floor offices to form two studio flats.

Type Change of use
Status Decided
Received 17 Feb 2025

Siting of a twin-unit mobile home to provide one residential dwelling.

Type New housing
Status Decided
Received 05 Mar 2025

Prior approval for change of use from guest house to one residential dwelling.

Type Change of use
Status Withdrawn
Received 24 Mar 2025

Prior approval to convert two barns to form three residential dwellings.

Type Change of use
Status Withdrawn
Received 24 Mar 2025

Alterations and conversion of north wing to create four residential flats.

Type Change of use
Status Decided
Received 01 May 2025

Partial demolition and conversion of former bar and apartment into one residential dwelling with landscaping.

Type Change of use
Status Decided
Received 07 May 2025

Demolition of agricultural building and construction of a single residential dwelling.

Type New housing
Status Decided
Received 26 May 2025