← Isle of Wight Council

Status

Unknown Change of use
Received
29 Apr 2025
New homes
1

Full proposal

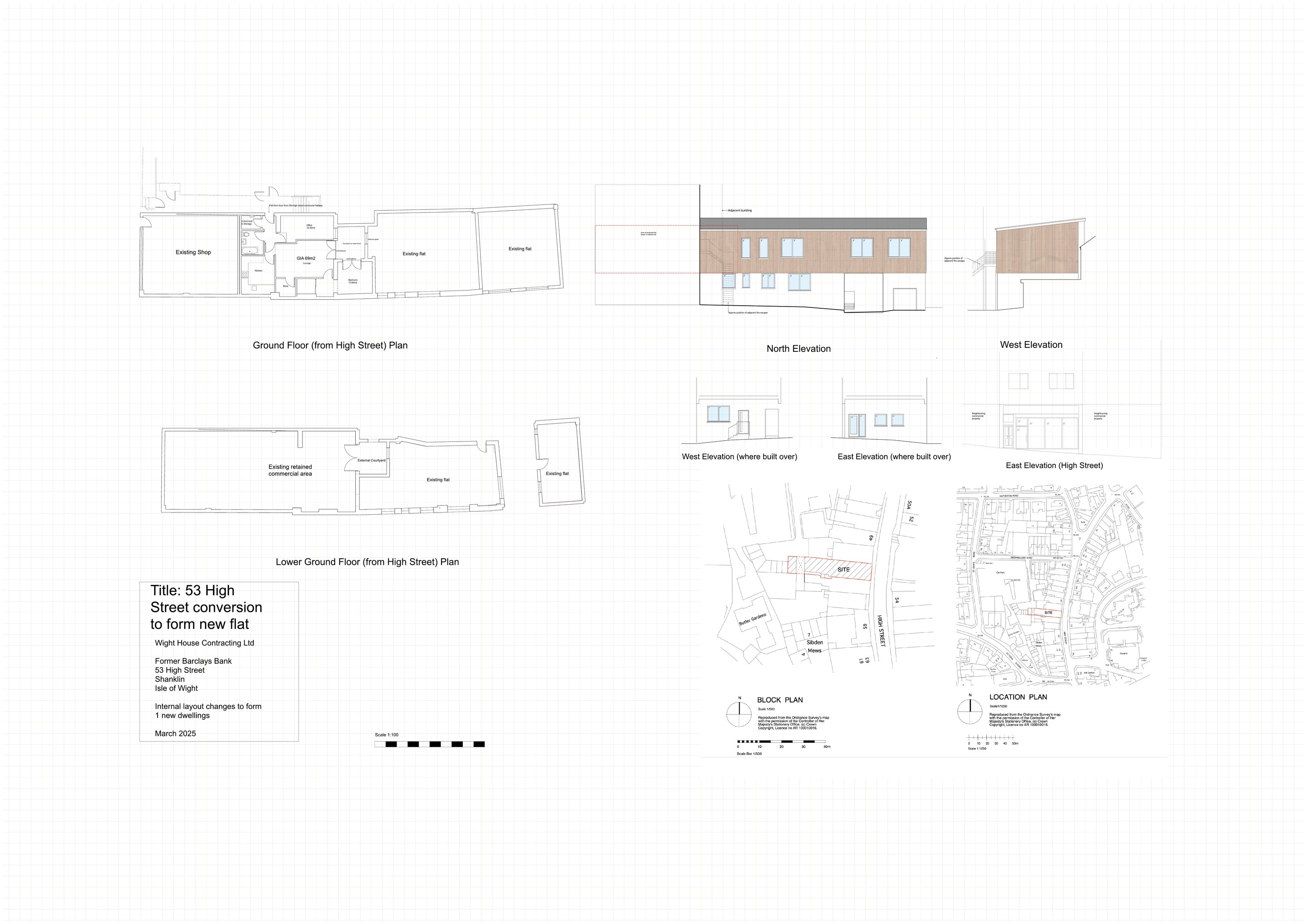
Prior approval for change of use from Use Class E to 1 residential flat (Use Class C3)

Documents

Plan - Block
Archived · Original link
Application Form - Public Copy
Archived · Original link
Supporting Information
Archived · Original link
Plan - Location
Archived · Original link
Consultee Comment
Archived · Original link
Consultee Comment
Archived · Original link
Officer Written Justification
Archived · Original link
Decision Notice
Archived · Original link
Public Comment
Archived · Original link
Site Notice
Archived · Original link

Have your say

Your comment matters. Councils must consider every representation that raises material planning considerations.

Write a comment