Application
P2025/1001/FUL
Islington Council · AGILE
Status
VALIDATED
New housing
Received
04 Apr 2025
New dwellings
27
What you can do
Take Action
Make your voice heard. Authorities need to hear from people who support new homes.
Summary
Demolish existing building; erect 3–6 storey mixed-use building including 27 residential units.
Full Proposal
Demolition of existing building and erection of new 3-6 storey (plus plant enclosure) building which would provide retail, restaurant and office space (Use Class E) at ground floor level and 27 residential units (Use Class C3) at upper floors. The proposals also comprise the delivery of cycle parking and refuse storage facilities and associated hard and soft landscaping and public realm works.
Detail pages
- View live detail on council site
- No archived detail page available.
Documents
Addendum DLSL information - Church and Nursery
Default
Not downloaded
· Council link
Air Quality Assessment
Default
Not downloaded
· Council link
Application Form - Without Personal Data
Default
Not downloaded
· Council link
Arboricultural Survey
Default
Not downloaded
· Council link
Archaeological Desk Based Assessment
Default
Not downloaded
· Council link
Bat Emergence Survey Report
Application Supporting Documents
Not downloaded
· Council link
Biodiversity Net Gain Assessment
Default
Not downloaded
· Council link
BREEAM Response
Application Supporting Documents
Not downloaded
· Council link
CIL Form
Default
Not downloaded
· Council link
Commercial Agent Letter
n/a
Not downloaded
· Council link
Construction Management Plan
Default
Not downloaded
· Council link
Contaminated Land - Preliminary Risk Assessment Part 1
Default
Not downloaded
· Council link
Contaminated Land - Preliminary Risk Assessment Part 2
Default
Not downloaded
· Council link
Contaminated Land - Preliminary Risk Assessment Part 3
Default
Not downloaded
· Council link
Cooling Strategy Note
Application Supporting Documents
Not downloaded
· Council link
Daylight and Sunlight Assessment - Statement of Conformity
n/a
Not downloaded
· Council link
Daylight and Sunlight Report Part 1
Default
Not downloaded
· Council link
Daylight and Sunlight Report Part 2
Default
Not downloaded
· Council link
Daylight and Sunlight Report Part 3
Default
Not downloaded
· Council link
Daylight and Sunlight Report Part 4
Default
Not downloaded
· Council link
Delivery, Servicing, and Waste Management Plan
Default
Not downloaded
· Council link
Design and Access Statement Part 1
Default
Not downloaded
· Council link
Design and Access Statement Part 2
Default
Not downloaded
· Council link
Design and Access Statement Part 3
Default
Not downloaded
· Council link
Energy Assessment
Default
Not downloaded
· Council link
Extract and Ventilation Statement
Default
Not downloaded
· Council link
Fire Statement
Default
Not downloaded
· Council link
Fire Statement Response Document
n/a
Not downloaded
· Council link
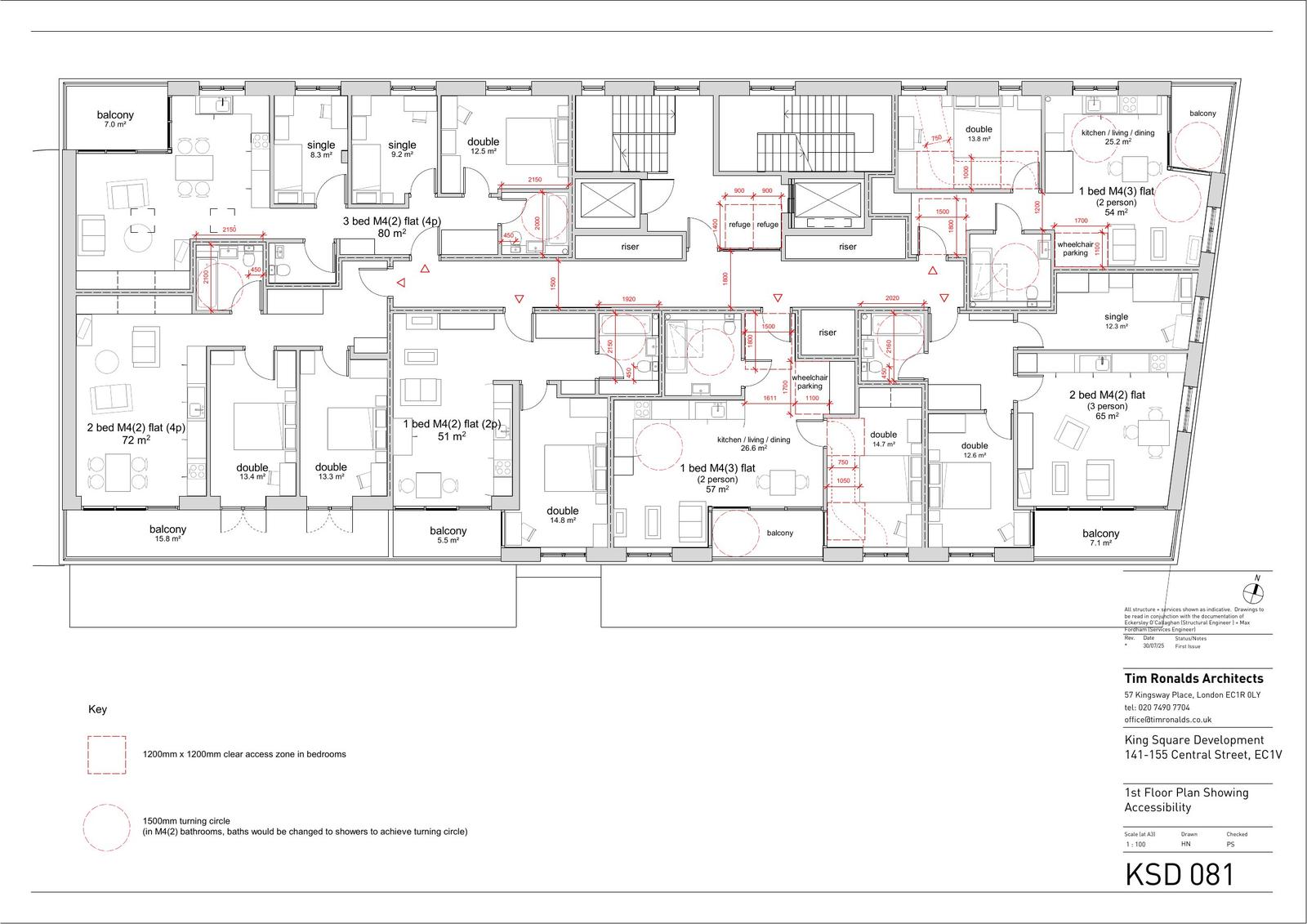
First Floor Plan - Accessibility Mark Up
Default
Not downloaded
· Council link
Flood Risk Assessment and Drainage Strategy
Default
Not downloaded
· Council link
GLA Circular Economy Template
Default
Not downloaded
· Council link
Green Performance Plan
Application Supporting Documents
Not downloaded
· Council link
Ground Floor Plan - Accessibility Mark Up
Default
Not downloaded
· Council link
Health Impact Assessment
Default
Not downloaded
· Council link
Heritage Impact Assessment
Default
Not downloaded
· Council link
HQM Pre-Assessment
Default
Not downloaded
· Council link
KSD-010 – Existing Location Plan
Default
Not downloaded
· Council link
KSD-011 – Existing Location Plan
Default
Not downloaded
· Council link
KSD-012 – Existing Site Plan
Default
Archived copy
· Council link
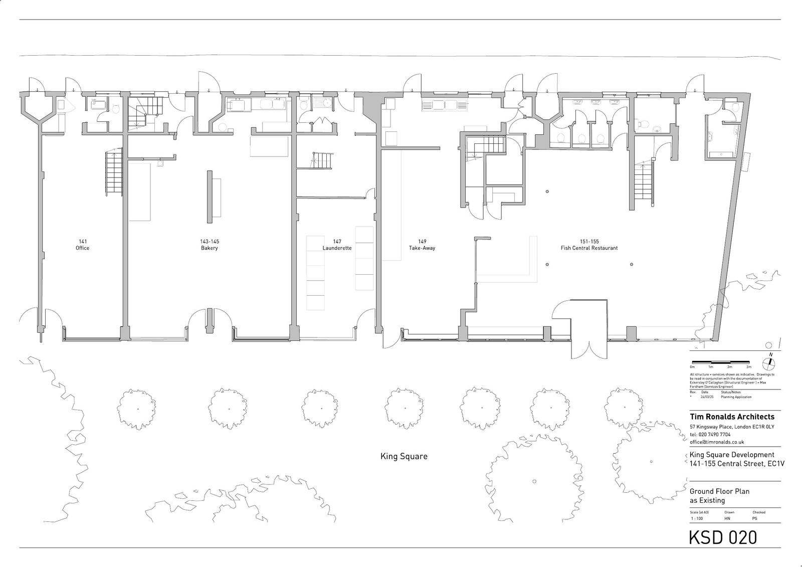
KSD-020 – Existing Ground Floor Plan
Default
Not downloaded
· Council link
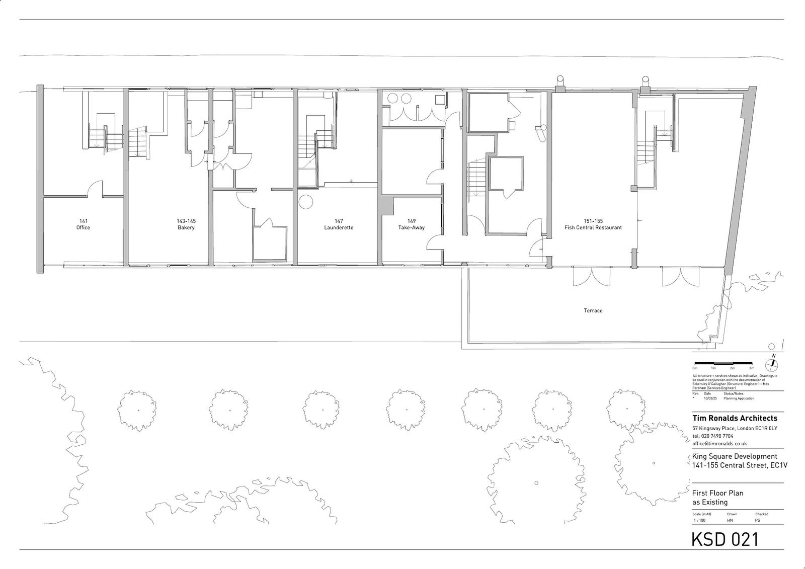
KSD-021 – Existing First Floor Plan
Default
Not downloaded
· Council link
KSD-031 – Existing South Elevation
Default
Not downloaded
· Council link
KSD-032 – Existing East Elevation
Default
Not downloaded
· Council link
KSD-033 – Existing North Elevation
Default
Not downloaded
· Council link
KSD-034 – Existing West Elevation
Default
Not downloaded
· Council link
KSD-041 Rev.D – Proposed Location Plan
Default
Not downloaded
· Council link
Archived copy
· Council link
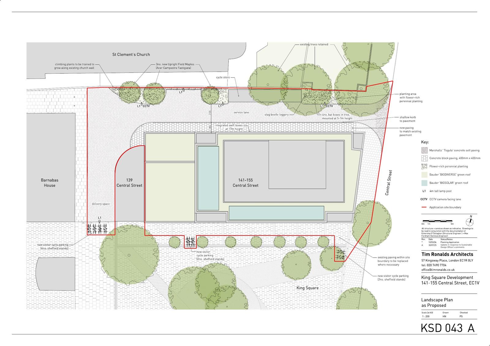
KSD-043 Rev.A – Proposed Landscape Plan
Default
Not downloaded
· Council link
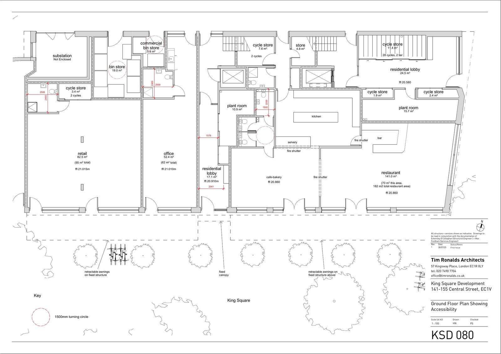
KSD-050 Rev.E – Proposed Ground Floor Plan
Default
Not downloaded
· Council link
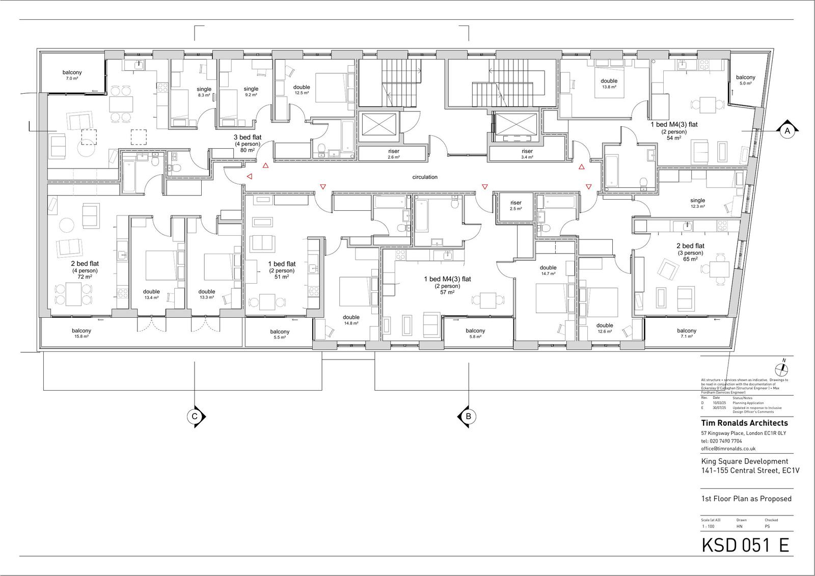
KSD-051 Rev.E – Proposed First Floor Plan
Default
Not downloaded
· Council link
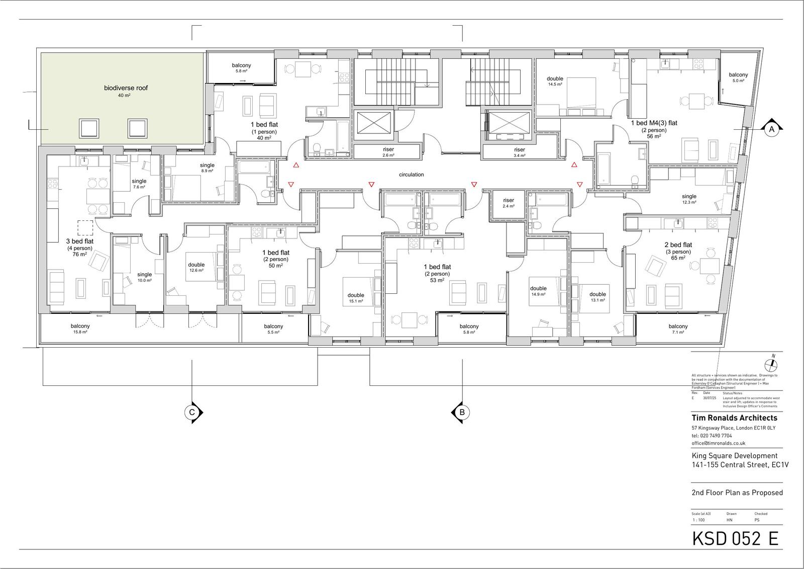
KSD-052 Rev.E – Proposed Second Floor Plan
Default
Not downloaded
· Council link
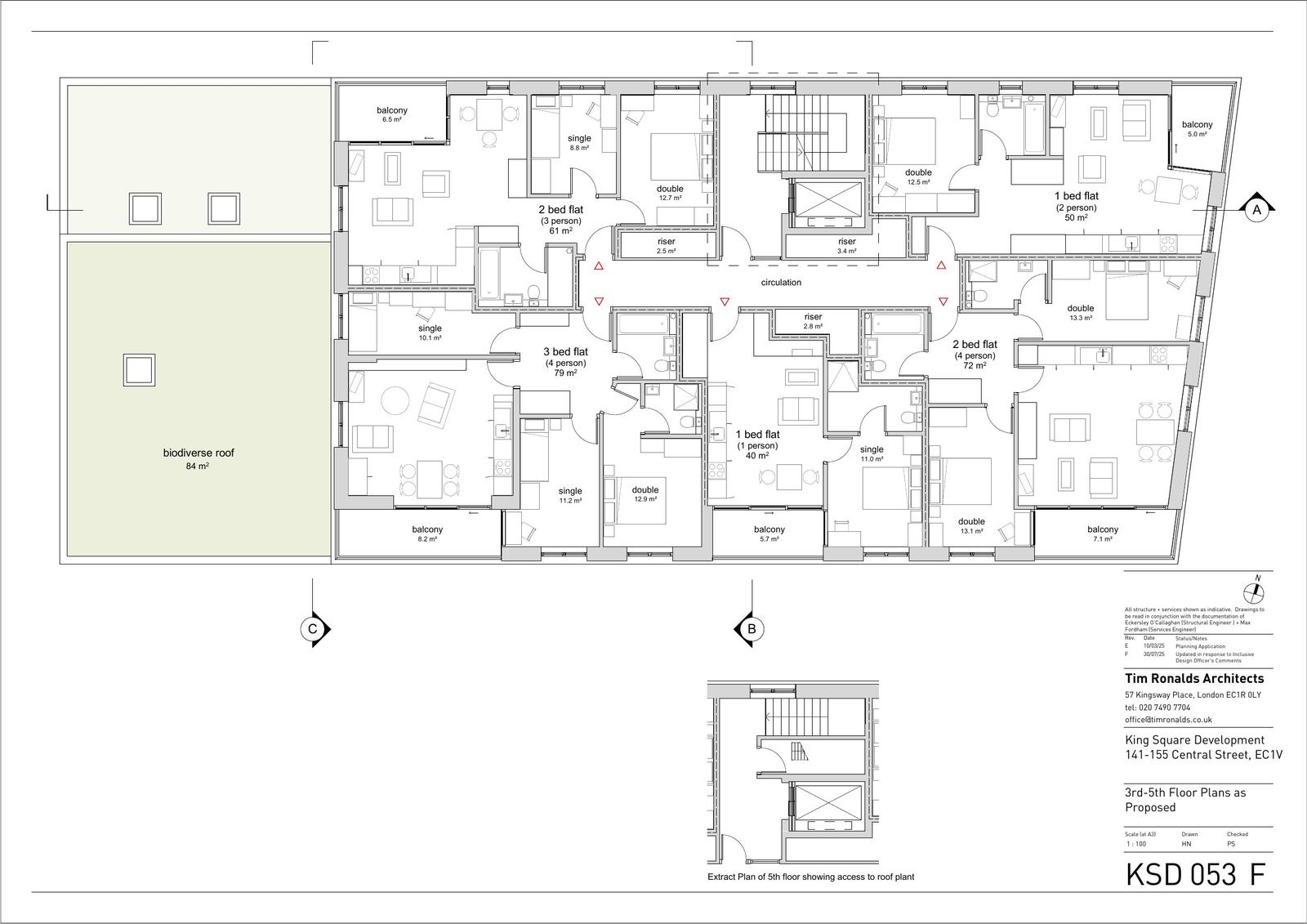
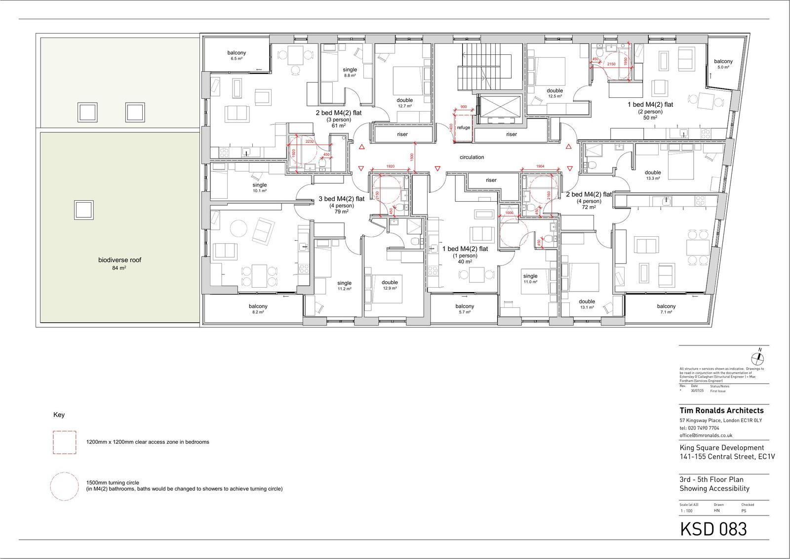
KSD-053 Rev.F – Proposed Third-Fifth Floor Plan
Default
Not downloaded
· Council link
KSD-056 Rev.A – Proposed Sixth Floor Plan
Default
Not downloaded
· Council link
KSD-061 Rev.D – Proposed South Elevation
Default
Not downloaded
· Council link
KSD-062 Rev.D – Proposed East Elevation
Default
Not downloaded
· Council link
KSD-063 Rev.E – Proposed North Elevation
Default
Not downloaded
· Council link
KSD-064 Rev.E – Proposed West Elevation
Default
Not downloaded
· Council link
KSD-071 Rev.E – Proposed Section AA
Default
Not downloaded
· Council link
KSD-072 Rev.E – Proposed Section BB
Default
Not downloaded
· Council link
KSD-073 Rev.C – Proposed Section CC
Default
Not downloaded
· Council link
Landscape Design Strategy
Default
Not downloaded
· Council link
Lighting Design Report
Default
Not downloaded
· Council link
Noise Impact Assessment
Default
Not downloaded
· Council link
Overheating Report
Default
Not downloaded
· Council link
Planning Statement
n/a
Not downloaded
· Council link
Potable Water Management Statement
Default
Not downloaded
· Council link
Preliminary Ecological Appraisal
Default
Not downloaded
· Council link
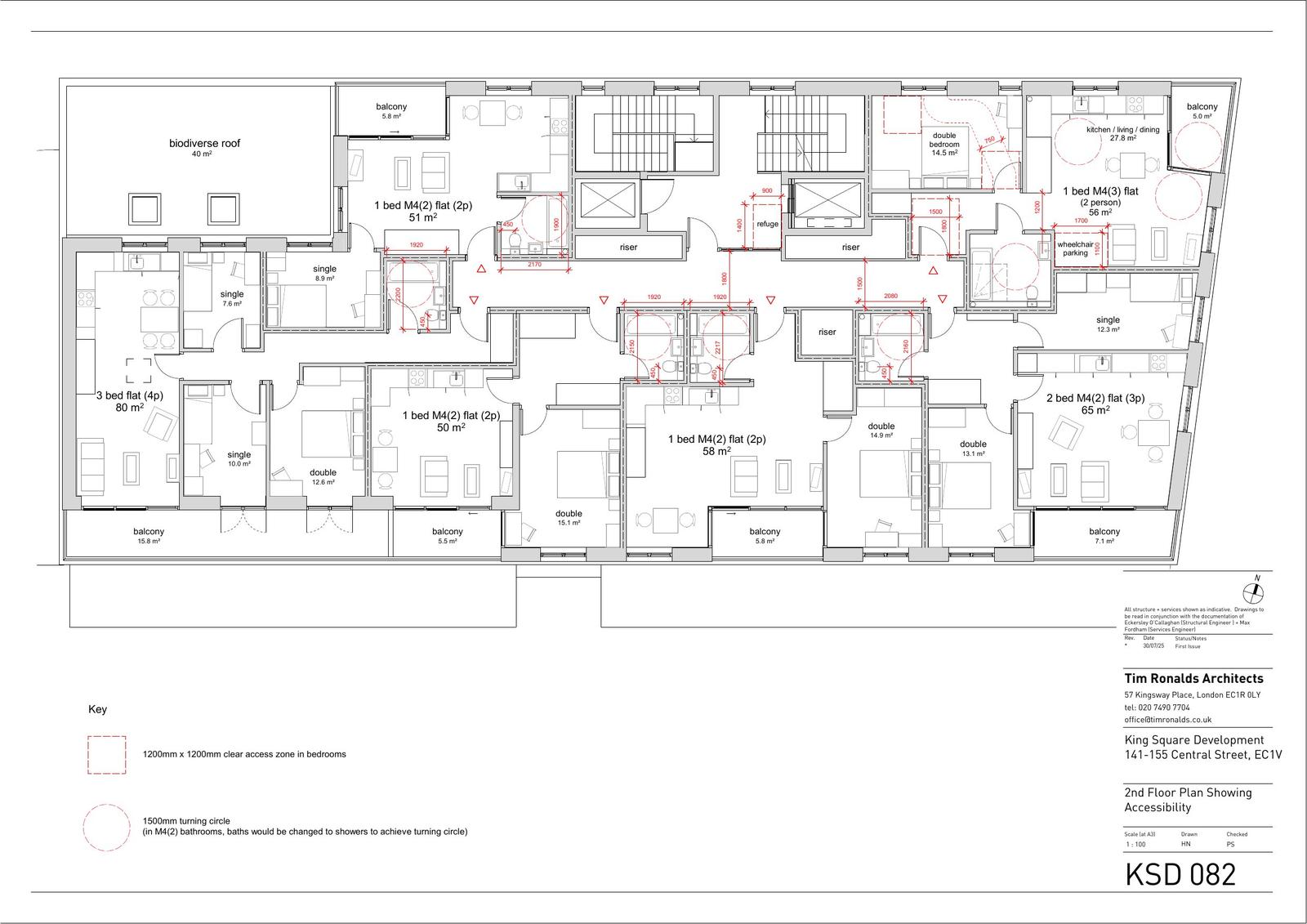
Second Floor Plan - Accessibility Mark Up
Default
Not downloaded
· Council link
Statement of Community Involvement
Default
Not downloaded
· Council link
Statutory Biodiversity Metric Calculation
Default
Not downloaded
· Council link
SUDS Proforma
Default
Not downloaded
· Council link
SUPERSEDED - Viability Report Part 1
Default
Not downloaded
· Council link
SUPERSEDED - Viability Report Part 2
Default
Not downloaded
· Council link
Supplementary Sustainability and Energy Comments
Default
Not downloaded
· Council link
Third-Fifth Floor Plan - Accessibility Mark Up
Default
Not downloaded
· Council link
Transport Statement
Default
Not downloaded
· Council link
Travel Plan
Default
Not downloaded
· Council link
UGF Calculator
Default
Not downloaded
· Council link
Updated Financial Viability Appraisal
Default
Not downloaded
· Council link
Urban Green Factor Review
Default
Not downloaded
· Council link
Utilities Statement
Default
Not downloaded
· Council link
Whole Life Carbon Assessment and Circular Economy Statement
Default
Not downloaded
· Council link