← Manchester City Council

Status

Awaiting decision House extension
Received
Not recorded
New homes
0

Full proposal

Part retrospective remodelling and extensions to existing detached dwelling with rear extension and alterations to existing rear boundary treatment

Documents

3D VIEWS
Drawing - Visuals
Not yet archived · Original link
APPLICATION FORM - WITHOUT PERSONAL DATA
Application Form
Not yet archived · Original link
ARBORICULTURAL IMPACT ASSESSMENT
Tree survey or information
Not yet archived · Original link
ELEVATION
Drawing - Existing
Not yet archived · Original link
ELEVATION
Drawing - Existing
Not yet archived · Original link
ELEVATIONS
Drawing - Existing & Proposed
Not yet archived · Original link
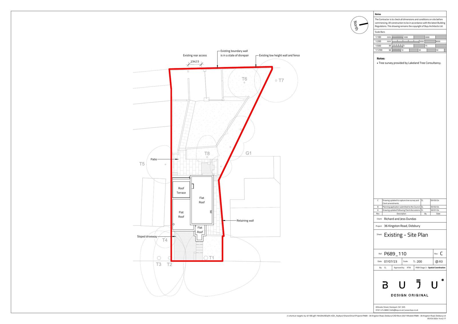
FLOOR PLAN
Drawing - Existing
Not yet archived · Original link
FLOOR PLANS
Drawing - Proposed
Not yet archived · Original link
Heritage Statement
Heritage Statement
Not yet archived · Original link
NORTH & EAST ELEVATIONS
Drawing - Proposed
Not yet archived · Original link
Drawing - Existing
Archived · Original link
Drawing - Proposed
Archived · Original link
SOUTH & WEST ELEVATIONS
Drawing - Proposed
Not yet archived · Original link
THE LOCATION PLAN
Drawing - Location Plan
Not yet archived · Original link

Have your say

Your comment matters. Councils must consider every representation that raises material planning considerations.

Write a comment