← All councils

Recent applications

The most recent records we hold for this council (up to 200).

Plan thumbnail

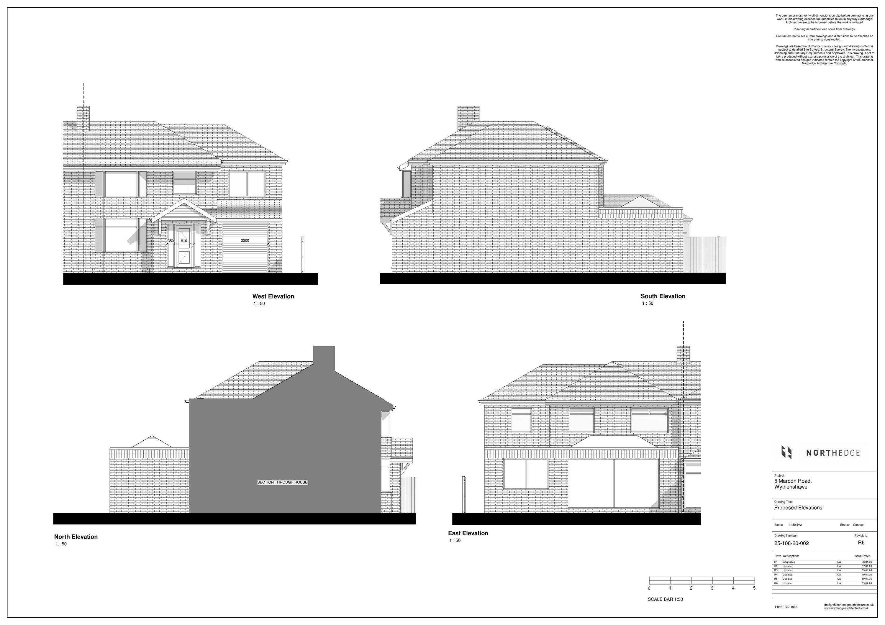
Erection of single-storey rear extension and alteration to front extension's roof from mono-pitched to pitched.

Type House extension
Status Awaiting decision
Received Date not available
Plan thumbnail

Erection of single-storey side extension and rooflights to front and rear.

Type House extension
Status Awaiting decision
Received Date not available
Plan thumbnail

Loft Conversion with rear dormer.

Type House extension
Status Awaiting decision
Received Date not available
Plan thumbnail

Erection of a single-storey front extension, a part single, part two-storey side extension and a part single, part two-storey rear extension...

Type House extension
Status Awaiting decision
Received Date not available
Plan thumbnail

Erection of single-storey rear extension

Type House extension
Status Awaiting decision
Received Date not available
Plan thumbnail

Erection of single-storey rear extension following removal of existing structure to rear.

Type House extension
Status Awaiting decision
Received Date not available
Plan thumbnail

Installation of hip roof to a gable conversion, erection of two-storey side extension and single-storey rear extension and rear dormer.

Type House extension
Status Awaiting decision
Received Date not available
Plan thumbnail

Change of use from offices (Use Class E) to a mixed-use restaurant and shisha lounge (Sui Generis); alterations to the front elevation; erec...

Type Change of use
Status Awaiting decision
Received Date not available
Plan thumbnail

Erection of a single-storey front extension to create additional office space.

Type Commercial
Status Awaiting decision
Received Date not available
Plan thumbnail

Erection of single-storey extension to the side and rear following demolition of existing outrigger

Type House extension
Status Awaiting decision
Received Date not available
Plan thumbnail

Erection of part single, part two-storey side and rear extension.

Type House extension
Status Awaiting decision
Received Date not available
Plan thumbnail

Erection of part single, part two-storey side extension.

Type House extension
Status Awaiting decision
Received Date not available
Plan thumbnail

Erection of a 14-storey office building (Use Class E(c)), with commercial ground floor use (Use Class E (b)), basement, provision of cycle s...

Type Commercial
Status Awaiting decision
Received Date not available
Plan thumbnail

Erection of two-storey building comprising 2no. two-bedroom apartments (Use Class C3) with associated car parking, cycle storage and waste s...

Type New housing
Status Awaiting decision
Received Date not available
Plan thumbnail

Erection of 14no. houses (Class C3) with associated highway, landscaping and parking.

Type New housing
Status Awaiting decision
Received Date not available
Plan thumbnail

Erection of two-storey Warehouse Units (Use Class B2/B8/E(g)(iii)), with ancillary offices and trade counters, along with all associated wor...

Type Industrial
Status Awaiting decision
Received Date not available
Plan thumbnail

Erection of single-storey rear extension to form additional living accommodation in association with the conversion from a 6-bedroom House i...

Type House extension
Status Awaiting decision
Received Date not available
Plan thumbnail

Outline Application (access, layout and scale) for the erection of 2no. two-storey detached buildings following demolition of existing bunga...

Type Commercial
Status Awaiting decision
Received Date not available
Plan thumbnail

Erection of a single-storey rear extension to form additional living accommodation

Type House extension
Status Awaiting decision
Received Date not available
Plan thumbnail

Erection of a single-storey rear extension with a modular ramp installed at the main entrance.

Type House extension
Status Awaiting decision
Received Date not available
Plan thumbnail

Erection of two-storey side, single-storey rear and front extension

Type House extension
Status Awaiting decision
Received Date not available
Plan thumbnail

Erection of part single-storey, part two-storey side and rear extension and front extension.

Type House extension
Status Awaiting decision
Received Date not available
Plan thumbnail

Erection of 3-storey building to form 7no. apartments (Class C3) following demolition of existing semi-detached properties.

Type New housing
Status Awaiting decision
Received Date not available
Plan thumbnail

Change of use from dwellinghouse (Use Class C3) to a residential care home (Use Class C2) for up to two children (aged 8-17 years), supporte...

Type Change of use
Status Awaiting decision
Received Date not available
Plan thumbnail

Use of a dwellinghouse (Use Class C3) as a small, single occupancy children's care home (Use Class C2), accommodating one young person aged ...

Type Change of use
Status Awaiting decision
Received Date not available
Plan thumbnail

Erection of first-floor rear extension to create additional office accommodation, alteration to car parking and installation of bike and bin...

Type Commercial
Status Awaiting decision
Received Date not available
Plan thumbnail

Change of use of vacant former public house to retail unit to the ground floor, with a two-storey extension to the rear and alterations to t...

Type Change of use
Status Awaiting decision
Received Date not available
Plan thumbnail

Erection of part-single, part two-storey rear extension to 183 and first floor side extension to 185, together with rear roof dormers to bot...

Type House extension
Status Awaiting decision
Received Date not available
Plan thumbnail

Erection of single-storey side and rear extension to form additional living accommodation.

Type House extension
Status Awaiting decision
Received Date not available
Plan thumbnail

Erection of single-storey rear extension.

Type House extension
Status Awaiting decision
Received Date not available
Plan thumbnail

Erection of single-storey rear extension and garage conversion.

Type House extension
Status Awaiting decision
Received Date not available
Plan thumbnail

Demolition of existing building at 78-80 Tib Street and erection of four-storey building (Use Class E).

Type Commercial
Status Awaiting decision
Received Date not available
Plan thumbnail

Erection of a ground floor rear extension and creation of basement courtyard with associated steps.

Type House extension
Status Awaiting decision
Received Date not available
Plan thumbnail

Erection of two-storey side and part single, part two-storey rear extension.

Type House extension
Status Awaiting decision
Received Date not available
Plan thumbnail

Basements conversion to create one additional dwelling with installation of light wells to front and rear including car parking, bin and cyc...

Type New housing
Status Awaiting decision
Received Date not available
Plan thumbnail

Proposed cross boundary application (Stockport MBC and Manchester CC) seeking full Planning Permission for a residential development of up t...

Type New housing
Status Awaiting decision
Received Date not available
Plan thumbnail

Erection of a 16-storey building comprising 73 apartments (Use Class C3) with associated residential facilities (residents lounge and terrac...

Type New housing
Status Awaiting decision
Received Date not available
Plan thumbnail

Retrospective application for the erection of a part single-storey/part two-storey side and rear extension, together with the installation o...

Type House extension
Status Awaiting decision
Received Date not available
Plan thumbnail

Erection of single-storey rear extension with part single and part two-storey side extension and porch.

Type House extension
Status Awaiting decision
Received Date not available
Plan thumbnail

Erection of a detached (new build) replacement dwelling on plot.

Type New housing
Status Awaiting decision
Received Date not available
Plan thumbnail

Conversion of the upper floors from Class E to 3no. residential flats (C3), the erection of a three-storey rear extension and insertion of r...

Type Change of use
Status Awaiting decision
Received Date not available
Plan thumbnail

Erection of a single detached dwellinghouse (Class C3).

Type New housing
Status Awaiting decision
Received Date not available
Plan thumbnail

Erection of two-storey rear extension with a rear dormer roof extension and front porch extension.

Type House extension
Status Awaiting decision
Received Date not available
Plan thumbnail

Erection of single-storey extension to side and rear.

Type House extension
Status Awaiting decision
Received Date not available
Plan thumbnail

Use of single dwellinghouse as two self contained flats.

Type Change of use
Status Awaiting decision
Received Date not available
Plan thumbnail

Single-storey extension and dormer roof extension both to the rear.

Type House extension
Status Awaiting decision
Received Date not available
Plan thumbnail

Erection of a two bedroom bungalow within rear garden together with a first floor extension and roof alterations to the existing dwelling.

Type New housing
Status Awaiting decision
Received Date not available
Plan thumbnail

Use of dwellinghouse (Class C3) as a Children's Care Home (Class C2) providing care for two children with staff working on a rota basis.

Type Change of use
Status Awaiting decision
Received Date not available
Plan thumbnail

Change of Use of upper floors from commercial use (use class E) to residential (use Class C3) to form 4no. 2-bedroom self-contained apartmen...

Type Change of use
Status Awaiting decision
Received Date not available
Plan thumbnail

Erection of single- storey rear extension, new windows and doors to the rear, alterations to existing garage including new roof, parapet and...

Type House extension
Status Awaiting decision
Received Date not available
Plan thumbnail

Erection of a single-storey rear extension following demolition of existing kitchen outrigger, a single-storey side extension, rear rooftop ...

Type House extension
Status Awaiting decision
Received Date not available
Plan thumbnail

Dormer loft conversion.

Type House extension
Status Awaiting decision
Received Date not available
Plan thumbnail

Change of Use to create 18no. self-contained residential units for short stay homelessness accommodation (sui generis), with associated acti...

Type Change of use
Status Awaiting decision
Received Date not available
Plan thumbnail

Erection of a two-storey side and part single/part two-storey rear extension.

Type House extension
Status Awaiting decision
Received Date not available
Plan thumbnail

Erection of a two-storey rear extension together within the installation of a rear roof dormer.

Type House extension
Status Awaiting decision
Received Date not available
Plan thumbnail

Erection of single-storey side and rear extension and insertion of roof lights.

Type House extension
Status Awaiting decision
Received Date not available

Retention of a two-storey rear extension to provide additional floorspace to the ground-floor commercial unit (use class E(b)) and first-flo...

Type House extension
Status Awaiting decision
Received Date not available
Plan thumbnail

Erection of 5no. 3-storey four-bedroom terraced houses together with associated car parking.

Type New housing
Status Awaiting decision
Received Date not available

Convert first floor shop storage and add new floors to form residential flats; rear dormer and extraction flue.

Type Change of use
Status Awaiting decision
Received Date not available

Part-retrospective three-storey development of nine apartments with parking, cycle/bin storage and landscaping.

Type New housing
Status Awaiting decision
Received Date not available
Plan thumbnail

Erection of a three-storey rear extension to form an addition 3no. self contained 1 bedroom flats together with a catering/storage unit at g...

Type New housing
Status Awaiting decision
Received Date not available

Creation of 2no. flats above shop; erection of two-storey rear extension following demolition of existing single-storey extension involving ...

Type Change of use
Status Awaiting decision
Received Date not available

Prior approval for the installation of solar panels on to the existing flat roof canopy above the forecourt area of the service station.

Type Renewable energy
Status Unknown
Received Date not available
Plan thumbnail

Convert single dwelling to six 1-bed apartments with 2.5-storey rear extension, parking and landscaping.

Type Change of use
Status Awaiting decision
Received Date not available
Plan thumbnail

Change of use of existing buildings to create four self-contained flats with external alterations.

Type Change of use
Status Awaiting decision
Received Date not available

Erection of two new-build semi-detached 3-storey dwelling houses.

Type New housing
Status Awaiting decision
Received Date not available

Two-storey side extension to create four two-bedroom flats, three parking spaces and landscaping.

Type House extension
Status Awaiting decision
Received Date not available

Erection of a single storey rear extension to form kitchen and associated stores and office; installation of external flue.

Type House extension
Status Awaiting decision
Received Date not available
Plan thumbnail

Part 2/part 6-storey residential building with communal facilities, parking and landscaping.

Type New housing
Status Awaiting decision
Received Date not available

Change of use of the existing caretaker home (Use class C3) to a sui generis building to compromise: Community use (Use class F2b - communit...

Type Change of use
Status Awaiting decision
Received Date not available

Change use from dwellinghouse to residential children's home for up to three children.

Type Change of use
Status Awaiting decision
Received Date not available

Erect two-bed semi-detached houses with off-road parking.

Type New housing
Status Awaiting decision
Received Date not available

Extensions and extra storey to existing block to create 8 apartments, courtyard work pods and landscaping.

Type New housing
Status Awaiting decision
Received Date not available

Rooftop extension and conversion of floors 1–4 to create 8 apartments with a new entrance.

Type New housing
Status Awaiting decision
Received Date not available

Single-storey extension and internal alterations to create two one-bed and one two-bed flats.

Type House extension
Status Awaiting decision
Received Date not available

Conversion of existing garage to form 2 No. Private parking spaces, a Class E office unit and refuse storage area, with a proposed first flo...

Type New housing
Status Awaiting decision
Received Date not available
Plan thumbnail

Change of use to two Class E commercial units and three one-bedroom residential apartments.

Type Change of use
Status Awaiting decision
Received Date not available
Plan thumbnail

Outline application (access and layout only) for the erection of a 2 storey detached dwellinghouse (Class C3) with associated parking and am...

Type New housing
Status Awaiting decision
Received Date not available
Plan thumbnail

Outline permission for four-storey building to create 35 residential apartments with parking and landscaping.

Type New housing
Status Awaiting decision
Received Date not available
Plan thumbnail

Change of use of 8 Minshull Street and 42 Bloom Street with alterations to accommodate 39 apartments (Use Class C3).

Type Change of use
Status Awaiting decision
Received Date not available
Plan thumbnail

Erection of 27 houses, six cottage flats and 18 apartments with access, parking and landscaping.

Type New housing
Status Awaiting decision
Received Date not available

Three-storey podium extension and external refurbishment providing additional office accommodation, plus retail, gym and F&B changes.

Type Commercial
Status Awaiting decision
Received Date not available
Plan thumbnail

Conversion and change of use of part existing church building to provide a new 4 bedroom dwelling with insertion of new internal floor and i...

Type Change of use
Status Awaiting decision
Received Date not available

Mixed-use redevelopment: new 18-storey office plus two tall residential buildings, ground-floor commercial and infrastructure.

Type New housing
Status Awaiting decision
Received Date not available
Plan thumbnail

Demolition and redevelopment delivering up to 262 residential dwellings across six buildings with ground-floor commercial.

Type New housing
Status Awaiting decision
Received Date not available
Plan thumbnail

Flat roof dormer with PV panels and windows to create additional bedroom.

Type House extension
Status Awaiting decision
Received Date not available

Erection of 106 residential dwellings with access, landscaping and parking.

Type New housing
Status Awaiting decision
Received Date not available
Plan thumbnail

Erection of three three-storey houses with parking, bin and cycle stores.

Type New housing
Status Awaiting decision
Received Date not available
Plan thumbnail

Phased redevelopment: demolition, new office buildings, flexible commercial and community uses, landscaping, infrastructure.

Type Commercial
Status Awaiting decision
Received Date not available
Plan thumbnail

Erection of 194 dwellings (Class C3) with vehicular access from Crabtree Lane and associated parking, landscaping and open space.

Type New housing
Status Awaiting decision
Received Date not available
Plan thumbnail

Part retrospective remodelling and extensions to existing detached dwelling with rear extension and alterations to existing rear boundary tr...

Type House extension
Status Awaiting decision
Received Date not available
Plan thumbnail

Demolish existing; erect two buildings delivering up to 752 apartments and Class E floorspace.

Type New housing
Status Awaiting decision
Received Date not available
Plan thumbnail

Erection of 498 dwellings with landscaping, drainage, footways, access, parking and associated works.

Type New housing
Status Awaiting decision
Received Date not available
Plan thumbnail

Nine-storey residential building providing 104 units with communal space, landscaping and associated works.

Type New housing
Status Awaiting decision
Received Date not available

Outline for four-storey building of 27 apartments; access, layout and scale to be considered.

Type New housing
Status Awaiting decision
Received Date not available
Plan thumbnail

Phased development comprising (a) site remediation and reprofiling; and (b) erection of two residential plots of development comprising 879 ...

Type New housing
Status Awaiting decision
Received Date not available
Plan thumbnail

Part 3/part 4 storey building with commercial space and 18 flats, plus parking and bin/cycle storage.

Type New housing
Status Awaiting decision
Received Date not available

Erection of a 23 storey residential building comprising 133 homes (Use Class C3a) with ground floor commercial unit (Use Class E) and associ...

Type New housing
Status Awaiting decision
Received Date not available
Plan thumbnail

Erection of up to 66 dwellings (53 houses, 13 apartments) with access, parking and landscaping.

Type New housing
Status Awaiting decision
Received Date not available
Plan thumbnail

Residential development of 120 dwellings with open spaces, drainage, cycleways, accesses and parking.

Type New housing
Status Awaiting decision
Received Date not available

Erection of a residential development of up to 115 dwellings with associated access, parking, landscaping and drainage following demolition ...

Type New housing
Status Awaiting decision
Received Date not available

Erection of 20 x 3 storey residential units (Class C3), new access from East Road, landscaping, drainage infrastructure and associated works...

Type New housing
Status Awaiting decision
Received Date not available

Prior Approval application for the demolition of Alpha House

Type Demolition
Status Unknown
Received Date not available
Plan thumbnail

Erection of a 3 storey rear extension and conversion of basement to form 9 new apartments (23 apartments in total); installation of rear roo...

Type New housing
Status Awaiting decision
Received Date not available
Plan thumbnail

Redevelopment of the former Bandstand public house site for residential development of 50 units (Class C3) (41 apartments and 9 properties) ...

Type New housing
Status Awaiting decision
Received Date not available
Plan thumbnail

Demolition of buildings at 2 and 4 Whitworth Street West and the construction of a residential building (Class C3) with associated servicing...

Type New housing
Status Awaiting decision
Received Date not available

Erection of 2no. dwelling houses, with associated bike store and bin store following demolition of commercial building.

Type New housing
Status Awaiting decision
Received Date not available

Change of Use from single dwellinghouse (Class C3) to 3-bedroom HMO (Class C4).

Type Change of use
Status Awaiting decision
Received Date not available

Change of Use of ground floor from residential to Class E (a) together with associated elevational alterations.

Type Change of use
Status Awaiting decision
Received Date not available
Plan thumbnail

Erection of single-storey rear extension, rear and front flat roof dormers with alterations to existing elevations.

Type House extension
Status Awaiting decision
Received Date not available

Use of dwellinghouse (Use Class C3) as a Children's Care Home (Use Class C2) providing care for 1 or 2 children with staff working on a rota...

Type Change of use
Status Awaiting decision
Received Date not available

Use of dwellinghouse (Use Class C3) as a Children's Care Home (Use Class C2) providing care for 1 or 2 children with staff working on a rota...

Type Change of use
Status Awaiting decision
Received Date not available

Use of dwellinghouse (Use Class C3) as a Children's Care Home (Use Class C2) providing care for 1 or 2 children with staff working on a rota...

Type Change of use
Status Awaiting decision
Received Date not available

Use of dwellinghouse (Use Class C3) as a Children's Care Home (Use Class C2) providing care for 1 or 2 children with staff working on a rota...

Type Change of use
Status Awaiting decision
Received Date not available

Use of dwellinghouse (Use Class C3) as a Children's Care Home (Use Class C2) providing care for 1 or 2 children with staff working on a rota...

Type Change of use
Status Awaiting decision
Received Date not available

Use of dwellinghouse (Use Class C3) as a Children's Care Home (Use Class C2) providing care for 1 or 2 children with staff working on a rota...

Type Change of use
Status Awaiting decision
Received Date not available

Use of dwellinghouse (Use Class C3) as a small children's home (Use Class C2) for up to two children (aged 7-18 years old).

Type Change of use
Status Awaiting decision
Received Date not available
Plan thumbnail

Extension of the existing flank wall to form a gable - Extension to the main house roof to form a dormer extension to the rear elevation.

Type House extension
Status Awaiting decision
Received Date not available

Retrospective application for change of use (Class C3) to a House in Multiple Occupation (Class C4).

Type Change of use
Status Awaiting decision
Received Date not available
Plan thumbnail

Erection of single-storey rear extensions to 8no. dwellings.

Type House extension
Status Awaiting decision
Received Date not available

Single-storey front and rear extensions; convert first and second floors from offices into two flats.

Type Change of use
Status Awaiting decision
Received Date not available
Plan thumbnail

Use of dwellinghouse (Use Class C3) to provide residential care accommodation (Use Class C2) for 3 young people (aged 8-18 years)

Type Change of use
Status Awaiting decision
Received Date not available

Change of use of 1st Floor of Public House (Sui Generis) to a 6-Bed Guest House (Use Class C1)

Type Change of use
Status Awaiting decision
Received Date not available
Plan thumbnail

Erection of four-storey residential building to provide 13 apartments with access and parking.

Type New housing
Status Awaiting decision
Received Date not available
Plan thumbnail

Apartments above ground-floor retail with landscaping, servicing, car and cycle parking.

Type New housing
Status Awaiting decision
Received Date not available
Plan thumbnail

Extra-care and older persons apartments plus dwellinghouses, with parking and landscaping.

Type New housing
Status Awaiting decision
Received Date not available
Plan thumbnail

Enlargement of dwellinghouse consisting of a hip-to-gable loft conversion with a rear-facing dormer.

Type House extension
Status Awaiting decision
Received Date not available
Plan thumbnail

Change of use from a dwellinghouse (Class C3) to a 5-bedroom, 5-person House in Multiple Occupation (Class C4).

Type Change of use
Status Awaiting decision
Received Date not available

Erection of single-storey side extension with associated alterations, including replacement of existing roofs with a flat roof, changes to r...

Type House extension
Status Awaiting decision
Received Date not available
Plan thumbnail

Rooftop extension to create 8 apartments, recladding and creation of car park with access.

Type New housing
Status Awaiting decision
Received Date not available

Change of Use from Class F1(f) (place of worship) to Class E(g)(i) (ii) (iii) (office use), including erection of covered link, gates / boun...

Type Change of use
Status Awaiting decision
Received Date not available
Plan thumbnail

Erect five-storey building to provide nine residential apartments with cycle parking, refuse storage and basement plant.

Type New housing
Status Awaiting decision
Received Date not available

Erection of two storey dwellinghouse (Class C3) with associated landscaping and boundary treatment

Type New housing
Status Awaiting decision
Received Date not available

Construction of 25 dwellings with new access, landscaping; mix of apartments and cottages.

Type New housing
Status Awaiting decision
Received Date not available
Plan thumbnail

Change of use of ground floor office (class E g(i)) to hot food take-away (Sui Generis) and erection of a new shop front.

Type Change of use
Status Awaiting decision
Received Date not available
Plan thumbnail

Part four/three/two-storey building forming 35 residential apartments with parking and landscaping.

Type New housing
Status Awaiting decision
Received Date not available

Convert house to 4 self-contained apartments

Type Change of use
Status Awaiting decision
Received Date not available

Erection of single storey extension to existing garage and conversion into summer house/ home office.

Type House extension
Status Awaiting decision
Received Date not available
Plan thumbnail

Shopfront alterations and conversion of first and second floors into two self-contained flats.

Type Change of use
Status Awaiting decision
Received Date not available

Change of Use from Dwellinghouse (Use Class C3) to a Children's Home (Use Class C2) for a maximum of two children, with up to three carers (...

Type Change of use
Status Awaiting decision
Received Date not available

Two-storey in-fill extension for storage of furniture and maintenance equipment for existing units.

Type House extension
Status Awaiting decision
Received Date not available

Change of use from dwelling (C3) to E(f) creche/day nursery with ground floor and part first-floor rear extension.

Type Change of use
Status Awaiting decision
Received Date not available

Change of use from dwellinghouse (Use Class C3a) to residential care home (Use Class C2).

Type Change of use
Status Awaiting decision
Received Date not available
Plan thumbnail

Use of the dwellinghouse (Use Class C3a) as a children's care home for up to two young people, with two live-in carers working on a rota bas...

Type Change of use
Status Awaiting decision
Received Date not available

Internal alterations to create 2no. two-bedroom duplex apartments over the ground and basement floor, resulting in a total of 5no. flats.

Type Other
Status Awaiting decision
Received Date not available
Plan thumbnail

Two-storey detached building forming four self-contained flats.

Type New housing
Status Awaiting decision
Received Date not available

Use of dwellinghouse as a small residential care home for up to three young people.

Type Change of use
Status Awaiting decision
Received Date not available

Change of use from C3 dwelling to C2 residential care for one young person.

Type Change of use
Status Awaiting decision
Received Date not available
Plan thumbnail

Change use from dwelling to children's care home.

Type Change of use
Status Awaiting decision
Received Date not available
Plan thumbnail

Residential care home use for three looked-after children.

Type Change of use
Status Awaiting decision
Received Date not available

Rooftop extension adding one two-bed and two one-bed flats, with parking, storage and landscaping.

Type New housing
Status Awaiting decision
Received Date not available

Conversion and first-floor extension to create two 1-bed flats, one office, parking and refuse storage with roof terrace.

Type New housing
Status Awaiting decision
Received Date not available

Convert first and second floors into two apartments, alter ground-floor unit and add rear extensions.

Type Change of use
Status Decided
Received Date not available
Plan thumbnail

Erection of 11 two-storey houses and 18 apartments with parking, landscaping and boundary treatment.

Type New housing
Status Decided
Received Date not available

Prior approval for change of use from retail to two 3-bed apartments.

Type Change of use
Status Decided
Received Date not available

Conversion of HMOs to 8 self-contained apartments with roof extension and terraces.

Type Change of use
Status Decided
Received Date not available

Change of use to residential children's care home (Class C2).

Type Change of use
Status Decided
Received Date not available
Plan thumbnail

Create two self-contained apartments above shop with separate residential access.

Type Change of use
Status Decided
Received Date not available

Erection of eight houses (four semi-detached pairs) with infrastructure and landscaping.

Type New housing
Status Decided
Received Date not available

Erection of a two-storey residential dwellinghouse with associated boundary treatments.

Type New housing
Status Decided
Received Date not available

Create terrace of seven dwellings via demolition, conversion and extensions, with parking and landscaping.

Type New housing
Status Decided
Received Date not available

Creation of 12 residential apartments with associated external works.

Type New housing
Status Decided
Received Date not available

Change of use from dwelling (C3) to a children's home (C2) for up to three children.

Type Change of use
Status Decided
Received Date not available
Plan thumbnail

Roof extension enlarging second-floor flats and addition of verandah to ground-floor Class E units.

Type House extension
Status Decided
Received Date not available
Plan thumbnail

Part-retrospective erection of two-storey dwellinghouse with roofspace accommodation following demolition of existing house.

Type New housing
Status Decided
Received Date not available
Plan thumbnail

Reconfigure playing fields with two AGPs, MUGA, pavilion with clinic, cafe, cycle hub and community rooms.

Type Commercial
Status Decided
Received Date not available

Two-storey in-fill extension for storage of furniture and maintenance equipment for existing residential units.

Type House extension
Status Decided
Received Date not available

Additional floor to building to provide six studio flats, with parking and storage.

Type New housing
Status Decided
Received Date not available

Use of property as five self-contained residential flats (Use Class C3).

Type Change of use
Status Decided
Received Date not available

Convert single residential dwelling into two separate dwellings (net gain one).

Type Change of use
Status Decided
Received Date not available

Four-storey mixed-use building with ground-floor medical centre and nine apartments.

Type New housing
Status Decided
Received Date not available

Construct three-storey building providing nine apartments, landscaping and associated works.

Type New housing
Status Decided
Received Date not available
Plan thumbnail

Change of use from cafe (Class E) to residential C3 with minor external alterations.

Type Change of use
Status Decided
Received Date not available

Conversion of four self-contained flats into a single dwellinghouse.

Type Change of use
Status Decided
Received Date not available

Creation of one basement residential flat with extended lightwell and external alterations.

Type New housing
Status Awaiting decision
Received Date not available

Conversion of existing dwellinghouse into two one bedroom flats.

Type Change of use
Status Awaiting decision
Received Date not available

Conversion of existing dwellinghouse into two one bedroom flats.

Type Change of use
Status Awaiting decision
Received Date not available
Plan thumbnail

Demolition and erection of six residential blocks to provide 212 apartments and seven townhouses.

Type New housing
Status Decided
Received Date not available

Prior approval for demolition of residential units on Plots C, D, G, H and I.

Type Demolition
Status Decided
Received Date not available

Change of use from dwellinghouse (C3) to Residential Care Home (C2).

Type Change of use
Status Decided
Received Date not available

Change of use from dwellinghouse (C3) to residential institution (C2).

Type Change of use
Status Awaiting decision
Received Date not available

Change rear of shop to two self-contained apartments with western elevation alterations.

Type Change of use
Status Decided
Received Date not available

External wall insulation, elevational works, solar PV installation and reroofing to existing flats.

Type Renewable energy
Status Decided
Received Date not available
Plan thumbnail

First-floor extension above retail creating two self-contained one-bedroom flats.

Type New housing
Status Decided
Received Date not available
Plan thumbnail

Change of use from pub to four residential flats; removal of external staircase.

Type Change of use
Status Decided
Received Date not available

Basement conversion to form two one-bedroom self-contained apartments with elevational alterations.

Type Change of use
Status Decided
Received Date not available

Change from private dwelling to residential care accommodation for up to two children and four carers.

Type Change of use
Status Decided
Received Date not available
Plan thumbnail

Erect part three/part four storey building providing 32 apartments with parking, landscaping and cycle store.

Type New housing
Status Decided
Received Date not available
Plan thumbnail

Change use of surgery and reconfigure flats to create nine one- and two-bed apartments (five new).

Type Change of use
Status Decided
Received Date not available

Change of use of former hotel to 11 self-contained residential apartments with elevational works.

Type Change of use
Status Decided
Received Date not available

Outline application for demolition and construction of six houses (access and layout reserved).

Type New housing
Status Decided
Received Date not available

Change dwellinghouse (C3) to a residential children's home (C2) for up to two children.

Type Change of use
Status Decided
Received Date not available

Change of use of second and third floors to 12 apartments, bin store and external works.

Type Change of use
Status Decided
Received Date not available

Change of use and rooftop extension to create 11 apartments, bin store and external works.

Type Change of use
Status Decided
Received Date not available

Change of use from dwelling (C3) to residential care (C2) for two young people.

Type Change of use
Status Decided
Received Date not available
Plan thumbnail

Change of use from light industrial to offices, extensions and two new one-bed flats above.

Type Change of use
Status Decided
Received Date not available

Conversion of single dwelling into four self-contained flats.

Type Change of use
Status Decided
Received Date not available

Install front and rear dormers to form two one-bedroom apartments and new entrance.

Type New housing
Status Decided
Received Date not available

Create four serviced apartments (Class C1) with rooftop extension and roof terrace.

Type Commercial
Status Decided
Received Date not available
Plan thumbnail

Prior approval to change use from doctors surgery (Class E) to five residential apartments.

Type Change of use
Status Decided
Received Date not available