← Manchester City Council

Status

Awaiting decision House extension
Received
Not recorded
New homes
0

Full proposal

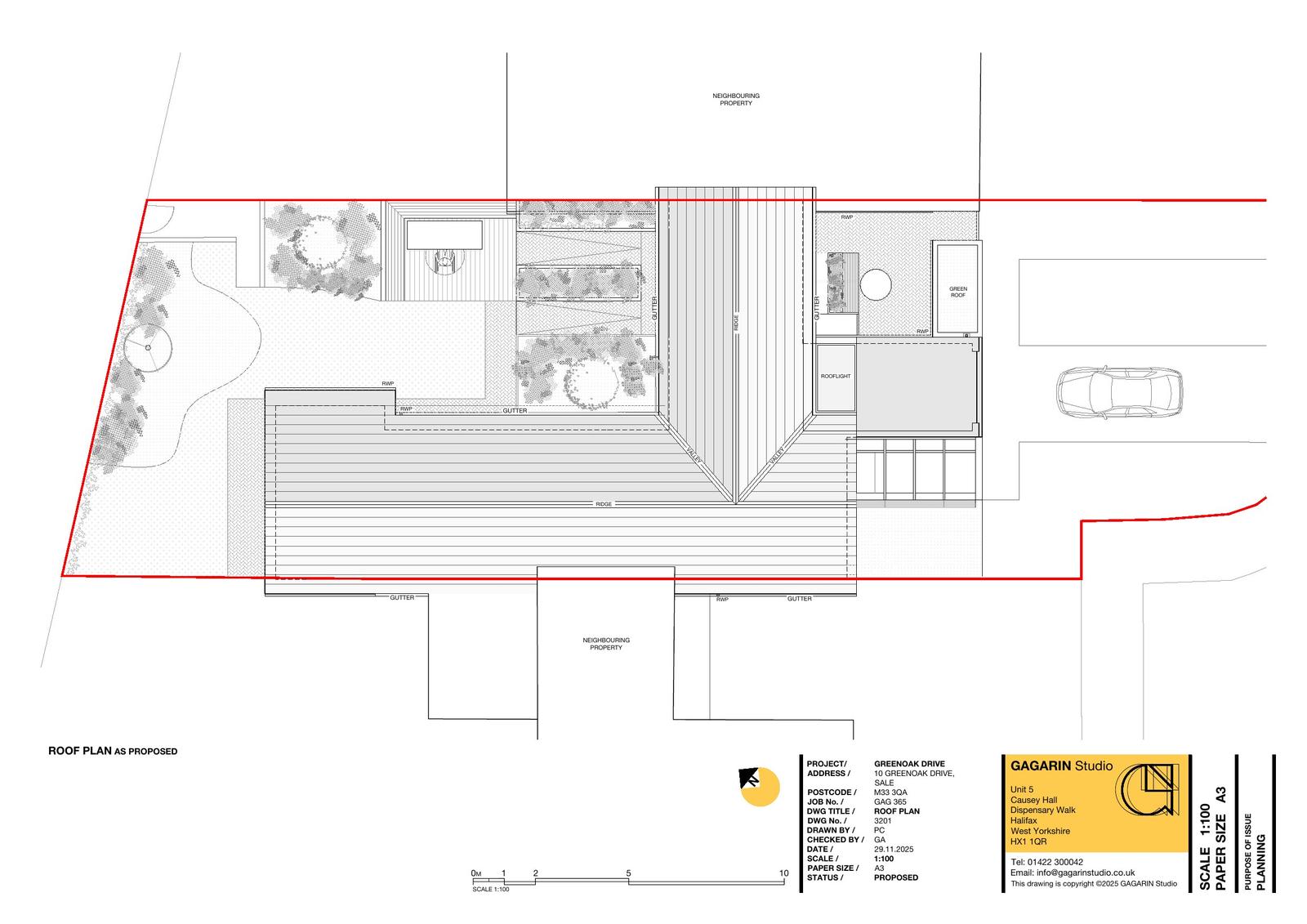
Erection of single-storey rear extension and garage conversion.

Documents

Design & Access Statement
Archived · Original link
Drawing - Proposed
Archived · Original link
Drawing - Proposed
Archived · Original link
Drawing - Proposed
Archived · Original link
Drawing - Location Plan
Archived · Original link

Have your say

Your comment matters. Councils must consider every representation that raises material planning considerations.

Write a comment